Published on Archi.ru (https://archi.ru)

09.07.2010

Quiet ñharm of "chalet"

Anna Martovitskaya
Architect:
Roman Leonidov
Studio:
Studio of Roman Leonidov

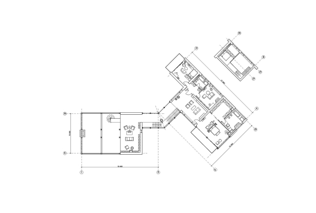
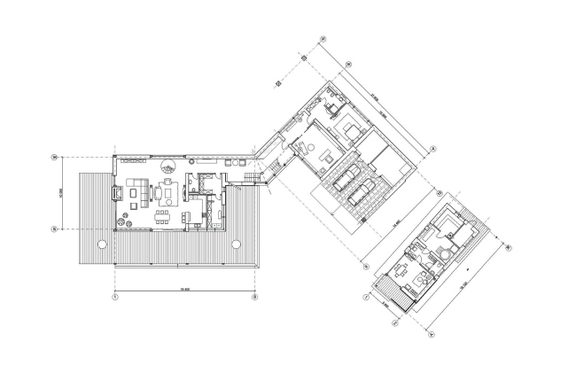
This spring Roman Leonidov, the architect, has completed construction of a new countryside cottage, which became the embodiment of his vision of a comfortable and stylish private home.

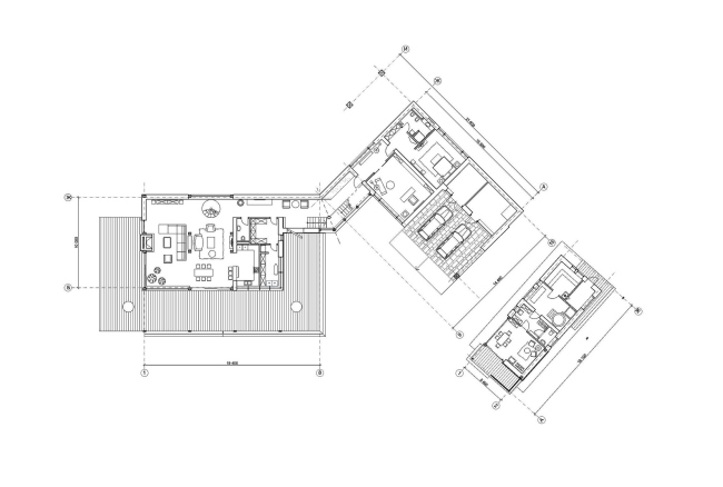
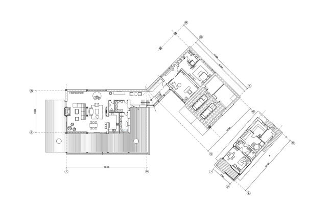
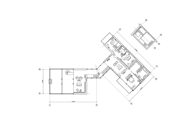
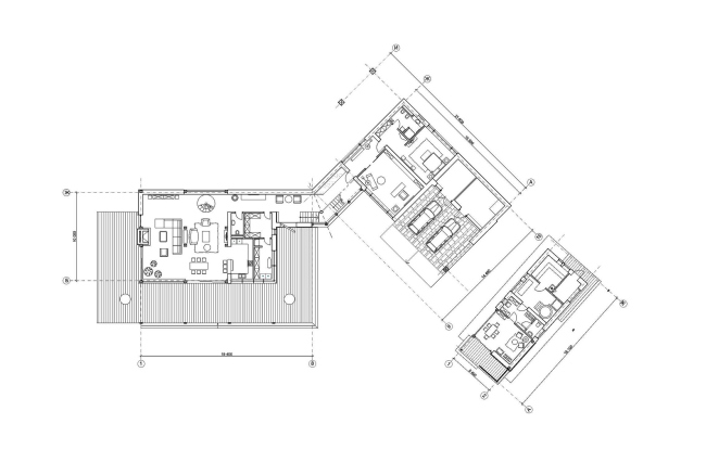
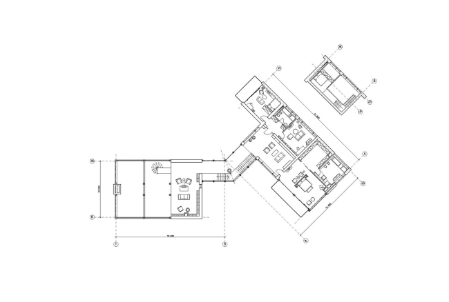
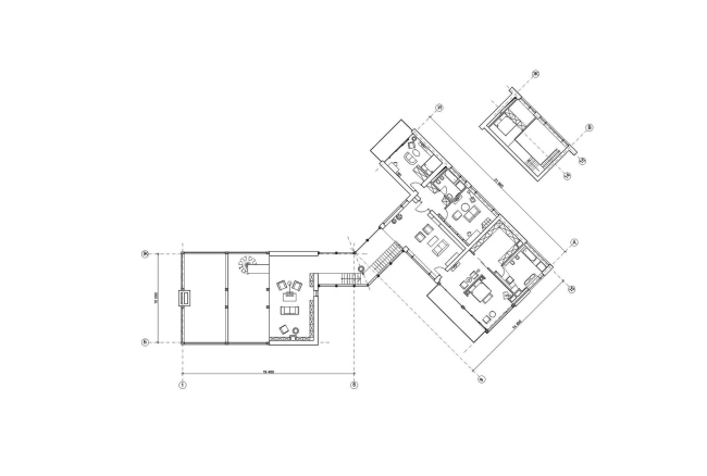
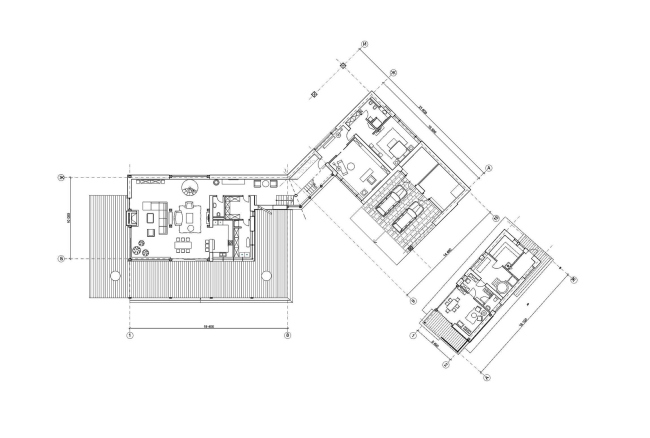
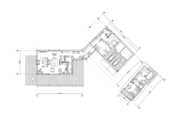
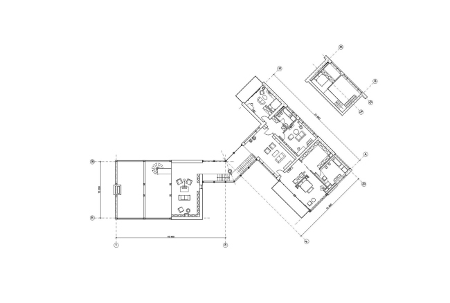
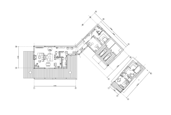
Roman Leonidov and his client know each other for quite a while – a few years ago the architect designed a house for the entrepreneur and his family, they still happily reside there. The new cottage was commissioned as a commercial object, that is a house for sale. For this purpose they bought a site of 30ha in a very quiet and old neighborhood along Minsk highway. The only request was “I want to sell it easily”. Roman Leonidov, in turn, in this short but major task seen the opportunity to most fully implement his vision of modern country house in which tradition and innovation would be combined in equally. The cottage consists of two volumes, layout of each resembles a rectangle with a corner. They mirror and are connected by long beams. In order to avoid too strict square, Leonidov joins the volumes under a slight angle. For facades and interior, the architect used only natural and cost-effective materials to balance solidity of the exterior and its visual lightness, as well as to make the construction cost efficient. "Eventually, I designed a chalet in the end, but with modern architectural means, - says Roman Leonids. – In our studio we call it a Quiet Charm of “bourgeoisie”. The client knew the house’s worth, at least, the cottage is not a commercial object anymore, and the entrepreneur's family is preparing to move.

None
None
None
None
None
None
None
None
None
None
None
None
None
None
None
None
None
None
None
None