Published on Archi.ru (https://archi.ru)

28.06.2010

Resort construction

Anna Martovitskaya, Julia Tarabarina
Studio:
Evgeniy Gerasimov & partners

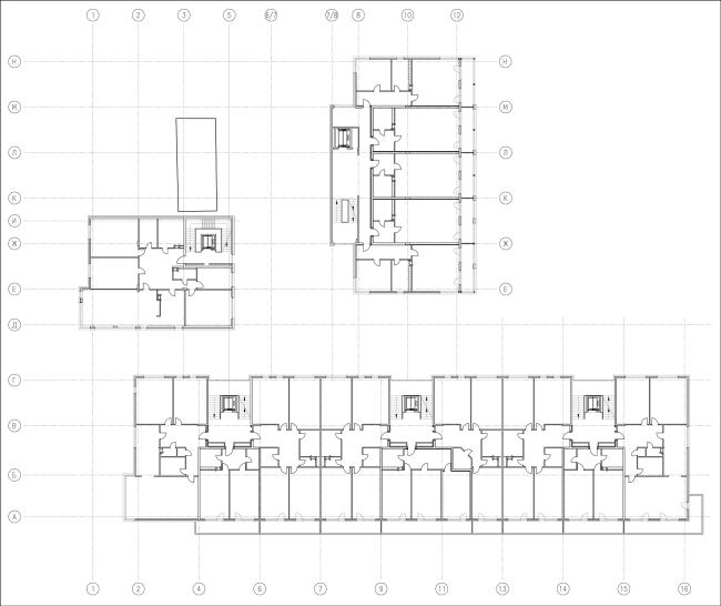
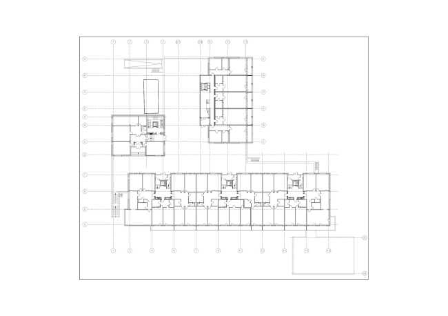
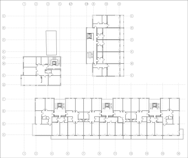
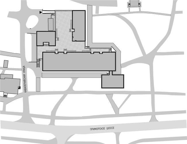
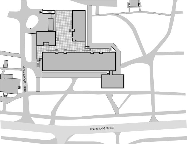
In one of the most scenic and ecologically safe suburbs of St. Petersburg, in Zelenogorsk resort town “Evgeny Gerasimov and Partners” studio completed construction of a new apartment-hotel. On the green hillside among giant boulder stones the architects raised a dynamic composition of geometric volumes.

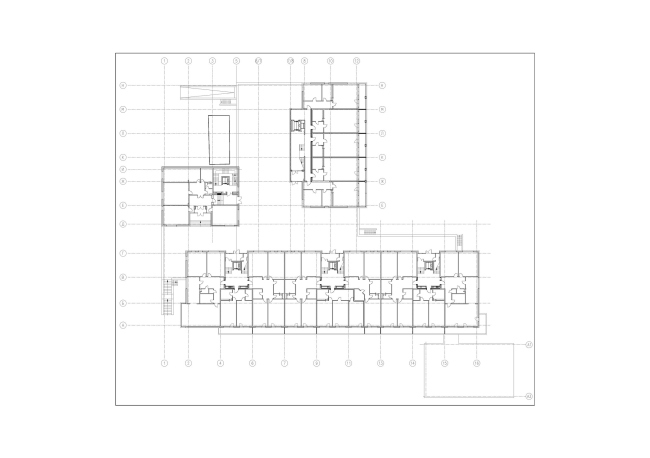
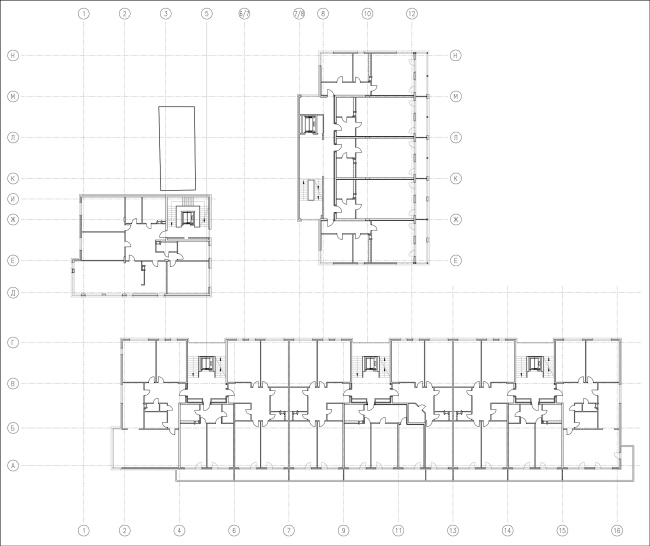
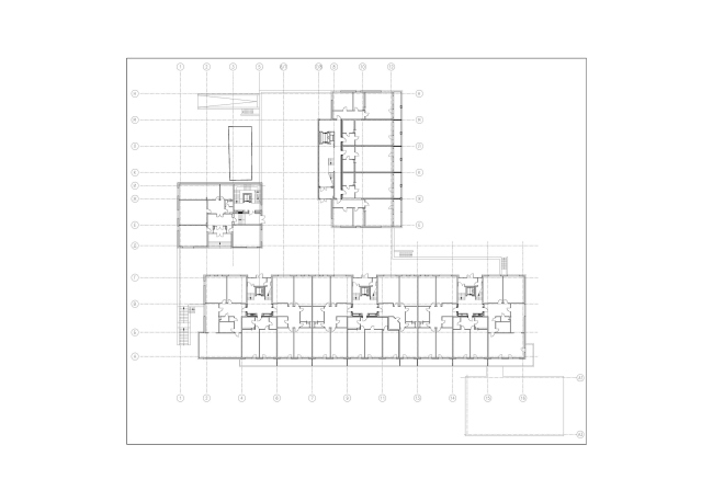
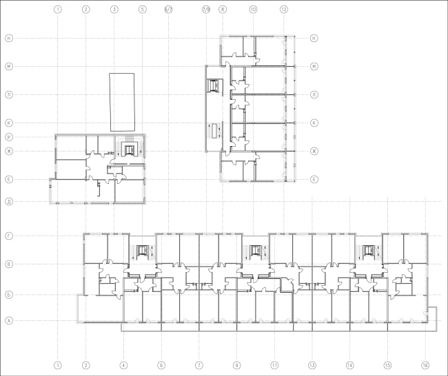
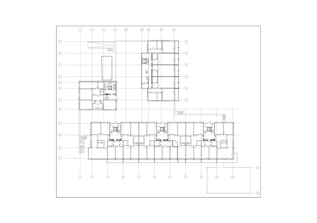
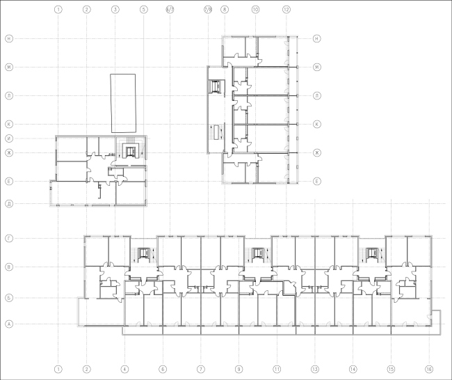
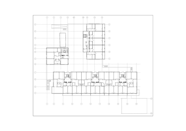
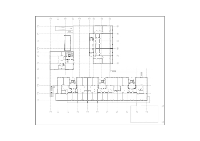
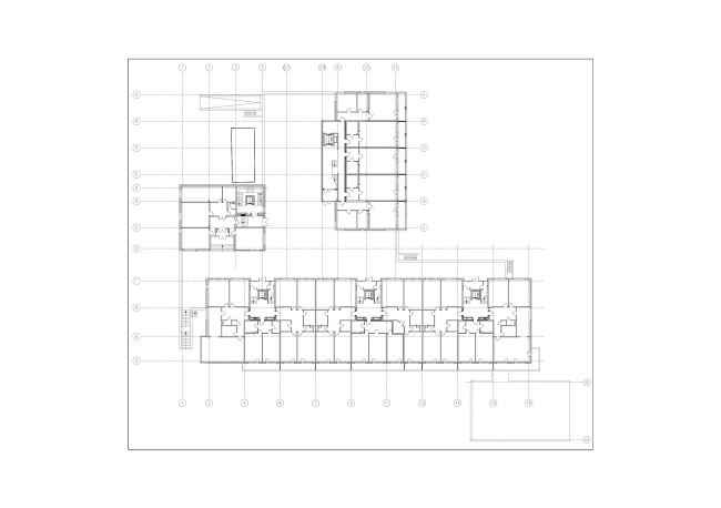
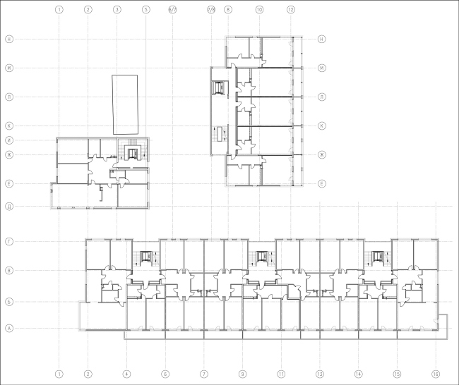
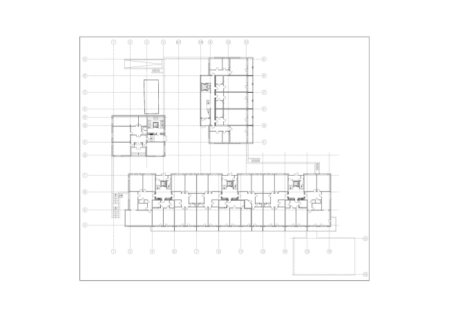
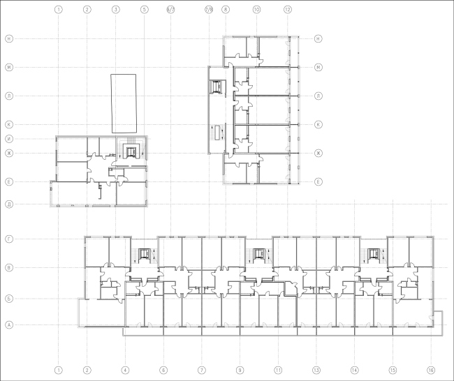
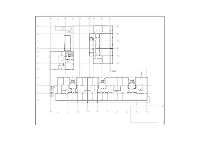
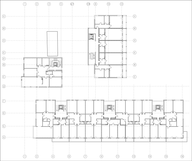
The hotel consists of three buildings joined by a common stylobate, with a top-garden at the height of two meters above ground. Stylobate is simple and of cement grey color, one would think it remained from the old building. Austerity of gray color unites the new building with its background, its basement is surrounded by broad flights of open steps -they create feeling of similarity to the "classic" modernism of 1970’s. However, without the details the stylobate itself is fine there; from the south-west there is a 1storey fitness centre, also stone-gray and cut with lines of horizontal windows. Near the volume there is a hill of north boulder stones – the sports facility seems to be extracted from the same stone. There is no more of monochrome over the basement: constructions remind a small colorful town and at first sight it is hard to see there are only three of them, but not six or seven. The classic three-part structure of the residential building is hidden using architectural means, or even - split into parts, visually smaller than they really are. The effect is stronger when one is looking at the southeast corner of the building, two nearby building are seen there (the long one, № 1 and the smallest square, № 2). Solar-white, charcoal black, noble terracotta, gray (not concrete color, but of glass and metal) – contrast and complement each other and are never dull. It seems they all are gathered from a different elements, like a 3D puzzle.

None
None
None
None
None
None
None
None
None
None
None
None
None
None
None
None
None
None
None
None
None
None
None
None
None
None
None
None