Published on Archi.ru (https://archi.ru)

17.06.2010

On the bed of music

Anna Martovitskaya
Architect:
Vladimir Plotkin
Studio:
Creative Union ‘Reserve’

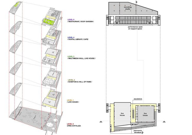
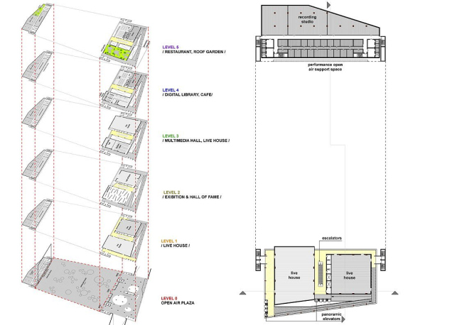
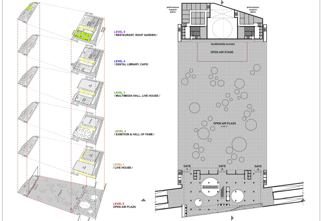
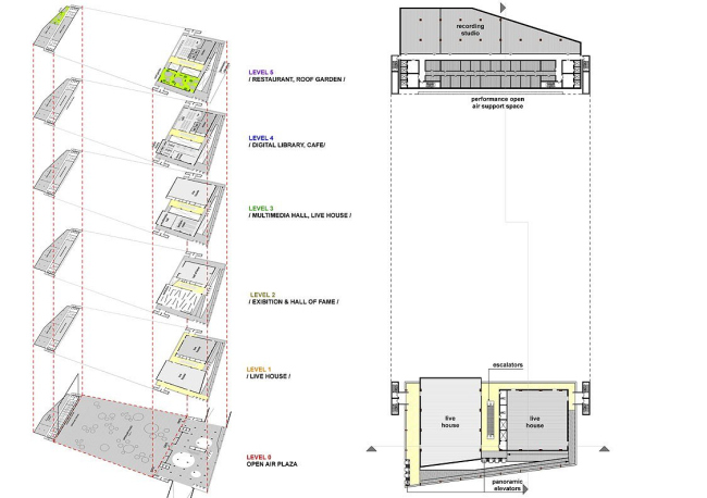
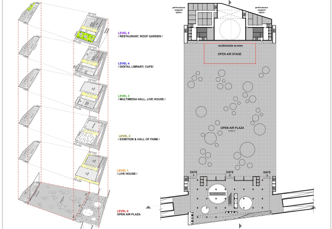
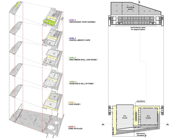
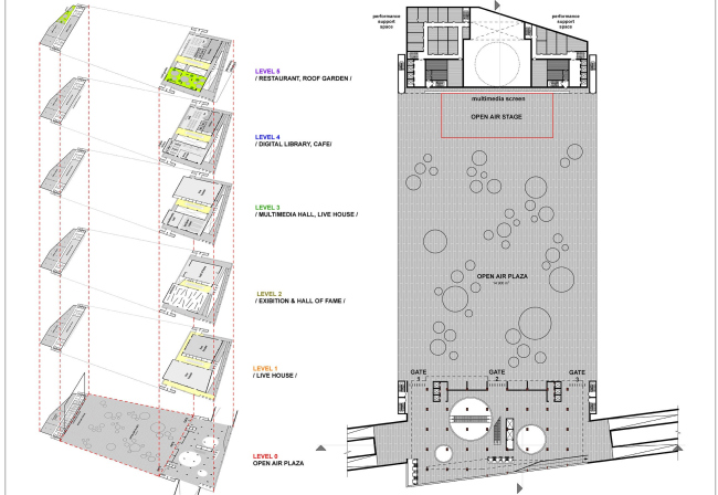
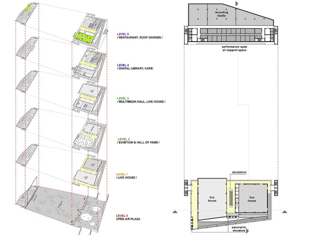
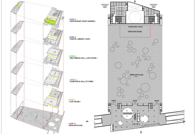
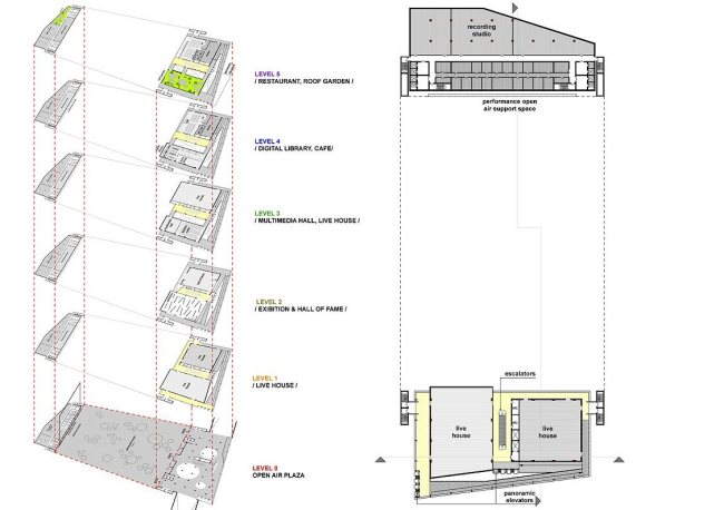
In Tai Bei less than a year ago there was held an international architectural contest on Taipei Pop Music Center design project. TPO "Reserv" interpreted the object as a giant bed, a "bed" which they turned into an outdoor stage.

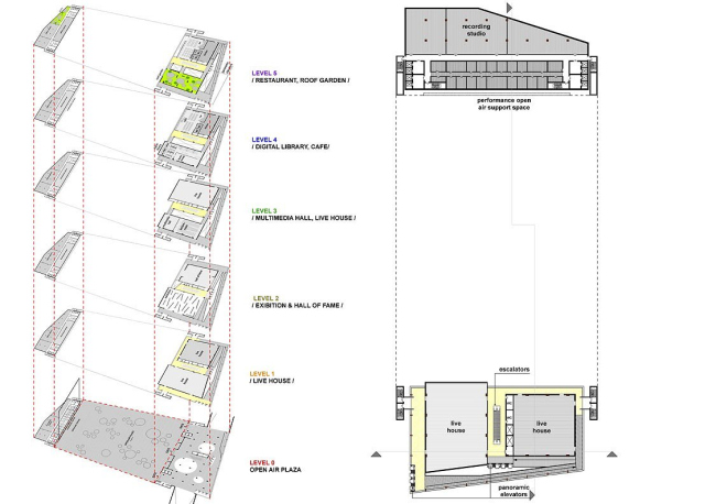
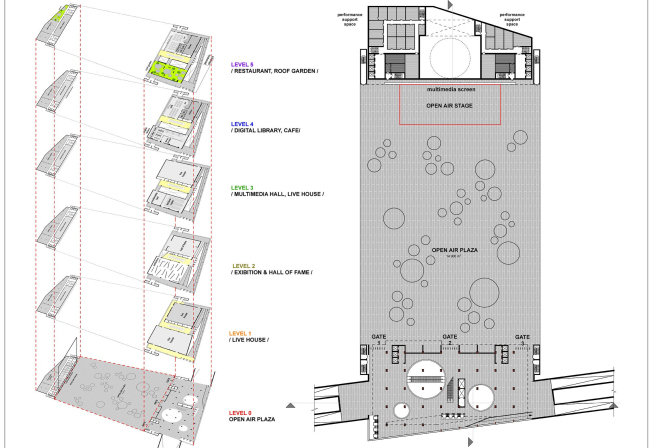
Pop Music Center will be built in one of Taipei industrial zones beyond revitalization in the nearest future. Complex will be very large (more than 50 thousand square meters) and will combine a lot different functions - from entertainment and cultural to business, retail, sports and service. However, despite enormity of the idea, the site given for the construction is a small and trapezoidal piece of land, very close to the railway ground. In order to enlarge the construction area, the contest assignment allowed using the space over the railway area, provided that the architects would design a convenient fo the given urban area railway cover system. If needed also allowed using another site nearby the railway are, in future it might be given to a Pop-Music Centre, TPO "Reserv" took a critical decision to stay within the main preliminary specifications. This made the task even more difficult – to design a spacious and notable volume which will hold numerous functions and will be easily identified as a music and entertainment complex. But the team directed by Vladimir Plotkin did a great job. The site is located perpendicular to the railroad, so in any position the centre would face trains coming and going. No doubt there had to be a cover, the architects knew they could not design a sound and independent urban structure without such. However, unlike most other participants, TPO "Reserv" did not cover the railway with a broad bridge "prolonging" the site but a long greened ramp. The construction encloses the railway at distant approaches to the site, and joins the new complex with station platforms within the area. One of the new complex buildings rests on the green platform, there are two elegant entrance ramps leading inside.

None
None
None
None
None
None
None
None
None
None
None
None
None
None
None
None
None
None
None
None
None
None
None
None