Published on Archi.ru (https://archi.ru)

15.06.2010

Patchwork Quilt

Anna Gerasimenko
Architect:
Andrey Asadov
Alexander Asadov
Studio:
ASADOV architects

It's well known the economy crisis has totally changed priorities of developers and architects. Before they would prefer large-scale projects of complex housing, today simple cost efficient objects which create comfortable environment come to the fore. Andrey Asadov’s architectural studio suggests building their town named “Loskutki” out of such objects, each can be modified considering interests of future residents.

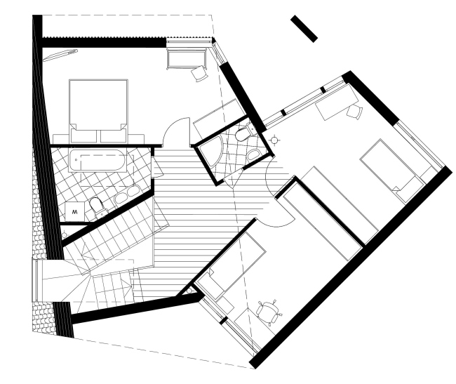
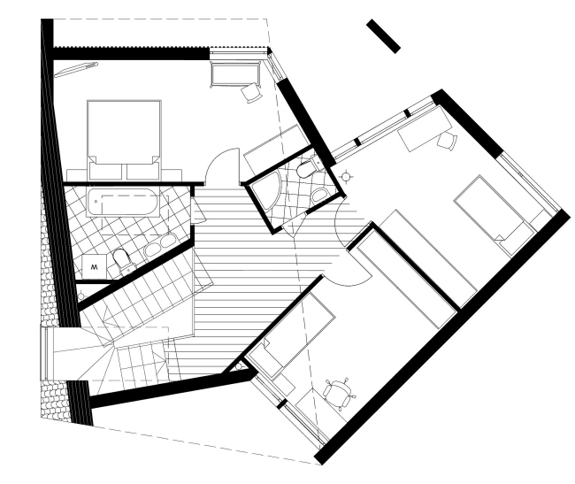
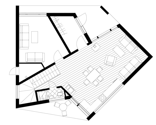
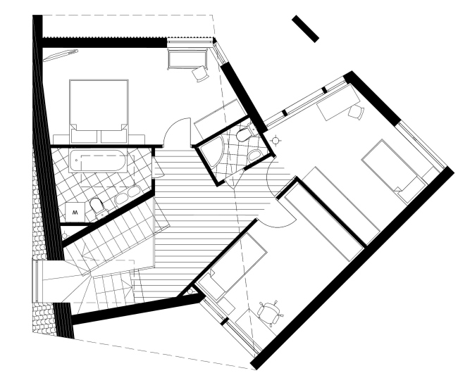
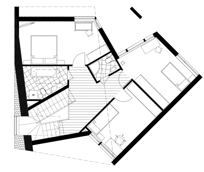
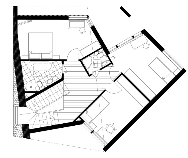
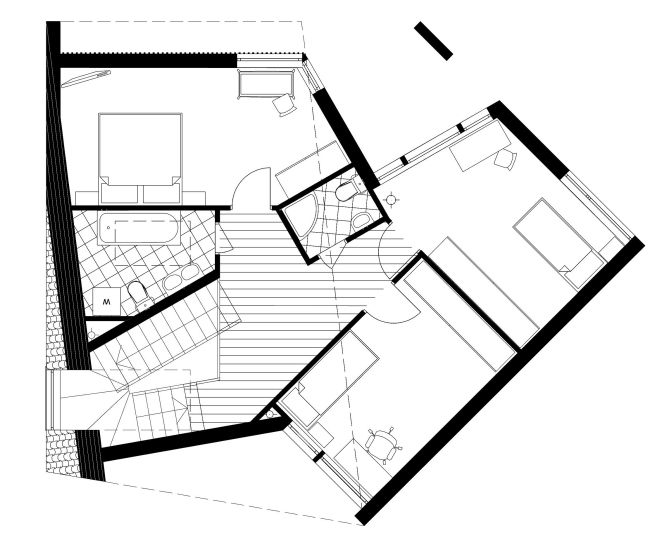
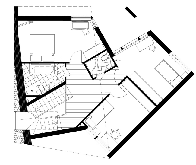
"Loskutki" owes its appearance to the series of prefabricated houses projects which A. Asadov’s studio once designed for «Eternit» company. Later, specially for “The XXI century house” contest, the architects “upgraded” the project and developed townhouses and sectional low-rise buildings, showing all these elements can be "gathered" into a comfortable and visually very diverse neighbourhood. Prototype of such structure was a medieval town, densely built-up, lined by narrow streets and, most importantly, is humanscale. Master plan of such town is really like a patchwork quilt, where each part has its own pattern, but together they create a picture. This principle is the basis of the designed location, hence its romantic name "Loskutki". Private lots with houses are gathered into blocks which in turn are concentrated around the central public area with schools, nursery schools, a small park with a lake. Each block has a mixed type of building: along its perimeter bordering with the social center there are low-rise sectional houses, behind at the far side of the block there are townhouses, even further there are private houses. This three house types have common basis, but not a parallelepiped. Architects of Asadov’s studio remained true to themselves and preferred nonlinear geometry: their " XXI century houses" have minimum five corners, sometimes roof grades into a wall. To make them comfortable for the dwellers, architects carefully designed maximally rational interior layout. In cottages and townhouses a client can choose the most appropriate layout for their family, sectional homes are gathered, as a constructor set, of all types apartments connected by staircases, each section has individual façade finishing.

None
None
None
None
None
None
None
None
None
None
None
None
None
None
None
None
None
None
None
None
None
None
None
None
None
None
None
None
None
None
None
None
None
None
None
None
None
None