Published on Archi.ru (https://archi.ru)

28.04.2010

Richard Of York Gave Battle In Vain

Anna Gerasimenko
Studio:
ASADOV architects
GrandProektCity

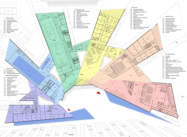
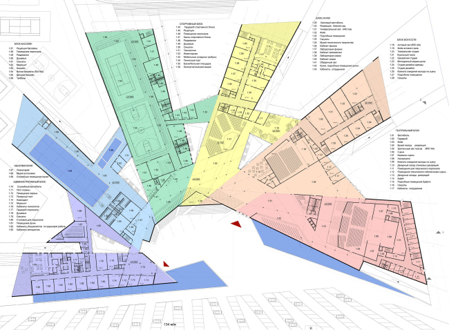
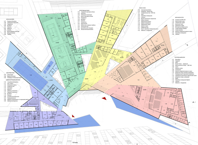
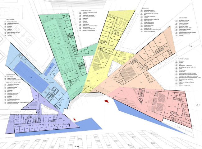
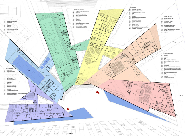
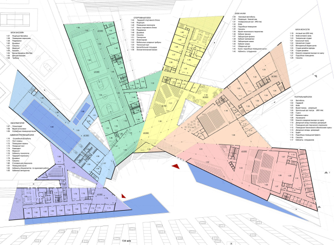
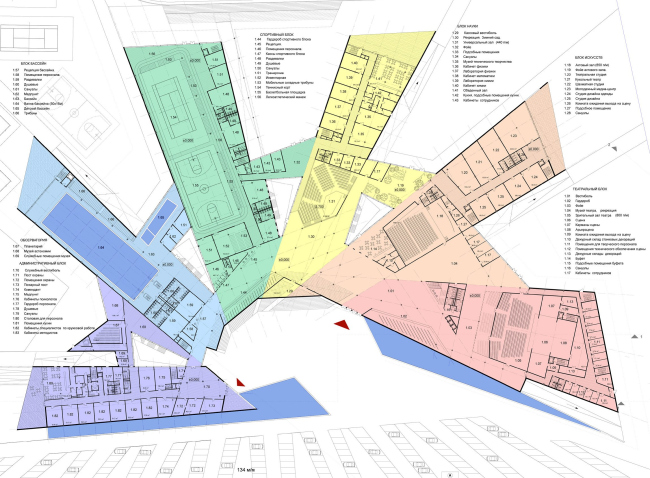
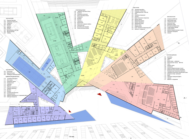
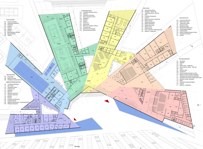
For more than 10 years the new city is being built under the motto “Astana is city of future”. Such worldwide famous architects as Kisho Kurokawa, Norman Foster, Manfredi Nicoletti, Bureau BIG signed in its image. Institute of Astana master plan every year sets new international contest. This year the architectural studio of A.Asadov was invited to participated in such on the project of a Palace of Schoolchildren Art. The architects named “Palitra” their complex consisting of colored buildings.

The building site is located in one of the new districts of Astana, quite remote from the center and just being developed. Due to that fact the architects had a certain creative freedom: they were not depending on housing density regulations and image of existing housing. There is no such and the future Palace might influence it greatly. The complex includes 6 constructions, grouped like a fan around a small pedestrian square. In the layout it resembles a painted baby sun, however, the architects tnamed their project "Palitra", comparing colored constructions to arrangement of colors on an artist’s palette. The Palace is purposely divided into 6 separate buildings.The technical inquiry required a mixed-use complex for children, which would include a sports facility, art studios, science laboratories, and architects fulfilled the requirement. However, the last thing they wanted was to "fill" a single volume with all the features, considering it would have complicateded layout for children. But the facility consisting of 6 low-rise buildings allowed to turn the Palace into a children’s playground with its own central square and inner small streets. The main color of all the buildings is white, but the interior spaces have one of the six rainbow colors observatory tower interior). Bright colors break through on facades, so that the block are different not only in their shapes, bit in coloring, creating together a vivid but simple to remember and orientation map.

None
None
None
None
None
None
None
None
None
None
None
None
None
None
None
None
None
None
None
None
None
None
None
None