Published on Archi.ru (https://archi.ru)

02.04.2010

Portals in the park

Anna Martovitskaya
Architect:
Sergey Skuratov
Studio:
Sergey Skuratov architects

Sergei Skuratov, was the only Russian architect, invited to participate in recently held international contest on design of Perm Opera and Ballet Theater new building. His theatre project was the largest in scale and most elaborated in terms of functionality, architectural and planning stage. Dressed in matte, frosty glass and bronze copper, complex designed by Skuratov really looks like a northern theater.

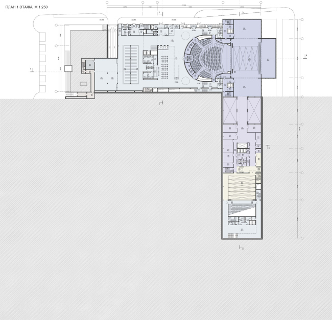
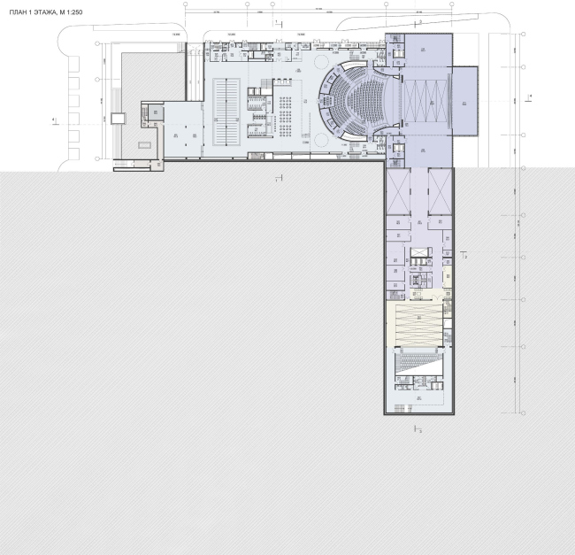
The idea of development and growth was the key in the project. The architect presumed that the theater is not just a monument of architecture but is original living organism, constantly being improved. A classical theatre typology does not match modern transformations of opera and ballet genres. The idea to build a historical building by another one. Skuratov also rejected architecture with “Balbao effect”, aggressively modern and shocking. Image of the new building had to be delicate to history, nature, and be immediately recognizable as a theater, theater of the XXI century. In the new theatre design architects applied principle of comprehensive guidance, creating new entrances and thus including the nature and the city into active theatrical influence. Instead of the previous strict separation into zones "street / theater" and the "external / internal" Skuratov creates in the park a system of buildings, connected by common functions and public space permanently open to the public. The existing theater remains the centre of main park directions and perspectives cross, and after the reconstruction it will be still possible to come round it. Mainly, due to L-shaped composition of the new volume they achieved such visual independence of the historical building was, above all, with L-shaped arrangement of the new volume. All the required functions Skuratov managed to distribute in a complex so that the main bulk of the new stage would hide behind the existing building and its wings would so to say hold its canonical façade (though at a distance).

None
None
None
None
None
None
None
None
None
None
None
None
None
None
None
None
None
None
None
None
None
None
None
None
None
None
None
None
None
None
None
None
None
None
None
None
None
None
None
None
None
None
None
None
None
None
None
None
None
None