Published on Archi.ru (https://archi.ru)

12.07.2006

The faded face of Moscow ' genius loci '

Julia Tarabarina
Architect:
Sergey Skuratov
Studio:
Sergey Skuratov architects

The residential complex on Tessinsky pereulok - its authors, Sergey Skuratov, Nikita Demidov and Pavel Shalimov, received the award for the best project in Arch-Moscow a month ago – makes us consider the Moscow « genius loci» in a different way.

The buildings are dedicated to the brick - Sergey Skuratov have said that this is the very material he considers to be the most "Moscow" and to fit for the capital atmosphere. The well known sameness of brick laying is waded through with colour: the facades colouring that has been arranged by the special computer algorithm, uses smooth gradient change from one tone to another, and combines lining brick of the three kinds: terracotta, shaly-grey and dark brown. However, the total colouring of the two buildings differs a little - the smaller one, placed in the back of the site, has got a darker combination of brown and grey. The colouring of the other building is lighter, there is more of grey-terracotta with brown impregnations.

So much elegant approach to the brick turns this, usually undemanding, material into a kind of starting point for elaborating upon the theme of surroundings and context, interpreted by the author so intricately and variously, that even the word "context" is strange to be used here, and it is more all right to use the author’s favorite “genius loci” - «spirit of a place». From what Sergey Skuratov have said, it is obvious that the buildings have came out as the result of some deep and very personal apprehension of the theme, that seems to be an exhausted one for Moscow long ago.

The site, where the two elite houses will be constructed, is on Yauza shore front, opposite to the ‘hogged bridge’ near Ilich Square. Except the remote neighboring to Andrey Rublev Museum and Spaso-Andronikov Monastery, the place used to be ancestral for early industrial buildings - Skuratov considers their rectangular brick corpses to be most interesting part of the nearest surrounding of the construction area. Now there is the only one brick corpse left of all the old industrial plant buildings.

And there a curious turn of the plot is hidden: houses vaguely resembling the industrial brick style of the last century, stylize not old factories, but present-day «lofts» that in the West have changed from cheap into very prestigious residence for the past years. There come out pseudo-lofts that look like plant floors outside, but still not that much, applying the unexpected nostalgic touch: where are you, centers of the proletarian revolution? - the architect is gracefully developing it, returning us to the present day.

Tall factory-windows in fact appear to be superb floor-to-ceiling French windows, and what is more – on one of the buildings the glass surface doesn’t end by floor level, but is overlapping it, bewildering observers and making the façade a kind of immaterial. It seems that there is no floor at all, or it might be very thin, because in some parts windows are contacting by corners, but oftener they are fused together, forming fancy vertical garlands. Another ‘mark of time’ is a slight bend of the smaller building’s walls: in the place where its corner looks at the crossing of the two lanes, Tessinski and Serebryanicheski, the walls "politely" retreat into the block, whether letting someone go, or giving up to spatial dynamics of the crossroads.

Another peculiarity is, as Sergey Skuratov has noticed, the ‘moved down roofs’ of the both houses. ‘These two are the mad houses’ - the author says ironically. Really, slant of the both roofs echoes the slight bend of walls, especially noticeable on the front facades facing the river. Generally, it seems that the house have survived through the geological cataclysm that have ‘torn’ a single building into two parts and have moved them to the different corners of the area – even the fault have shaped jerkily - from the one side, the stylobate extends, from the other – the console. The hypothetical earth fault has inclined the roofs and walls, made the windows dance, and has put forward transparent-mirror prisms of balconies from the brick massif on one of the facades.

There is another purpose that unexpected slants of the roofs serve - they help the architect to mislead in our stereotypes of three-dimensional space. Observing the play of oblique lines, it is not hard to notice watching from different points that some parallel lines instead of converging in the distance - diverge; they meet somewhere next to an observer, who passing by, can’t help but do find themselves in the field of not-straight, alternating perspective, thus, in the space of traditional icon. Besides, the author has got the same impression, and his goal is to plunge us into history of the place deeper and further into "factory” connotations, but softly, with allusions and only those who would like comprehend and watch. The pseudo-quarry made around the houses, serves the alike purpose; it is like those done in Novgorod after excavations of several temples from a ‘cultural layer’.

Obviously, for full consideration of the place genius, the houses do not try to fuse together with the historical context in this area, almost faded away; they do not pretend to be unnoticeable and do not pretend to be the ‘fellows’ to the local ones, and do not fenced off from the neighbors with mirror glass. They are like London aristocrats – they have industrial past, they are perfectly polite, wealthy, but modest, extravagant, within the bounds. Yet, such a are rare for Moscow.

None
None
None
None
None
None
None
None
None
None
The layout
The layout
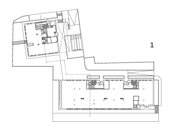
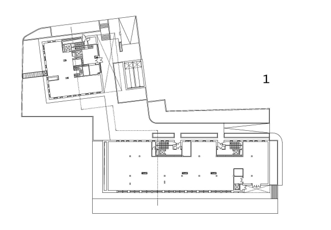
The first floor plan
The first floor plan