Published on Archi.ru (https://archi.ru)

28.01.2010

Semispherical hinge

Anna Martovitskaya
Architect:
Nikita Yavein
Studio:
Company:

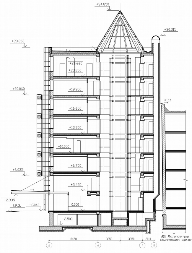
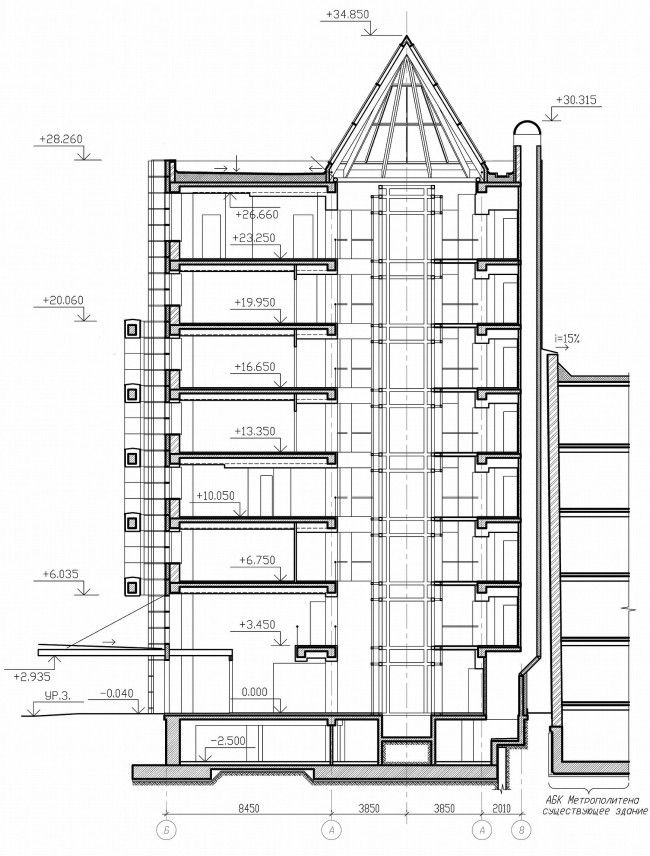
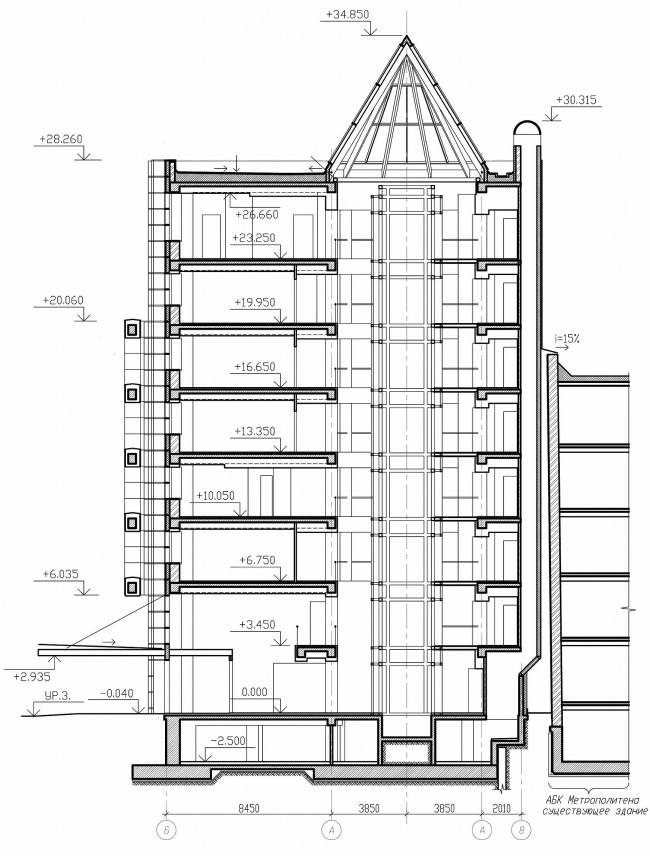
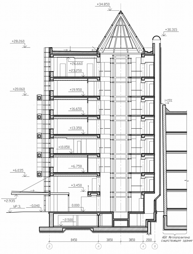
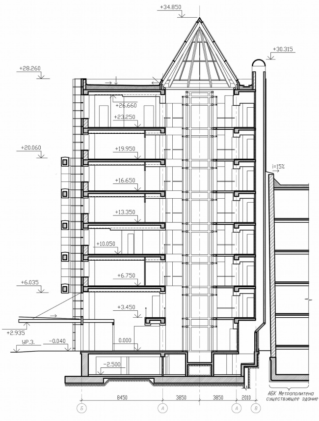
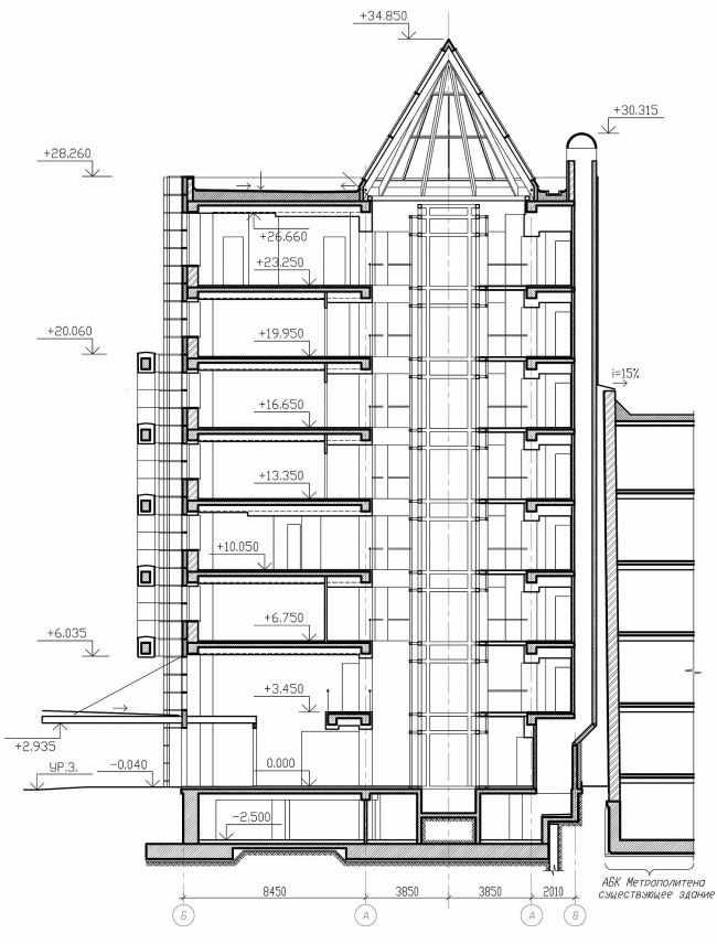
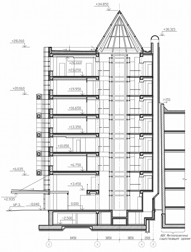
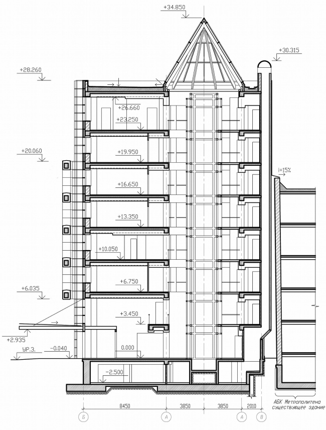
Last year the architectural workshop "Studio 44" completed construction of a new office complex in the very heart of St. Petersburg. It is hard to find a spare area in the density of streets neighboring to the Alexander Nevski Square, for this reason the business center was attached to one of the existing buildings. The new architectural hybrid became a new sight of Telezhnaya streets.

It is adjusted close by the production-service building of the Leningrad Metro, which had a solid concrete end. The architect had to design a construction harmonious being an independent building and extension of the existing complex. The architects started from the two concepts: the building is a part of the massive volume and is a mark of the crossroads, or rather the acute corner formed here by the street and the lane. The first was clear: the solid end had to be completed as soon as possible with architectural material, to drape and with numerous folds hide at last the dull concrete five storey fire wall. The idea to fix the corner in the urban space directed the architects in a more constructive way and the image of a building-drape turned into an image of building-hinge, or a gear. The architects designed the office complex as a sheaf of glass prisms, like a fan raying from the center of the building, and in the plan the uncommon composition really looks like a gear. To hold the unusual "bunch" and stylistically combine with the neighboring building, on the level of 3-6-floors it is pulled by the round stone belt, which coloring and rhythm of window openings catches the tectonic structure of the building established sixteen years earlier.

None
None
None
None
None
None
None
None
None
None
None
None
None
None
None
None
None
None
None
None