Published on Archi.ru (https://archi.ru)

15.09.2010

White Lightning

Anna Martovitskaya
Studio:
Sergey Kisselev & Partners

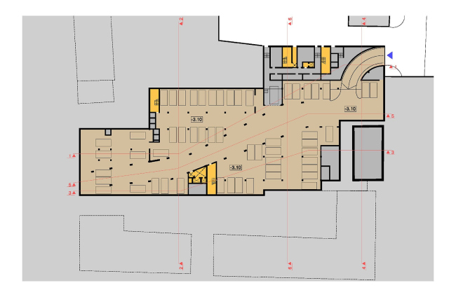
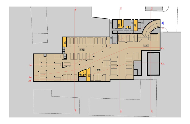
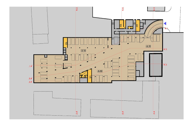
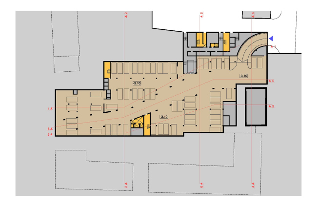
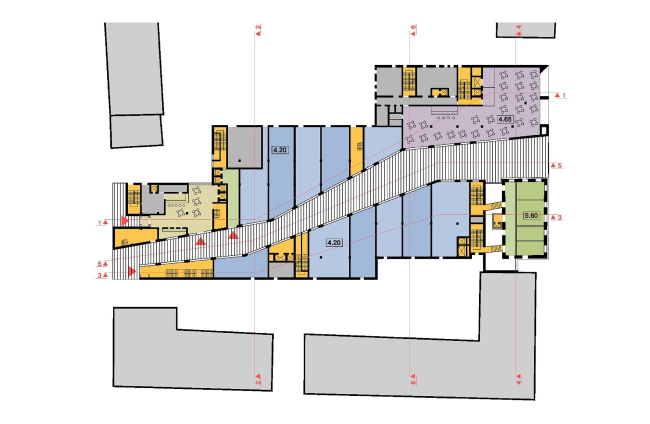
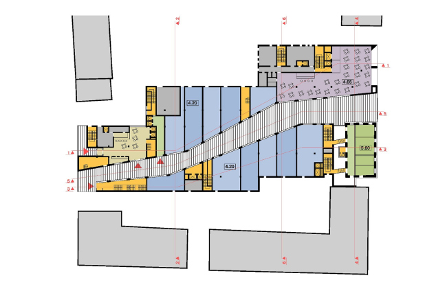
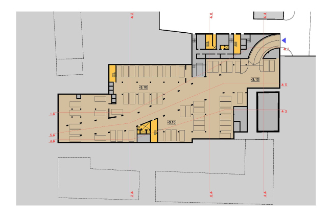
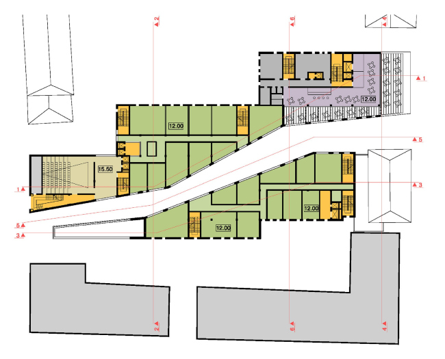
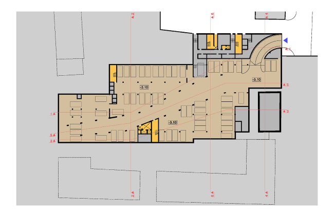
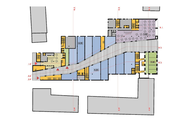
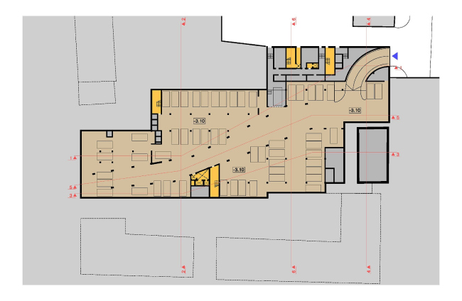
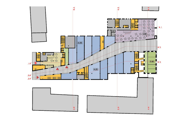
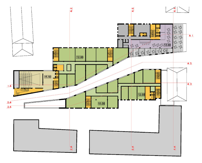
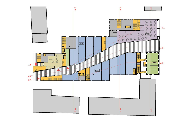
Architectural studio "Sergei Kiselev & Partners” designed a mixed-use complex of 13500 thousand sq m In Sevastopol. It houses shops, cafes, cinemas and offices, and is like a gallery open under the southern sky – buildings will be thread on axis of the new pedestrian street going down to the sea, it will run within the existing city-block.

Beautifully curving the pedestrian street splits the complex into two constructions which look separate but under the ground they have joint space with a parking lot. Breakings of their facades are mirrored and the complex resembles a mountain struck by lightning. The impression is intensified by the zigzag pattern of the street: separated buildings together would shape p and b letters. But they have different heights: one is going down the slope and "folds out” into a few giant steps, and the other grows opposite to the sea. Firstly this helps to observe insolation norms: otherwise offices would have little sunlight. Nearness of the sea and a resort town charm had direct influence on the complex appearance. At the same time the architects did not repeat the features classicism so typical for Sevastopol and did not develop nautical theme. The architects tribute to the bright Southern sun and existing housing of the "august city” by the thoroughly selected materials. All the facades of will have light coloring and will follow the festive palette of Sebastopol housing. The architects chose light limestone for windows framing, corners of houses, and facades fronting Aivazovsky and Mayakovsky streets, most wall surfaces will be finished by stucco and painted white or light beige color.

None
None
None
None
None
None
None
None
None
None
None
None
None
None
None
None
None
None
None
None
None
None
None
None
None
None