Published on Archi.ru (https://archi.ru)

23.07.2010

Simple

Anna Martovitskaya
Studio:
Sergey Kisselev & Partners

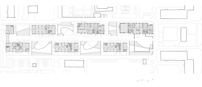
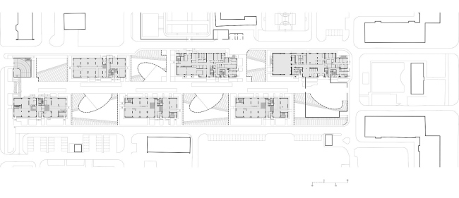
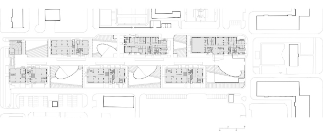
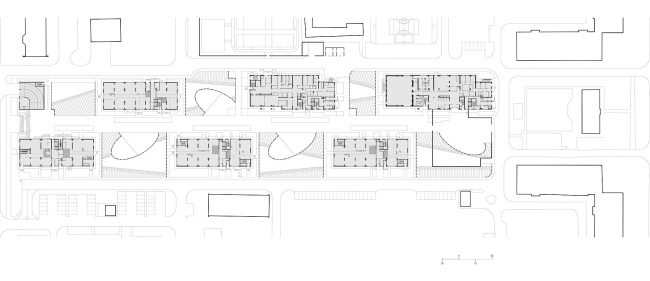
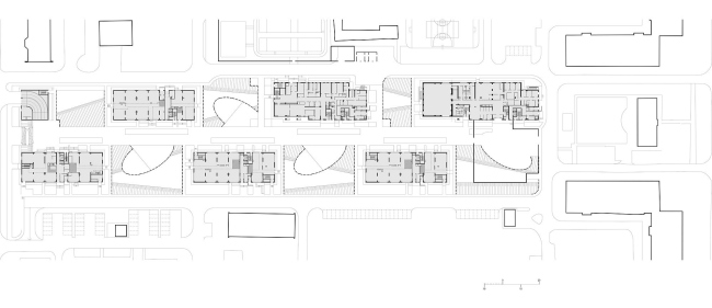
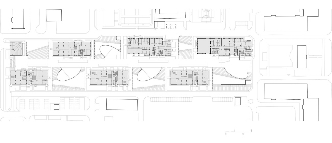
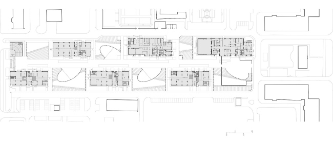
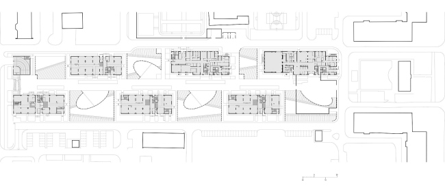
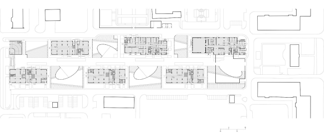
"Sergey Kiselev & Partners” architectural studio designed a new residential city-block for Tekstilschiki district in Moscow. It consists of 6 apartment towers. Volumes with simple forms and coloring are expected to be the ornament of the district. The architects purposely made them simple in order to make the process of filling the shy visual environment gradual and delicate.

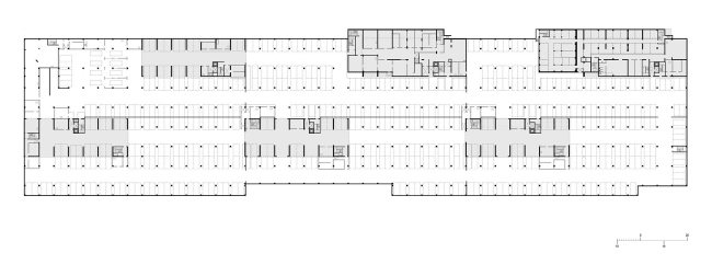
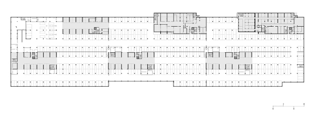
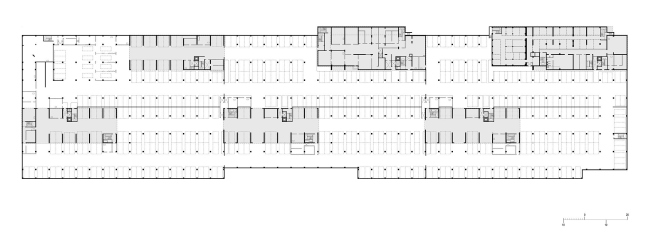
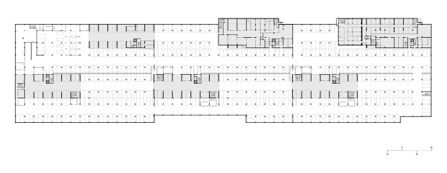
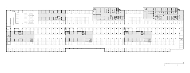
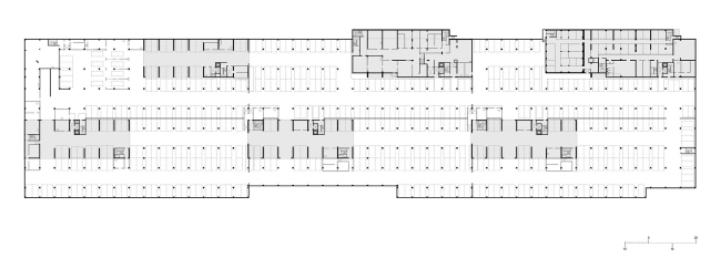
Aside with the 5 and 9storey apartment buildings, there are 2storey ones are left on the territory of the city-block 109, which soon will be reconstructed. They were built after the WW2 and until recently they belonged to The Russian Federation Ministry of Defence. These unsafe constructions will be demolished within the running project, their place will take high-rise buildings designed by "Sk&P". Since the houses are located in the very center of the city-block and are surrounded by more recent buildings the architects had a task to build new facilities so that they wouldn’t disturb insolation of those ones and wouldn’t be on the way of fire engines. These two key requirements suggested a simple and rational solution of the master plan. "Sk&P" put the complex into the perimeter of new route which will provide all the houses with convenient access and with the required space between the new development and the old. Six new apartment buildings (height ranging from 13 to 19 storeys) stand in two neat lines along the city-block centre line on the rectangle underground parking area. Buildings rest on piers among which there are public spaces, ellipse-shaped on the plan. The facades are decorated with large pixels, notably the architects divided each of them in two halves (vertically or horizontally), one half is glassed and the other is covered by an opaque piece. Mostly they are painted gray, neutral tone of which is dashed with rare inserts bright colors. Volumes of basement storeys are fully painted in bright colors – soon colorful public areas will help the residents of the district identify new buildings easier and faster than houses with numbers.

None
None
None
None
None
None
None
None
None
None
None
None
None
None
None
None
None
None
None
None
None
None
None
None
None
None