Published on Archi.ru (https://archi.ru)

03.12.2009

Tartan pattern

Anna Martovitskaya
Architect:
Sergey Kisselev
Studio:
Sergey Kisselev & Partners

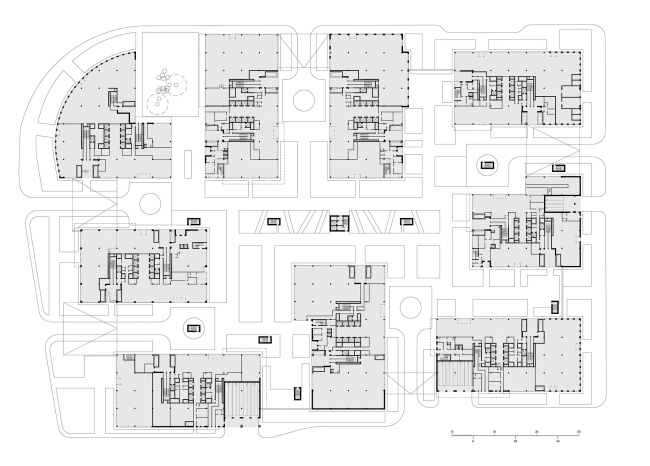
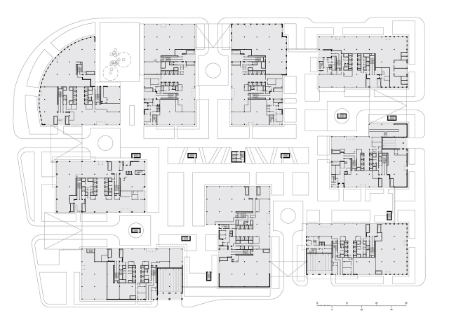
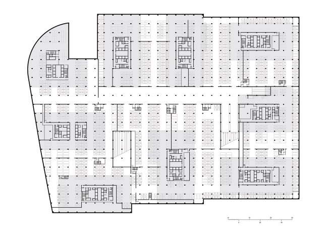
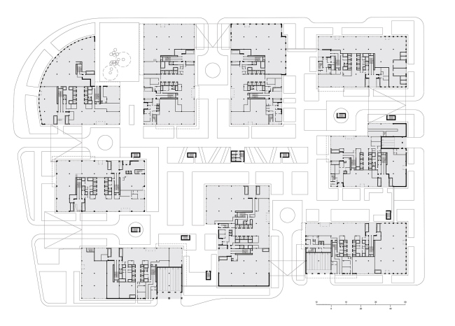
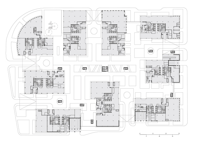
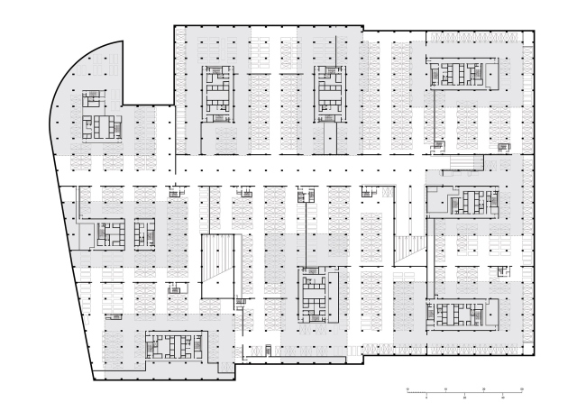
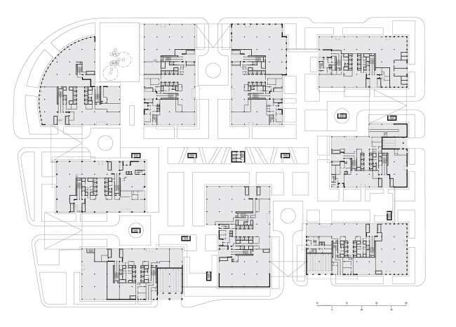
Upon the project of “Sergei Kiselev and partners” there will be constructed a business centre consisting of nine variable-height buildings at the cross of Serpuhovsky Val and Shabolovka street. Designed entirely for offices and placed tightly the buildings however will not transfer the area into another “City”, thought they are very similar to is scale, coloring and character.

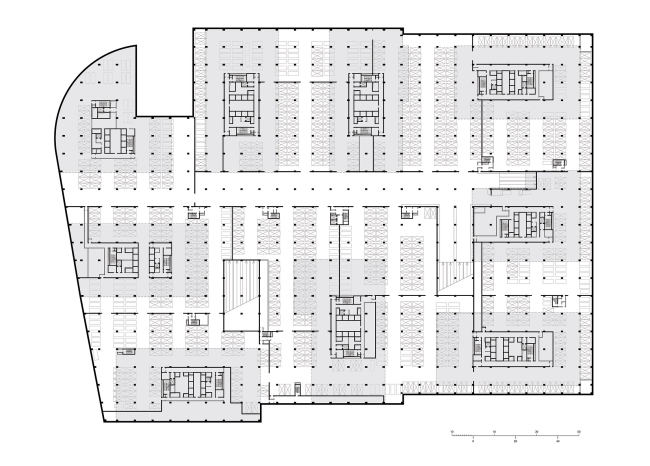
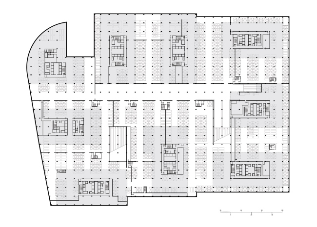
The site borders with Serpuhovsky val, 1and 4th Roschinsky passages and Maly Orlovy side street. Today it is the territory of Moscow non-ferrous metal working plant, in 2004 Moscow authorities took a decision of its relocation. The master-plan of Moscow provides that soon the 1st Rocshinsky passage serving as an extension of Shabolovka street will be broadened and extended till the Third Transport Ring, and the investor who planned to build a residential estate here, in the end decided that in such a busy area must be constructed a business centre. “SK&P” made their best to make the office buildings in scale with the surrounding development and in accord with its architecture. The only place where the picture can change its character is the corner of Serpuhovsky val and 1st Roschinsky passage: variable-height development here is a little higher than the commonplace concrete walls, and the future centre will gain a maximum height at this spot and become an observable urban dominant at the future highway interchange. The author had hard task to create a visually intense area in the context of hyperdense and on-budget development. They wanted a uniform nonintrusive concept which can be smoothly survive a ninefold reproduction with minimal changes. And such concept was found. Vikotr Barmin, the chief architect, said it was a tartan pattern which suggests a large variety of ornaments. The square – large and small, of regular or chaotic rhythm became a base for decoration of facades of the nine office buildings. It is presented in different materials - ceramic granite, metal panels, stained glass constructions.

None
None
None
None
None
None
None
None
None
None
None
None
None
None
None
None
None
None
None
None
None
None