Published on Archi.ru (https://archi.ru)

07.12.2009

Zigzag of health

Anna Martovitskaya
Architect:
Vera Butko
Anton Nadtochiy
Studio:
ATRIUM

Vera Butko and Anton Nadtochi gracefully fit the project of a health clinic combined with spa-resort into Moscow area hills saving its straight line architecture integrity. A harmonious scenery.

The soon-to-be client and the architect met at the award ceremony “Zolotoe Sechenie” of 2007. Whether they made a special visit to meet the architects or they liked Vera Butko and Anton Nadtochi’s projects which were among the award nominees. By the way, the “Atrium” received the three diplomas for the ready-built constructions from the jury of “Sechenie”. It is a rare chance when the event of professional recognition at the same moment brings clients. Well, the “Atrium” was asked to take part in the invited tendering, and the project was given the preference over the project of the other Russian and foreign agencies.
The clients have large businesses, not in medicine sphere as you might think. Construction of the health clinic is not only a money investment. The investors are planning to run the clinic, and probably gain their own health there. And most probably there will be tested the new typology: health clinic plus a spa-resort. It is unique for Russia, though it might be compared to “sanatorium”. But an elite one.
The “five-star clinic” (as the architects call it in joke) will be fully equipped: medical consultation service, laboratory examination, therapeutic courses, if necessary – surgery and rehabilitation under professional supervision. Therefore, the technical enquiry included a requirement that everything must satisfy the general concept of health care and body health treatment. There will not be night clubs, bars, internet-cafes, conference halls, even children playgrounds and game rooms. The owners of the clinic believe their guests will need privacy and possibility to focus on their health, without being distracted by friends, short visits to offices.
To achieve the privacy and distance from the city activities, they chose quite a remote territory – it is 7 and a half ha of former summer camp in a picturesque forest on the border of Moscow and Vladimir regions. Today there are no buildings of the Soviet period, but beautiful gully, birchwood and a stream flowing out of the small lake. Scenery is absolutely idyllic and serene.
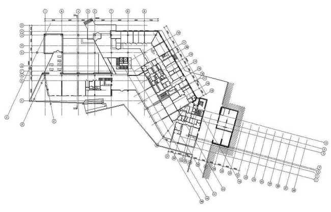
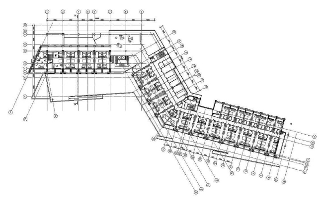
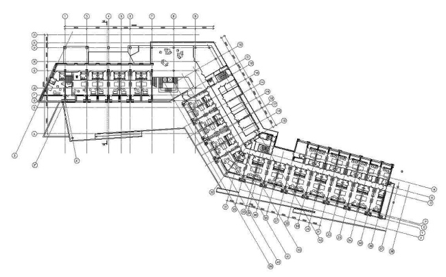
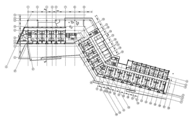
The lake has almost dried up, but it will be revived, cleaned up and become a compositional centre of the health clinic with all its constructions around the lake. In detail: from one side there will be 3-storey construction with doctors’ offices, surgery, laboratories, as well as hotel rooms and a public zone. On the other side there are six isolated cottages for those clients who prefer staying incognito or want to meet their neighbors more rarely; for high-ranking officials and famous people. Also, there will be a restaurant and even a small greenhouse. Not only specialist will grow fruits and vegetables there but the gusts. Really, what is more healthy than a work within due limits?
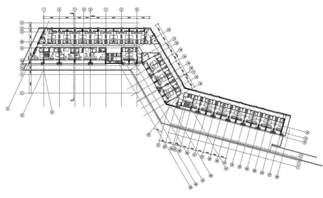
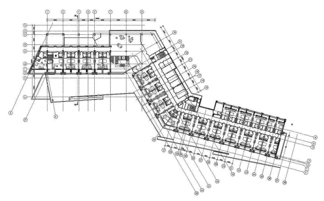
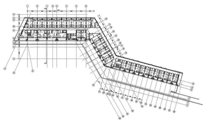
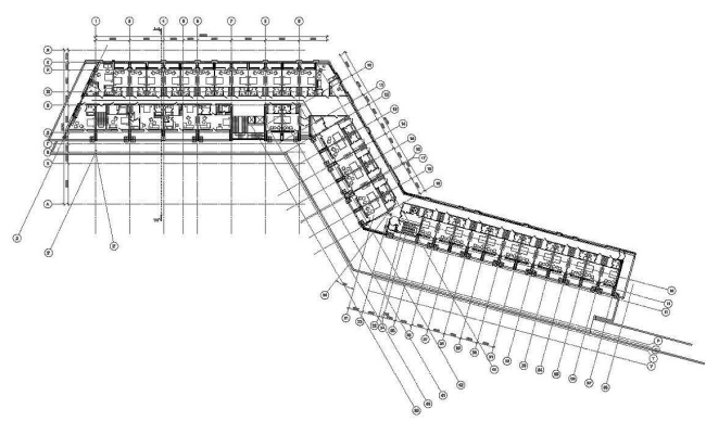
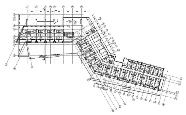
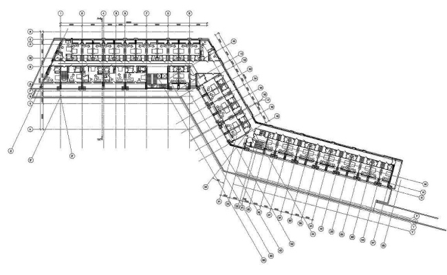
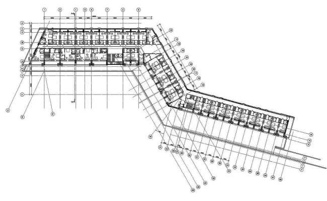
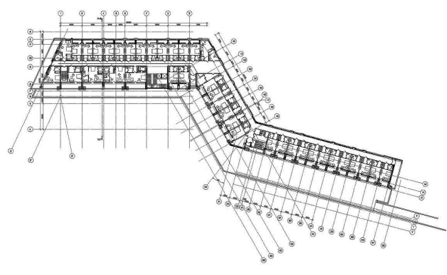
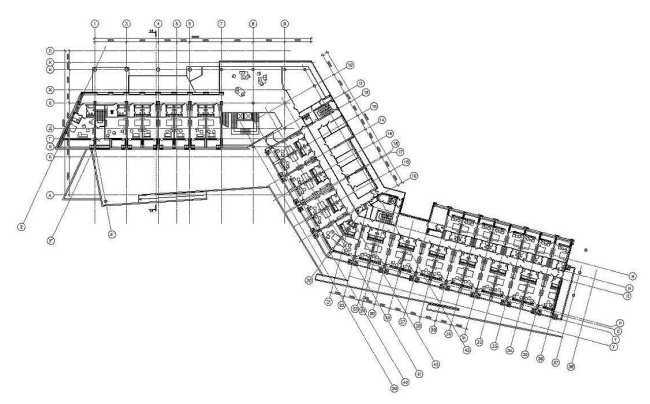
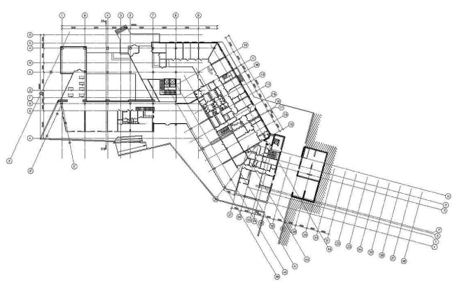
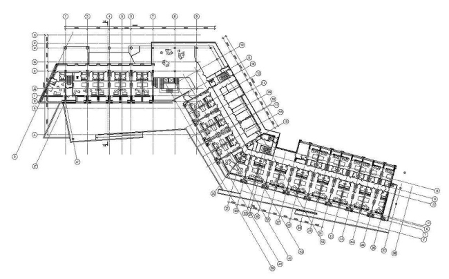
The broad zigzag of the main 3-storey building of the clinic is perpendicularly cut into the slope surface (difference in relief is considerable here,15 m, so the play with heights is reasonable). Massive plates of the concrete floors – a favorite Butko and Nadtochi’s technique, tested on countryside villages – roll down along the floors, break at different angles, go down to the ground by long rampants. They seem to have a geological nature, look like layers of some unknown chalky rocks, winded among hills and woods of common Russian landscape. Well, it will be obvious the stone zigzag is artificial: lines are quite straight, only they run somewhere all the time, stepping aside and leaning upon thin round “legs”, or pushing forward its terraces bravely hanging over the ground or over each other. Inside, there form a three lighted space of an atrium of complex construction due to the shift of floors, and general function areas group around there.
Terraces will be planted, and the authors designed there pastoral paths, stitch-paths which appear in summertime. This detail – not significant, but illustrative part of the project graphics – is fascinating and ads some faint beauty to the idea of green architecture, in its classical variant, already quite annoying for critics. Due to the paths the layers of terraces unfolded like a fan becoming a part of the field – like the Moscow region nature was handed on a platter to the guests of the wonder clinic and put by their doors.
Each of the six cottages on the other side includes the two 1-storey and 2-storey “blocked” halves”. Their spaces are almost equal, but they have different configurations and layouts. It gave the architect a nontrivial solution for the practical task: if a client rents the entire cottage they get a building with a mirrored layout, a common house with a public zone in the middle, a small living room and a few bed-rooms. Also this solution avoids a dull image of “blocked housing” – each building has two parts, but outside it is not obvious.
Anton Nadtochi said the prototype of each “half” was a standard house with two-sloped roof out of which were “taken out” (cut, in some places) separated volumes and so the traditional form became unrecognizable. Slopes of the roofs almost vertically grow into the ground or are almost flat, or join with long roof overhangs which are like heavy concrete hoods. The walls are thin and light, glass alternates with wood panels, brutal and textured stone pipes grow through the ephemeral transparent surfaces. It is like the houses are hatched and got frozen having no idea what was better for them – a Russian countryside plough share (on the roof), wooden balconies of a Swiss cottage or the classics of transparent modernism.
The clients wanted modern architecture, but not urban. That is natural – bucolic. The modern architecture likes natural shapes, sometimes it curves and bends too much, trying to imitate naturalness and uncreated. The project by Butko and Nadtochi is different. Remarkably, its naturalness is not gained by curving. But right angles can hardly be found there – there are plenty of bevels and slopes. It seems, natural (rather, geological) forms were cut. Narrowed to pieces, to simplify (and reduce the costs, important as well) or to demonstrate its artificial nature. It’s a kind of agreement between the “archi” and “tectonics”, human and ecological; architecture is on the edge between both. Most probably, the “golden mean” will work for the clients of this small health resort. The construction process is started and in a couple of years there will be first results. The cottages are already built, the finishing works will be started the next summer. Construction of the main building will probably be stated the next year as well.

None
None
None
None
None
None
None
None
None
None
None
None
None
None
None
None
None
None
None
None
None
None
None
None
None
None
None
None
None
None