Published on Archi.ru (https://archi.ru)

01.12.2009

Miraculous transformation of a house

Anna Gerasimenko
Architect:
Andrey Romanov
Ekaterina Kuznetsova
Studio:
ADM

Numerous brick palaces and castles built in provinces around Moscow in 1990ies are among symbols of the period. However the fashion on massive structures “styled after” went by fast and nowadays such houses are being reconstructed. ADM bureau has recently completed such project, where they managed to turn a pseudo classical private residence into a work of modern architecture.

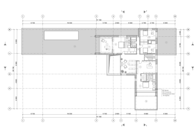
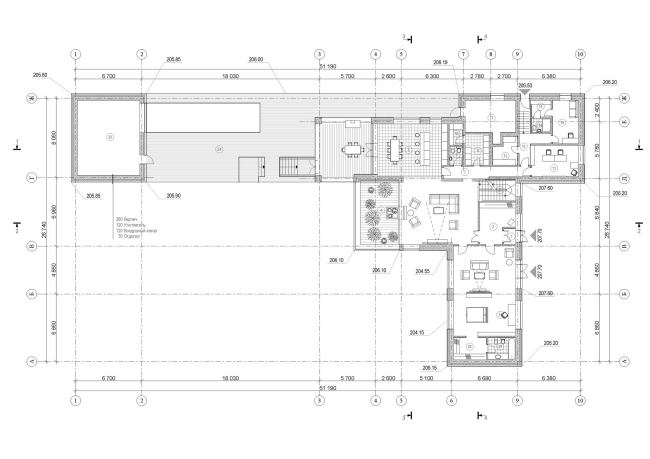
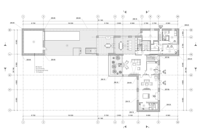
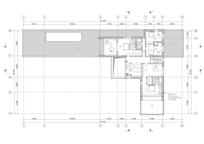
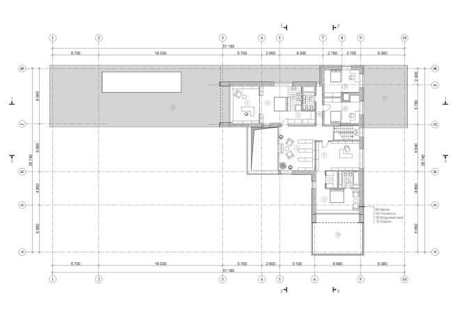
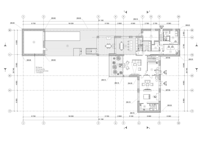
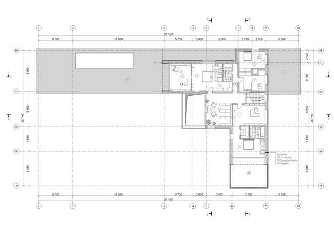
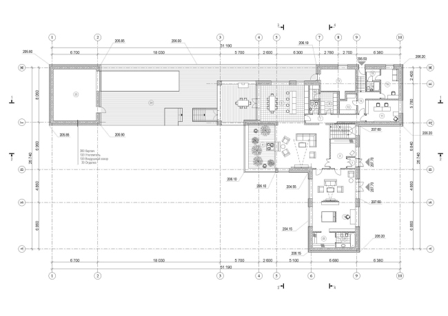
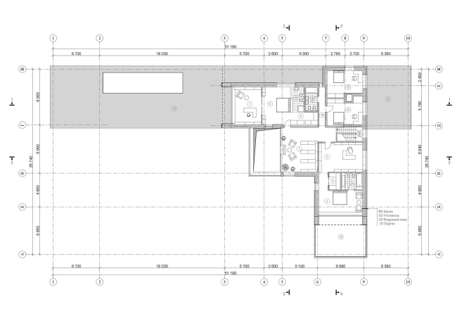
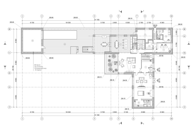
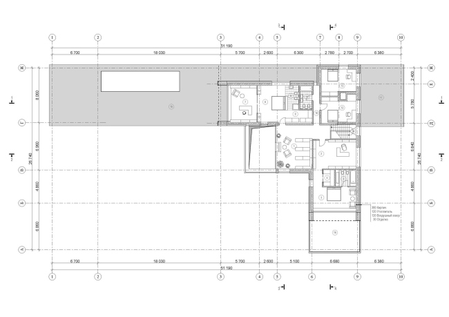
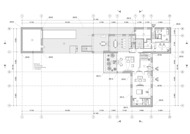
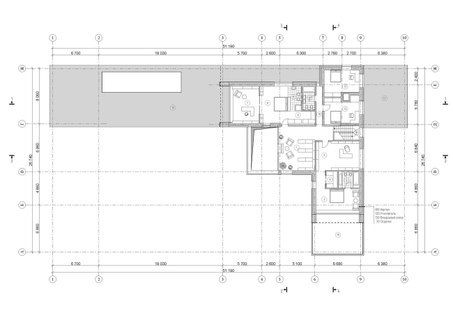
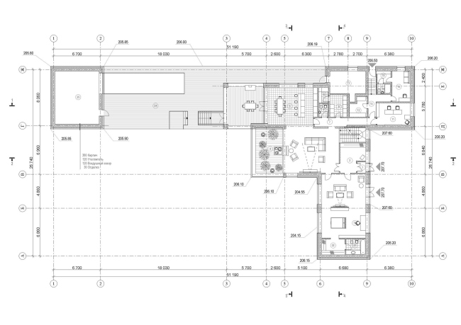
Numerous brick palaces and castles built in provinces around Moscow in 1990s are among symbols of the period. However the fashion on massive structures “styled after” went by fast and nowadays such houses are being reconstructed. ADM bureau has recently completed such project, where they managed to turn a pseudo classical private residence into a work of modern architecture. The architects developed three reconstruction variants, each had different vision of a countryside house. Importantly, each was based on the construction scheme of the existing building, the architects were interested in forms and the clients got a substantial saving. The client preferred variant that combines cubes of 1 and 2 storey volumes. Hip roofs are replaced by flat ones, bay windows are cut and the inner spaces will be totally changed according to the needs of the new owners. The new appearance of the cottage is so different that it is very hard to believe the house is the same comparing the picture of the building before the reconstruction and its 3D model. A green house is the centre of the composition of the new residence, it is a 2 storey glass prism fronting the building. The transparent volume is designed to improve insolation characteristics and accentuate open character of the renewed house. Besides, the huge glass “insertion” creates an interesting contrast of materials, as well as of open and sheltered spaces. The rest facades are finished with wood of light shade, visual airiness of which is balanced by the stripes of natural stone framing the roof.

None
None
None
None
None
None
None
None
None
None
None
None
None
None
None
None
None
None
None
None