Published on Archi.ru (https://archi.ru)

11.09.2009

Connectable architecture

Julia Tarabarina
Architect:
Sergey Kisselev
Studio:
Sergey Kisselev & Partners

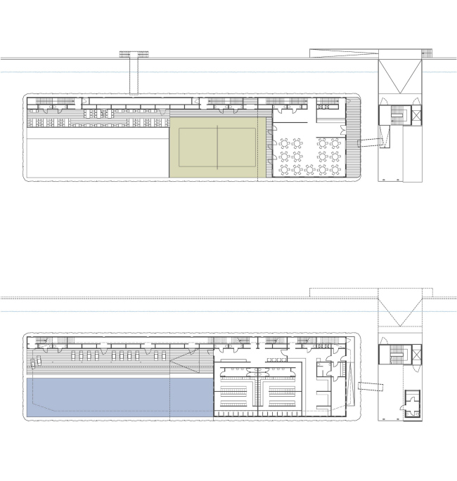
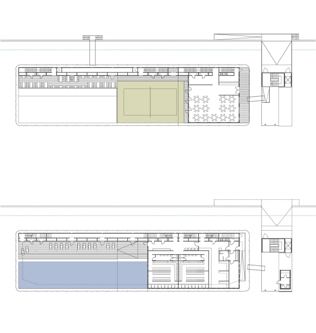
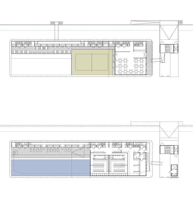
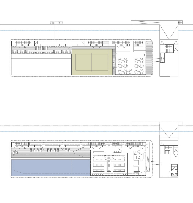
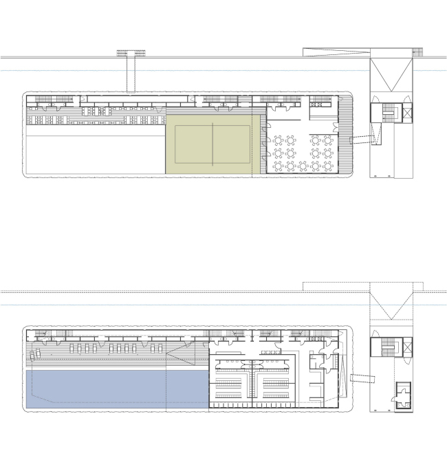
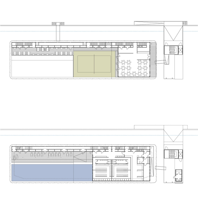
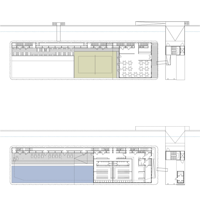
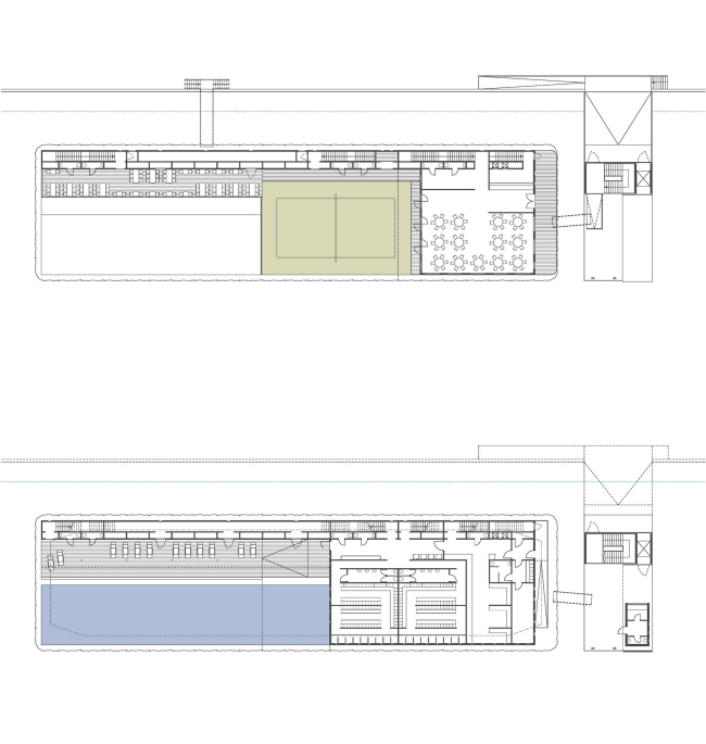
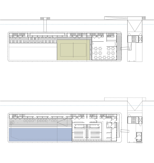
"Multipurpose series barge" is the name given by the architects of SK&P to their contest project for Moscow-river. They also compare it with a computer USB connection. The project has two parts. The main has building-modules on the floating platform which can be connected to the standard “port” of the pier. The second is responsible for the connection of the idea with a particular place – a wooden pedestrian quay and a light bridge over the Moscow River.

The authors emphasize that the main project feature is its standardized connection. Along thebank lines they suggest building landings with infrastructure (heat, electricity, water, sewerage system, communication services). It will be easy to dock standard constructions on floating barge basis to such landings. As well as undock, replace, dock two instead of one (each has two "ports" for connection). The building-"barge" also has its own dock - for small ships, yachts, or home river transport. Thus connecting with a standard dock, it creates its own but smaller one. This is not all about the standardization. The floating construction is located on a standard barge-platform and is filled with factory-made elements which determine its function. Outside the parallelepipeds of multipurpose modules of USB-“barge" will be covered with a transparent metal grid, with some space before the walls. Its cold shade and semitransparent skin resembles water surface, this texture is designed to lighten the volumes visually. The grid will have large icons telling the function of a module. By day everything will look simple, but at night USB boxes will be illuminated and turned into media screens, lighting up the city and decorating the river.

None
None
None
None
None
None
None
None
None
None
None
None
None
None
None
None
None
None
None
None
None
None
None
None
None
None
None
None
None
None