Published on Archi.ru (https://archi.ru)

21.09.2009

Special case

Anna Martovitskaya
Architect:
Sergey Skuratov
Studio:
Sergey Skuratov architects

In 2001 there was installed a building with remarkable rounded facade by Sergei Skuratov’s project along Burdenko street, which joins the Garden Ring and Hamovniki. Today "Sergei Skuratov Architects" have another client and different requirements, but the second construction will be located almost opposite to the first one, and soon Burdenko street will gain not only a new building but a very interesting dialogue of the two creations belonging to the same master.

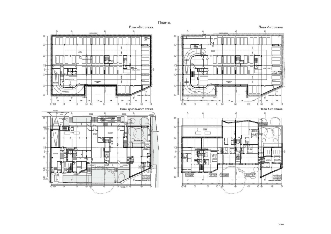
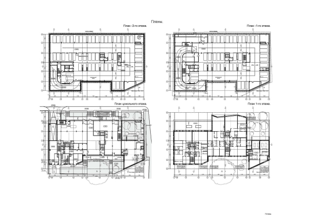
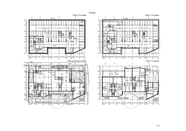
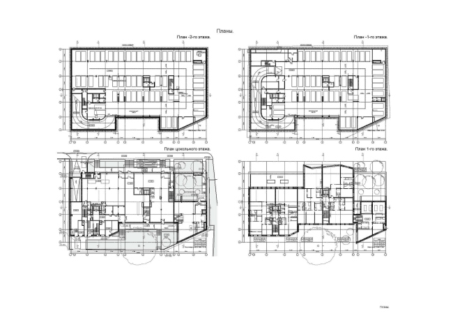
From the west the building site borders with the walls of Accounts Chamber, from the north it is limited by Burdenko street red line and from the east and the south – by the existing office buildings. All the trees growing on the site were preserved - a few birch-trees and maple with a gorgeous crown. Along the western border Skuratov designed a garden, in terraced landscape of which a 2storey villa is inserted. Actually it is a part of the residential complex, but from Burdenko street this modest volume looks like a separate structure. In the central part of the site there is a 5storey section designed in the scale of the entire street, 6 meters deeper in the site there is a 10storey tower. The middle construction has fully glassed basement over which console-wise there are hanging the four floors. However, the horizontal division of the facades is deliberately enlarged, so the five-story volume looks at least as 3storey one, and the tower removed deep in the site looks like a 5storey one. Top of the tower fronts the centre. At the level of the last three floors Skuratov extended and slightly curved the northern facade – there shaped a kind of hood inner side of which is entirely glassed. Thus, the architect rid the apartments of the upper floors of the view of windows of Account Chamber and gave a beautiful scenery of the historical center of Moscow. From the other point, this solution can be interpreted as a nod of the new building towards the other Skuratov object along Burdenko street, which is located just diagonally and stands visible to the half-turned tower. This bright compositional element sets the relief of the complex facades: some windows of lower floors are lightly concealed into the facade which open with wide vertical jambs.

None
None
None
None
None
None
None
None
None
None
None
None
None
None
None
None
None
None
None
None
None
None
None
None