Published on Archi.ru (https://archi.ru)

13.07.2009

Mitigating Contrast

Anna Gerasimenko
Architect:
Andrey Romanov
Ekaterina Kuznetsova
Studio:
ADM

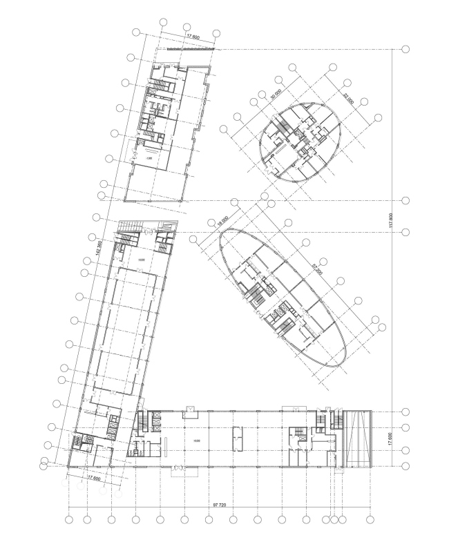
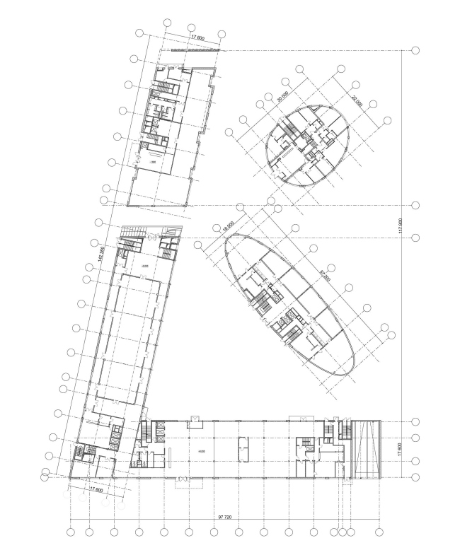
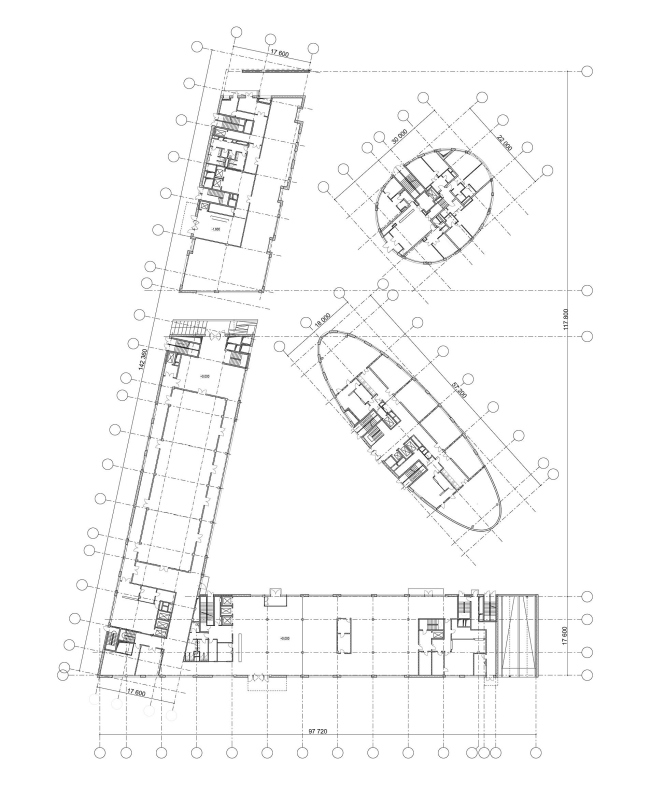
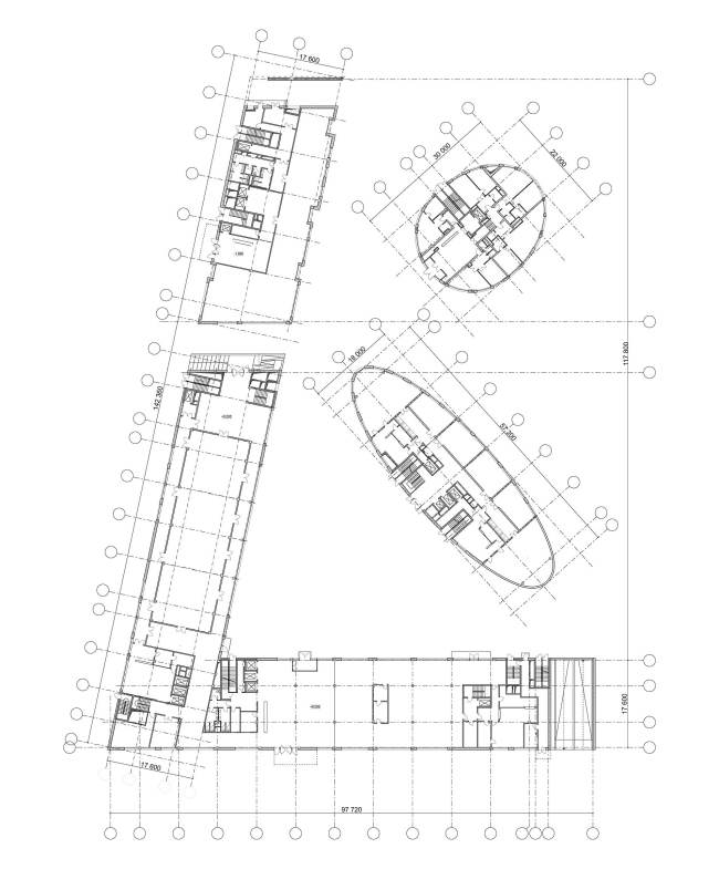
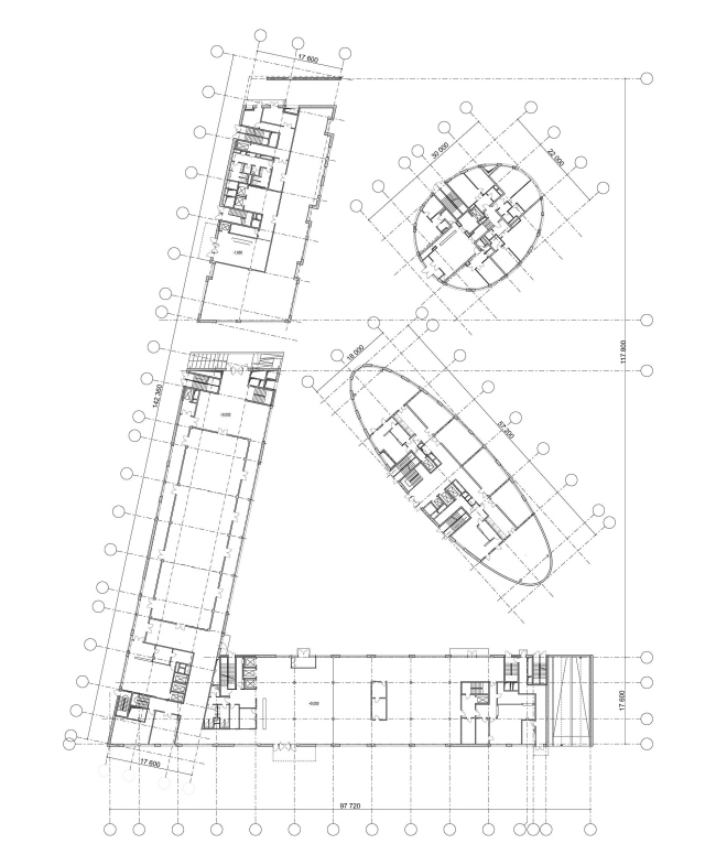
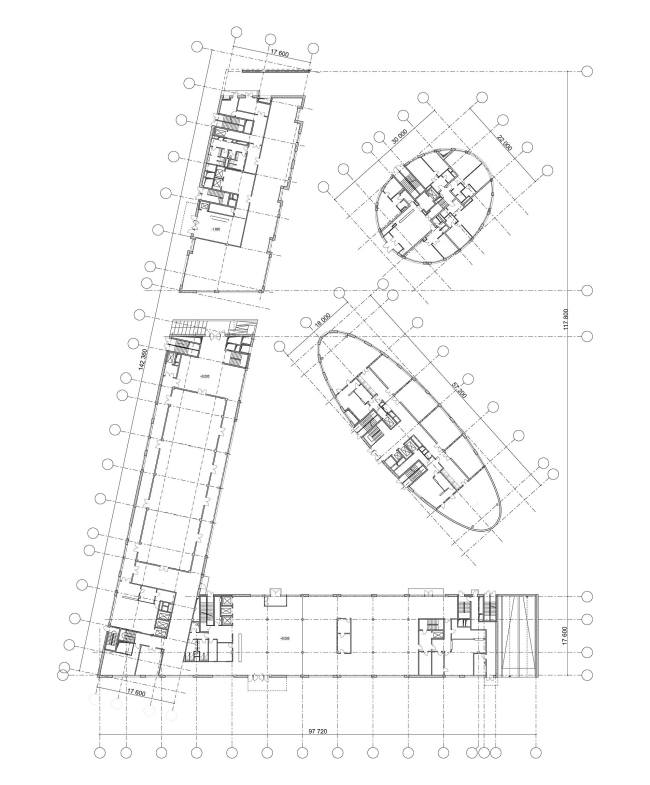
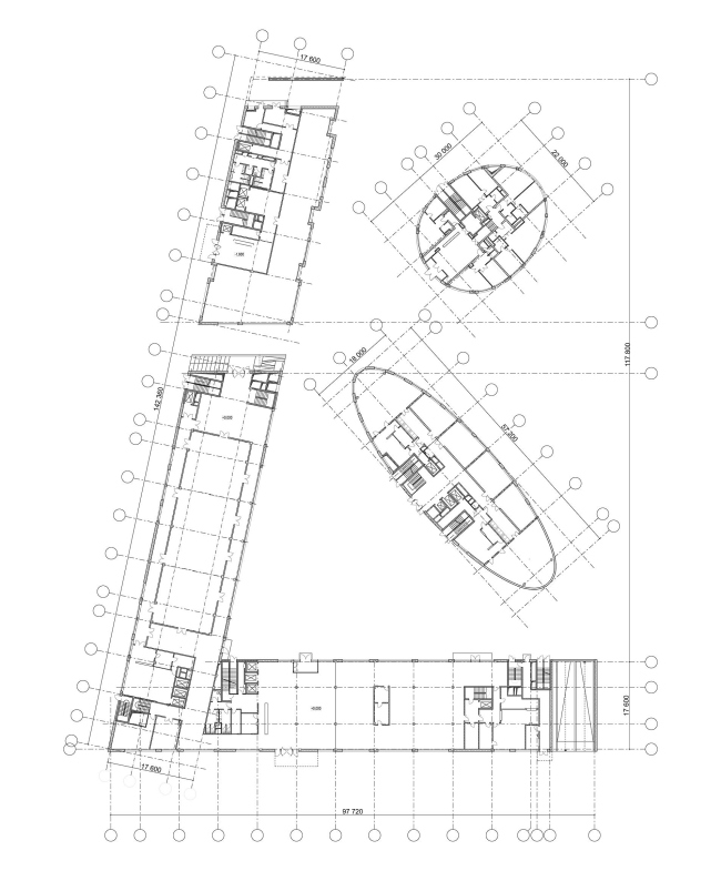
Green spaces are very valuable in large cities. ADM bureau project of a mixed-use complex which includes a hotel, apartments and office spaces is being completed within one of such "oases" in Moscow, on the bank of Khimkinsky water basin.

The site is located between “Yacht City” by Nikolai Lyzlov, and water stadium "Dinamo" of 1930 by Gennady Movchan, which today serves as a yacht club. Considering this it was not easy to design a project. The water stadium is located quite at a distance, but the "Yacht City" is separated from the site just by one street. The future complex is two times smaller than its "giant-neighbor", and it opposes its cold glass and concrete with warm terracotta hues: light beige and brown. However, the two constructions are stretched strictly parallel to the “Yacht City” and head from the avenue to the bank of the water basin under the same slight angle, forming a new street together with its neighbor. They repeat the direction given by "Yacht City” and due to the stretched volume the new hotel complex separates off from the neighbor, making a solid wall between them. Similarly, it separates off from the Leningradka - the two buildings together shape “Ô isolating the inner territory and protecting it from the “pressure of city. Within there is a riverside park where another two buildings will be built: a hotel and apartment building. In contrast to the strict geometry of the external blocks, they are of smooth elliptical shape. These are the "two different architectures - says one of the leaders of the Bureau ADM Andrei Romanov – outside there is futuristic, rough and inside there is natural and soft inside”.

None
None
None
None
None
None
None
None
None
None
None
None
None
None
None
None