Published on Archi.ru (https://archi.ru)

10.04.2026

Doubles Match

Alyona Kuznetsova, Julia Tarabarina
Architect:
Vladimir Plotkin
Dmitry Bush
Studio:
Arena
Creative Union ‘Reserve’

The architecture of the Tennis Palace built in Luzhniki Olympic Complex, designed by Arena Design Institute, was shaped by three factors: the proximity of the brutalist Druzhba Arena, the closeness of the Moskva River and the metro bridge overpass, as well as the specifics of the function – tennis courts require large spans, abundant light, yet at the same time protection from direct sunlight. The architects divided the building into several blocks, playing on contrast, which is further emphasized by the façades developed in collaboration with TPO Reserve and Vladimir Plotkin.

Positioned as the largest tennis complex in Europe, the new Tennis Palace holds its own among the facilities of Luzhniki. The imposing building occupies the site of former outdoor courts, next to the legendary “shell” – the Druzhba sports hall, built for the 1980 Olympics as an homage to Rome’s Palazzetto dello Sport.

The proximity to this expressive brutalist structure – reopened in 2024 after a lengthy reconstruction period – was one of the key influences on the project. Other important factors included the nearby river, the functional requirements, and the elongated site stretching for more than 300 meters along the metro bridge overpass.



The general designer was the Arena Design Institute, responsible for the building’s overall spatial and planning concept, as well as the design and working documentation. The façade solutions were developed jointly with Vladimir Plotkin and TPO Reserve.

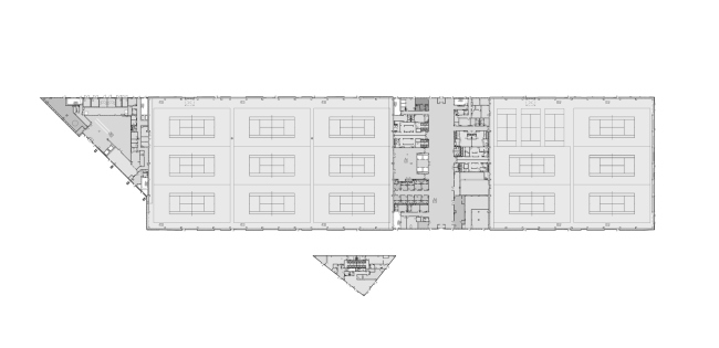
In accordance with the building’s “technology”, it is divided into four major blocks. Two of these blocks are “sports” volumes housing various types of courts: for tennis and table tennis, badminton, squash, and the increasingly popular padel. Natural light enters through skylights and full-height glazed façades that stretch for the entire height of the building. Their structures respond to the intensity of sunlight, preventing direct rays from interfering with play. Artificial lighting is integrated into the system of sawtooth rooflights. Each court is equipped with a video analytics system, and, should such a need arise, the halls can also be transformed to host competitions.



The other two blocks, rising to four and five stories, accommodate supporting functions. One is located between the courts and includes locker rooms, a fitness center, a swimming pool with a spa area, as well as a healthy-eating café, a sports shop, and administrative spaces. The second block, closer to the Vorobyovy Gory (“Sparrow Hills”) Metro Station and facing the river embankment, is designed for a broader audience. Hence, it houses a large panoramic café, a business center, and a range of services such as massage, rehabilitation, and specialized sports training. In both blocks, spaces are organized around atriums of complex geometry.

Finally, the complex is further extended by outdoor courts on the adjacent site, served by a small triangular “wing” with locker rooms and a very popular café – where visitors can enjoy their table while watching the game.



Each type of block has its own architectural expression. The “sports” volumes are more elongated, rectangular in plan, with sculptural silver-gray façades. The “auxiliary” blocks are darker in color and more dynamic in form: a wedge facing the Moskva River and a truncated pyramid positioned at the center of the building.

The reverse slope of these volumes projects boldly over the main entrances – the recessed loggias are carved into the slanted glass façades.





The glass prism is cut not only by the entrance recesses but also by three (!) “loggia” balconies. One can’t help but wonder how often these balconies will actually be used – especially in our unpredictable climate. And yet, in recent years, terraces of all kinds have become very popular in Moscow. So perhaps these will be opened as well? In any case, it’s good that they are there. These incisions lend the large, monolithic volume a certain semblance of a “facial expression”, as if the building  were observing its surroundings – an anthropomorphic quality that, however, does not diminish its monumental presence.



The large scale – dictated, as mentioned, by the size of the complex – is further emphasized in the main “sports” façades. These facades clearly take cues from the Druzhba Arena: broad facets of silvery metal, alternating with calm bands of glass, project far beyond the surface, forming an additional sculptural shell that envelops both the side elevations and the “fifth façade” – i.e. the roof. The difference is that in the case of Druzhba, the faceted hollow metal forms create spider-like “legs” converging at the top; while here the building is not centralized but elongated, so the metal elements spread out in a measured, picturesque rhythm. On the longitudinal façades, the metal pylons are united by a continuous projecting “crease line” running along their entire length – rising toward the center and descending toward the edges, as if we were looking at connecting rods of some kind of giant mechanism, half-hidden underground… frozen after having “pushed” the main entrance block up to the surface.



The façades, however, are only the framework – the intended dynamism truly unfolds on the roof. Here, the metal bands of the sawtooth rooflights rise in asymmetrically alternating “shed” forms with perforated surfaces. The geometry is essentially the same as on the façades, but stretched further and without a unified ridge line – on the contrary, it resembles a kind of “undulating sea”.

As a result, the alternation of metal and glass, along with the large ribbed projections, wraps the building on three visible sides. In this case, the “fifth façade” is especially important, as it is clearly seen from the overpass of Vernadsky Avenue. If the facets of the Druzhba Arena converge into a bundle, here the planes instead “ripple” evenly. Perception from a moving car further enhances the sense of potential motion.



As mentioned earlier, the artistic treatment of the façades was developed by TPO Reserve, which is well familiar with the site: in 2015, its design for a new building of the Russian Olympic Committee, located just north of the Tennis Palace, won an invitation-only competition, even though it has not yet been implemented.

A pattern of intersecting lines is applied over the metal panels – according to the architects, these trace the trajectories of tennis balls. The lines break expressively across the panel edges, merging graphic and three-dimensional linearity. Like the ribs themselves, they reinforce the unity of the metal mass, “sliced” into vertical segments. In this way, two architectural themes popular in recent years coexist within a single volume: the pylon rhythm of a peripteral structure and the enveloping “cocoon” formed by the sectional layering of large surfaces.



It must be said that the “cocoon” – a motif widespread in 21st-century sports architecture – ultimately prevails here. One might even imagine the building as a giant caterpillar, heaving its segmented body before transforming into a chrysalis and coming to rest. In that sense, the large asymmetrical slopes at the southern end by the Moskva River become not only an entrance portal, but also its “mouth” – or, conversely, a kind of battle “horn.”

Still, let’s not overemphasize such “resemblances” – if they are present at all, they exist in a highly generalized form, with the rest supplied by the viewer’s imagination. Yet, on the other hand, it is interesting to observe how that imagination works...



Two final observations. First, the silvery metal with sweeping graphic lines and the glass with circular prints – again evoking tennis balls – are very, very common devices of recent decades. Unfortunately, this gives a certain a priori drawback: they are immediately legible at a glance and tend to place the building somewhere in the early 2010s. That said, it is worth remembering that the project was initiated back in 2016, which is already quite some time ago. Second, in the design renderings the glass of the prismatic volumes appeared more transparent, and the “strings” of light circles had a more pearlescent quality. Presumably, these volumes were meant to resemble the “rustling curtains” of the 1980s – but in reality, due to the darker tint, they turned out more solid and, hence, more brutal. Rather than engaging the visitor playfully, they seem to observe them from the dark recesses of their eye-like terraces.

That said, in most other respects the execution – including the façades – has been carried out at a high level: the lines, folds, joints, and edges are all precise, both on the sides and on the roof. The building is crisp and, thanks to the faceting of large planes, sculptural – yet restrained. Which feels entirely appropriate given its enormous scale (surpassed only by the main Luzhniki Stadium) and its location along one of Moscow’s major thoroughfares.

Tennis Palace in Luzhniki. Master plan
Tennis Palace in Luzhniki. Master plan
Copyright: © Arena Design Institute
Tennis Palace in Luzhniki. Plan of the 1st floor
Tennis Palace in Luzhniki. Plan of the 1st floor
Copyright: © Arena Design Institute
Tennis Palace in Luzhniki
Tennis Palace in Luzhniki
Copyright: © Arena Design Institute
Tennis Palace in Luzhniki Copyright: © Arena Design Institute
Tennis Palace in Luzhniki
Copyright: © Arena Design Institute
Tennis Palace in Luzhniki. Facade Copyright: © Arena Design Institute
Tennis Palace in Luzhniki. Facade
Copyright: © Arena Design Institute
Tennis Palace in Luzhniki Copyright: Photograph © Mikhail Mulach / provided by Arena Design Institute
Tennis Palace in Luzhniki
Copyright: Photograph © Mikhail Mulach / provided by Arena Design Institute
Tennis Palace in Luzhniki Copyright: Photograph © Mikhail Mulach / provided by Arena Design Institute
Tennis Palace in Luzhniki
Copyright: Photograph © Mikhail Mulach / provided by Arena Design Institute
Tennis Palace in Luzhniki Copyright: © Arena Design Institute
Tennis Palace in Luzhniki
Copyright: © Arena Design Institute
Tennis Palace in Luzhniki Copyright: Photograph © Mikhail Mulach / provided by Arena Design Institute
Tennis Palace in Luzhniki
Copyright: Photograph © Mikhail Mulach / provided by Arena Design Institute
Tennis Palace in Luzhniki
Tennis Palace in Luzhniki
Copyright: © Arena Design Institute
Tennis Palace in Luzhniki Copyright: © Arena Design Institute
Tennis Palace in Luzhniki
Copyright: © Arena Design Institute
Tennis Palace in Luzhniki Copyright: © Arena Design Institute
Tennis Palace in Luzhniki
Copyright: © Arena Design Institute
Tennis Palace in Luzhniki Copyright: Photograph © Mikhail Mulach / provided by Arena Design Institute
Tennis Palace in Luzhniki
Copyright: Photograph © Mikhail Mulach / provided by Arena Design Institute
Tennis Palace in Luzhniki Copyright: Photograph © Mikhail Mulach / provided by Arena Design Institute
Tennis Palace in Luzhniki
Copyright: Photograph © Mikhail Mulach / provided by Arena Design Institute
Tennis Palace in Luzhniki Copyright: Photograph © Mikhail Mulach / provided by Arena Design Institute
Tennis Palace in Luzhniki
Copyright: Photograph © Mikhail Mulach / provided by Arena Design Institute
Tennis Palace in Luzhniki Copyright: Photograph © Mikhail Mulach / provided by Arena Design Institute
Tennis Palace in Luzhniki
Copyright: Photograph © Mikhail Mulach / provided by Arena Design Institute
Tennis Palace in Luzhniki Copyright: Photograph © Mikhail Mulach / provided by Arena Design Institute
Tennis Palace in Luzhniki
Copyright: Photograph © Mikhail Mulach / provided by Arena Design Institute
Tennis Palace in Luzhniki Copyright: Photograph © Mikhail Mulach / provided by Arena Design Institute
Tennis Palace in Luzhniki
Copyright: Photograph © Mikhail Mulach / provided by Arena Design Institute
Tennis Palace in Luzhniki Copyright: Photograph © Mikhail Mulach / provided by Arena Design Institute
Tennis Palace in Luzhniki
Copyright: Photograph © Mikhail Mulach / provided by Arena Design Institute
Tennis Palace in Luzhniki Copyright: Photograph © Mikhail Mulach / provided by Arena Design Institute
Tennis Palace in Luzhniki
Copyright: Photograph © Mikhail Mulach / provided by Arena Design Institute
Tennis Palace in Luzhniki
Tennis Palace in Luzhniki
Copyright: Photograph © Mikhail Mulach / provided by Arena Design Institute