|
“A house in the spirit of Wright”, as architect Roman Leonidov describes it, pointing to his source of inspiration, was built on a challenging wedge-shaped site. To achieve a sense of intimacy and secure good views from the windows, the entire volume had to be shifted toward the far boundary, turning the house “back” to the neighboring mansions. The main façade demonstrates time-tested techniques often employed by the company: articulated horizontals, a weightless roofline, and a triad of materials – light plaster, dark slate, and warm wood.
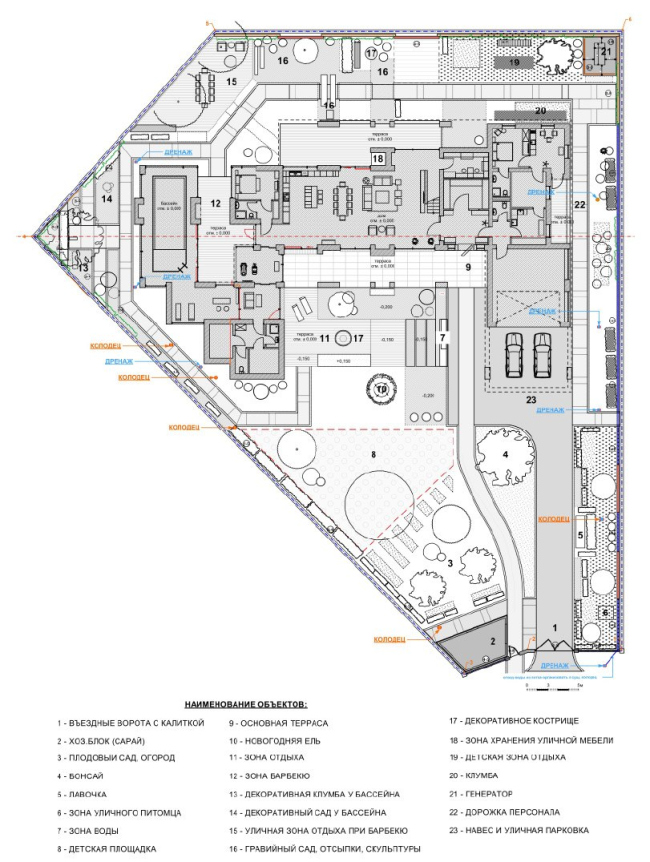
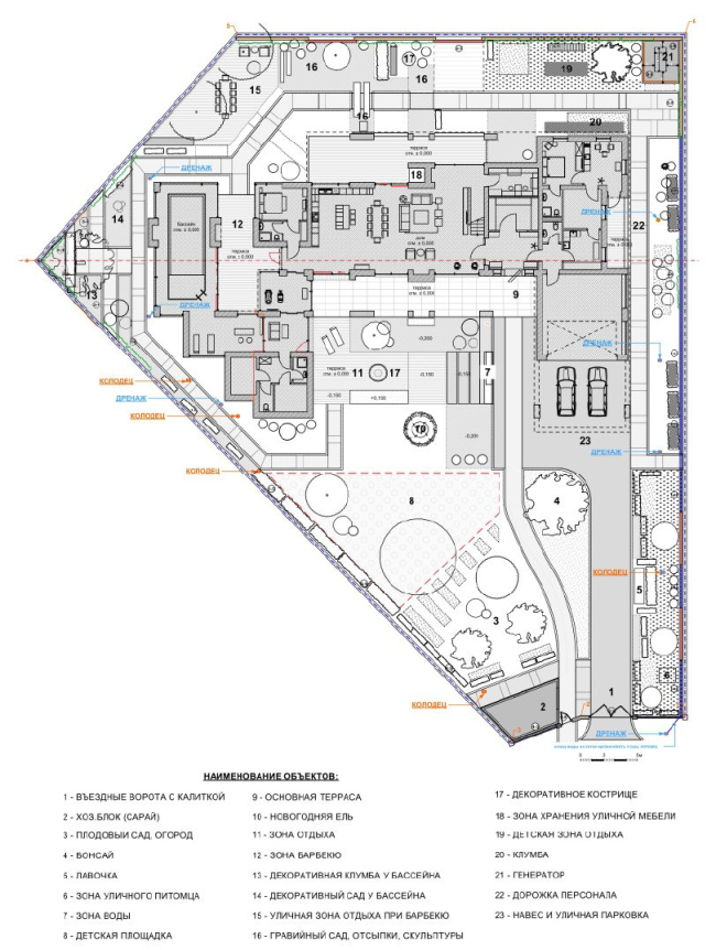
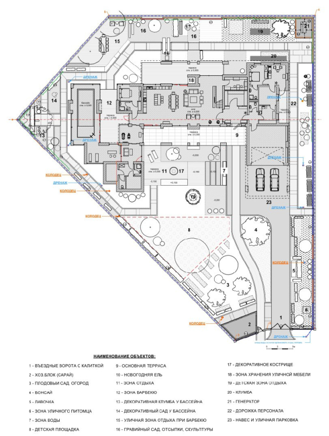
The house was designed for a family of four in one of the villa communities outside Moscow. The site had a decisive influence on the architectural solutions. On the one hand, its complex wedge-like shape and relatively modest size – 2,400 square meters. On the other, highly visible neighboring mansions, built with variety and imagination in accordance with the values of the late 1990s and early 2000s. In one of the photographs, for example, one can spot a clock tower with a spire – nothing less.

Under these circumstances, the architect needed to accommodate all the functions requested by the client, ensure good views from the windows, and create intimate outdoor areas. At the same time, he had to strike the right artistic note: the house was to be contemporary – but not excessively so.
To resolve these challenges, the entire built volume was pushed toward the far edge of the plot, while the required setback zones were transformed into a variety of outdoor leisure spaces. In this way, the house turned its “back” to the neighbors, and the windows of the living room and bedrooms opened onto the courtyard. The driveway inevitably entered the panorama, but its presence was mitigated through landscape design.


The house acquired a clear tripartite composition, best perceived in a frontal view from the large courtyard – in fact, this is its principal vantage point.

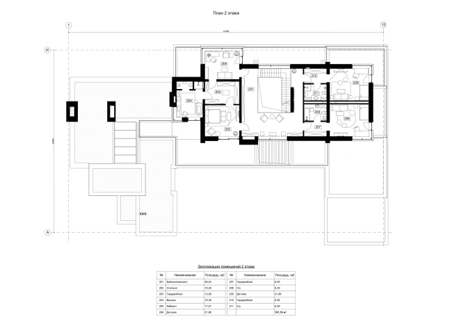
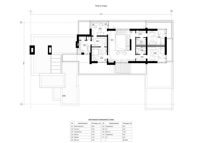
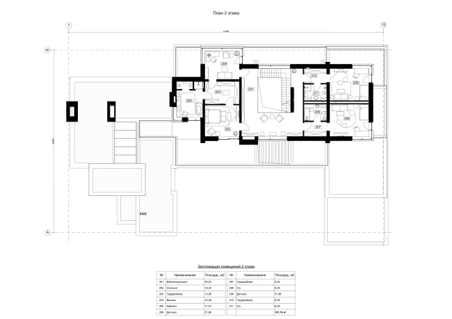
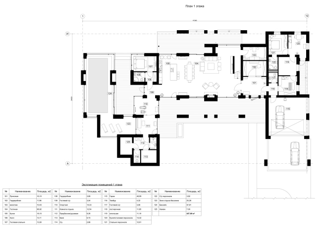
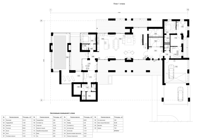
At the center stands a two-story volume containing the main living spaces. The ground floor accommodates a spacious living room; the upper floor, measuring 180 square meters, houses three bedrooms with en-suite bathrooms and a study. Each room has access to a balcony or terrace, reinforcing the connection with nature. The living room features several such openings on two sides of the house: the space is permeable, open to the landscape, and filled with light.
The block to the right of the central volume is “technical”: it houses the boiler room, laundry, wine cellar, walk-in wardrobe, as well as staff accommodation.
The block to the left is intended for leisure and recreation. It contains a gym, a traditional Russian banya, a hammam, and a 4×10-meter indoor swimming pool, which the client decided to add during construction. Between the pool – which overlooks a decorative garden – and the guest bedroom, a small atrium was formed, oriented toward the outdoor barbecue area.


The bath complex and the garage block create flanking wings that further enclose the main terrace. In front of it stretches a grand courtyard which, as the trees grow, will become increasingly intimate. The space between the house and the fence is also functionally programmed: it accommodates a barbecue area, a decorative fire pit, a children’s play area, and even a small stage intended for home performances.


In this project, Roman Leonidov employs several well-tested techniques that may be considered characteristic of his work: articulated horizontals, a “floating” roof, and a triad of finishing materials. By the author’s own admission, the inspiration lies in the legacy of Frank Lloyd Wright.
As mentioned earlier, the principal and defining view of the house is frontal, from the courtyard side: other vantage points simply do not allow one to grasp it in its entirety. The first thing the eye registers is three nearly continuous horizontal lines, emphasized in light plaster. The lowest and broadest line separates the more substantial ground-floor volume. The uppermost line marks the boundary of the house, while a thinner intermediate band highlights the strip glazing that brings additional daylight into the upper-level spaces and, above all, visually lightens the junction between the wall and the pitched roof, rendering the latter almost weightless.

The white cantilever of the ground floor rests on fairly massive columns clad in graphite slate. Yet even here there is an element that alleviates the sense of heaviness: the structural core of the column is left exposed, creating a sliver of air at the point of connection. The contrast accentuates the structural logic and tectonics of the building. Warmth is introduced into the black-and-white pairing of plaster and slate by wooden plank cladding.


The clarity of the façade composition along the site boundary is somewhat disrupted by the projecting volume of the master bedroom block, yet the overall logic remains legible. Here, the verticals are emphasized in gray – slate or metal. In the interior, designed by Elena Volgina, the same materials used on the façades reappear: for example, slate accentuates the fireplace chimney.

The house was designed in 2016, while construction was completed only recently. Paradoxical as it may seem, building a “family nest” can take longer than erecting a multi-unit residential complex – the process is slowed by approvals and verifications at nearly every stage. Yet the solutions embedded by the architect have given the house a timeless quality, and the carefully considered zoning ensures comfort for everyday family life. A house in the spirit of WrightCopyright: Photograph © Roman Leonidov
A house in the spirit of Wright. The master planCopyright: © Roman Leonidov Studio
A house in the spirit of WrightCopyright: © Roman Leonidov Studio
A house in the spirit of WrightCopyright: Photograph © Roman Leonidov
A house in the spirit of Wright. Plan of the 1st floorCopyright: © Roman Leonidov Studio
A house in the spirit of Wright. Plan of the 2nd floorCopyright: © Roman Leonidov Studio
A house in the spirit of WrightCopyright: Photograph © Roman Leonidov
A house in the spirit of WrightCopyright: Photograph © Roman Leonidov
A house in the spirit of WrightCopyright: Photograph © Roman Leonidov
A house in the spirit of WrightCopyright: Photograph © Roman Leonidov
A house in the spirit of WrightCopyright: Photograph © Roman Leonidov
A house in the spirit of Wright
|