|
In the town of Innopolis, a satellite of Kazan, the first 4-star hotel designed by MAD Architects has opened. The interiors of the hotel combine elegance with irony, and technology with comfort, evoking the atmosphere of a computer game or maybe a sci-fi movie about the near future.
Editor’s Note
The people who are creating the technologies today that could change the world tomorrow live and think differently than most of us. Consciousness begins to shape existence, including the interior design of the spaces where innovators work and relax. Their needs, tastes, and habits don’t differ much from ours in terms of basic ergonomics, but their sense of beauty is formed from images borrowed from computer games and other areas of the digital environment. This process – bringing into reality things that were once conceived for the virtual world – opens up vast opportunities for creative exploration, perhaps even for the emergence of a whole new style. A striking example of this search for a new visual language can be found in the interior design of the Muse of Tech Innopolis hotel near Kazan, designed by MAD Architects.
Description provided by the architects
Muse of Tech Innopolis 4* is the first 4-star hotel in the Innopolis special economic zone, created for tech-savvy travelers and IT professionals. MAD Architects developed the architectural concept, drawing inspiration from the rhythms of the digital world and the aesthetics of functional minimalism.

Business Task
The hotel is geared towards IT specialists, business travelers, and participants of professional events. Its spaces support the core processes of booking, check-in, room service, event organization, and dining. A lot of attention has been paid to creating comfortable conditions for both work and recreation, which is fully reflected in the carefully designed infrastructure.
The project combines comfort, advanced technologies, and adaptability: everything here is attuned to the rhythm of modern professionals. From architecture to digital infrastructure, the spaces are intuitive, flexible, and ergonomic. Muse of Tech Innopolis 4* is not just a place to sleep but a full-fledged ecosystem for work, communication, and life among the residents and guests of the IT community.

Design Concept
The design of Muse of Tech Innopolis 4* is built around technology, ergonomics, and visual clarity. The architects drew on the identity of Innopolis as a digital city and created interiors where minimalism meets futurism, with every element carefully considered.
The hotel is designed for digital nomads and digital professionals: guest rooms and public spaces feature adaptive lighting, concealed storage systems, power outlets at every seat, and fast charging stations for devices. A futuristic atmosphere is achieved through metallic finishes, clean-lined forms, and precise pinpoint color accents. As for the public spaces – from multifunctional conference halls to gastronomic venues with a signature restaurant and a brewery – they turn the hotel into a whole new urban destination.
The interiors of the rooms are conceived with long-term stays in mind: zoning encourages calm and privacy, while the building materials and layouts highlight the idea of practical comfort.
At the core of the design logic, there is a pursuit of clarity and ergonomics. All of the storage systems are integrated as concealed modules: handles are built into the facades, and nothing protrudes beyond the geometry of the volumes, creating a sense of “visual quiet”.
Lighting scenarios are also tailored to different needs: alongside general ambient light, each room includes spot and accent lighting. This configuration allows guests to create their own comfortable lighting environment – whether for work, relaxation, or trivial evening reading.
The project features numerous custom-designed elements, including light fixtures, furniture, and decorative structures, all developed specifically for this hotel. These pieces are placed in key areas of the complex, shaping a distinctive atmosphere and underscoring the individuality of the interior.

Spatial Organization
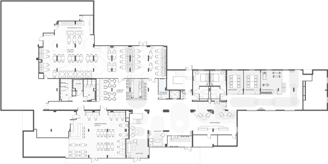
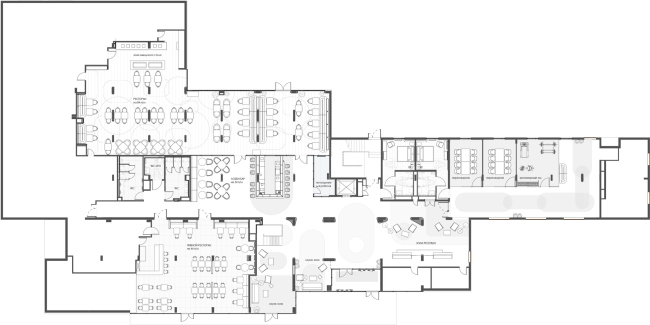
The spatial logic of Muse of Tech Innopolis 4* is based on the technological standards and operational principles of Kravt Hotels & Homes, ensuring flawless support for core hospitality processes – from accommodating guests to hosting business events.
The lobby and the entrance area are designed in the spirit of technological minimalism – restrained yet expressive. The space is built on a contrast of textures: columns clad in polished stainless steel reflect light with a soft glow, while the walls are painted in matte muted tones, creating a calm visual rhythm. Surfaces are pleasant to the touch, reinforcing the sense of comfort and thoughtful design. Clear lines of the architectural elements emphasize the structure of the space, and zoning is carried out in a concise, unobtrusive way – without overloading the visual field. This is a place where form serves function, and every detail extends the overall concept of technological comfort.

The hotel offers 44 rooms designed for 88 guests, with the possibility of accommodating three extra people. The distribution includes 24 standard rooms, 15 “superior standard” rooms, three two-room suites, and two specially equipped rooms for guests with limited mobility.
Workspaces are adapted for business meetings, hackathons, workshops, and technology events, providing a convenient environment for teamwork. They include a 197 square meter conference hall with an interactive video wall for presentations, as well as several meeting rooms. In addition, the hotel’s restaurants are equipped with multimedia systems and can be used as venues for presentations and informal business gatherings.

The hotel’s gastronomic offerings include a lobby bar, an 86-seat all-day-dining restaurant, and an innovative restaurant with its own brewery – set to become a future attraction for both guests and city residents. The restaurant is scheduled to open already in 2025. The hotel’s extensive infrastructure is further complemented by a fitness center and spacious parking. Thus, the zoning of the hotel is guided by functionality and the needs of its target audience, combining technology, comfort, and convenience for various business processes.

Technologies and Materials
The interiors make active use of wood-wool panels and metal acoustic elements, which create a comfortable sound environment while adding a contemporary texture to the space. Volumetric elements made with translucent fabric and integrated lighting introduce dynamism and produce an engaging light effect that shifts subtly depending on the time of day.
Intelligent lighting systems, integrated storage solutions, and the use of innovative materials shape a harmonious and high-tech atmosphere, perfectly suited to the work and leisure of IT professionals.
The hotel incorporates adaptive lighting scenarios, employing a variety of light sources (different types of fixtures, lamps, and adjustable intensity), which makes it possible to optimize illumination depending on the time of day and the functional purpose of the space. In work areas, bright directional lighting supports concentration and productivity, while in leisure and recreation zones, soft diffused light prevails, creating an atmosphere of comfort and relaxation. This approach to lighting highlights the flexibility and functionality of the interiors, aligned with the diverse needs of the guests.
To minimize background noise, the interiors utilize advanced sound-absorbing materials: acoustic stretch ceilings, wood-wool panels, perforated metal cassettes with acoustic fleece, as well as wall panels with complex geometry that effectively suppress echo. The combination of noise-absorbing surfaces with bold design accents creates not only a comfortable acoustic environment but also a visually expressive interior. Particular attention is paid to the soundproofing of guest rooms and conference halls, which is especially important for ensuring productive work and quality rest.
 Muse of Tech Innopolis 4*Copyright: Photograph © Andrey Artis /provided by MAD architects
Muse of Tech Innopolis 4*Copyright: Photograph © Andrey Artis /provided by MAD architects
Muse of Tech Innopolis 4*Copyright: Photograph © Andrey Artis /provided by MAD architects
Muse of Tech Innopolis 4*Copyright: Photograph © Andrey Artis /provided by MAD architectsMuse of Tech Innopolis 4*Copyright: Photograph © Andrey Artis /provided by MAD architectsMuse of Tech Innopolis 4*Copyright: Photograph © Andrey Artis /provided by MAD architectsMuse of Tech Innopolis 4*Copyright: Photograph © Andrey Artis /provided by MAD architectsMuse of Tech Innopolis 4*. Plan of the gound floor lobbyCopyright: Photograph © Andrey Artis /provided by MAD architects
Muse of Tech Innopolis 4*Copyright: Photograph © Andrey Artis /provided by MAD architectsMuse of Tech Innopolis 4*Copyright: Photograph © Andrey Artis /provided by MAD architectsMuse of Tech Innopolis 4*Copyright: Photograph © Andrey Artis /provided by MAD architectsMuse of Tech Innopolis 4*Copyright: Photograph © Andrey Artis /provided by MAD architectsMuse of Tech Innopolis 4*Copyright: Photograph © Andrey Artis /provided by MAD architectsMuse of Tech Innopolis 4*Copyright: Photograph © Andrey Artis /provided by MAD architectsMuse of Tech Innopolis 4*Copyright: Photograph © Andrey Artis /provided by MAD architectsMuse of Tech Innopolis 4*Copyright: Photograph © Andrey Artis /provided by MAD architectsMuse of Tech Innopolis 4*Copyright: Photograph © Andrey Artis /provided by MAD architectsMuse of Tech Innopolis 4*Copyright: Photograph © Andrey Artis /provided by MAD architectsMuse of Tech Innopolis 4*Copyright: Photograph © Andrey Artis /provided by MAD architectsMuse of Tech Innopolis 4*Copyright: Photograph © Andrey Artis /provided by MAD architects
|