Published on Archi.ru (https://archi.ru)

10.04.2025

The Blooming Mechanics of a Glass Forest

Julia Tarabarina
Studio:
ODA
APEX Project Bureau

The Savvinskaya 27 apartment complex built by Level Group, currently nearing completion on an elongated riverfront site next to the Novodevichy Convent, boasts a form that’s daring even by modern Moscow standards. Visually, it resembles the collaborative creation of a glassblower and a sculptor: a kind of glass-and-concrete jungle, rhythmically structured yet growing energetically and vividly. Bringing such an idea to life was by no means an easy task. In this article, we discuss the concept by ODA and the methods used by APEX architects to implement it, along with a look at the building’s main units and detailing.

The plot where the Savvinskaya 27 club residence is being built is a real find for premium real estate. It stretches along the embankment, offering river views, and its short side faces Novodevichy Drive, where the famous park with ponds by the convent begins – an ensemble protected by UNESCO and considered one of the most beautiful sites in Moscow.

In 2020, Level Group acquired the plot along with a former dormitory of the “Moskovsky Shelk” (“Moscow Silk”) factory – in the neighboring block, its revitalized buildings are now hosting the business center of the same name. In 2021, the developer organized a closed-door competition for the architectural concept; the participants list included de Architekten Cie, Arch(e)type, and UNK.

The winning project came from New York-based ODA, led by Eran Chen.

Savvinskaya 27 apartment complex by Level. Top: concept by ODA; bottom, left to right: concepts by de Architekten Cie, Arch(e)type, and UNK.
Savvinskaya 27 apartment complex by Level. Top: concept by ODA; bottom, left to right: concepts by de Architekten Cie, Arch(e)type, and UNK.
Copyright: © ODA, APEX


Even at first glance, it’s clear the project would not be the most economical or the simplest to execute – especially because of its façade. It features a voluminous “forest” of copper rods embedded in molded glass and, most strikingly, gigantic glass fiber reinforced concrete “sepals” that support the bay windows. Each bay window, with its slender stem-like support, asymmetrical “bowl” form, glass enclosure with copper detailing, and transparent railing, unmistakably resembles a flower.

Savvinskaya 27 apartment complex by Level
Savvinskaya 27 apartment complex by Level
Copyright: © ODA, APEX


Not a local flower, however – none like these grow in Russia’s temperate zone. Rather, it evokes an exotic jungle plant. Protrusions and recesses, bay windows and balconies are purposefully arranged asymmetrically in order to mask the building’s four-section structure. Three vertical copper recesses – essentially, “negative” bay windows, turned inward – establish a steady rhythm amid the asymmetry. One might mistake them for stairwells, but no, these are bedroom and living room windows; stairs and elevators are tucked inside to give the living rooms as much as possible sunlight exposure. These vertical elements lend the main façade a resemblance to early 20th-century income houses, creating a dialogue between the sculptural glass modernity and the traditional urban street line.

On the lower level, which houses the lobby and the city’s retail spaces, the voluminous “bowls” form a row, creating, on the one hand, a kind of colonnade with a stricter rhythm suitable for a ground floor, and on the other hand, echoing the asymmetrical supports above – “anchoring” the house like a cachepot or some curious kind of root system.

Savvinskaya 27 apartment complex by Level
Savvinskaya 27 apartment complex by Level
Copyright: © ODA, APEX


It is a bold design. Although curved glass is becoming increasingly popular in Moscow, here the sheer quantity of glass and rounded forms makes the entire building – at least on its three main sides – look like the work of a master glassblower or a crystalline cascade of champagne flutes. Walls are almost absent: in large part, the structure is transparent, emphasizing the levitating quality of the glass fiber concrete sepals that form the bay windows and balconies.

At the same time, copper is used throughout the transoms and opaque sections of the façade, giving the building a hint of retro-steam-punk and luxury at the same time. The smooth, sculptural “knuckles” of the balcony bowls also contribute to the sense of luxury – clearly sculptural, perhaps even in the spirit of Henry Moore.

Savvinskaya 27 apartment complex by Level
Savvinskaya 27 apartment complex by Level
Copyright: © ODA, APEX


Naturally, there are precedents, prototypes, and possible sources of inspiration for this building out there. Few will miss the reference to Thomas Heatherwick’s famous Pier 55 with its concrete “mushroom gardens”. However, mushroom-shaped concrete columns have been part of the architectural vocabulary since at least the early 20th century. And looking at this façade, who could fail to think of Gaudí’s Casa Milà? “Everything is different there”, yes, of course – but I insist that the idea has been developed in a similar spirit in our particular instance. There’s even a Gothic reference: think of the tulip-shaped bases of Gothic cathedral columns.

In Eran Chen’s own work, a precursor can be found in the 2019 project for a high-rise near the Post Office building in Rotterdam. There, the forms are more arch-like with bulky projections; here, bulky projections precede the arches – but the kinship is clear. What began there has found a continuation and a complete form here.

Savvinskaya 27 apartment complex by Level
Savvinskaya 27 apartment complex by Level
Copyright: © ODA, APEX


The bold ideas were brought to life by the architects of the Russian firm APEX, known for adapting international designs for Moscow: RED7, the Badaevsky Brewery redevelopment, and the GES-2 project are among their works. Over a year and a half, APEX developed the consolidated concept, produced detailed construction documents, and navigated the entire city approval process.

A single look at the façade, where glass fiber concrete elements are seemingly “sunken” into the glass, is enough to appreciate the meticulous and masterful design work.

At Savvinskaya, the APEX team was led by chief architect Svetlana Leontyuk.

 
Svetlana Leontuk, APEX Project Bureau
The bionic balconies and bay windows are, from a technical standpoint, a more complex version of a traditional suspended façade system. The load-bearing structure of the petals consists of cantilevered floor slabs or balcony slabs, from which the balcony and bay window railings “grow”. The “stems” of the petals are hollow.

The petals are made of glass fiber reinforced concrete (GFRC). This material makes it possible to create complex forms through a spraying method, achieving minimal weight and a reduced number of joints. A single decorative petal consists of four large-format elements. Each GFRC element is attached to the bottom and side surfaces of the protruding monolithic slab using complex three-dimensional metal substructures. Insulation is placed between the slab and the GFRC elements.

All the petals from the third to the sixth floor are the same size: this modularity helped reduce the cost of preparing molds and attachments. In determining the optimal placement of each petal, the window height on the floor below was taken into account – the floor-to-floor heights increase from 3.22 meters on the second floor to 4 meters on the sixth floor – as well as the effect of the sloped bay window volume on the half-bay.

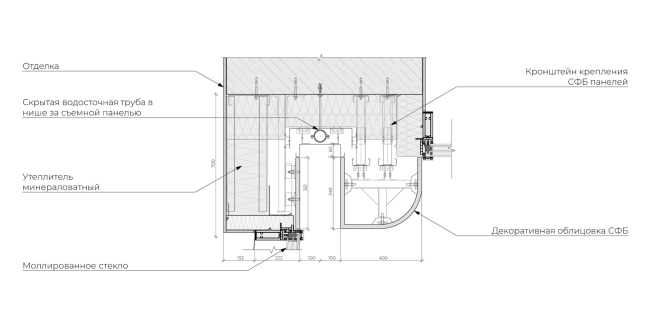
The effect of continuous bay window glazing, which transitions across the slab into the balcony railing on the next floor, is achieved through an intermediate part of the curtain wall system located at slab level, hiding the floor thickness, slab edge, and the ceiling void of the lower floor. Behind the insulated glazing unit, there is an enclosed cavity, the inner surface of which is lined with a metal sheet. This solution eliminates the need for stemalite and preserves the visual characteristics of the insulated glazing unit. The same technique is used where the curtain wall system transitions into the rooftop railing.


We thank the APEX architects for allowing us to showcase the final façade construction details. On the left – a section of a balcony’s glass fiber concrete base; on the right – a section of the inter-floor transom.

Savvinskaya 27 apartment complex by Level. The bay window node Copyright: © ODA, APEX
Savvinskaya 27 apartment complex by Level. The bay window node
Copyright: © ODA, APEX
Savvinskaya 27 apartment complex by Level. Balcony and bay window junction node Copyright: © ODA, APEX
Savvinskaya 27 apartment complex by Level. Balcony and bay window junction node
Copyright: © ODA, APEX


An especially effective idea was hiding the metal of the inter-floor transom behind glass at a slight distance, replacing the traditional tinted glass. Though the final effect will be seen only when the building is finished, even now it is clear that the metal behind the glass will have a “museum-like” quality, distinguishing it from typical opaque strips that you see here and there.

Savvinskaya 27 apartment complex by Level
Savvinskaya 27 apartment complex by Level
Copyright: © ODA, APEX


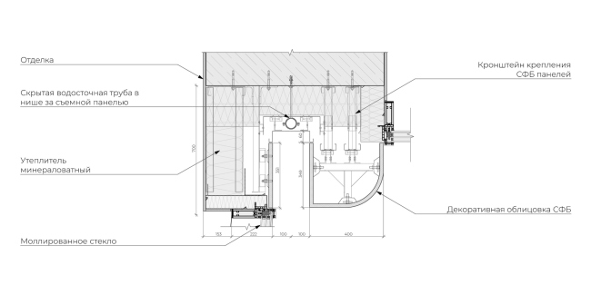
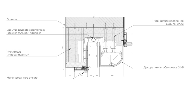
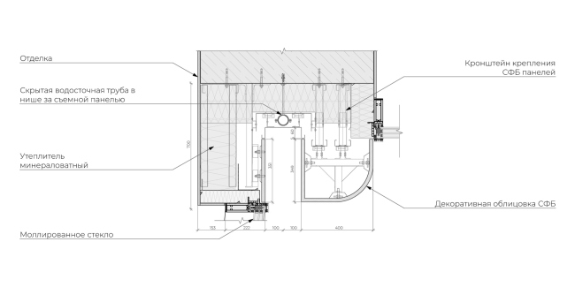
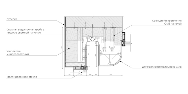
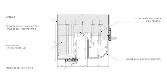
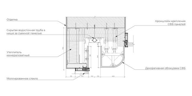
The bay windows precluded the use of standard vertical drainage pipes, APEX architects explain. Despite the relatively small size of the balconies – about two square meters – they have an organized drainage system: rain and meltwater are collected in a hidden drainage system rather than trickling down the façade. Water is drained through a flat funnel concealed beneath the stone-tiled balcony finish into the insulated roofing structure above each bay window, formed with wedge-shaped thermal insulation panels. The flat funnels are connected to vertical drainage pipes located in special façade recesses, which are covered by removable panels, which, in turn, allow for fully-fledged maintenance access along the full height of the water drainage system.

Savvinskaya 27 apartment complex by Level. Drainage joint.
Savvinskaya 27 apartment complex by Level. Drainage joint.
Copyright: © ODA, APEX


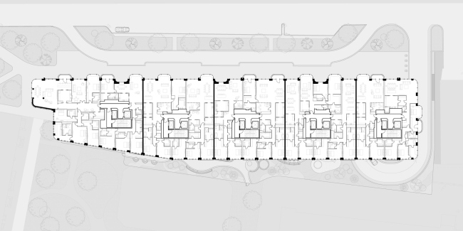
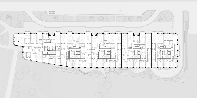
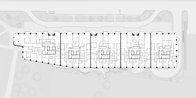
The building has 61 residential units in it, though they can be combined if needed. All the apartments are “deep-planned”: in dual-aspect units, the living rooms face the river, while the bedrooms face the courtyard. Spaces that do not require natural light (bathrooms, walk-in closets, sometimes kitchens) are deliberately placed closer to the building’s core – next to the stair and elevator shafts. There are a few apartments in the building that occupy only half the building’s depth, facing the river. Each unit has its own “petal” on the façade – a private balcony or bay window.

Savvinskaya 27 apartment complex by Level. Plan of the residential floor
Savvinskaya 27 apartment complex by Level. Plan of the residential floor
Copyright: © ODA, APEX


Part of the flat roof is designed as an accessible terrace, reachable by elevator for all the residents. To preserve this communal rooftop space, some technical equipment was moved underground. Remaining rooftop machinery is tucked away out of sight from the street. From the rooftop—and from every river-facing apartment – there are views of the Moscow City towers: though the Savvinskaya building is modest in height at just six stories, it forms a dialogue of “modern to modern” or, should I even say, “tech to tech”.

Nevertheless, the building fits comfortably into the classical block structure of Khamovniki, helped by the warm tones of the copper and the human-scaled height. It is an urban residence – luxurious, yes, but very much a part of the city fabric. Accordingly, it balances privacy and quiet with vibrant urban life through its active first floors. The ground and basement levels house a swimming pool and spa, a fitness center, retail spaces, and a few restaurants.

The swimming pool receives natural light through areaways, and the ground floor is planned to include a small winter garden. The main architectural attraction of the public areas, however, is the open spiral staircase connecting the ground and lower ground floors.

Savvinskaya 27 apartment complex by Level. Plan of the 1st floor Copyright: © ODA, APEX
Savvinskaya 27 apartment complex by Level. Plan of the 1st floor
Copyright: © ODA, APEX
Savvinskaya 27 apartment complex by Level. Cross section. Copyright: © ODA, APEX
Savvinskaya 27 apartment complex by Level. Cross section.
Copyright: © ODA, APEX
Savvinskaya 27 apartment complex by Level. Plan of the underground floor Copyright: © ODA, APEX
Savvinskaya 27 apartment complex by Level. Plan of the underground floor
Copyright: © ODA, APEX


From three sides, the building is treated sculpturally, with clear evidence of the technical skill and knowledge invested by the APEX team. The courtyard-facing façade is simpler, presenting a flattened projection of the picturesque riverfront composition. However, it still rises above the ground with a cantilever, creating a covered pedestrian gallery at street level. On the rear side, in this flattened view, the underlying arch motif that unites the façades becomes especially apparent.

Savvinskaya 27 apartment complex by Level Copyright: © ODA, APEX
Savvinskaya 27 apartment complex by Level
Copyright: © ODA, APEX
Savvinskaya 27 apartment complex by Level Copyright: © ODA, APEX / provided by Moskomakhitektura press service
Savvinskaya 27 apartment complex by Level
Copyright: © ODA, APEX / provided by Moskomakhitektura press service