Published on Archi.ru (https://archi.ru)

29.08.2024

Looking at the Water

Darya Gorelova
Architect:
Roman Leonidov
Studio:
Studio of Roman Leonidov

The site of Villa Sonata stretches from the road to the water’s edge, offering its own shoreline, pier, and a picturesque river panorama. To reveal these sweeping views, Roman Leonidov “cut” the façade diagonally parallel to the river, thus getting two main axes for the house and, consequently, “two heads”. The internal core – two double-height spaces, a living room and a conservatory, with a “bridge” above them – makes the house both “transparent” and filled with light.

Villa Sonata is situated on a waterfront plot. The plot is elongated and somewhat narrow, extending between the river and the road, with parallel side boundaries and angled cuts at the road and waterfront sides, which largely determined the layout and shape of the house.

The house divides the plot into two yards: closer to the road, there is a square open courtyard, where the garage, combined with a guest house, is stretched along the right-hand boundary.

Villa Sonata. The landscaping plan Copyright: © Roman Leonidov
Villa Sonata. The landscaping plan
Copyright: © Roman Leonidov
Garage and guest house at the entrance to the plot. Villa Sonata Copyright: Photograph © Roman Leonidov
Garage and guest house at the entrance to the plot. Villa Sonata
Copyright: Photograph © Roman Leonidov


The first part of the site, located on the road side, is slightly larger, and the path, paved with light stone, is somewhat wider. Initially, a small artificial pond was planned on the left side, intended for irrigation, but the idea was later on abandoned during construction.

The first yard, although somewhat conventionally, can be described as a “cour d’honneur”. The second yard, on the river side, is more lively and natural; here lies a slope to the water and a dry decorative “stream” with a bridge.

Villa Sonata Copyright: Photograph © Roman Leonidov
Villa Sonata
Copyright: Photograph © Roman Leonidov
Villa Sonata Copyright: Photograph © Roman Leonidov
Villa Sonata
Copyright: Photograph © Roman Leonidov


According to Roman Leonidov, the homeowners often enter the house from the riverside. This courtyard is more private, although the entire area is surrounded by trees, which will grow and provide better seclusion. However, this side enjoys expansive river views, a pier, and two small beaches – one with pebbles, the other sandy. Near the water’s edge, there is a barbecue tent – a temporary structure within the water protection zone, with a metal frame. The tent, sporting a roof with an extended overhang, stretches along the water’s edge; on the site plan, it follows (and supports) the diagonal.

View of the BBQ lodge from the marina. Villa Sonata Copyright: Photograph © Roman Leonidov
View of the BBQ lodge from the marina. Villa Sonata
Copyright: Photograph © Roman Leonidov
Villa Sonata Copyright: Photograph © Roman Leonidov
Villa Sonata
Copyright: Photograph © Roman Leonidov


As for the main house, both facades – the one facing the road and the one facing the river – are almost equivalent but differ in their image and silhouette.

From the entrance side, the villa is stretched horizontally, with two asymmetrical projections framing the deep entrance loggia. A car can drive up here if necessary; this facade is laconic, somewhat austere, and confidently grounded.

Villa Sonata
Villa Sonata
Copyright: Photograph © Roman Leonidov


The façade facing the river is asymmetrical: more than half of its length is cut along a line parallel to the shore and the barbecue pavilion. This results in the intersection of two grids: orthogonal and diagonal. The architect admits, “I generally don’t like this kind of angle, but here the turn was necessary to reveal the maximum river panorama”.

The diagonal acts as a hypotenuse, uniting the main axes of the house: one running along the plot towards the water and the other across it. The volumetric embodiment of these axes is represented by two large “mansards”: one facing straight ahead, the other angled left from the road and right from the river.

Villa Sonata
Villa Sonata
Copyright: Photograph © Roman Leonidov


Both mansards are covered with curved roofs, a favorite technique of Roman Leonidov. Curved roofs made of laminated wood are found in many of his houses, such as the “Zavidnoe Estate” or Omega House – the curve, according to the architect, helps to soften the rigidity of geometric forms.

Villa Sonata
Villa Sonata
Copyright: Photograph © Roman Leonidov


In this case, the development of the theme unambiguously shows that the house has two “heads”. They grow from roughly the same point but look in different, though not opposite, directions.

It’s hard to find a more explicit metaphor for the fact that this house has two masters: him and her. That’s exactly the case; aside from the guest rooms and common areas, the house is divided into two halves – if viewed from the road, the right half is the “male” side, and the left is the “female” side. The right-hand half features more rectangles, while the left-hand one has more angles, making the “male” side more solid, grounded, and “square” – here you’ll find the hammam, billiard room, office, and lounge. On the right side, there’s also a large square terrace on the roof of the projection with the billiard room inside. Outside, between the “male” section and the guest house, there is a sports ground.

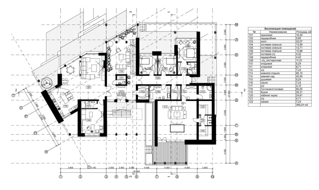
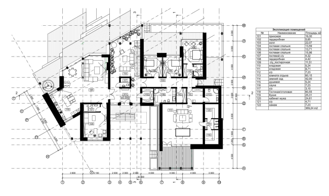
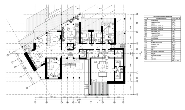
Villa Sonata. Plan of the 1st floor
Villa Sonata. Plan of the 1st floor
Copyright: Photograph © Roman Leonidov


The left, “female” part is defined by the angled volume, responding to the river, yet aligned with the transverse axis “like a head on a neck”. Inside, this axis is expressed in a hanging bridge that connects the master bedroom to the hostess’s studio on the second floor. The studio, by the way, includes both a shower and a mini-kitchen, making it possible to live in this part of the house without frequently going downstairs.

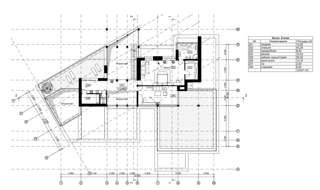
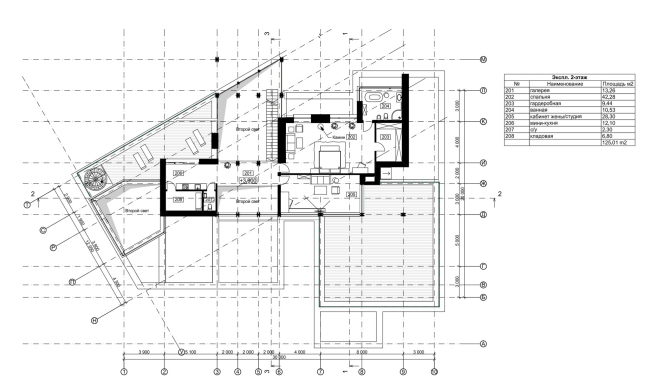
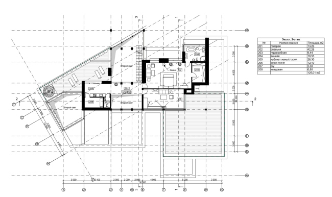
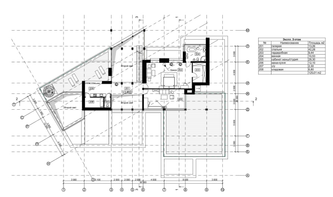
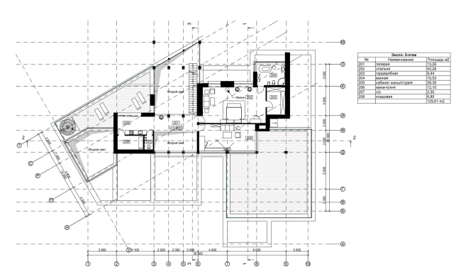
Villa Sonata. Plan of the 2nd floor
Villa Sonata. Plan of the 2nd floor
Copyright: Photograph © Roman Leonidov


The bridge “floats” above the passageway to the greenhouse from the main entrance, thus forming the main intersection of the public or guest area of the interior. The greenhouse – a passion of the hostess – is large, double-height, and its glass facade faces the river. If you enter the house from the road, you will see the bridge, with plants and the glass façade with a river view behind it. To the left is the living room, also a double-height space.

This part of the house also has its own terrace on the roof. It’s a solarium, a sunbathing area, located on the roof of the living room, with its edge also cut at an angle, making the second (or, if you count from the river, the first) terrace look more dynamic and light. One terrace is a wide square, while the other has sharp edges, like a blade. Below the solarium, a second deck extends further from the façade.

You can ascend to or descend from the solarium via a metal spiral staircase at the corner in front of the glass façade – another of Roman Leonidov’s favorite techniques, as seen in the Zeppelin House, built back in 2008. The staircase serves both a practical function, creating a “circular path” through the house (you can go up inside the greenhouse, down from the terrace, and vice versa), and a decorative one as well.

Villa Sonata Copyright: Photograph © Roman Leonidov
Villa Sonata
Copyright: Photograph © Roman Leonidov
Villa Sonata Copyright: Photograph © Roman Leonidov
Villa Sonata
Copyright: Photograph © Roman Leonidov


Villa Sonata
Villa Sonata
Copyright: Photograph © Roman Leonidov


Another signature technique of Roman Leonidov’s is the horizontal windows that wrap around the house: “they seem to break the monolithic wall, making the building look much lighter”.

The house is built from glued laminated timber, finished with Siberian larch planks, and some of the walls are clad in light quartzite and dark slate. “The finishing uses exclusively natural materials – wood and stone; the large glass windows and terraces help blur the boundary between the house’s interior and the surrounding landscape” Roman Leonidov explains.

Villa Sonata Copyright: Photograph © Roman Leonidov
Villa Sonata
Copyright: Photograph © Roman Leonidov
Villa Sonata Copyright: Photograph © Roman Leonidov
Villa Sonata
Copyright: Photograph © Roman Leonidov
Villa Sonata Copyright: Photograph © Roman Leonidov
Villa Sonata
Copyright: Photograph © Roman Leonidov
Villa Sonata Copyright: Photograph © Roman Leonidov
Villa Sonata
Copyright: Photograph © Roman Leonidov
Villa Sonata Copyright: Photograph © Roman Leonidov
Villa Sonata
Copyright: Photograph © Roman Leonidov
Villa Sonata Copyright: Photograph © Roman Leonidov
Villa Sonata
Copyright: Photograph © Roman Leonidov


The theme of wood and stone is echoed in the landscape design, where trees are combined with stone pedestals, boulders, gravel, and pathways made of light-gray and dark-gray stone.

Plants have also become an equally important part of Villa Sonata. The love for greenery is a central theme of the house, with an abundance of plants outside and inside, i.e. in the winter garden and on the flowerbeds: perennial and summer plants even seem to “exchange glances” with each other.

Villa Sonata Copyright: Photograph © Roman Leonidov
Villa Sonata
Copyright: Photograph © Roman Leonidov
The landscaping promises to sprawl, but there are already quite a few trees, and flowers are abundant. Villa Sonata Copyright: Photograph © Roman Leonidov
The landscaping promises to sprawl, but there are already quite a few trees, and flowers are abundant. Villa Sonata
Copyright: Photograph © Roman Leonidov


And the house itself, as we remember, “gazes” at its surroundings, which is especially noticeable from the pier.

The dynamic form, characteristic of Roman Leonidov, often gives his houses the appearance of living beings – not literally, of course, but rather in the emotional way. So, the “two-headed” house with a pavilion by the pier, covered by a “wing” canopy, or even a “cap” – as commonplace as this comparison may be – might indeed look like a happy family lounging by the river.