Размещено на портале Архи.ру (www.archi.ru)

14.06.2024

Тетрис в порту

Анна Старостина
Объект:
Смотровая башня и зеленая зона в порту Монреаля
Адрес:
Канада, None, Монреаль.
Мастерская:
Provencher_Roy

Смотровая башня, спроектированная для Старого порта Монреаля бюро Provencher_Roy, и общественная зеленая зона вокруг нее от ландшафтного бюро NIPPAYSAGE вобрали в себя множество элементов местной идентичности.

Пирс имени Александры Датской в порту Монреаля появился еще в начале XX века вместе с пирсами, названными в честь супруга Александры, короля Эдварда VII, и мореплавателя Жака Картье, одного из первооткрывателей Канады. Его длина превышает 300 м, а ширина больше 90 м. Изначально почти всю площадь пирса занимали четыре хранилища для пшеницы, в то время как в 1967, специально к Всемирной выставке, здесь возвели пассажирский терминал, который к началу 2000-х уже перестал отвечать современным требованиям и не справлялся с нагрузкой.

Смотровая башня и зеленая зона в порту Монреаля
Смотровая башня и зеленая зона в порту Монреаля
Фотография © James Brittain
Смотровая башня и зеленая зона в порту Монреаля
Смотровая башня и зеленая зона в порту Монреаля
Фотография © James Brittain
Смотровая башня и зеленая зона в порту Монреаля
Смотровая башня и зеленая зона в порту Монреаля
Фотография © Olivier Blouin
Смотровая башня и зеленая зона в порту Монреаля
Смотровая башня и зеленая зона в порту Монреаля
Фотография © Olivier Blouin

Место это требовало особого внимания, потому что действительно стало квинтэссенцией всего «монреальского»: рядом или чуть в отдалении расположены красивейшая река Святого Лаврентия, знаменитый жилой комплекс Habitat’67, гигантский элеватор № 5, построенный тоже в начале XX века, собор Монреальской Богоматери. От пирса открываются виды одновременно на небоскребы делового центра, и на гору Мон-Руаяль.
Смотровая башня и зеленая зона в порту Монреаля
Смотровая башня и зеленая зона в порту Монреаля
Фотография © James Brittain
Смотровая башня и зеленая зона в порту Монреаля Фотография © James Brittain
Смотровая башня и зеленая зона в порту Монреаля
Фотография © James Brittain
Смотровая башня и зеленая зона в порту Монреаля Фотография © James Brittain
Смотровая башня и зеленая зона в порту Монреаля
Фотография © James Brittain
Смотровая башня и зеленая зона в порту Монреаля
Смотровая башня и зеленая зона в порту Монреаля
Фотография © Stéphane Brügger
Смотровая башня и зеленая зона в порту Монреаля
Смотровая башня и зеленая зона в порту Монреаля
Фотография © Stéphane Brügger
Смотровая башня и зеленая зона в порту Монреаля Фотография © Stéphane Brügger
Смотровая башня и зеленая зона в порту Монреаля
Фотография © Stéphane Brügger
Смотровая башня и зеленая зона в порту Монреаля Фотография © Stéphane Brügger
Смотровая башня и зеленая зона в порту Монреаля
Фотография © Stéphane Brügger
Смотровая башня и зеленая зона в порту Монреаля Фотография © Stéphane Brügger
Смотровая башня и зеленая зона в порту Монреаля
Фотография © Stéphane Brügger

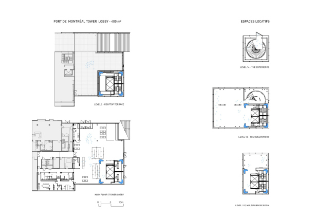
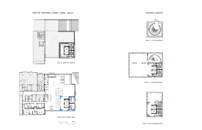
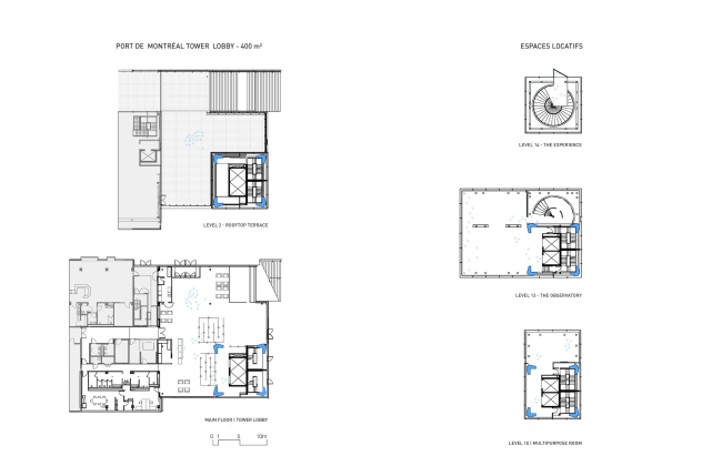
Конкурс на реконструкцию пирса бюро Provencher_Roy выиграло еще в 2013 в содружестве с ландшафтными архитекторами NIPPAYSAGE. К 2018 был модернизирован пассажирский терминал Grand Quai, который получил комфортный зеленый променад на крыше, засаженный специально подобранными растениями 20 000 сортов. Его помещения дополнительно освещены большими световыми фонарями и решены полностью в белом цвете. Также была изменена схема движения транспорта и пешеходов, а в ангароподобном сооружении устроили парковку. На последнем этапе работ возвели смотровую башню и создали открытую общественную зону на самом конце пирса. Именно они встречают подходящие круизные лайнеры и позволяют составить первое впечатление от города, почувствовать его.
Смотровая башня и зеленая зона в порту Монреаля
Смотровая башня и зеленая зона в порту Монреаля
Фотография © James Brittain
Смотровая башня и зеленая зона в порту Монреаля
Смотровая башня и зеленая зона в порту Монреаля
Фотография © James Brittain
Смотровая башня и зеленая зона в порту Монреаля
Смотровая башня и зеленая зона в порту Монреаля
Фотография © Stéphane Brügger
Смотровая башня и зеленая зона в порту Монреаля
Смотровая башня и зеленая зона в порту Монреаля
Фотография © James Brittain

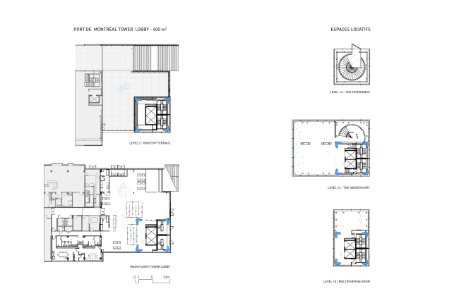
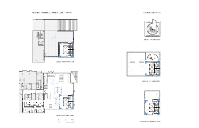
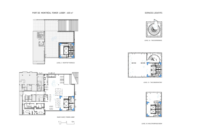
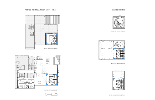
Башня высотой 65 м по своей форме напоминает тетрамино и по структуре перекликается со старой конвейерной вышкой для разгрузки зерна, сохранившейся рядом. Добиться эффекта позволило прозрачное остекление, благодаря которому конструкции ясно читаются даже издали. На высоте 55 м находится просторное универсальное помещение, приспособленное для проведения мероприятий. По винтовой лестнице золотого цвета, которая также хорошо видна снаружи (по мысли архитекторов, это дань уважения закругленным внешним лестницам, характерным для застройки XIX века и одновременно символ пшеничного колоса, ведь зерно всегда было здесь основным товаром), можно подняться еще выше в нависающую над водой полностью стеклянную смотровую кабинку.
Смотровая башня и зеленая зона в порту Монреаля Фотография © Nanne Springer
Смотровая башня и зеленая зона в порту Монреаля
Фотография © Nanne Springer
Смотровая башня и зеленая зона в порту Монреаля Фотография © Nanne Springer
Смотровая башня и зеленая зона в порту Монреаля
Фотография © Nanne Springer
Смотровая башня и зеленая зона в порту Монреаля Фотография © Nanne Springer
Смотровая башня и зеленая зона в порту Монреаля
Фотография © Nanne Springer
Смотровая башня и зеленая зона в порту Монреаля Фотография © James Brittain
Смотровая башня и зеленая зона в порту Монреаля
Фотография © James Brittain
Смотровая башня и зеленая зона в порту Монреаля
Смотровая башня и зеленая зона в порту Монреаля
Фотография © James Brittain
Смотровая башня и зеленая зона в порту Монреаля
Смотровая башня и зеленая зона в порту Монреаля
Фотография © James Brittain
Смотровая башня и зеленая зона в порту Монреаля
Смотровая башня и зеленая зона в порту Монреаля
Фотография © James Brittain

Общественная зона на конце пирса получила название Площадь начинаний (Place des commencements). Она оформлена предельно сдержанно, тоже в духе индустриальной эстетики порта. Лужайка с небольшим уклоном спускается почти к самой воде, тесно связывая реку и город. Важным элементом этой зоны отдыха стал арт-объект «Их изображения» (Leurs Effigies), созданный художником Яном Покро, также уроженцем Монреаля. Буквально вырастающие из травы три тонкие арки символизируют трех женщин, сыгравших заметную роль в формировании общественного устройства города. Чуть выше расположена деревянная терраса, доски которой выложены «елочкой». Здесь посадили местные клены, вязы и белые сосны, древесина которых обычно использовалась при строительстве кораблей и лодок.

Материалы предоставлены агентством v2com.
Смотровая башня и зеленая зона в порту Монреаля
Смотровая башня и зеленая зона в порту Монреаля
Фотография © Olivier Blouin
Смотровая башня и зеленая зона в порту Монреаля
Смотровая башня и зеленая зона в порту Монреаля
Фотография © James Brittain
Смотровая башня и зеленая зона в порту Монреаля
Смотровая башня и зеленая зона в порту Монреаля
Фотография © James Brittain
Смотровая башня и зеленая зона в порту Монреаля Фотография © James Brittain
Смотровая башня и зеленая зона в порту Монреаля
Фотография © James Brittain
Смотровая башня и зеленая зона в порту Монреаля Фотография © James Brittain
Смотровая башня и зеленая зона в порту Монреаля
Фотография © James Brittain
Смотровая башня и зеленая зона в порту Монреаля Фотография © James Brittain
Смотровая башня и зеленая зона в порту Монреаля
Фотография © James Brittain
Смотровая башня и зеленая зона в порту Монреаля Фотография © James Brittain
Смотровая башня и зеленая зона в порту Монреаля
Фотография © James Brittain
Смотровая башня и зеленая зона в порту Монреаля Фотография © James Brittain
Смотровая башня и зеленая зона в порту Монреаля
Фотография © James Brittain
Смотровая башня и зеленая зона в порту Монреаля
Смотровая башня и зеленая зона в порту Монреаля
© Provencher_Roy
Смотровая башня и зеленая зона в порту Монреаля
Смотровая башня и зеленая зона в порту Монреаля
© Provencher_Roy
Смотровая башня и зеленая зона в порту Монреаля © Provencher_Roy
Смотровая башня и зеленая зона в порту Монреаля
© Provencher_Roy
Смотровая башня и зеленая зона в порту Монреаля © Provencher_Roy
Смотровая башня и зеленая зона в порту Монреаля
© Provencher_Roy
Смотровая башня и зеленая зона в порту Монреаля © Provencher_Roy
Смотровая башня и зеленая зона в порту Монреаля
© Provencher_Roy
Смотровая башня и зеленая зона в порту Монреаля © Provencher_Roy
Смотровая башня и зеленая зона в порту Монреаля
© Provencher_Roy
Смотровая башня и зеленая зона в порту Монреаля © Provencher_Roy
Смотровая башня и зеленая зона в порту Монреаля
© Provencher_Roy
Смотровая башня и зеленая зона в порту Монреаля
Смотровая башня и зеленая зона в порту Монреаля
© Provencher_Roy
Смотровая башня и зеленая зона в порту Монреаля
Смотровая башня и зеленая зона в порту Монреаля
© Provencher_Roy