Размещено на портале Архи.ру (www.archi.ru)

17.05.2024

Безопасное пространство

Объект:
Клиника доказательной психотерапии ALVI
Адрес:
Россия, Санкт-Петербург. ул.Парадная 3, к.2. 358. Парадный квартал
Мастерская:
LO DESIGN
Авторский коллектив:
​Дизайнер: Олеся Лещенко 
Декоратор: Крутолевич Анна 
Фотограф: Шишов Андрей 
Чертежи: Ольховик Марина 
Визуализаци: Лапина Алена 

Для клиники доказательной психотерапии мастерская Lo design создала обволакивающий монохромный интерьер, который соединяет черты ваби-саби и ретрофутуризма. Наполненные предметами искусства и декора кабинеты отличаются по настроению и помогают выйти за рамки привычного мышления.

Описание предоставлено дизайнером

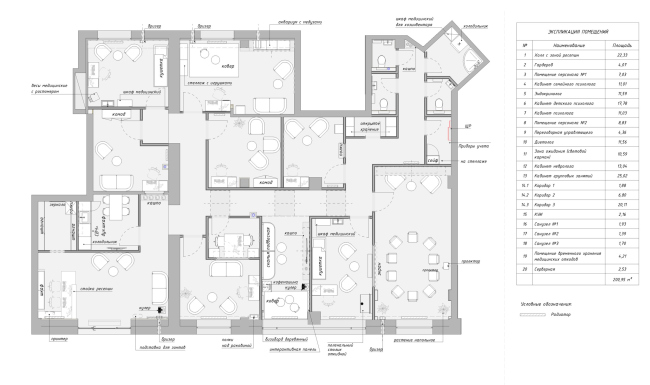
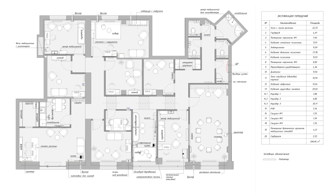
Клиника открылась в одном из корпусов жилого комплекса «Парадный квартал». Перед дизайнером стояла задача разместить в просторном помещении с высокими потолками 10 кабинетов различного назначения. Интерьер объединяет стиль ваби-саби и ретрофутуризм 1960-х годов. Пластик, фанера, дерево, керамика и декоративные элементы имеют сферические, округлые формы или фактурный рельеф, напоминающий лунные пейзажи. Основой композиции стали арочные формы, которые подчеркивают воздушность и просторность помещений, а также создают ощущение стабильности и безопасности. 
Клиника доказательной психотерапии ALVI
Клиника доказательной психотерапии ALVI
Фотография © Андрей Шишов / предоставлена LO DESIGN
Клиника доказательной психотерапии ALVI
Клиника доказательной психотерапии ALVI
Фотография © Андрей Шишов / предоставлена LO DESIGN

Посетители клиники погружаются в уютную умиротворяющую обстановку, не похожую на больничную. Обволакивающий комфорт создают сложные природные оттенки. Интерьер преимущественно монохромный, лишь отдельные предметы мебели или декора в разных кабинетах подобраны в более контрастных, но близких по температуре оттенках. Кофейная цветовая гамма близка к уютной домашней атмосфере и не оказывает существенного влияния на работу мозга.
Клиника доказательной психотерапии ALVI
Клиника доказательной психотерапии ALVI
Фотография © Андрей Шишов / предоставлена LO DESIGN
Клиника доказательной психотерапии ALVI
Клиника доказательной психотерапии ALVI
Фотография © Андрей Шишов / предоставлена LO DESIGN

Каждый кабинет вызывает свою эмоцию. Главными критериями при подборе и расстановке мебели стали комфорт клиентов и сотрудников, требования лицензии, а также практичность. Все стены, потолки и декоративные панно легко моются и дезинфицируются в соответствии с требованиями таких учреждений. Для большего шумопоглощения пространства наполнены объемными округлыми предметами, текстилем и растениями. 
Клиника доказательной психотерапии ALVI Фотография © Андрей Шишов / предоставлена LO DESIGN
Клиника доказательной психотерапии ALVI
Фотография © Андрей Шишов / предоставлена LO DESIGN
Клиника доказательной психотерапии ALVI Фотография © Андрей Шишов / предоставлена LO DESIGN
Клиника доказательной психотерапии ALVI
Фотография © Андрей Шишов / предоставлена LO DESIGN
Клиника доказательной психотерапии ALVI Фотография © Андрей Шишов / предоставлена LO DESIGN
Клиника доказательной психотерапии ALVI
Фотография © Андрей Шишов / предоставлена LO DESIGN
Клиника доказательной психотерапии ALVI Фотография © Андрей Шишов / предоставлена LO DESIGN
Клиника доказательной психотерапии ALVI
Фотография © Андрей Шишов / предоставлена LO DESIGN
Клиника доказательной психотерапии ALVI Фотография © Андрей Шишов / предоставлена LO DESIGN
Клиника доказательной психотерапии ALVI
Фотография © Андрей Шишов / предоставлена LO DESIGN
Клиника доказательной психотерапии ALVI Фотография © Андрей Шишов / предоставлена LO DESIGN
Клиника доказательной психотерапии ALVI
Фотография © Андрей Шишов / предоставлена LO DESIGN
Клиника доказательной психотерапии ALVI Фотография © Андрей Шишов / предоставлена LO DESIGN
Клиника доказательной психотерапии ALVI
Фотография © Андрей Шишов / предоставлена LO DESIGN
Клиника доказательной психотерапии ALVI Фотография © Андрей Шишов / предоставлена LO DESIGN
Клиника доказательной психотерапии ALVI
Фотография © Андрей Шишов / предоставлена LO DESIGN
Клиника доказательной психотерапии ALVI Фотография © Андрей Шишов / предоставлена LO DESIGN
Клиника доказательной психотерапии ALVI
Фотография © Андрей Шишов / предоставлена LO DESIGN

Предметы искусства выполнили художники из Петербурга. Акцентное панно в зоне ресепшн символизирует клубок человеческих проблем, которые можно решить, выйдя за привычные рамки. Эта и другие работы создавались еще на этапе черновой отделки. Крупные декоративные элементы смонтированы как часть стены и покрыты теми же красками, но других оттенков.
Клиника доказательной психотерапии ALVI
Клиника доказательной психотерапии ALVI
Фотография © Андрей Шишов / предоставлена LO DESIGN
Клиника доказательной психотерапии ALVI Фотография © Андрей Шишов / предоставлена LO DESIGN
Клиника доказательной психотерапии ALVI
Фотография © Андрей Шишов / предоставлена LO DESIGN
Клиника доказательной психотерапии ALVI Фотография © Андрей Шишов / предоставлена LO DESIGN
Клиника доказательной психотерапии ALVI
Фотография © Андрей Шишов / предоставлена LO DESIGN

За счет молдингов на стенах появились крупные минималистичные композиции со светильниками, которые сохранили чистоту, легкость и поддержали ретрофутуристичный стиль.
Клиника доказательной психотерапии ALVI Фотография © Андрей Шишов / предоставлена LO DESIGN
Клиника доказательной психотерапии ALVI
Фотография © Андрей Шишов / предоставлена LO DESIGN
Клиника доказательной психотерапии ALVI Фотография © Андрей Шишов / предоставлена LO DESIGN
Клиника доказательной психотерапии ALVI
Фотография © Андрей Шишов / предоставлена LO DESIGN

В большом зале групповых занятий на потолке в строительном исполнении был создан лунный кратер, из которого струится свет, объединяющий участников сессии. За счет этого приема в центре большого зала отдельная рабочая зона обособлена от остального пространства. Еще одним оригинальным решением стали кашпо для сухоцветов как часть стены.  
Клиника доказательной психотерапии ALVI Фотография © Андрей Шишов / предоставлена LO DESIGN
Клиника доказательной психотерапии ALVI
Фотография © Андрей Шишов / предоставлена LO DESIGN
Клиника доказательной психотерапии ALVI Фотография © Андрей Шишов / предоставлена LO DESIGN
Клиника доказательной психотерапии ALVI
Фотография © Андрей Шишов / предоставлена LO DESIGN
Клиника доказательной психотерапии ALVI Фотография © Андрей Шишов / предоставлена LO DESIGN
Клиника доказательной психотерапии ALVI
Фотография © Андрей Шишов / предоставлена LO DESIGN
Клиника доказательной психотерапии ALVI Фотография © Андрей Шишов / предоставлена LO DESIGN
Клиника доказательной психотерапии ALVI
Фотография © Андрей Шишов / предоставлена LO DESIGN
Клиника доказательной психотерапии ALVI
Клиника доказательной психотерапии ALVI
Фотография © Андрей Шишов / предоставлена LO DESIGN
Клиника доказательной психотерапии ALVI
Клиника доказательной психотерапии ALVI
© Марина Ольховик