Размещено на портале Архи.ру (www.archi.ru)

26.04.2024

«Авиатор» на взлете

Анна Старостина
Объект:
Жилой комплекс «Авиатор»
Адрес:
Франция, None, Рен.
Мастерская:
ALTA architectes urbanistes

Комплекс социального жилья «Авиатор» построен по проекту бюро ALTA в пригороде Рена, столицы Бретани.

Небольшой пригород Сен-Жак-де-ла-Ланд очень важен для столицы Бретани Рена, так как именно здесь расположен городской аэропорт. Часть территории коммуны, занимающая юго-западную окраину Рена, представляет собой исторический район, в котором еще в конце XVIII века был устроен Арсенал. Военно-промышленная функция сохранялась вплоть до 1999, когда предприятия закрылись и район пришел в запустение.

Жилой комплекс «Авиатор» в Рене
Жилой комплекс «Авиатор» в Рене
Фотография © Charly Broyez / предоставлена агентством FE Consulting
Жилой комплекс «Авиатор» в Рене
Жилой комплекс «Авиатор» в Рене
Фотография © Charly Broyez / предоставлена агентством FE Consulting
Жилой комплекс «Авиатор» в Рене
Жилой комплекс «Авиатор» в Рене
Фотография © Charly Broyez / предоставлена агентством FE Consulting
Жилой комплекс «Авиатор» в Рене Фотография © Charly Broyez / предоставлена агентством FE Consulting
Жилой комплекс «Авиатор» в Рене
Фотография © Charly Broyez / предоставлена агентством FE Consulting
Жилой комплекс «Авиатор» в Рене Фотография © Charly Broyez / предоставлена агентством FE Consulting
Жилой комплекс «Авиатор» в Рене
Фотография © Charly Broyez / предоставлена агентством FE Consulting

Чтобы вернуть к жизни значимый фрагмент городской ткани в 2003 по инициативе властей региона была образована «особая территория благоустройства» Ла-Курруз (ZAC La Courrouze), охватывающая более 115 га городских земель. В Studio Associato Bernardo Secchi Paola Viganò был разработан мастерплан, поделивший проект на одиннадцать секторов и четыре очереди и предусматривающий строительство жилья, офисов, общественных, торговых, транспортных, образовательных объектов, обустройство зеленых зон и формирование всей необходимой инфраструктуры. Основополагающими принципами развития района стали бережное отношение к окружающей среде и близость к природе. Работы начали еще в 2006, а завершение амбициозного проекта запланировано на 2029.
Жилой комплекс «Авиатор» в Рене Фотография © Charly Broyez / предоставлена агентством FE Consulting
Жилой комплекс «Авиатор» в Рене
Фотография © Charly Broyez / предоставлена агентством FE Consulting
Жилой комплекс «Авиатор» в Рене Фотография © Charly Broyez / предоставлена агентством FE Consulting
Жилой комплекс «Авиатор» в Рене
Фотография © Charly Broyez / предоставлена агентством FE Consulting
Жилой комплекс «Авиатор» в Рене
Жилой комплекс «Авиатор» в Рене
Фотография © Charly Broyez / предоставлена агентством FE Consulting
Жилой комплекс «Авиатор» в Рене Фотография © Charly Broyez / предоставлена агентством FE Consulting
Жилой комплекс «Авиатор» в Рене
Фотография © Charly Broyez / предоставлена агентством FE Consulting
Жилой комплекс «Авиатор» в Рене Фотография © Charly Broyez / предоставлена агентством FE Consulting
Жилой комплекс «Авиатор» в Рене
Фотография © Charly Broyez / предоставлена агентством FE Consulting
Жилой комплекс «Авиатор» в Рене Фотография © Charly Broyez / предоставлена агентством FE Consulting
Жилой комплекс «Авиатор» в Рене
Фотография © Charly Broyez / предоставлена агентством FE Consulting

Одним из бюро, приглашенных к участию в развитии Ла-Курруз и конкретно небольшого жилого квартала Мермоз, прилегающего к бульвару Жана Мермоза, стало местное ALTA architectes – urbanistes. Благодаря близости к окружной магистрали и ТПУ, объединяющему метро, автобусы и перехватывающие парковки, именно этот квартал стал своеобразными воротами района и даже всего города.
Жилой комплекс «Авиатор» в Рене Фотография © Charly Broyez / предоставлена агентством FE Consulting
Жилой комплекс «Авиатор» в Рене
Фотография © Charly Broyez / предоставлена агентством FE Consulting
Жилой комплекс «Авиатор» в Рене Фотография © Charly Broyez / предоставлена агентством FE Consulting
Жилой комплекс «Авиатор» в Рене
Фотография © Charly Broyez / предоставлена агентством FE Consulting
Жилой комплекс «Авиатор» в Рене Фотография © Charly Broyez / предоставлена агентством FE Consulting
Жилой комплекс «Авиатор» в Рене
Фотография © Charly Broyez / предоставлена агентством FE Consulting
Жилой комплекс «Авиатор» в Рене Фотография © Charly Broyez / предоставлена агентством FE Consulting
Жилой комплекс «Авиатор» в Рене
Фотография © Charly Broyez / предоставлена агентством FE Consulting
Жилой комплекс «Авиатор» в Рене Фотография © Charly Broyez / предоставлена агентством FE Consulting
Жилой комплекс «Авиатор» в Рене
Фотография © Charly Broyez / предоставлена агентством FE Consulting
Жилой комплекс «Авиатор» в Рене Фотография © Charly Broyez / предоставлена агентством FE Consulting
Жилой комплекс «Авиатор» в Рене
Фотография © Charly Broyez / предоставлена агентством FE Consulting

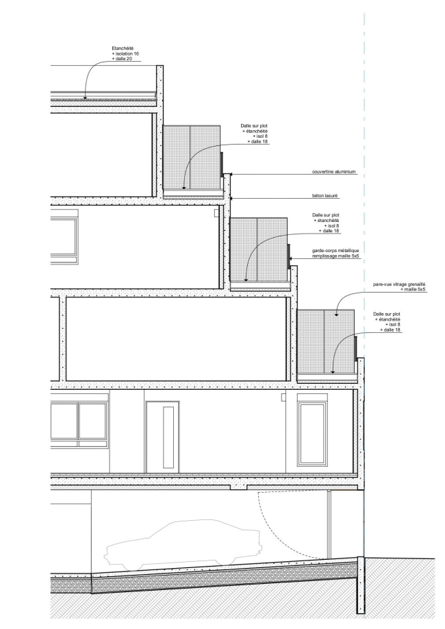
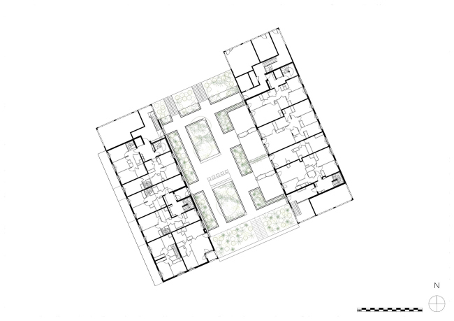
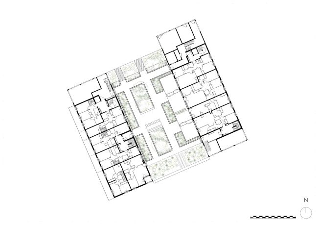
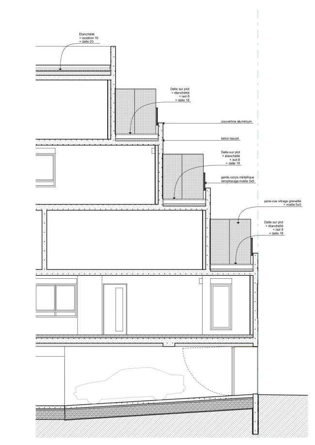
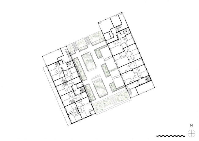
Основатели бюро Максим Ле-Трионнер и Гвенаэль Ле-Шаплен четко соблюли код, предложенный мастерпланом для этого сегмента. Как и предписано, они подняли разновысокие жилые объемы на озелененный стилобат и расположили их перпендикулярно бульвару по оси север-юг, раскрыв комплекс в сторону улицы и обеспечив его проницаемость. Всего здесь 52 жилых модуля: основу составляют квартиры с одной или двумя спальнями, почти все они выходят на две или даже три стороны и оборудованы защищенными лоджиями; с южной стороны устроены террасы. В западной части в нижнем уровне размещены двухуровневые «суплексы», каждый со своим небольшим садиком. Ну а в озелененное общественное пространство на стилобате (в котором даже предусмотрен большой стол для пикника) выходят апартаменты с отдельными входами. Жилые модули реализуются в соответствии с установками социальной программы «реальной совместной аренды» (BRS).
Жилой комплекс «Авиатор» в Рене Фотография © Charly Broyez / предоставлена агентством FE Consulting
Жилой комплекс «Авиатор» в Рене
Фотография © Charly Broyez / предоставлена агентством FE Consulting
Жилой комплекс «Авиатор» в Рене Фотография © Charly Broyez / предоставлена агентством FE Consulting
Жилой комплекс «Авиатор» в Рене
Фотография © Charly Broyez / предоставлена агентством FE Consulting
Жилой комплекс «Авиатор» в Рене Фотография © Charly Broyez / предоставлена агентством FE Consulting
Жилой комплекс «Авиатор» в Рене
Фотография © Charly Broyez / предоставлена агентством FE Consulting
Жилой комплекс «Авиатор» в Рене Фотография © Charly Broyez / предоставлена агентством FE Consulting
Жилой комплекс «Авиатор» в Рене
Фотография © Charly Broyez / предоставлена агентством FE Consulting

Более высокий нижний ярус занят холлами, местами хранения велосипедов и общественными пространствами для различных занятий. На улицу эти помещения выходят привлекательными аркадами, имитирующими силуэты старинных домиков с двускатной кровлей. Внешняя же отделка комплекса предельно сдержана: серый бетон с графичными плоскими нишами дополняют металлические и деревянные детали теплого коричневого оттенка. По замыслу архитекторов, такое решение должно перекликаться с массивной каменной стеной на противоположной стороне улицы.
Жилой комплекс «Авиатор» в Рене Фотография © Charly Broyez / предоставлена агентством FE Consulting
Жилой комплекс «Авиатор» в Рене
Фотография © Charly Broyez / предоставлена агентством FE Consulting
Жилой комплекс «Авиатор» в Рене Фотография © Charly Broyez / предоставлена агентством FE Consulting
Жилой комплекс «Авиатор» в Рене
Фотография © Charly Broyez / предоставлена агентством FE Consulting
Жилой комплекс «Авиатор» в Рене Фотография © Charly Broyez / предоставлена агентством FE Consulting
Жилой комплекс «Авиатор» в Рене
Фотография © Charly Broyez / предоставлена агентством FE Consulting
Жилой комплекс «Авиатор» в Рене Фотография © Charly Broyez / предоставлена агентством FE Consulting
Жилой комплекс «Авиатор» в Рене
Фотография © Charly Broyez / предоставлена агентством FE Consulting
Жилой комплекс «Авиатор» в Рене Фотография © Charly Broyez / предоставлена агентством FE Consulting
Жилой комплекс «Авиатор» в Рене
Фотография © Charly Broyez / предоставлена агентством FE Consulting
Жилой комплекс «Авиатор» в Рене Фотография © Charly Broyez / предоставлена агентством FE Consulting
Жилой комплекс «Авиатор» в Рене
Фотография © Charly Broyez / предоставлена агентством FE Consulting
Жилой комплекс «Авиатор» в Рене Фотография © Charly Broyez / предоставлена агентством FE Consulting
Жилой комплекс «Авиатор» в Рене
Фотография © Charly Broyez / предоставлена агентством FE Consulting

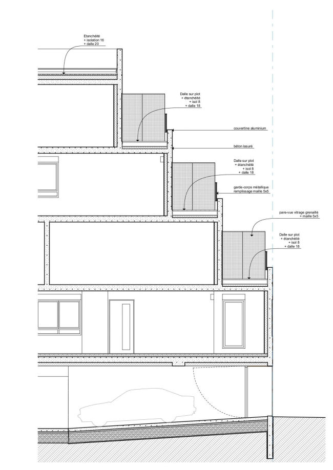
Вся программа развития района Ла-Курруз настолько значима, что для него были разработаны отдельные требования к экономичности, экологической безопасности и эффективности зданий NF Habitat HQE Courrouze. По ним новый комплекс «Авиатор» получил максимально возможные девять звезд.
Жилой комплекс «Авиатор» в Рене
Жилой комплекс «Авиатор» в Рене
© ALTA architectes – urbanistes / предоставлено агентством FE Consulting
Жилой комплекс «Авиатор» в Рене
Жилой комплекс «Авиатор» в Рене
© ALTA architectes – urbanistes / предоставлено агентством FE Consulting
Жилой комплекс «Авиатор» в Рене
Жилой комплекс «Авиатор» в Рене
© ALTA architectes – urbanistes / предоставлено агентством FE Consulting
Жилой комплекс «Авиатор» в Рене
Жилой комплекс «Авиатор» в Рене
© ALTA architectes – urbanistes / предоставлено агентством FE Consulting
Жилой комплекс «Авиатор» в Рене © ALTA architectes – urbanistes / предоставлено агентством FE Consulting
Жилой комплекс «Авиатор» в Рене
© ALTA architectes – urbanistes / предоставлено агентством FE Consulting
Жилой комплекс «Авиатор» в Рене © ALTA architectes – urbanistes / предоставлено агентством FE Consulting
Жилой комплекс «Авиатор» в Рене
© ALTA architectes – urbanistes / предоставлено агентством FE Consulting
Жилой комплекс «Авиатор» в Рене © ALTA architectes – urbanistes / предоставлено агентством FE Consulting
Жилой комплекс «Авиатор» в Рене
© ALTA architectes – urbanistes / предоставлено агентством FE Consulting
Жилой комплекс «Авиатор» в Рене
Жилой комплекс «Авиатор» в Рене
© ALTA architectes – urbanistes / предоставлено агентством FE Consulting
Жилой комплекс «Авиатор» в Рене
Жилой комплекс «Авиатор» в Рене
© ALTA architectes – urbanistes / предоставлено агентством FE Consulting
Жилой комплекс «Авиатор» в Рене
Жилой комплекс «Авиатор» в Рене
© ALTA architectes – urbanistes / предоставлено агентством FE Consulting