Размещено на портале Архи.ру (www.archi.ru)

22.04.2024

Крепость у реки

Объект:
Ресторан Izakaya Yosai
Адрес:
Россия, Омск. Партизанская, 5а лит B
Мастерская:
МАКЕТ
Авторский коллектив:
Константин Остроухов, Анна Ситникова, Анна Николаева

Бюро МАКЕТ объединило формат японской идзакаи с сибирской географией: ресторан открылся в одном из зданий Омской крепости, декор и мебель отсылают к рекам Омь и Иртыш, а старый кирпич дополняют амбарные доски и сухие ветки.

Описание предоставлено архитекторами

Название Izakaya Yosai выбрано не случайно. Yosai в переводе с японского означает «крепость», и именно в историческом здании первой Омской крепости открылся ресторан. Отдавая дань истории, архитекторы оставили кирпич на стенах открытым, а в проекте использовали фундаментальные конструкции и материалы – бетонные и деревянные столешницы, массивные металлические инсталляции на потолке. В поддержку исторических смыслов для отделки одной из стен использовали старые амбарные доски.
Ресторан Izakaya Yosai
Ресторан Izakaya Yosai
Фотография © Инна Каблукова / предоставлена МАКЕТ
Ресторан Izakaya Yosai
Ресторан Izakaya Yosai
Фотография © Инна Каблукова / предоставлена МАКЕТ
Ресторан Izakaya Yosai
Ресторан Izakaya Yosai
Фотография © Инна Каблукова / предоставлена МАКЕТ

Izakaya – традиционное для Японии питейное заведение. Его история уходит корнями в период Эдо, когда винные магазины впервые получили право продавать алкоголь для употребления на месте. С течением времени они обзавелись барными стойками, предоставляя гостям возможность наслаждаться напитками и закусками в дружелюбной атмосфере. Эта традиция вдохновила архитекторов на семь посадочных мест за баром.
Ресторан Izakaya Yosai
Ресторан Izakaya Yosai
Фотография © Инна Каблукова / предоставлена МАКЕТ
Ресторан Izakaya Yosai
Ресторан Izakaya Yosai
Фотография © Инна Каблукова / предоставлена МАКЕТ

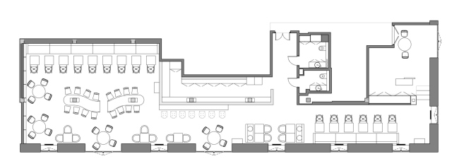
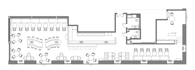
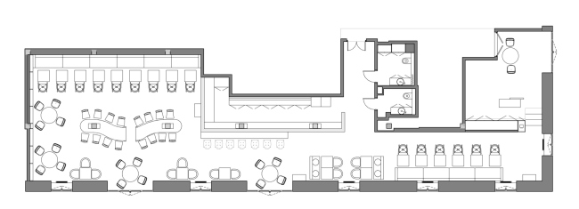
Помещение площадью 205 м2 разделено на две части разными световыми сценариями и имеет 87 посадочных мест. Первый сценарий: мягкое, теплое точечное освещение и атмосфера полумрака. В другой части заведения, расположенной ближе ко входу, освещение более рассеянное. Такое решение определяет предназначение этой зоны – здесь формируется место для быстрого перекуса.
Ресторан Izakaya Yosai
Ресторан Izakaya Yosai
Фотография © Инна Каблукова / предоставлена МАКЕТ
Ресторан Izakaya Yosai
Ресторан Izakaya Yosai
Фотография © Инна Каблукова / предоставлена МАКЕТ

В левой части заведения располагается бетонный волнообразный стол на 16 человек, символизирующий слияние рек Омь и Иртыша, где и расположился ресторан. Над столом размещается центральный арт-объект – инсталляция из веток, собранных на берегу. Подвешенная к потолку 23-метровая волна символизирует течение Иртыша.
Ресторан Izakaya Yosai
Ресторан Izakaya Yosai
Фотография © Инна Каблукова / предоставлена МАКЕТ
Ресторан Izakaya Yosai
Ресторан Izakaya Yosai
Фотография © Инна Каблукова / предоставлена МАКЕТ
Ресторан Izakaya Yosai Фотография © Инна Каблукова / предоставлена МАКЕТ
Ресторан Izakaya Yosai
Фотография © Инна Каблукова / предоставлена МАКЕТ
Ресторан Izakaya Yosai Фотография © Инна Каблукова / предоставлена МАКЕТ
Ресторан Izakaya Yosai
Фотография © Инна Каблукова / предоставлена МАКЕТ
Ресторан Izakaya Yosai Фотография © Инна Каблукова / предоставлена МАКЕТ
Ресторан Izakaya Yosai
Фотография © Инна Каблукова / предоставлена МАКЕТ
Ресторан Izakaya Yosai Фотография © Инна Каблукова / предоставлена МАКЕТ
Ресторан Izakaya Yosai
Фотография © Инна Каблукова / предоставлена МАКЕТ
Ресторан Izakaya Yosai Фотография © Инна Каблукова / предоставлена МАКЕТ
Ресторан Izakaya Yosai
Фотография © Инна Каблукова / предоставлена МАКЕТ
Ресторан Izakaya Yosai Фотография © Инна Каблукова / предоставлена МАКЕТ
Ресторан Izakaya Yosai
Фотография © Инна Каблукова / предоставлена МАКЕТ
Ресторан Izakaya Yosai Фотография © Инна Каблукова / предоставлена МАКЕТ
Ресторан Izakaya Yosai
Фотография © Инна Каблукова / предоставлена МАКЕТ
Ресторан Izakaya Yosai Фотография © Инна Каблукова / предоставлена МАКЕТ
Ресторан Izakaya Yosai
Фотография © Инна Каблукова / предоставлена МАКЕТ
Ресторан Izakaya Yosai Фотография © Инна Каблукова / предоставлена МАКЕТ
Ресторан Izakaya Yosai
Фотография © Инна Каблукова / предоставлена МАКЕТ
Ресторан Izakaya Yosai Фотография © Инна Каблукова / предоставлена МАКЕТ
Ресторан Izakaya Yosai
Фотография © Инна Каблукова / предоставлена МАКЕТ
Ресторан Izakaya Yosai Фотография © Инна Каблукова / предоставлена МАКЕТ
Ресторан Izakaya Yosai
Фотография © Инна Каблукова / предоставлена МАКЕТ
Ресторан Izakaya Yosai Фотография © Инна Каблукова / предоставлена МАКЕТ
Ресторан Izakaya Yosai
Фотография © Инна Каблукова / предоставлена МАКЕТ
Ресторан Izakaya Yosai Фотография © Инна Каблукова / предоставлена МАКЕТ
Ресторан Izakaya Yosai
Фотография © Инна Каблукова / предоставлена МАКЕТ
Ресторан Izakaya Yosai Фотография © Инна Каблукова / предоставлена МАКЕТ
Ресторан Izakaya Yosai
Фотография © Инна Каблукова / предоставлена МАКЕТ
Ресторан Izakaya Yosai Фотография © Инна Каблукова / предоставлена МАКЕТ
Ресторан Izakaya Yosai
Фотография © Инна Каблукова / предоставлена МАКЕТ
Ресторан Izakaya Yosai
Ресторан Izakaya Yosai
© МАКЕТ