Размещено на портале Архи.ру (www.archi.ru)

12.03.2024

За актовым залом

Объект:
Музыкальный клуб
Адрес:
Россия, Калининград. пр. Мира, 31
Мастерская:
Levkovich Architects
Авторский коллектив:
Олеся Левкович  

Для оформления интерьера микро-клуба в Калининграде Олеся Левкович обратилась к духу Италии 1980-х, а чтобы в помещение без окон проникал естественный цвет, вмонтировала в стены россыпь стеклоблоков.

Описание предоставлено архитекторами

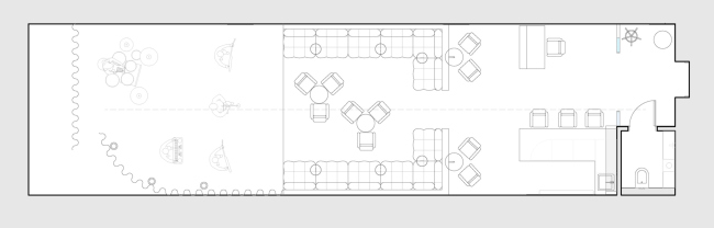
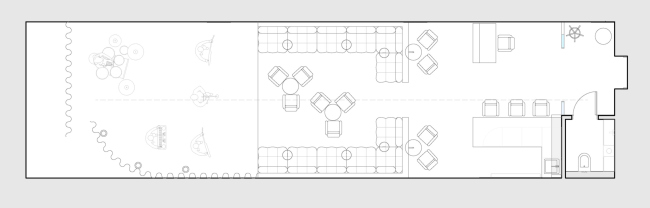
Клуб родился из желания трех друзей репетировать в свободное время и звать друзей на свои концерты. Для этого нашли помещение в небольшом многофункциональном центре, расположенном между зоопарком и ЦПКиО. Узкая комната без окон с высотой потолка 2,6 метров не напугала архитекторов: дневной свет проникает в пространство через стеклоблоки, которые вмонтировали в кирпичную кладку стены. Холодный дневной свет, смешиваясь с теплым искусственным, создает соответствующее общей атмосфере мерцание. За основу взята близкая собственникам ретро-стилистика Италии 1980-х, которая возвращает их во времена молодости, когда они только еще только мечтали о том, что создают сейчас.

Музыкальный клуб Фотография © Ольга Шангина-Лестерлен / предоставлена Levkovich Architects
Музыкальный клуб
Фотография © Ольга Шангина-Лестерлен / предоставлена Levkovich Architects
Музыкальный клуб Фотография © Ольга Шангина-Лестерлен / предоставлена Levkovich Architects
Музыкальный клуб
Фотография © Ольга Шангина-Лестерлен / предоставлена Levkovich Architects
Музыкальный клуб Фотография © Ольга Шангина-Лестерлен / предоставлена Levkovich Architects
Музыкальный клуб
Фотография © Ольга Шангина-Лестерлен / предоставлена Levkovich Architects
Музыкальный клуб Фотография © Ольга Шангина-Лестерлен / предоставлена Levkovich Architects
Музыкальный клуб
Фотография © Ольга Шангина-Лестерлен / предоставлена Levkovich Architects
Музыкальный клуб Фотография © Ольга Шангина-Лестерлен / предоставлена Levkovich Architects
Музыкальный клуб
Фотография © Ольга Шангина-Лестерлен / предоставлена Levkovich Architects
Музыкальный клуб Фотография © Ольга Шангина-Лестерлен / предоставлена Levkovich Architects
Музыкальный клуб
Фотография © Ольга Шангина-Лестерлен / предоставлена Levkovich Architects
Музыкальный клуб Фотография © Ольга Шангина-Лестерлен / предоставлена Levkovich Architects
Музыкальный клуб
Фотография © Ольга Шангина-Лестерлен / предоставлена Levkovich Architects
Музыкальный клуб Фотография © Ольга Шангина-Лестерлен / предоставлена Levkovich Architects
Музыкальный клуб
Фотография © Ольга Шангина-Лестерлен / предоставлена Levkovich Architects
Музыкальный клуб Фотография © Ольга Шангина-Лестерлен / предоставлена Levkovich Architects
Музыкальный клуб
Фотография © Ольга Шангина-Лестерлен / предоставлена Levkovich Architects
Музыкальный клуб Фотография © Ольга Шангина-Лестерлен / предоставлена Levkovich Architects
Музыкальный клуб
Фотография © Ольга Шангина-Лестерлен / предоставлена Levkovich Architects
Музыкальный клуб
Музыкальный клуб
Фотография © Ольга Шангина-Лестерлен / предоставлена Levkovich Architects
Музыкальный клуб
Музыкальный клуб
Фотография © Ольга Шангина-Лестерлен / предоставлена Levkovich Architects