Размещено на портале Архи.ру (www.archi.ru)

28.02.2024

Цветной в монохроме

Объект:
Офисное пространство управляющей компании и собственника универмага Цветной
Адрес:
Россия, Москва. Цветной бульвар, 15/1
Мастерская:
ARTFORMA
BLOCKSTUDIO
Авторский коллектив:
ARTFORMA
ГАП: Нина Целева, Дмитрий Розов 
Операционный менеджер: Ирина Мишурис

BLOCKSTUDIO
ГАП: Иван Трофимов, Наталия Трофимова 
Архитектор: Ирина Бугай

Дизайн офисного этажа универмага «Цветной», предложенный консорциумом Artforma и Blockstudio, развивает архитектурную концепцию здания и основывается на использовании камня, стекла и света. Светлые монохромные пространства стали фоном для предметов дизайна музейного уровня – например, дивана от Захи Хадид. Проект также включает переговорную с атрибутами сигарной комнаты.

Описание предоставлено архитекторами

Инвестиционная компания Bonum Capital, которая является собственником универмага «Цветной», решила переформатировать шестой этаж здания, предназначавшийся для ресторанов, и разместить на нем собственный офис, а также офис креативной и управленческой команд универмага. Офисы имеют общую дизайн-концепцию, но разный состав помещений, обусловленный спецификой деятельности.
Офисное пространство управляющей компании и собственника универмага Цветной. Офис УК универмага
Офисное пространство управляющей компании и собственника универмага Цветной. Офис УК универмага
Фотография © Михаил Лоскутов / предоставлена BLOCKSTUDIO
 
Главный вызов проекта – необходимость интегрировать офисные пространства в структуру и архитектурную концепцию здания универмага, построенного по проекту бюро Меганом. Задачей консорциума было придерживаться целостного подхода в работе с пространством, поэтому за основу концепции взяли камень, свет и стекло. Дополнительные элементы подчеркивают характер деятельности каждой из компаний.
Офисное пространство управляющей компании и собственника универмага Цветной. Офис собственника
Офисное пространство управляющей компании и собственника универмага Цветной. Офис собственника
Фотография © Михаил Лоскутов / предоставлена BLOCKSTUDIO

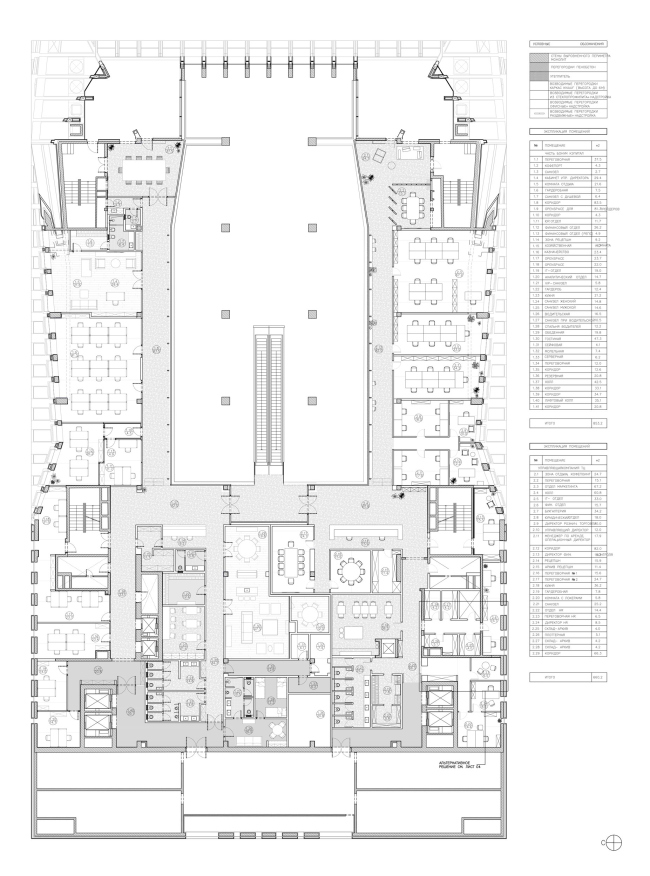
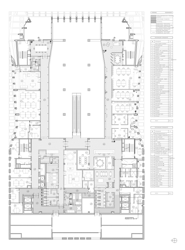
Планировочное решение позволило разделить этаж на два блока, разместив в каждом из них все подразделения обеих компаний, включая блоки специалистов и менеджеров, переговорные, общественные зоны. 
Офисное пространство управляющей компании и собственника универмага Цветной. Генплан
Офисное пространство управляющей компании и собственника универмага Цветной. Генплан
© ARTFORMA, BLOCKSTUDIO

Центральным жестом дизайна является создание полупрозрачной вертикальной поверхности из стеклопрофилита. Она отделяет пространство атриума от офисной̆ галереи этажа формально и функционально, но в то же время создает визуальную чистоту и целостность, сохраняя доступ дневного света к торговым этажам.
Офисное пространство управляющей компании и собственника универмага Цветной. Офис собственника
Офисное пространство управляющей компании и собственника универмага Цветной. Офис собственника
Фотография © Михаил Лоскутов / предоставлена BLOCKSTUDIO
Офисное пространство управляющей компании и собственника универмага Цветной. Офис собственника
Офисное пространство управляющей компании и собственника универмага Цветной. Офис собственника
Фотография © Михаил Лоскутов / предоставлена BLOCKSTUDIO
Офисное пространство управляющей компании и собственника универмага Цветной. Офис УК универмага
Офисное пространство управляющей компании и собственника универмага Цветной. Офис УК универмага
Фотография © Юрий Пальмин / предоставлена BLOCKSTUDIO

Одним из основных элементов дизайна стал материал терраццо-палладиана для полов общественных зон и галерей. Светлые цементные плиты с вкраплением мрамора обеспечивают визуальную легкость, но одновременно являются прочным, надежным и натуральным покрытием полов.
Офисное пространство управляющей компании и собственника универмага Цветной. Офис УК универмага
Офисное пространство управляющей компании и собственника универмага Цветной. Офис УК универмага
Фотография © Михаил Лоскутов / предоставлена BLOCKSTUDIO

Использование в офисных пространствах элементов из нержавеющей стали стало отсылкой к дизайн-концепции самого универмага, в котором этот материал активно используется.
Офисное пространство управляющей компании и собственника универмага Цветной. Офис собственника
Офисное пространство управляющей компании и собственника универмага Цветной. Офис собственника
Фотография © Михаил Лоскутов / предоставлена BLOCKSTUDIO

Переговорные обоих офисных пространств оснащены системами контроля доступа, системами управления уровнем освещенности, температуры и влажности. Кабинеты оснащены эргономичной офисной мебелью компаний Bene, Herman Miller и Human Scale. Для сотрудников, деятельность которых сопряжена с продолжительным нахождением перед несколькими мониторами (трейдеры), предусмотрены эргономичные станции с автоматической регулировкой высоты и акустическими экранами от компании BENE. В качестве рабочих кресел для большинства помещений выбрали рабочие кресла Aeron от компании Herman Miller и Different от Human Scale.
Офисное пространство управляющей компании и собственника универмага Цветной. Офис собственника
Офисное пространство управляющей компании и собственника универмага Цветной. Офис собственника
Фотография © Михаил Лоскутов / предоставлена BLOCKSTUDIO
 
Офисное пространство управляющей компании и собственника универмага Цветной. Офис собственника
Офисное пространство управляющей компании и собственника универмага Цветной. Офис собственника
Фотография © Михаил Лоскутов / предоставлена BLOCKSTUDIO

Наклонное остекление и высокие потолки сложной геометрии послужили отправной точкой для разработки системы звукопоглощения из подвесных акустических панелей Ecophon Solo Baffle. Применение такой конструкции позволило сохранить высоту потолков, объемы помещений, доступ дневного света, а также не помешало проложить инженерные коммуникации не нарушая эстетики
Офисное пространство управляющей компании и собственника универмага Цветной. Офис УК универмага
Офисное пространство управляющей компании и собственника универмага Цветной. Офис УК универмага
Фотография © Юрий Пальмин / предоставлена BLOCKSTUDIO
Офисное пространство управляющей компании и собственника универмага Цветной. Офис УК универмага
Офисное пространство управляющей компании и собственника универмага Цветной. Офис УК универмага
Фотография © Юрий Пальмин / предоставлена BLOCKSTUDIO


Офис собственника

В качестве дополнительных материалов в концепции дизайна офиса компании BONUM CAPITAL использованы панели из натурального дерева, системы офисных перегородок компании Feco GmBH, экологически безопасное плетеное виниловое покрытие компании Bolon с высокими характеристиками износостойкости и шумопоглощения. Главным акцентом гостевой зоны выбрана стойка лаконичного дизайна из литого муранского стекла по авторскому дизайну архитекторов консорциума производства компании Nickel Collective. Отличительная черта проекта – наличие переговорной со всеми атрибутами сигарной комнаты: настоящим дровяным камином, коммьюнити-баром, кинотеатром и аудиосистемой. 
Офисное пространство управляющей компании и собственника универмага Цветной. Офис собственника Фотография © Михаил Лоскутов / предоставлена BLOCKSTUDIO
Офисное пространство управляющей компании и собственника универмага Цветной. Офис собственника
Фотография © Михаил Лоскутов / предоставлена BLOCKSTUDIO
Офисное пространство управляющей компании и собственника универмага Цветной. Офис собственника Фотография © Михаил Лоскутов / предоставлена BLOCKSTUDIO
Офисное пространство управляющей компании и собственника универмага Цветной. Офис собственника
Фотография © Михаил Лоскутов / предоставлена BLOCKSTUDIO
Офисное пространство управляющей компании и собственника универмага Цветной. Офис собственника Фотография © Михаил Лоскутов / предоставлена BLOCKSTUDIO
Офисное пространство управляющей компании и собственника универмага Цветной. Офис собственника
Фотография © Михаил Лоскутов / предоставлена BLOCKSTUDIO
Офисное пространство управляющей компании и собственника универмага Цветной. Офис собственника Фотография © Михаил Лоскутов / предоставлена BLOCKSTUDIO
Офисное пространство управляющей компании и собственника универмага Цветной. Офис собственника
Фотография © Михаил Лоскутов / предоставлена BLOCKSTUDIO
Офисное пространство управляющей компании и собственника универмага Цветной. Офис собственника Фотография © Юрий Пальмин / предоставлена BLOCKSTUDIO
Офисное пространство управляющей компании и собственника универмага Цветной. Офис собственника
Фотография © Юрий Пальмин / предоставлена BLOCKSTUDIO
Офисное пространство управляющей компании и собственника универмага Цветной. Офис собственника Фотография © Михаил Лоскутов / предоставлена BLOCKSTUDIO
Офисное пространство управляющей компании и собственника универмага Цветной. Офис собственника
Фотография © Михаил Лоскутов / предоставлена BLOCKSTUDIO
Офисное пространство управляющей компании и собственника универмага Цветной. Офис собственника Фотография © Михаил Лоскутов / предоставлена BLOCKSTUDIO
Офисное пространство управляющей компании и собственника универмага Цветной. Офис собственника
Фотография © Михаил Лоскутов / предоставлена BLOCKSTUDIO

Офис управляющей компании

Это пространство получилось светлым, сдержанным, почти монохромным. Дизайн интерьеров перекликается с колористическим решением фасада, делает пространство максимально нейтральным, способствующим комфортной работе.
Офисное пространство управляющей компании и собственника универмага Цветной. Офис УК универмага
Офисное пространство управляющей компании и собственника универмага Цветной. Офис УК универмага
Фотография © Юрий Пальмин / предоставлена BLOCKSTUDIO

Интерьер наполнен предметами авторского дизайна. Стойка ресепшен собрана из модульной системы USM, образец которой включен в постоянную коллекцию Музея современного искусства Нью-Йорка и Национального музея дизайна в Швейцарии. За систему освещения Belt компании Flos, выбранную для подсветки зоны ресепшен, создатели Ронан и Эрван Буруллеки получили самую престижную награду в мире предметного дизайна Compasso d’Oro. 
Офисное пространство управляющей компании и собственника универмага Цветной. Офис УК универмага
Офисное пространство управляющей компании и собственника универмага Цветной. Офис УК универмага
Фотография © Михаил Лоскутов / предоставлена BLOCKSTUDIO
Офисное пространство управляющей компании и собственника универмага Цветной. Офис УК универмага
Офисное пространство управляющей компании и собственника универмага Цветной. Офис УК универмага
Фотография © Юрий Пальмин / предоставлена BLOCKSTUDIO

Одним из центров притяжения в пространстве стала трансформируемая в лаунж-зону переговорная с диваном Moraine дизайна Захи Хадид.
Офисное пространство управляющей компании и собственника универмага Цветной. Офис УК универмага
Офисное пространство управляющей компании и собственника универмага Цветной. Офис УК универмага
Фотография © Михаил Лоскутов / предоставлена BLOCKSTUDIO