Размещено на портале Архи.ру (www.archi.ru)

16.02.2024

Кофе со сливками

Объект:
OVO Bistro
Адрес:
Сербия, Белград. Светогорская улица, 17
Мастерская:
Static Aesthetic
Авторский коллектив:
Партнер бюро, архитектор: ​Алексей Добров
Партнер бюро, архитектор: Никита Ситников
Архитектор: Александр Бормотов, Сергей Горшков, Анастасия Федосова, Владислав Борисов
Управляющий менеджер: Залина Зангиева
 

Бистро в центре Белграда с дубовыми панелями, бордовым мрамором, патио и лестницей-диваном. Интерьером занималось московское бюро Static Aesthetic.

Описание предоставлено архитекторами

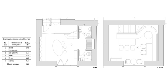
Бистро Ovo открылось в здании XIX века в центре Белграда. На первом этаже гостей встречает овальный барный остров из натурального мрамора с основанием из массива дуба и окантовкой из нержавеющей стали. Благодаря конфигурации и расположению он становится центром внимания и зоной гостеприимства, в которой бармены встречают гостей как будто у себя дома.
OVO Bistro
OVO Bistro
Фотография © Илья Иванов / предоставлена Static Aesthetic

Важным элементом дизайна является лестница, спроектированная с нуля. Она начинается с деревянных стеновых панелей и плавно перетекает в спинку сделанного на заказ дивана второго этажа, формируя бесшовное пространство. Благодаря нестандартной форме дивана на небольшой площади получилось организовать 18 посадочных мест.
OVO Bistro Фотография © Илья Иванов / предоставлена Static Aesthetic
OVO Bistro
Фотография © Илья Иванов / предоставлена Static Aesthetic
OVO Bistro Фотография © Илья Иванов / предоставлена Static Aesthetic
OVO Bistro
Фотография © Илья Иванов / предоставлена Static Aesthetic
OVO Bistro
OVO Bistro
Фотография © Илья Иванов / предоставлена Static Aesthetic

Остекление первого этажа с возможностью полного открытия витражей превращает его в летнее патио и соединяет пространство бара и внутреннего сада.
OVO Bistro Фотография © Илья Иванов / предоставлена Static Aesthetic
OVO Bistro
Фотография © Илья Иванов / предоставлена Static Aesthetic
OVO Bistro Фотография © Илья Иванов / предоставлена Static Aesthetic
OVO Bistro
Фотография © Илья Иванов / предоставлена Static Aesthetic
OVO Bistro
OVO Bistro
Фотография © Илья Иванов / предоставлена Static Aesthetic

В санузлах – раковины из бордового мрамора. Этот цвет довольно редко встречается в таких помещениях, но перекликается с общей атмосферой бистро. 
OVO Bistro
OVO Bistro
Фотография © Илья Иванов / предоставлена Static Aesthetic
OVO Bistro
OVO Bistro
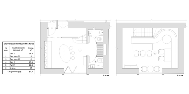
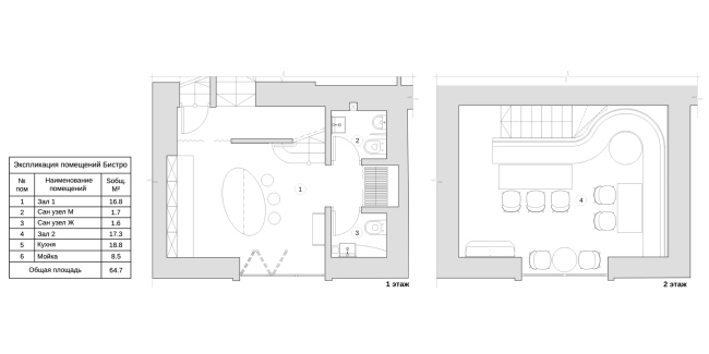
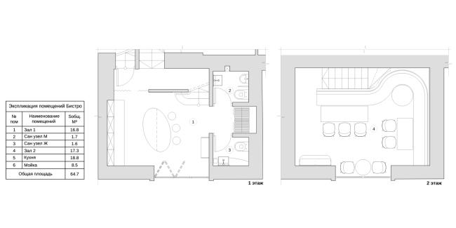
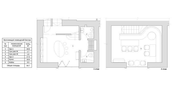
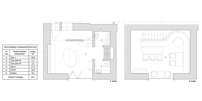
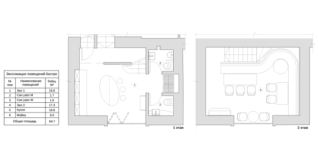
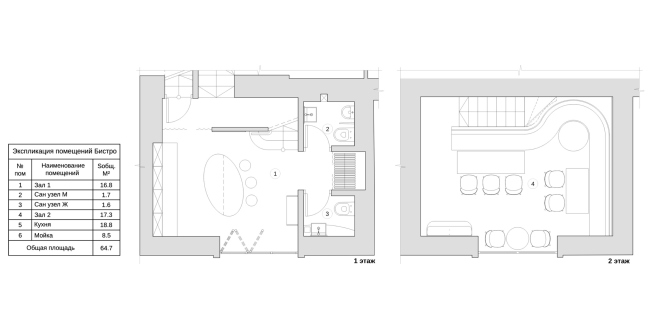
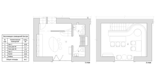
© Static Aesthetic
OVO Bistro
OVO Bistro
© Static Aesthetic