Размещено на портале Архи.ру (www.archi.ru)

15.02.2024

Бетон и море

Объект:
NAVERH
Адрес:
Россия, Светлогорск. Морской бульвар, 19
Мастерская:
line design studio
Авторский коллектив:
​Младший партнер, ведущий дизайнер студии: Софья Смазнова 
Соучредитель студии: Александр Везломцев
Соучредитель студии: Михаил Ленько
Исполнитель рабочей документации: Евгения Енина

В Светлогорске в одном из помещений берегового лифта открылся гастрономический бар. Архитекторы line design studio сохранили брутальный характер места, добавив дихроичное стекло, металл и бетон, а главный акцент сделали на изменчивом пейзаже за окном.

Описание предоставлено архитекторами

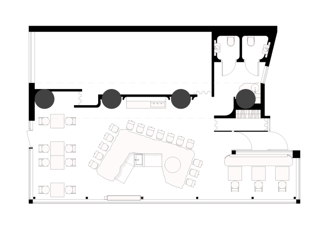
Гастробар открылся в здании общественного лифта на берегу Балтийского моря: под з6-метровой фермой, которая опирается на 42-метровую шахту подъемника. Тремя сторонами помещение выходит на Балтийское море.
 

NAVERH
NAVERH
© line design studio

Виды, открывающиеся из окон, настолько изменчивы и неповторимы, что в концепции пространства архитекторам хотелось это подчеркнуть. Нейтральный интерьер будто растворяется в море, а нержавеющая сталь и дихроичное стекло добавляют игру света. Суровый характер строения тоже не стали игнорировать. Несущие элементы из бетона и металлические сваи бережно сохранили и подчеркнули. 
NAVERH
NAVERH
Фотография © Дмитрий Цыренщиков / предоставлена line design studio
NAVERH
NAVERH
Фотография © Дмитрий Цыренщиков / предоставлена line design studio

Центральным элементом планировки выступает бетонная барная стойка. Сидя за ней, посетители могут не только наблюдать за работой бармена, но и наслаждаться панорамными видами на Балтийское море. 
NAVERH
NAVERH
Фотография © Дмитрий Цыренщиков / предоставлена line design studio

Столешница барной стойки с мягкими рванными краями и монолитной поверхностью без швов была создана путем формирования бетона на месте в опалубке силиконовой формы, изготовленной на 3D-принтере. Благодаря этому удалось достичь высокой прочности и устойчивости столешницы, а ее необычная текстура придает стойке визуальный интерес.
NAVERH
NAVERH
Фотография © Дмитрий Цыренщиков / предоставлена line design studio
NAVERH
NAVERH
Фотография © Дмитрий Цыренщиков / предоставлена line design studio

Столешница опирается на металлический каркас, обшитый листами черного металла естественного старения. Этот материал поддерживает важные конструктивные элементы – четыре металлические сваи. На них сделали особый акцент, подсветив эти величественные колонны и мягко обогнув стеновой перегородкой, которая отделяет основной зал от кухни.
NAVERH
NAVERH
Фотография © Дмитрий Цыренщиков / предоставлена line design studio
NAVERH
NAVERH
Фотография © Дмитрий Цыренщиков / предоставлена line design studio

Сами металлические колонны не трогали, оставив технические отметки, варочные швы, подтеки и шероховатости, которые образовались в процессе стройки здания, покрыв их прозрачным лаком. 
NAVERH
NAVERH
Фотография © Дмитрий Цыренщиков / предоставлена line design studio

Другим важным элементом является большой цилиндрический светильник над барной стойкой. Внешняя часть светильника отделана фактурной штукатуркой-шубой, а внутренняя обшита листом черного металла, состаренного с помощью кислоты. 
NAVERH
NAVERH
Фотография © Дмитрий Цыренщиков / предоставлена line design studio

Для барной стойки были спроектированы стулья, которые с первого взгляда вызывают ассоциации с нарушением законов физики. Кажется, что тонкий конструктив из нержавеющего металла едва прикасается к мягкому сиденью, спинке и бетонному основанию для опоры ног, что создает впечатление парения. На самом деле, это полноценный металлический каркас, прочно связанный со всеми элементами и обшитый листом нержавеющей стали.
NAVERH
NAVERH
Фотография © Дмитрий Цыренщиков / предоставлена line design studio

Для обеденной группы использовали те же материалы и принципы формообразования, но в конструкцию стола добавили дихроичное стекло, которое меняет цветовую гамму в зависимости от угла обзора или освещения, а также наполняет интерьер цветными бликами. Обеденные группы размещены по периметру зала у панорамных окон. 
NAVERH
NAVERH
Фотография © Дмитрий Цыренщиков / предоставлена line design studio
NAVERH Фотография © Дмитрий Цыренщиков / предоставлена line design studio
NAVERH
Фотография © Дмитрий Цыренщиков / предоставлена line design studio
NAVERH Фотография © Дмитрий Цыренщиков / предоставлена line design studio
NAVERH
Фотография © Дмитрий Цыренщиков / предоставлена line design studio
NAVERH Фотография © Дмитрий Цыренщиков / предоставлена line design studio
NAVERH
Фотография © Дмитрий Цыренщиков / предоставлена line design studio
NAVERH Фотография © Дмитрий Цыренщиков / предоставлена line design studio
NAVERH
Фотография © Дмитрий Цыренщиков / предоставлена line design studio