Размещено на портале Архи.ру (www.archi.ru)

01.02.2024

Стрит-арт на стройке

Объект:
Магазин бренда «Питерский щит» в Санкт-Петербурге
Адрес:
Россия, Санкт-Петербург. ул. Гороховая, д 49
Авторский коллектив:
Дизайнер: Валентина Дукмас
Стилист съемки: Никита Шаталов
Текст: Даниил Боровков

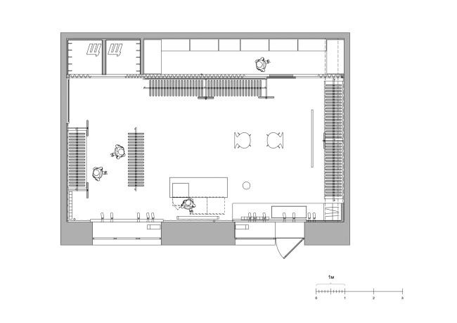
Магазин уличной одежды в петербургском пространстве Seno Валентина Дукмас оформила граффити, заборами из профлиста, строительными лесами и пластиковыми стульями. Контраст им составляют старинные деревянные балки и кирпичные стены.

Описание предоставлено архитекторами

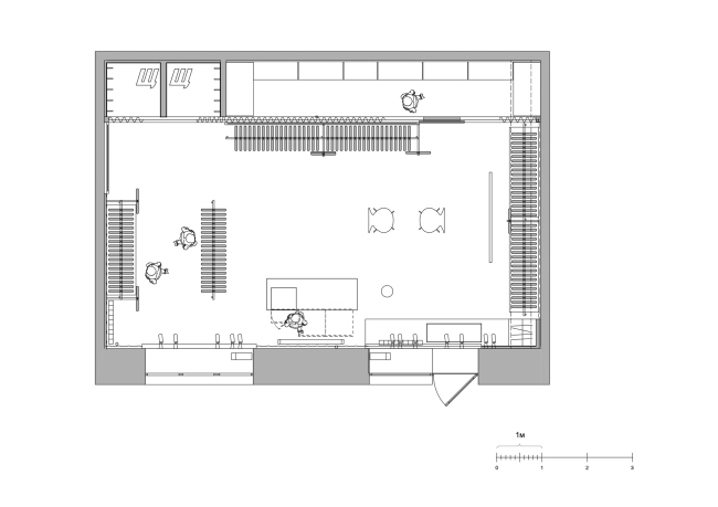
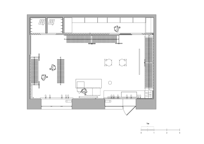
Магазин открылся в пространстве Seno – бывшей промышленной зоне в центре Петербурга, которая была преобразована в современный торгово-развлекательный кластер. В помещении сохранились старинные деревянные балки перекрытий и кирпичные стены.
Магазин бренда «Питерский щит» в Санкт-Петербурге
Магазин бренда «Питерский щит» в Санкт-Петербурге
Фотография © Максим Максимов / предоставлена Валентиной Дукмас

Погрузившись в атмосферу бренда, Валентина Дукмас решила покрыть кирпичные стены граффити, для чего пригласила петербургских уличных художников. Рисунки были искусственно состарены: тем самым у посетителя создается впечатление, что стены сохранились в нетронутом виде с тех пор, когда магазина еще не было и в помине.
Магазин бренда «Питерский щит» в Санкт-Петербурге
Магазин бренда «Питерский щит» в Санкт-Петербурге
Фотография © Максим Максимов / предоставлена Валентиной Дукмас

Граффити огорожены «заборами» из профлиста и металлической сетки, которые олицетворяют переход бренда к новому витку развития. Идею подхватывают шторы из хромированной ткани, которые отделяют примерочные и склад от торгового зала.
Магазин бренда «Питерский щит» в Санкт-Петербурге
Магазин бренда «Питерский щит» в Санкт-Петербурге
Фотография © Максим Максимов / предоставлена Валентиной Дукмас

Рейлы для одежды выполнены из строительных лесов. Высоту штанг и их расположение в торговом зале можно менять для экспонирования товаров. Мебель из металла многофункциональна и вписывается в общую стилистику пространства. Например, кассовая стойка подвижна и во время мероприятий может выполнять задачи DJ-стойки.
Магазин бренда «Питерский щит» в Санкт-Петербурге
Магазин бренда «Питерский щит» в Санкт-Петербурге
Фотография © Максим Максимов / предоставлена Валентиной Дукмас

Преимущественно нейтральный интерьер с преобладанием металлических поверхностей разбавляют такие элементы, как желтые пуфы в форме буквы “Щ” или пластиковые стулья, расписанные граффити-тэгами. Для вывесок магазина были найдены и восстановлены винтажные указатели из метрополитена. Сейчас на них нанесены название и логотип бренда.
Магазин бренда «Питерский щит» в Санкт-Петербурге
Магазин бренда «Питерский щит» в Санкт-Петербурге
Фотография © Максим Максимов / предоставлена Валентиной Дукмас
Магазин бренда «Питерский щит» в Санкт-Петербурге
Магазин бренда «Питерский щит» в Санкт-Петербурге
Фотография © Максим Максимов / предоставлена Валентиной Дукмас
Магазин бренда «Питерский щит» в Санкт-Петербурге Фотография © Максим Максимов  / предоставлена Валентиной Дукмас
Магазин бренда «Питерский щит» в Санкт-Петербурге
Фотография © Максим Максимов / предоставлена Валентиной Дукмас
Магазин бренда «Питерский щит» в Санкт-Петербурге Фотография © Максим Максимов  / предоставлена Валентиной Дукмас
Магазин бренда «Питерский щит» в Санкт-Петербурге
Фотография © Максим Максимов / предоставлена Валентиной Дукмас
Магазин бренда «Питерский щит» в Санкт-Петербурге
Магазин бренда «Питерский щит» в Санкт-Петербурге
© Валентина Дукмас