Размещено на портале Архи.ру (www.archi.ru)

24.01.2024

Смотровая вышка

Объект:
DOM_S
Адрес:
Россия, Сочи. Красная поляна, ул. Защитников Кавказа, 38/1
Мастерская:
Архитектурное бюро DEMIDOVA
Авторский коллектив:
ГАП, руководитель авторского коллектива: ​Мария Демидова
Архитекторы: Инна Юровских, Анастасия Змеева, Алена Шилкова

Дом в Красной поляне, спроектированный екатеринбургским бюро Марии Демидовой, занимает очень узкий участок. Архитекторы вытянули объем вверх и добавили террасы, тем самым раскрыв виды на горы и освободив место для патио и бассейна.

Описание предоставлено архитекторами

На объем дома большое влияние оказал узкий L-образный участок. Он находится в секторе частной застройки, а с южной стороны выходит на широкую зеленую террасу, которая спускается к реке Мзымта.
DOM_S
DOM_S
Фотография © Роман Иванов / предоставлена Архитектурное бюро DEMIDOVA
DOM_S. Генплан
DOM_S. Генплан
© Архитектурное бюро DEMIDOVA

Архитекторы предложили трехэтажный блокированный дом вытянутой формы, рассчитанный на проживание двух семей – для каждой предусмотрен отдельный вход, а также общая терраса, с которой открываются виды на горы. На первом этаже располагается гостиная и кухня, на верхних – три спальни. Окна ориентированы на раскрытие наиболее красивых видов. Также на территории расположена крытая парковка, бассейн, сауна и летняя кухня.

DOM_S Фотография © Роман Иванов / предоставлена Архитектурное бюро DEMIDOVA
DOM_S
Фотография © Роман Иванов / предоставлена Архитектурное бюро DEMIDOVA
DOM_S Фотография © Роман Иванов / предоставлена Архитектурное бюро DEMIDOVA
DOM_S
Фотография © Роман Иванов / предоставлена Архитектурное бюро DEMIDOVA
DOM_S Фотография © Роман Иванов / предоставлена Архитектурное бюро DEMIDOVA
DOM_S
Фотография © Роман Иванов / предоставлена Архитектурное бюро DEMIDOVA
DOM_S Фотография © Роман Иванов / предоставлена Архитектурное бюро DEMIDOVA
DOM_S
Фотография © Роман Иванов / предоставлена Архитектурное бюро DEMIDOVA
DOM_S Фотография © Роман Иванов / предоставлена Архитектурное бюро DEMIDOVA
DOM_S
Фотография © Роман Иванов / предоставлена Архитектурное бюро DEMIDOVA
DOM_S Фотография © Роман Иванов / предоставлена Архитектурное бюро DEMIDOVA
DOM_S
Фотография © Роман Иванов / предоставлена Архитектурное бюро DEMIDOVA
DOM_S. Аксонометрия © Архитектурное бюро DEMIDOVA
DOM_S. Аксонометрия
© Архитектурное бюро DEMIDOVA
DOM_S. Схема фасадов © Архитектурное бюро DEMIDOVA
DOM_S. Схема фасадов
© Архитектурное бюро DEMIDOVA
DOM_S © Архитектурное бюро DEMIDOVA
DOM_S
© Архитектурное бюро DEMIDOVA
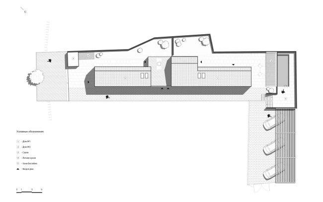
DOM_S. План 1 этажа © Архитектурное бюро DEMIDOVA
DOM_S. План 1 этажа
© Архитектурное бюро DEMIDOVA
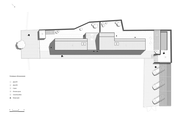
DOM_S. План 2 этажа © Архитектурное бюро DEMIDOVA
DOM_S. План 2 этажа
© Архитектурное бюро DEMIDOVA
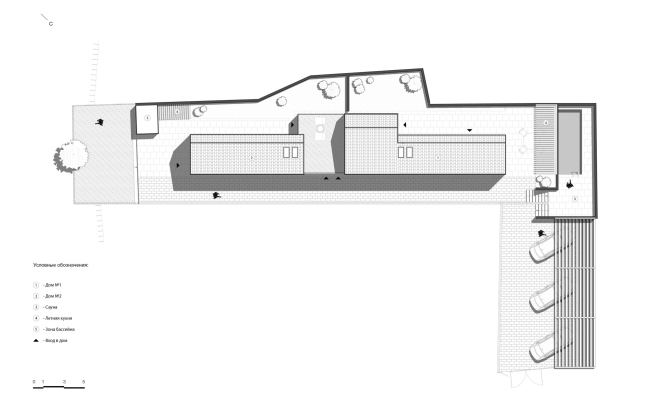
DOM_S. План 3 этажа © Архитектурное бюро DEMIDOVA
DOM_S. План 3 этажа
© Архитектурное бюро DEMIDOVA