Размещено на портале Архи.ру (www.archi.ru)

22.11.2023

Стиль лобби

Объект:
ЕМКА в Ростове-на-Дону
Адрес:
Россия, Ростов-на-Дону. просп. Михаила Нагибина, 32Ж (1 этаж) ТРЦ Горизонт
Мастерская:
Sinitsa Buro
Авторский коллектив:
Сооснователь, CEO: Дарья Кирпичникова 
Сооснователь, ГАП: Анастасия Колчина 
Архитекторы: Варвара Сереброва, Евгения Берштейн, Татьяна Кузнецова

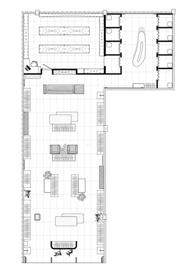
Магазин бренда Emka выделяется в галерее торгового центра Ростова-на-Дону за счет ставки на сдержанность, ритм и асимметрию: проектируя пространство, архитекторы вдохновлялись образами хороших отелей. Среди сложных решений: гранитная кассовая стойка и деревянные кессоны на потолке.

Описание предоставлено архитекторами

Авторы интерьера стремились превратить посещение магазина в небольшое путешествие и даже мини-отпуск. Проектируя стеллажи и примерочные, выбирая материалы, определяя логику организации пространства, свет и атмосферу, архитекторы вдохновлялись образами хороших отелей.
ЕМКА в Ростове-на-Дону
ЕМКА в Ростове-на-Дону
Фотография © Инна Каблукова / предоставлена Sinitsa Buro
ЕМКА в Ростове-на-Дону
ЕМКА в Ростове-на-Дону
Фотография © Инна Каблукова / предоставлена Sinitsa Buro
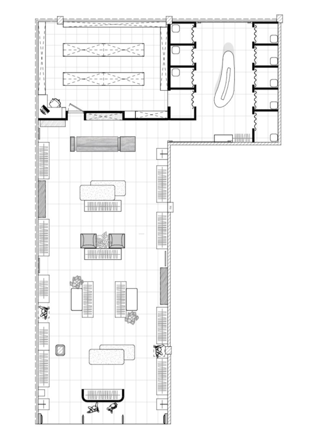
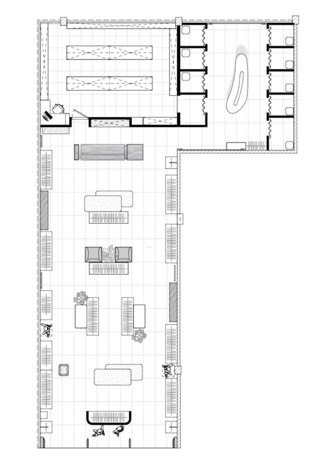
ЕМКА в Ростове-на-Дону
ЕМКА в Ростове-на-Дону
© Sinitsa Buro

В интерьере покупательница находит и что-то хорошо знакомое, и что-то новое для себя. Сочетание фактурной штукатурки, текстуры камня, оттенки дерева – это проверенная временем классика, которая за счет ассиметричной объемной композиции смотрится свежо. Реализовать объемную деревянную решетку на потолке, не утяжеляя нагрузку на перекрытия, оказалось не просто, но архитекторы нашли специальное решение. Сложно было сделать и кассу – подрядчики не хотели браться за работу с керамогранитом, несмотря на то, что узел часто встречается в отделке частных интерьеров, особенно кухонь. Скругленные линии рейлов и горизонтальной выкладки дополняют друг друга, одновременно успокаивая общее объемное решение.
ЕМКА в Ростове-на-Дону
ЕМКА в Ростове-на-Дону
Фотография © Инна Каблукова / предоставлена Sinitsa Buro
ЕМКА в Ростове-на-Дону
ЕМКА в Ростове-на-Дону
Фотография © Инна Каблукова / предоставлена Sinitsa Buro

Сделав ставку на ритм, асимметрию и оттенки натурального дерева, авторы постарались создать обволакивающее комфортное пространство, из которого не хочется уходить. Особое внимание уделено примерочным, кассе, зоне отдыха и ожидания, а также освещению.
ЕМКА в Ростове-на-Дону Фотография © Инна Каблукова / предоставлена  Sinitsa Buro
ЕМКА в Ростове-на-Дону
Фотография © Инна Каблукова / предоставлена Sinitsa Buro
ЕМКА в Ростове-на-Дону Фотография © Инна Каблукова / предоставлена  Sinitsa Buro
ЕМКА в Ростове-на-Дону
Фотография © Инна Каблукова / предоставлена Sinitsa Buro
ЕМКА в Ростове-на-Дону Фотография © Инна Каблукова / предоставлена  Sinitsa Buro
ЕМКА в Ростове-на-Дону
Фотография © Инна Каблукова / предоставлена Sinitsa Buro
ЕМКА в Ростове-на-Дону Фотография © Инна Каблукова / предоставлена  Sinitsa Buro
ЕМКА в Ростове-на-Дону
Фотография © Инна Каблукова / предоставлена Sinitsa Buro