Размещено на портале Архи.ру (www.archi.ru)

07.01.2024

Северная Фиваида

Объект:
Ферапонтово: Русская Фиваида на Севере
Адрес:
Россия, Вологодская область, Ферапонтово.
Мастерская:
APRELarchitects
Авторский коллектив:
Михаил Разумовский, Алексей Фатькин, Галина Волжанская, Вероника Бабенко, Анастасия Маркина

По проекту бюро APRELarchitects благоустроена центральная часть села Ферапонтово, примыкающего к знаменитому монастырю с фресками Дионисия. Теперь здесь есть базовые сервисы для туристов, а также место для досуга сельчан.

Описание предоставлено архитекторами

Ферапонтов монастырь – объект Всемирного наследия ЮНЕСКО. Проект развития и благоустройства территории центральной части села Ферапонтово, расположенного в непосредственной близости от монастыря, победил во Всероссийском конкурсе комфортной городской среды. 
Ферапонтово: Русская Фиваида на Севере
Ферапонтово: Русская Фиваида на Севере
Фотография предоставлена APRELarchitects
Ферапонтово: Русская Фиваида на Севере. Было
Ферапонтово: Русская Фиваида на Севере. Было
Фотография предоставлена APRELarchitects
Ферапонтово: Русская Фиваида на Севере. Стало
Ферапонтово: Русская Фиваида на Севере. Стало
Фотография предоставлена APRELarchitects

Территория проектирования включила пространство главной площади села, путь до монастыря по мосту через речку Паска, а также тропу вдоль берега Бородаевского озера с видами на монастырь.
Ферапонтово: Русская Фиваида на Севере
Ферапонтово: Русская Фиваида на Севере
© APRELarchitects
Ферапонтово: Русская Фиваида на Севере
Ферапонтово: Русская Фиваида на Севере
© APRELarchitects

В рамках проекта была улучшена связанность территории, налажены пешеходные маршруты, урегулировано автомобильное движение. На главной площади появилось открытое пешеходное пространства для мероприятий. Также проводились работы по восстановлению пейзажа.
Ферапонтово: Русская Фиваида на Севере
Ферапонтово: Русская Фиваида на Севере
Фотография предоставлена APRELarchitects
Ферапонтово: Русская Фиваида на Севере
Ферапонтово: Русская Фиваида на Севере
Фотография предоставлена APRELarchitects

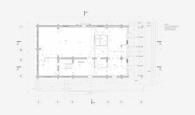
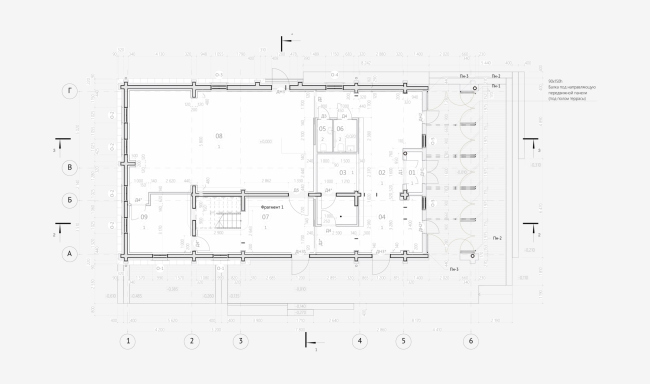
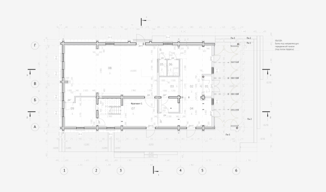
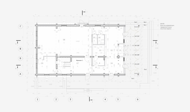
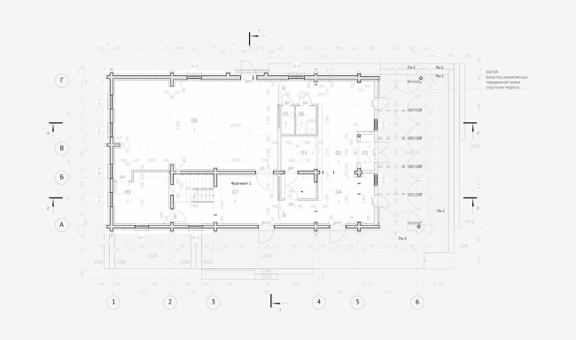
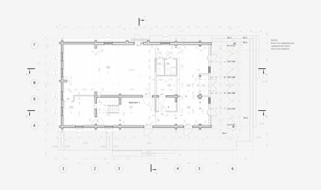
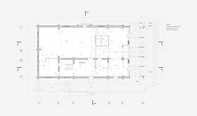
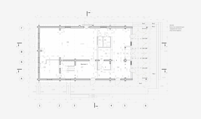
Пустующее здание дома культуры на главной площади превратили в многофункциональный общественный объект, преобразив его диссонирующие фасады и кровлю. Выходящий на площадь фасад за счет трансформируемых панелей может выполнять роль сцены.
Ферапонтово: Русская Фиваида на Севере. Клуб. План
Ферапонтово: Русская Фиваида на Севере. Клуб. План
© APRELarchitects

Здание приспособлено под туристический информационный центр, но основную часть отдали под универсальный зал сельского дома культуры. Таким образом на площади появились как базовые сервисы для туристов (информация, туалет, кофе и терраса с видом на монастырь), так и место встречи и проведения мероприятий для сельчан. Также проектом заложено появление детской игровой зоны, хлебной и сувенирных лавок. Для объединения всех построек в общую композицию добавлена теневая галерея.
Ферапонтово: Русская Фиваида на Севере. Стало Фотография предоставлена APRELarchitects
Ферапонтово: Русская Фиваида на Севере. Стало
Фотография предоставлена APRELarchitects
Ферапонтово: Русская Фиваида на Севере Фотография предоставлена APRELarchitects
Ферапонтово: Русская Фиваида на Севере
Фотография предоставлена APRELarchitects
Ферапонтово: Русская Фиваида на Севере Фотография предоставлена APRELarchitects
Ферапонтово: Русская Фиваида на Севере
Фотография предоставлена APRELarchitects

Работая над комплексным благоустройством и формируя новые сценарии использования территории, команда APRELarchitects посчитала необходимым разработать туристическую карту села и создать айдентику, которая легла в основу линейки туристической продукции и продвижения села Ферапонтово во внешнем информационном пространстве. Карта была разработана совместно с вологодским художником и графическим дизайнером Михаилом Приемышевым / Misha Priem.
Ферапонтово: Русская Фиваида на Севере. Палитра проекта. Фрески Дионисия Фотография предоставлена APRELarchitects
Ферапонтово: Русская Фиваида на Севере. Палитра проекта. Фрески Дионисия
Фотография предоставлена APRELarchitects
Ферапонтово: Русская Фиваида на Севере © APRELarchitects
Ферапонтово: Русская Фиваида на Севере
© APRELarchitects
Ферапонтово: Русская Фиваида на Севере © APRELarchitects
Ферапонтово: Русская Фиваида на Севере
© APRELarchitects
Ферапонтово: Русская Фиваида на Севере © APRELarchitects
Ферапонтово: Русская Фиваида на Севере
© APRELarchitects
Ферапонтово: Русская Фиваида на Севере © APRELarchitects
Ферапонтово: Русская Фиваида на Севере
© APRELarchitects
Ферапонтово: Русская Фиваида на Севере © APRELarchitects
Ферапонтово: Русская Фиваида на Севере
© APRELarchitects
Ферапонтово: Русская Фиваида на Севере © APRELarchitects
Ферапонтово: Русская Фиваида на Севере
© APRELarchitects
Ферапонтово: Русская Фиваида на Севере © APRELarchitects
Ферапонтово: Русская Фиваида на Севере
© APRELarchitects