Размещено на портале Архи.ру (www.archi.ru)

04.11.2023

Приближение искусства к народу

Нина Фролова
Объект:
Филиал Государственного музея искусств (SMK) в Тю
Адрес:
Дания, None, Тистед.

Первый и пока единственный филиал Государственного музея искусств (SMK) в Копенгагене отроется в сельской местности на севере Дании. Авторы проекта его комплекса – Reiulf Ramstad Arkitekter.

Идея открыть филиал SMK на севере полуострова Ютландия, в округе Тю, исходила от местных жителей, которых поддержало руководство музея и Министерство культуры. Средства выделил один из крупнейших благотворительных фондов Дании – A.P. Møller Fonden.
 

Филиал Государственного музея искусств (SMK) в Тю
Филиал Государственного музея искусств (SMK) в Тю
© Reiulf Ramstad Arkitekter

Свои цели SMK описывает так: благодаря филиалу искусство из собрания музея увидит значительно большая часть населения, в принципе удаленная от больших городов, поэтому это гораздо эффективнее, чем, например, расширять свой комплекс Копенгагене.
 
Филиал Государственного музея искусств (SMK) в Тю
Филиал Государственного музея искусств (SMK) в Тю
© Reiulf Ramstad Arkitekter

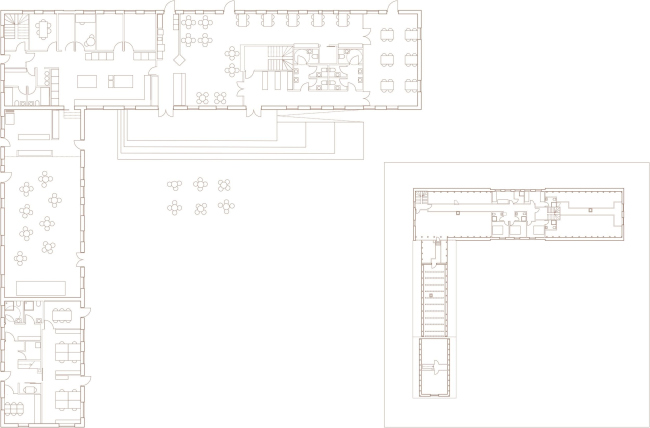
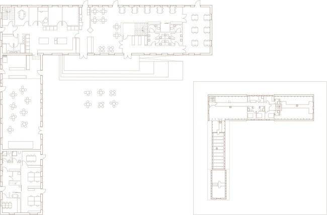
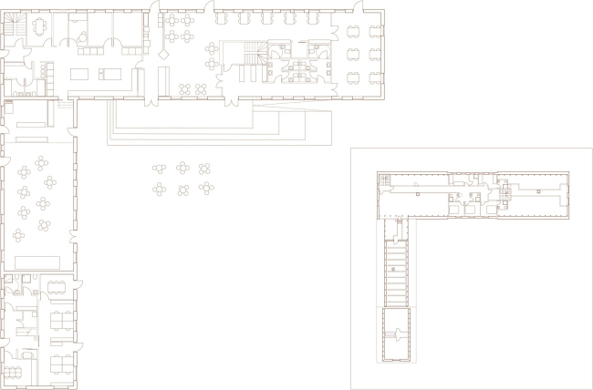
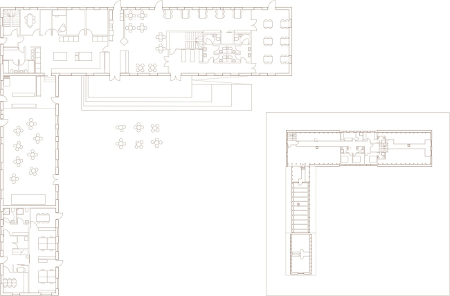
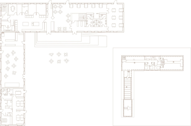
Местом расположения филиала была выбрана Доверодде Кёмансгор (Doverodde Købmandsgård), возникшая в XIX веке «торговая точка», куда местные жители свозили зерно и другую сельскохозяйственную продукцию для последующей реализации и там же могли купить промышленные товары. С историческими складами соседствует зерновой элеватор, использующийся сейчас как смотровая башня.
 
Филиал Государственного музея искусств (SMK) в Тю
Филиал Государственного музея искусств (SMK) в Тю
© Reiulf Ramstad Arkitekter

С 2021 под эгидой музея здесь проходят различные выставки и культурные мероприятия, также комплекс служит как центр природного туризма: сравнительно недавно в Тю появился национальный парк (филиал SMK также рассчитан, конечно, не только на местных жителей, но и на туристов, приезжающих сюда в теплый сезон – всего ожидается порядка 35 тыс. посетителей в год).
 
Филиал Государственного музея искусств (SMK) в Тю
Филиал Государственного музея искусств (SMK) в Тю
© Reiulf Ramstad Arkitekter

По итогам конкурса проект реконструкции поручили норвежскому бюро Reiulf Ramstad Arkitekter. Их замысел охватывает превращение большего, Г-образного, склада в кафе, ресторан, музейные офисы и центр природного туризма. Меньший склад вместит выставочные пространства. В качестве посетительского центра возведут небольшой «привратный» павильон, реконструкция охватит и элеватор. Рядом планируется небольшой деревянный комплекс для туристов – любителей природы.
 
Филиал Государственного музея искусств (SMK) в Тю. Выставочный корпус © Reiulf Ramstad Arkitekter
Филиал Государственного музея искусств (SMK) в Тю. Выставочный корпус
© Reiulf Ramstad Arkitekter
Филиал Государственного музея искусств (SMK) в Тю. Выставочный корпус © Reiulf Ramstad Arkitekter
Филиал Государственного музея искусств (SMK) в Тю. Выставочный корпус
© Reiulf Ramstad Arkitekter
Филиал Государственного музея искусств (SMK) в Тю. Выставочный корпус © Reiulf Ramstad Arkitekter
Филиал Государственного музея искусств (SMK) в Тю. Выставочный корпус
© Reiulf Ramstad Arkitekter
Филиал Государственного музея искусств (SMK) в Тю. Выставочный корпус © Reiulf Ramstad Arkitekter
Филиал Государственного музея искусств (SMK) в Тю. Выставочный корпус
© Reiulf Ramstad Arkitekter

Открытие запланировано на день лентнего солнцестояния в 2025.
Филиал Государственного музея искусств (SMK) в Тю
Филиал Государственного музея искусств (SMK) в Тю
© Reiulf Ramstad Arkitekter
Филиал Государственного музея искусств (SMK) в Тю
Филиал Государственного музея искусств (SMK) в Тю
© Reiulf Ramstad Arkitekter
Филиал Государственного музея искусств (SMK) в Тю
Филиал Государственного музея искусств (SMK) в Тю
© Reiulf Ramstad Arkitekter
Филиал Государственного музея искусств (SMK) в Тю © Reiulf Ramstad Arkitekter
Филиал Государственного музея искусств (SMK) в Тю
© Reiulf Ramstad Arkitekter
Филиал Государственного музея искусств (SMK) в Тю © Reiulf Ramstad Arkitekter
Филиал Государственного музея искусств (SMK) в Тю
© Reiulf Ramstad Arkitekter
Филиал Государственного музея искусств (SMK) в Тю © Reiulf Ramstad Arkitekter
Филиал Государственного музея искусств (SMK) в Тю
© Reiulf Ramstad Arkitekter
Филиал Государственного музея искусств (SMK) в Тю © Reiulf Ramstad Arkitekter
Филиал Государственного музея искусств (SMK) в Тю
© Reiulf Ramstad Arkitekter
Филиал Государственного музея искусств (SMK) в Тю
Филиал Государственного музея искусств (SMK) в Тю
© Reiulf Ramstad Arkitekter
Филиал Государственного музея искусств (SMK) в Тю. Реконструкция элеватора © Reiulf Ramstad Arkitekter
Филиал Государственного музея искусств (SMK) в Тю. Реконструкция элеватора
© Reiulf Ramstad Arkitekter
Филиал Государственного музея искусств (SMK) в Тю. Реконструкция элеватора © Reiulf Ramstad Arkitekter
Филиал Государственного музея искусств (SMK) в Тю. Реконструкция элеватора
© Reiulf Ramstad Arkitekter
Филиал Государственного музея искусств (SMK) в Тю. Общий корпус
Филиал Государственного музея искусств (SMK) в Тю. Общий корпус
© Reiulf Ramstad Arkitekter
Филиал Государственного музея искусств (SMK) в Тю. Привратный корпус
Филиал Государственного музея искусств (SMK) в Тю. Привратный корпус
© Reiulf Ramstad Arkitekter
Комплекс природного туризма в Тю © Reiulf Ramstad Arkitekter
Комплекс природного туризма в Тю
© Reiulf Ramstad Arkitekter
Комплекс природного туризма в Тю © Reiulf Ramstad Arkitekter
Комплекс природного туризма в Тю
© Reiulf Ramstad Arkitekter