Размещено на портале Архи.ру (www.archi.ru)

31.10.2023

Космический ковчег

Анна Старостина
Объект:
Городской общественный центр «Ковчег»
Адрес:
Китай, None, Шанхай.
Мастерская:
MAD

MAD Architects представили проект реконструкции склада Чжанцзянского цементного завода под многофункциональный общественный центр. По мысли Ма Яньсуна, над массивными бетонными стенами зависнет космический «ковчег».

Цементный завод в городском поселке Чжанцзян, входящем в состав самого динамично развивающегося района Шанхая, Пудуна, был построен в 1971 и входил в тройку крупнейших предприятий подобного профиля во всем мегаполисе. В 2013 он был остановлен, поскольку весь Чжанцзян с 1992 трансформируется в современный научно-технический кластер (включая, например, «Парк будущего» бюро MVRDV). Сохранившийся гигантский объем склада, вытянувшийся своим высоким и бесконечно длинным фасадом вдоль набережной реки, раньше принимал доставлявшие сырье корабли, а теперь остался для местных жителей единственным напоминанием об их недавнем прошлом.

Городской общественный центр «Ковчег» в Шанхае
Городской общественный центр «Ковчег» в Шанхае
© MAD Architects
Городской общественный центр «Ковчег» в Шанхае
Городской общественный центр «Ковчег» в Шанхае
© MAD Architects
Городской общественный центр «Ковчег» в Шанхае
Городской общественный центр «Ковчег» в Шанхае
© MAD Architects

Предложенный Ма Яньсуном проект реконструкции не просто предполагает консервацию индустриального наследия, но делает попытку заглянуть в будущее и добавить ему немного исторической значимости. Существующие бетонные стены планируется сохранить и особым образом надежно укрепить, а вместо кровли на них разместится огромный, футуристичный по своим формам «Ковчег» (именно так, в библейском смысле этого слова китайские архитекторы назвали свой проект), который то ли наконец обретает сушу после скитаний в водной стихии, то ли возносится, а может быть, просто левитирует. В контрасте грубых бетонных поверхностей старых стен и гладкой металлической оболочки новой части и рождается образ современного общественного центра, призванного стать привлекательной городской гостиной. 
Городской общественный центр «Ковчег» в Шанхае
Городской общественный центр «Ковчег» в Шанхае
© MAD Architects
Городской общественный центр «Ковчег» в Шанхае
Городской общественный центр «Ковчег» в Шанхае
© MAD Architects
Городской общественный центр «Ковчег» в Шанхае
Городской общественный центр «Ковчег» в Шанхае
© MAD Architects

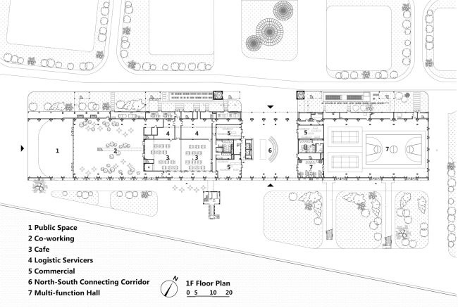
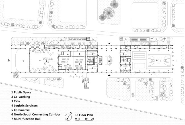
Чтобы максимально раскрыть наружу внутреннее пространство и сформировать общественную зону, западную стену склада также планируется убрать и заменить вдвинутой довольно глубоко внутрь полностью стеклянной «завесой». Сразу за прозрачной стеной располагается коворкинг и металлическая лестница в верхнюю часть, подвешенная на тросах. Она и правда несколько напоминает изображения Ноева ковчега. В неизвестное будущее надо будет пройти через некую пространственную дыру, вдруг раскрывшуюся в нижней части ковчега. Дополнительные трапы наверх установят со стороны набережной.
Городской общественный центр «Ковчег» в Шанхае © MAD Architects
Городской общественный центр «Ковчег» в Шанхае
© MAD Architects
Городской общественный центр «Ковчег» в Шанхае © MAD Architects
Городской общественный центр «Ковчег» в Шанхае
© MAD Architects
Городской общественный центр «Ковчег» в Шанхае
Городской общественный центр «Ковчег» в Шанхае
© MAD Architects
Городской общественный центр «Ковчег» в Шанхае
Городской общественный центр «Ковчег» в Шанхае
© MAD Architects
Городской общественный центр «Ковчег» в Шанхае © MAD Architects
Городской общественный центр «Ковчег» в Шанхае
© MAD Architects
Городской общественный центр «Ковчег» в Шанхае © MAD Architects
Городской общественный центр «Ковчег» в Шанхае
© MAD Architects

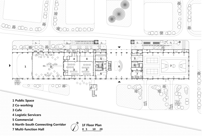
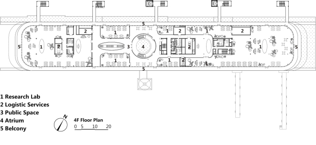
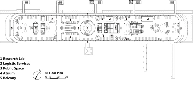
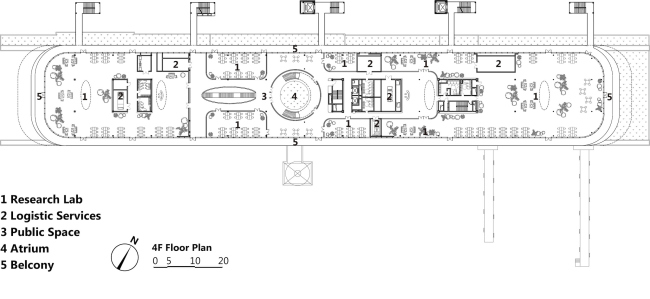
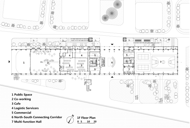
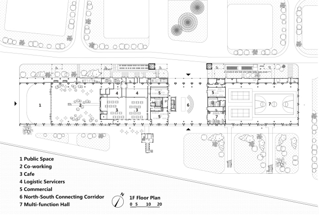
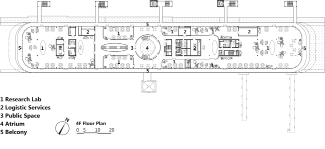
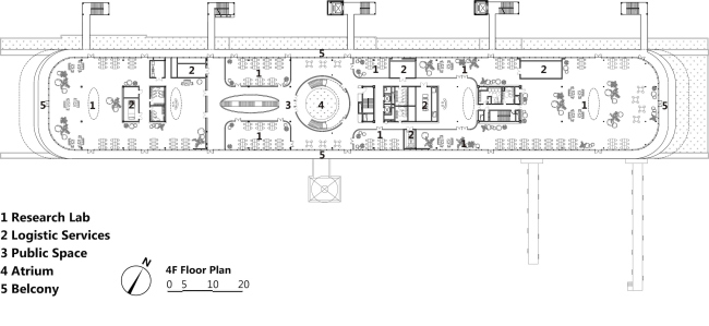
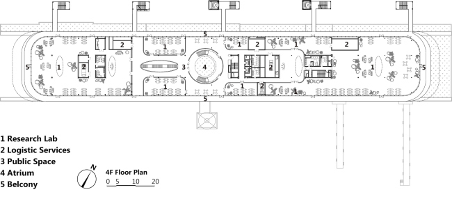
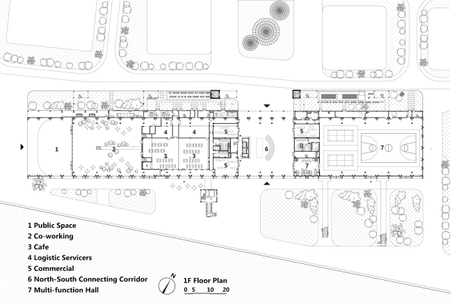
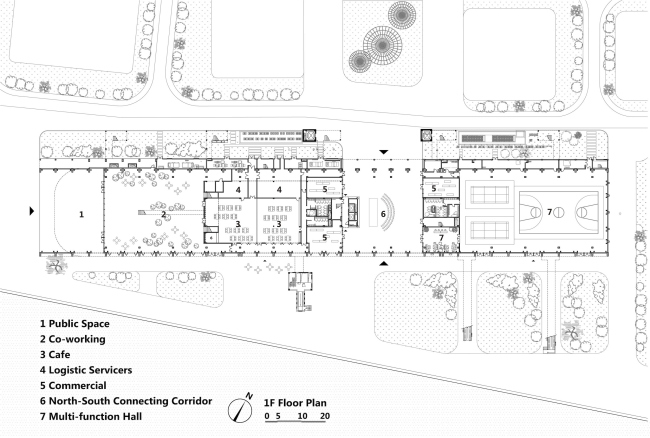
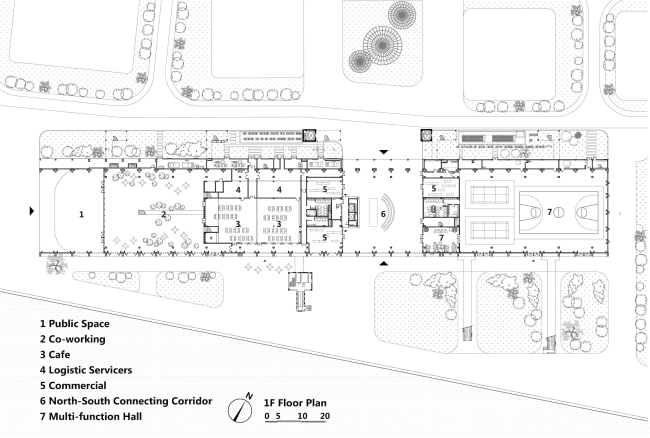
Используя значительную высоту (до 24 метров) и глубину склада, архитекторы запланировали здесь на разных уровнях зеленые зоны, кафе, торговые площади, исследовательский центр, в противоположном торце – универсальный зал для мероприятий, а на крыше, конечно же, еще одно общественное пространство. Поперечный коридор в центральной части позволит напрямую связать набережную с расположенным за заводом районом, а дополнительные проемы в нижней части речного фасада помогут раскрыть пространство вовне. Ну а через саму реку перекинут новый пешеходный мост.
Городской общественный центр «Ковчег» в Шанхае
Городской общественный центр «Ковчег» в Шанхае
© MAD Architects

Сам ковчег будет поднят на высокие опоры, а эффект парения дополнительно подчеркнут стеклянные вставки между старыми стенами и новой конструкцией. Они пустят внутрь солнечные лучи, которые будут отражаться от плавных изгибов блестящей металлической оболочки. В темное время включат искусственную подсветку.

Работы планируется завершить в 2026.
Городской общественный центр «Ковчег» в Шанхае © MAD Architects
Городской общественный центр «Ковчег» в Шанхае
© MAD Architects
Городской общественный центр «Ковчег» в Шанхае © MAD Architects
Городской общественный центр «Ковчег» в Шанхае
© MAD Architects
Городской общественный центр «Ковчег» в Шанхае © MAD Architects
Городской общественный центр «Ковчег» в Шанхае
© MAD Architects
Городской общественный центр «Ковчег» в Шанхае
Городской общественный центр «Ковчег» в Шанхае
© MAD Architects
Городской общественный центр «Ковчег» в Шанхае © MAD Architects
Городской общественный центр «Ковчег» в Шанхае
© MAD Architects
Городской общественный центр «Ковчег» в Шанхае © MAD Architects
Городской общественный центр «Ковчег» в Шанхае
© MAD Architects
Городской общественный центр «Ковчег» в Шанхае © MAD Architects
Городской общественный центр «Ковчег» в Шанхае
© MAD Architects
Городской общественный центр «Ковчег» в Шанхае © MAD Architects
Городской общественный центр «Ковчег» в Шанхае
© MAD Architects
Городской общественный центр «Ковчег» в Шанхае © MAD Architects
Городской общественный центр «Ковчег» в Шанхае
© MAD Architects
Городской общественный центр «Ковчег» в Шанхае
Городской общественный центр «Ковчег» в Шанхае
© MAD Architects
Городской общественный центр «Ковчег» в Шанхае
Городской общественный центр «Ковчег» в Шанхае
© MAD Architects
Городской общественный центр «Ковчег» в Шанхае
Городской общественный центр «Ковчег» в Шанхае
© MAD Architects