Размещено на портале Архи.ру (www.archi.ru)

26.10.2023

Семейные ценности

Объект:
VALDACHA
Адрес:
Россия, Новгородская область, Терехово.
Мастерская:
TRY
Авторский коллектив:
Основатель компании и руководитель бюро: Филипп Сечкин, Никита Зайцев 
ГИП: Александр Зайцев  
ГАП: Юлия Олофинская 
Архитектор: Павел Мурадов 

Бюро TRY.Architecture помогло преобразить «фамильное гнездо» на Валдае, с которым у заказчика связаны воспоминания о детстве, в комфортное место для отдыха от городской суеты. При этом удалось сохранить объемное решение, оконные проемы и даже стены старого дома.

Описание предоставлено архитекторами

Для заказчика, которого архитекторы за высокую вовлеченность в проектирование указывают в качестве соавтора, старый фамильный дом бабушки имеет огромное значение: он провел в нем все свое детство. Дом находится в деревне Терехово, вблизи города Валдай, на берегу озера Ужин. В 2020 году «семейное гнездо» решили обновить, для чего пригласили TRY.Architecture. 
VALDACHA. Вид на дом до переделки со стороны дороги
VALDACHA. Вид на дом до переделки со стороны дороги
Фотография © Владислав Пантелеев / предоставлена TRY
VALDACHA
VALDACHA
Фотография © Даниил Анненков / предоставлена TRY

Реконструкция получилась капитальной, но многое удалось сохранить: наружные стены, оконные проемы, объемное решение, а также хозяйственные постройки. Самым масштабным нововведением стал большой треугольный витраж на втором этаже дома, который пропускает много естественного света.
VALDACHA. Вид на дом до переделки со стороны двора
VALDACHA. Вид на дом до переделки со стороны двора
Фотография © Владислав Пантелеев / предоставлена TRY
VALDACHA
VALDACHA
Фотография © Даниил Анненков / предоставлена TRY
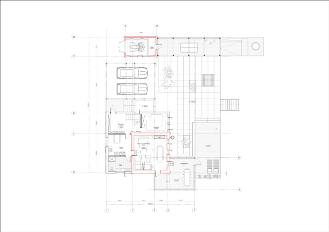
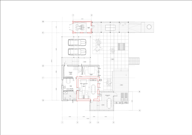
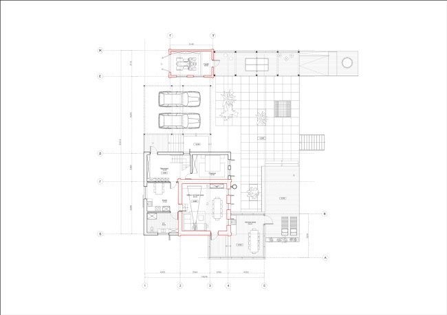
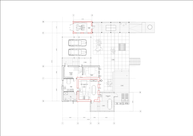
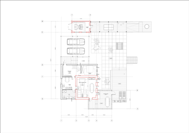
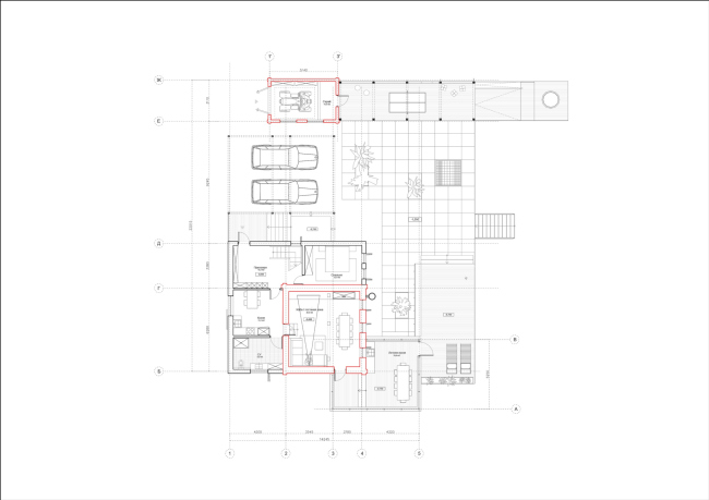
VALDACHA. План 1 этажа и террасы
VALDACHA. План 1 этажа и террасы
© TRY

Довольно выраженный рельеф тоже сохранили. Сетчатую террасу с прямоугольными отверстиями, через которую прорастают существующие кусты и небольшие деревья, поддерживают сваи. Найденные в процессе строительства камни и валуны разложили под настилом.
VALDACHA
VALDACHA
Фотография © Даниил Анненков / предоставлена TRY
VALDACHA
VALDACHA
Фотография © Даниил Анненков / предоставлена TRY
VALDACHA
VALDACHA
Фотография © Даниил Анненков / предоставлена TRY

Старый бревенчатый сарай перекрасили и подновили, сохранив его функцию: помимо рабочих инструментов в нем теперь хранятся квадроцикл и стол для пинг-понга. С торца сарай продолжается навесом с кровлей из поликарбоната, под которым разместилась небольшая зона для отдыха и игры в настольный теннис.
VALDACHA
VALDACHA
Фотография © Даниил Анненков / предоставлена TRY
VALDACHA
VALDACHA
Фотография © Даниил Анненков / предоставлена TRY
VALDACHA. Вид на зону отдыха и лавку
VALDACHA. Вид на зону отдыха и лавку
Фотография © Даниил Анненков / предоставлена TRY
VALDACHA
VALDACHA
Фотография © Даниил Анненков / предоставлена TRY

Самым сложным элементом оказалась башня, для которой нашлось много идей по приспособлению. Архитекторы хотели превратить ее в доминанту и сделать полезной соседям. В результате получился красно-черный арт-объект с цифровым табло наверху: благодаря ему местные жители всегда знают точное время и температуру воздуха. Акцентный красный цвет – отсылка к школе ВХУТЕМАС и эпохе авангарда, которой авторы симпатизируют. 
VALDACHA. Вид на башню с террасы дома Фотография © Даниил Анненков / предоставлена TRY
VALDACHA. Вид на башню с террасы дома
Фотография © Даниил Анненков / предоставлена TRY
VALDACHA. Вид на двор Фотография © Даниил Анненков / предоставлена TRY
VALDACHA. Вид на двор
Фотография © Даниил Анненков / предоставлена TRY
VALDACHA Фотография © Даниил Анненков / предоставлена TRY
VALDACHA
Фотография © Даниил Анненков / предоставлена TRY
VALDACHA. Вид на зону кострища, кинотеатр и башню  Фотография © Даниил Анненков / предоставлена TRY
VALDACHA. Вид на зону кострища, кинотеатр и башню
Фотография © Даниил Анненков / предоставлена TRY
VALDACHA Фотография © Даниил Анненков / предоставлена TRY
VALDACHA
Фотография © Даниил Анненков / предоставлена TRY
VALDACHA. Вид на башню снизу  Фотография © Даниил Анненков / предоставлена TRY
VALDACHA. Вид на башню снизу
Фотография © Даниил Анненков / предоставлена TRY
VALDACHA
VALDACHA
Фотография © Даниил Анненков / предоставлена TRY

Металлические сегменты забора тоже окантовали красным и расположили на разной высоте, создав ощущение «танцующей» ограды. На крышах установлены солнечные панели. Собранная с их помощью тепловая энергия используется при обогреве бассейна и для отопления дома в прохладные дни. Инсоляцию дома регулируют установленные на окнах ставни. Поскольку скалистая местность создает проблемы для прокладки коммуникаций, баки и воронки собирают дождевую воду для последующего использования – полива растений и технических нужд.
VALDACHA
VALDACHA
Фотография © Даниил Анненков / предоставлена TRY
VALDACHA
VALDACHA
Фотография © Даниил Анненков / предоставлена TRY
VALDACHA
VALDACHA
Фотография © Даниил Анненков / предоставлена TRY