|
Работая над интерьером салона Bel Corpo, архитекторы отсекали лишнее и гармонизировали элементы до тех пор, пока все они не стали работать на главный мотив: естественную красоту человеческого тела. Еще одним источником вдохновения для текучих и «пустынных» пространств стала космического вида кислородная капсула.
Описание предоставлено архитекторами Салон Bel Corpo занял двухуровневое коммерческое помещение жилого комплекса «Царская площадь». Работая с пространством, бюро Babayants Architects руководствовалось одним из своих приемов: отсекать лишнее до тех пор, пока не останется один мотив. В этом проекте главный мотив – наслаждение красотой тела, естественностью и мягкостью. Студия эстетики тела Bel CorpoФотография © Сергей Красюк / предоставлена Artem Babayants Architects
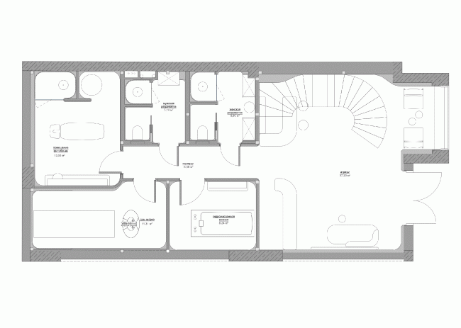
Архитекторы стремились создать атмосферу иного мира и сделать переживание пространства эстетичным и комфортным, погрузить гостя в медитативное состояние. Чтобы, попав в студию, он забыл о мегаполисе снаружи, оставил заботы о прошлом и мысли о будущем, сфокусировался на текущем моменте и заботе о себе. Для этого авторы работали с цветом, формами и светом. Студия эстетики тела Bel CorpoФотография © Сергей Красюк / предоставлена Artem Babayants ArchitectsСтудия эстетики тела Bel CorpoФотография © Сергей Красюк / предоставлена Artem Babayants ArchitectsЧувственную атмосферу создают монохромная цветовая гамма, пластика, фактуры, тактильные материалы и свет. Гостей встречает атриум с зоной респешн, баром со смузи и соками, зона отдыха у окна. На первом этаже – мужская и женская раздевалки с душевыми, кабинет с гидромассажной ванной, душ Шарко, массажные кабинеты. Студия эстетики тела Bel CorpoФотография © Сергей Красюк / предоставлена Artem Babayants Architects
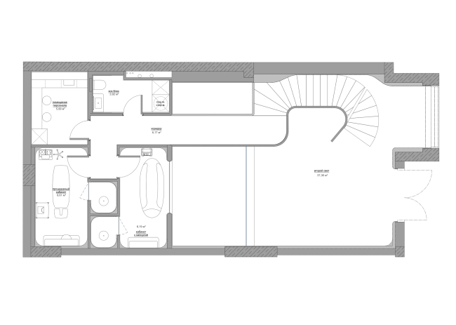
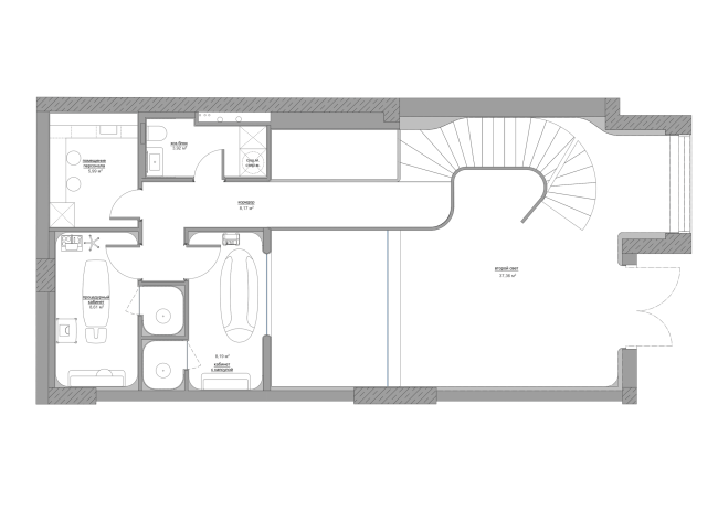
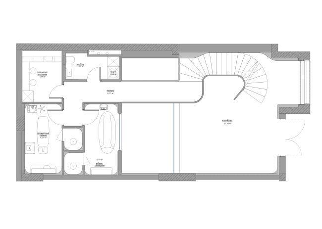
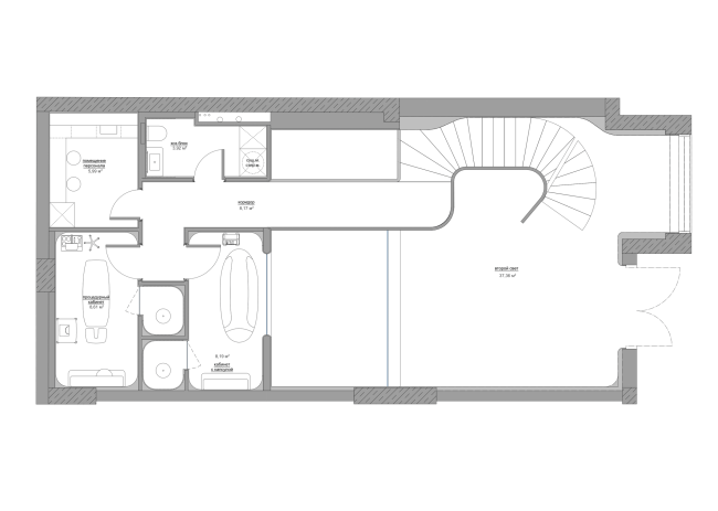
Космический вид кислородной капсулы на втором этаже вдохновил архитекторов на композицию с «лугом» и «иллюминаторами». Получился инопланетный объект на фоне травы. Также здесь располагаются помещения для персонала, массажные кабинеты, хозяйственный блок, кабинеты для обертываний и других уходовых процедур. Все кабинеты оснащены собственными душевыми. Студия эстетики тела Bel CorpoФотография © Сергей Красюк / предоставлена Artem Babayants ArchitectsСтудия эстетики тела Bel CorpoФотография © Сергей Красюк / предоставлена Artem Babayants Architects  Студия эстетики тела Bel CorpoФотография © Сергей Красюк / предоставлена Artem Babayants ArchitectsСтудия эстетики тела Bel CorpoФотография © Сергей Красюк / предоставлена Artem Babayants ArchitectsСтудия эстетики тела Bel CorpoФотография © Сергей Красюк / предоставлена Artem Babayants ArchitectsСтудия эстетики тела Bel CorpoФотография © Сергей Красюк / предоставлена Artem Babayants ArchitectsСтудия эстетики тела Bel CorpoФотография © Сергей Красюк / предоставлена Artem Babayants ArchitectsСтудия эстетики тела Bel CorpoФотография © Сергей Красюк / предоставлена Artem Babayants ArchitectsСтудия эстетики тела Bel CorpoФотография © Сергей Красюк / предоставлена Artem Babayants ArchitectsСтудия эстетики тела Bel Corpo. План 1 этажа© Artem Babayants Architects
Студия эстетики тела Bel Corpo. План 2 этажа© Artem Babayants Architects
|