Размещено на портале Архи.ру (www.archi.ru)

29.09.2023

Жить, учиться и работать

Анна Старостина
Объект:
Многофункциональный центр «Лаэррер»
Адрес:
Франция, None, По.
Мастерская:
CoBe Architecture et Paysage

Проектируя жилой, офисный и образовательный центр «Лаэррер» во французском городе По, архитекторы бюро CoBe Architecture et Paysage постарались создать благоприятные условия для развития целого района.

Коммуна По с населением около 230 тыс. человек расположена на юго-западе Франции у самого подножия Пиренейских гор. В 1950-х город переживал бурное развитие, связанное с открытием рядом газового месторождения и стал крупным промышленным центром. Именно в эти годы застраивается и район Сарагоса, в котором на сегодняшний день живет около 14 тыс. человек. Расположенный довольно близко к центру, он оказался важен для города и очень перспективен с точки зрения его дальнейшего развития.

Многофункциональный центр «Лаэррер»
Многофункциональный центр «Лаэррер»
Фотография © Luc Boegly / предоставлена CoBe Architecture et Paysage
Многофункциональный центр «Лаэррер»
Многофункциональный центр «Лаэррер»
Фотография © Luc Boegly / предоставлена CoBe Architecture et Paysage
Многофункциональный центр «Лаэррер»
Многофункциональный центр «Лаэррер»
Фотография © Luc Boegly / предоставлена CoBe Architecture et Paysage

Для ревитализации Сарагосы решили в самом ее центре создать общественный комплекс, где студенты, молодые люди и начинающие мастера могут жить, работать, на практике совершенствовать профессиональные навыки и продавать свою продукцию. Заказчиком проекта выступила компания Pau Béarn Habitat. Проведенный ее специалистами в 2018 конкурс выиграло бюро CoBe Architecture et Paysage в сотрудничестве с фирмой WEEK.
Многофункциональный центр «Лаэррер»
Многофункциональный центр «Лаэррер»
Фотография © Luc Boegly / предоставлена CoBe Architecture et Paysage
Многофункциональный центр «Лаэррер» Фотография © Luc Boegly / предоставлена CoBe Architecture et Paysage
Многофункциональный центр «Лаэррер»
Фотография © Luc Boegly / предоставлена CoBe Architecture et Paysage
Многофункциональный центр «Лаэррер» Фотография © Luc Boegly / предоставлена CoBe Architecture et Paysage
Многофункциональный центр «Лаэррер»
Фотография © Luc Boegly / предоставлена CoBe Architecture et Paysage
Многофункциональный центр «Лаэррер»
Многофункциональный центр «Лаэррер»
Фотография © Luc Boegly / предоставлена CoBe Architecture et Paysage

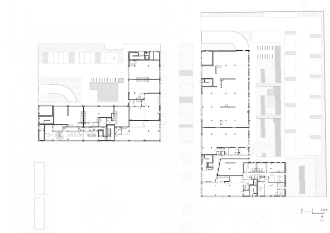
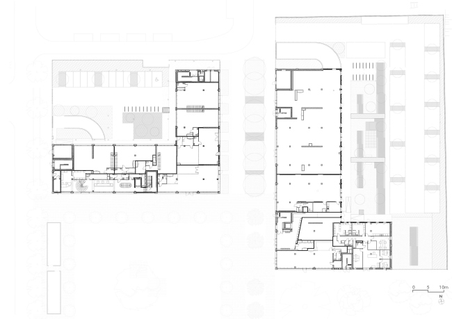
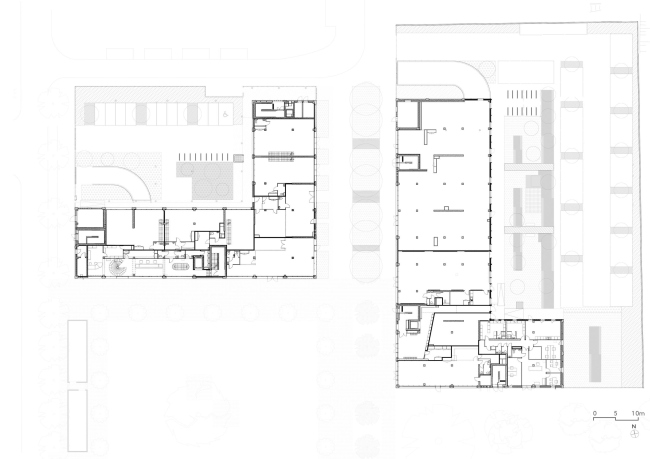
На участке, отведенном под строительство, располагалось заброшенное здание хосписа. Его снесли, освободив значительное пространство на пересечении важных маршрутов. Два L-образных в плане корпуса расположили таким образом, чтобы каждый получил собственный открытый в городское пространство дворик с небольшими цветниками или огородиками. Между ними сформировали пешеходную улицу, а перед всем комплексом создали просторную площадь, которая принимает различные ярмарки и временные рынки.
Многофункциональный центр «Лаэррер» Фотография © Luc Boegly / предоставлена CoBe Architecture et Paysage
Многофункциональный центр «Лаэррер»
Фотография © Luc Boegly / предоставлена CoBe Architecture et Paysage
Многофункциональный центр Лаэррер в По Фотография © Luc Boegly / предоставлена CoBe Architecture et Paysage
Многофункциональный центр Лаэррер в По
Фотография © Luc Boegly / предоставлена CoBe Architecture et Paysage
Многофункциональный центр «Лаэррер» Фотография © Luc Boegly / предоставлена CoBe Architecture et Paysage
Многофункциональный центр «Лаэррер»
Фотография © Luc Boegly / предоставлена CoBe Architecture et Paysage
Многофункциональный центр «Лаэррер» Фотография © Luc Boegly / предоставлена CoBe Architecture et Paysage
Многофункциональный центр «Лаэррер»
Фотография © Luc Boegly / предоставлена CoBe Architecture et Paysage
Многофункциональный центр «Лаэррер» Фотография © Luc Boegly / предоставлена CoBe Architecture et Paysage
Многофункциональный центр «Лаэррер»
Фотография © Luc Boegly / предоставлена CoBe Architecture et Paysage
Многофункциональный центр «Лаэррер» Фотография © Luc Boegly / предоставлена CoBe Architecture et Paysage
Многофункциональный центр «Лаэррер»
Фотография © Luc Boegly / предоставлена CoBe Architecture et Paysage
Многофункциональный центр «Лаэррер» Фотография © Luc Boegly / предоставлена CoBe Architecture et Paysage
Многофункциональный центр «Лаэррер»
Фотография © Luc Boegly / предоставлена CoBe Architecture et Paysage
Многофункциональный центр «Лаэррер» Фотография © Luc Boegly / предоставлена CoBe Architecture et Paysage
Многофункциональный центр «Лаэррер»
Фотография © Luc Boegly / предоставлена CoBe Architecture et Paysage
Многофункциональный центр «Лаэррер» Фотография © Luc Boegly / предоставлена CoBe Architecture et Paysage
Многофункциональный центр «Лаэррер»
Фотография © Luc Boegly / предоставлена CoBe Architecture et Paysage

Нижняя часть корпусов отлита на месте из экологически безопасного бетона с низким углеродным следом. Остекленные арки в один или два этажа задают сбитый ритм протяженным фасадам и обеспечивают тесную связь интерьеров с окружением. Верхние этажи получили простой стоечно-балочный каркас из пиринейской пихты, зашитый досками из дугласовой пихты и утепленный древесным волокном. Жалюзи защищают помещения от солнца.
Многофункциональный центр «Лаэррер»
Многофункциональный центр «Лаэррер»
Фотография © Luc Boegly / предоставлена CoBe Architecture et Paysage
Многофункциональный центр «Лаэррер»
Многофункциональный центр «Лаэррер»
Фотография © Luc Boegly / предоставлена CoBe Architecture et Paysage
Многофункциональный центр «Лаэррер» Фотография © Luc Boegly / предоставлена CoBe Architecture et Paysage
Многофункциональный центр «Лаэррер»
Фотография © Luc Boegly / предоставлена CoBe Architecture et Paysage
Многофункциональный центр «Лаэррер» Фотография © Luc Boegly / предоставлена CoBe Architecture et Paysage
Многофункциональный центр «Лаэррер»
Фотография © Luc Boegly / предоставлена CoBe Architecture et Paysage
Многофункциональный центр «Лаэррер» Фотография © Luc Boegly / предоставлена CoBe Architecture et Paysage
Многофункциональный центр «Лаэррер»
Фотография © Luc Boegly / предоставлена CoBe Architecture et Paysage
Многофункциональный центр «Лаэррер» Фотография © Luc Boegly / предоставлена CoBe Architecture et Paysage
Многофункциональный центр «Лаэррер»
Фотография © Luc Boegly / предоставлена CoBe Architecture et Paysage
Многофункциональный центр «Лаэррер» Фотография © Luc Boegly / предоставлена CoBe Architecture et Paysage
Многофункциональный центр «Лаэррер»
Фотография © Luc Boegly / предоставлена CoBe Architecture et Paysage
Многофункциональный центр «Лаэррер»
Многофункциональный центр «Лаэррер»
Фотография © Luc Boegly / предоставлена CoBe Architecture et Paysage

Заказчику было важно привлечь сюда активную молодежь и поддержать местные ремесленные традиции, поэтому восточный корпус отведен под бюджетное жилье для студентов (всего 116 ячеек по 17 м2) и еще 60 небольших квартир для уже работающих людей в возрасте от 17 до 30 лет, которым требуется поддержка; их площадь 17 м2 (для одного), 24 м2 (для пары) или 33 м2 (для молодой семьи с ребенком). Светлая отделка, довольно высокие потолки и большие окна помогли создать вполне комфортную атмосферу. В нижней части жилого корпуса размещены полицейский участок, административные помещения, ресторан с кулинарной школой, а также универсальное пространство для различных мероприятий.
Многофункциональный центр «Лаэррер»
Многофункциональный центр «Лаэррер»
Фотография © Luc Boegly / предоставлена CoBe Architecture et Paysage
Многофункциональный центр «Лаэррер»
Многофункциональный центр «Лаэррер»
Фотография © Luc Boegly / предоставлена CoBe Architecture et Paysage
Многофункциональный центр «Лаэррер» Фотография © Luc Boegly / предоставлена CoBe Architecture et Paysage
Многофункциональный центр «Лаэррер»
Фотография © Luc Boegly / предоставлена CoBe Architecture et Paysage
Многофункциональный центр «Лаэррер» Фотография © Luc Boegly / предоставлена CoBe Architecture et Paysage
Многофункциональный центр «Лаэррер»
Фотография © Luc Boegly / предоставлена CoBe Architecture et Paysage
Многофункциональный центр «Лаэррер» Фотография © Luc Boegly / предоставлена CoBe Architecture et Paysage
Многофункциональный центр «Лаэррер»
Фотография © Luc Boegly / предоставлена CoBe Architecture et Paysage
Многофункциональный центр «Лаэррер» Фотография © Luc Boegly / предоставлена CoBe Architecture et Paysage
Многофункциональный центр «Лаэррер»
Фотография © Luc Boegly / предоставлена CoBe Architecture et Paysage

Верхние этажи второго здания занимают офисы и коворкинги. В нижних нашлось место для еще одного ресторана, нескольких ремесленных мастерских и небольших магазинчиков с местными товарами. При этом общественным зонам в обоих корпусах уделено много внимания: на крыше созданы просторные террасы, в фасады интегрированы уютные деревянные лоджии, для отделки входной зоны со стойкой администратора и холла жилой части комплекса выбрали обычную сосну и местный серый известняк. Все материалы доставлялись на стройку по маршруту не длиннее 450 км.
Многофункциональный центр «Лаэррер» Фотография © Luc Boegly / предоставлена CoBe Architecture et Paysage
Многофункциональный центр «Лаэррер»
Фотография © Luc Boegly / предоставлена CoBe Architecture et Paysage
Многофункциональный центр «Лаэррер» Фотография © Luc Boegly / предоставлена CoBe Architecture et Paysage
Многофункциональный центр «Лаэррер»
Фотография © Luc Boegly / предоставлена CoBe Architecture et Paysage
Многофункциональный центр «Лаэррер» Фотография © Luc Boegly / предоставлена CoBe Architecture et Paysage
Многофункциональный центр «Лаэррер»
Фотография © Luc Boegly / предоставлена CoBe Architecture et Paysage
Многофункциональный центр «Лаэррер»
Многофункциональный центр «Лаэррер»
Фотография © Luc Boegly / предоставлена CoBe Architecture et Paysage
Многофункциональный центр «Лаэррер» Фотография © Luc Boegly / предоставлена CoBe Architecture et Paysage
Многофункциональный центр «Лаэррер»
Фотография © Luc Boegly / предоставлена CoBe Architecture et Paysage
Многофункциональный центр «Лаэррер» Фотография © Luc Boegly / предоставлена CoBe Architecture et Paysage
Многофункциональный центр «Лаэррер»
Фотография © Luc Boegly / предоставлена CoBe Architecture et Paysage
Многофункциональный центр «Лаэррер» Фотография © Luc Boegly / предоставлена CoBe Architecture et Paysage
Многофункциональный центр «Лаэррер»
Фотография © Luc Boegly / предоставлена CoBe Architecture et Paysage

Общая стоимость строительства составила 18 млн евро, при этом городским властям, заказчикам и архитекторам удалось заметно повысить уровень жизни и привлечь дополнительные инвестиции. Дальнейшая программа развития района Сарагоса расписана до 2027 года, к которому он весь должен стать современным, комфортным, социально ответственным и экологичным.
Многофункциональный центр «Лаэррер» Фотография © Luc Boegly / предоставлена CoBe Architecture et Paysage
Многофункциональный центр «Лаэррер»
Фотография © Luc Boegly / предоставлена CoBe Architecture et Paysage
Многофункциональный центр «Лаэррер» Фотография © Luc Boegly / предоставлена CoBe Architecture et Paysage
Многофункциональный центр «Лаэррер»
Фотография © Luc Boegly / предоставлена CoBe Architecture et Paysage
Многофункциональный центр «Лаэррер» Фотография © Luc Boegly / предоставлена CoBe Architecture et Paysage
Многофункциональный центр «Лаэррер»
Фотография © Luc Boegly / предоставлена CoBe Architecture et Paysage
Многофункциональный центр «Лаэррер» Фотография © Luc Boegly / предоставлена CoBe Architecture et Paysage
Многофункциональный центр «Лаэррер»
Фотография © Luc Boegly / предоставлена CoBe Architecture et Paysage
Многофункциональный центр «Лаэррер» Фотография © Luc Boegly / предоставлена CoBe Architecture et Paysage
Многофункциональный центр «Лаэррер»
Фотография © Luc Boegly / предоставлена CoBe Architecture et Paysage
Многофункциональный центр «Лаэррер» Фотография © Luc Boegly / предоставлена CoBe Architecture et Paysage
Многофункциональный центр «Лаэррер»
Фотография © Luc Boegly / предоставлена CoBe Architecture et Paysage
Многофункциональный центр «Лаэррер»
Многофункциональный центр «Лаэррер»
© CoBe Architecture et Paysage
Многофункциональный центр «Лаэррер»
Многофункциональный центр «Лаэррер»
© CoBe Architecture et Paysage
Многофункциональный центр «Лаэррер»
Многофункциональный центр «Лаэррер»
© CoBe Architecture et Paysage
Многофункциональный центр «Лаэррер»
Многофункциональный центр «Лаэррер»
© CoBe Architecture et Paysage
Многофункциональный центр «Лаэррер»
Многофункциональный центр «Лаэррер»
© CoBe Architecture et Paysage
Многофункциональный центр «Лаэррер»
Многофункциональный центр «Лаэррер»
© CoBe Architecture et Paysage
Многофункциональный центр «Лаэррер»
Многофункциональный центр «Лаэррер»
© CoBe Architecture et Paysage