Размещено на портале Архи.ру (www.archi.ru)

11.09.2023

Лиственница с елкой

Объект:
Archbarn (Архскрай)
Адрес:
Россия, Ярославская область,
Мастерская:
Katya Svanidze design atelier
Авторский коллектив:
Архитектор. Дизайнер: Катя Сванидзе

Микродом для семьи архитектора Кати Сванидзе с видом на луг и лес, незапланированной елкой на террасе, а также артефактами, добытыми в Переславле-Залесском.

Описание предоставлено архитекторами

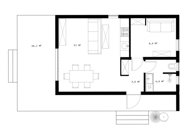
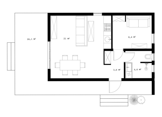
Микродом площадью 41 м2 построен на просторном участке в ярославской области, рядом с лугом, облюбованного журавлями, и лесом, из которого иногда приходит лисица. Архитектор Екатерина Сванидзе проектировала дом для своей семьи и стремилась, чтобы он не перетягивал на себя внимание, а лишь дополнял окружающий пейзаж.  
Archbarn (Архскрай)
Archbarn (Архскрай)
© Katya Svanidze design atelier
Archbarn (Архскрай)
Archbarn (Архскрай)
Фотография © Василий Хуртин / предоставлена Katya Svanidze design atelier

Дом построен по технологии каркасного строительства. Фундамент – винтовые сваи. Во время их установки строительная бригада наткнулась на гигантский булыжник, который не удалось вытянуть даже трактором. Поэтому было решено сместиться, но в результате в зоне будущей террасы оказалась молодая ель. Ее не стали рубить, теперь дерево растет прямо не террасе: зимой дети ее наряжают и находят под ней подарки. 

Терраса ориентирована на луг и лес, в теплое время года выходящие на нее двери почти всегда распахнуты. Фасад обшит планкеном из красноярской лиственницы, из той же породы сделана террасная доска. 
Archbarn (Архскрай) Фотография © Василий Хуртин / предоставлена Katya Svanidze design atelier
Archbarn (Архскрай)
Фотография © Василий Хуртин / предоставлена Katya Svanidze design atelier
Archbarn (Архскрай) Фотография © Василий Хуртин / предоставлена Katya Svanidze design atelier
Archbarn (Архскрай)
Фотография © Василий Хуртин / предоставлена Katya Svanidze design atelier

Высота потолка в доме меняется от 2,5 метров до четырех. За счет этого небольшое пространство кухни-столовой не ощущается тесным. Также в доме умещается небольшая спальня, а над ванной – «лежанка» и наблюдательный пункт, любимое место детей. Внутри все отделано лиственницей, окна обрамлены деревянными рамками, финские двери из сосны обеспечивают дополнительную звукоизоляцию. Артефакты, украшающие стены, найдены на блошином рынке, который каждое воскресенье проходит в Преславле-Залесском.   
Archbarn (Архскрай) Фотография © Василий Хуртин / предоставлена Katya Svanidze design atelier
Archbarn (Архскрай)
Фотография © Василий Хуртин / предоставлена Katya Svanidze design atelier
Archbarn (Архскрай) Фотография © Василий Хуртин / предоставлена Katya Svanidze design atelier
Archbarn (Архскрай)
Фотография © Василий Хуртин / предоставлена Katya Svanidze design atelier
Archbarn (Архскрай) Фотография © Василий Хуртин / предоставлена Katya Svanidze design atelier
Archbarn (Архскрай)
Фотография © Василий Хуртин / предоставлена Katya Svanidze design atelier
Archbarn (Архскрай) Фотография © Василий Хуртин / предоставлена Katya Svanidze design atelier
Archbarn (Архскрай)
Фотография © Василий Хуртин / предоставлена Katya Svanidze design atelier
Archbarn (Архскрай) Фотография © Василий Хуртин / предоставлена Katya Svanidze design atelier
Archbarn (Архскрай)
Фотография © Василий Хуртин / предоставлена Katya Svanidze design atelier