Размещено на портале Архи.ру (www.archi.ru)

08.09.2023

Красный камень

Нина Фролова
Объект:
Коворкинг S9
Адрес:
Индия, None, Пуна.
Мастерская:
PMA madhushala

Фасад коворкинга в индийском городе Пуна закрыт ящиками с растениями, выполненными из местного охристо-красного песчаника. Авторы проекта – PMA madhushala.

Архитекторы, когда им заказали небольшой коворкинг, задумались над классическим для жарких стран вопросом: как обеспечить в здании комфортный микроклимат, не полагаясь полностью на кондиционеры? Одновременно хотелось спроектировать здание со своим «лицом», а не очередную герметичную остекленную «коробку».
 

Коворкинг S9
Коворкинг S9
Фото © Hemant Patil

Решение было найдено в виде «растительного» фасада, однако не из обычных ящиков для цветов, а выполненных вручную из индийского красного песчаника. Эта система защищает фасады от перегрева и яркого света, к тому же растения всегда благоприятно влияют на эмоциональное состояние человека.
 
Коворкинг S9
Коворкинг S9
Фото © Hemant Patil

Песчаник – не единственная отсылка к традиции. Такие ящики для растений характерны для старых домов в Пуне, но теперь – с распространением кондиционеров – их становится все меньше.
 
Коворкинг S9
Коворкинг S9
Фото © Hemant Patil

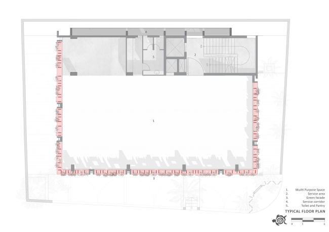
Железобетонная конструкция здания на фасаде выражена в виде модулей-рам, в которые и вписаны песчаниковые «плантеры». Они держатся на вертикальных каменных ламелях, выполненных на месте вручную, а также на металлических трубках, по которым к растениям поступают вода и жидкие удобрения.
 
Коворкинг S9 Фото © Hemant Patil
Коворкинг S9
Фото © Hemant Patil
Коворкинг S9 Фото © Hemant Patil
Коворкинг S9
Фото © Hemant Patil
Коворкинг S9 Фото © Hemant Patil
Коворкинг S9
Фото © Hemant Patil

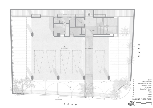
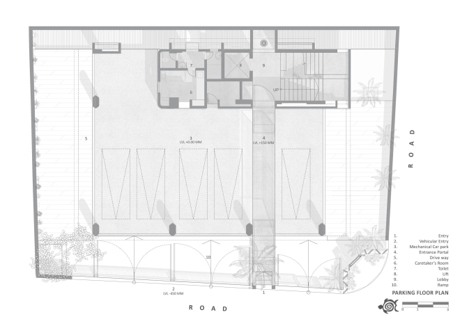
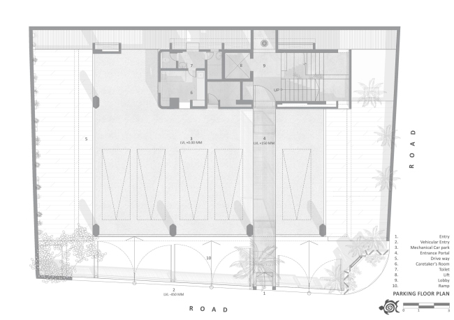
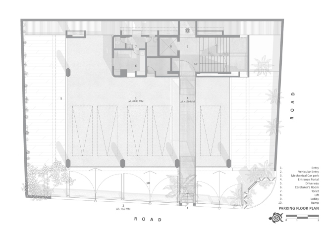
Песчаниковые отходы от производства этой системы озеленения были использованы при бетонировании двора-парковки и изготовлении бетонной ограды. Натуральный камень – песчаник и базальт – также выбраны для перил лестниц и перегородок в санузлах и кладовках. Все работы по камню выполнили местные рабочие без использования дорогостоящей импортной техники: по мысли архитекторов, это пример экономики замкнутого цикла.
 
Коворкинг S9
Коворкинг S9
Фото © Hemant Patil

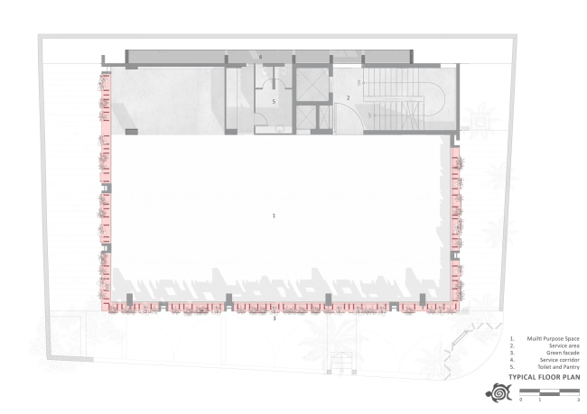
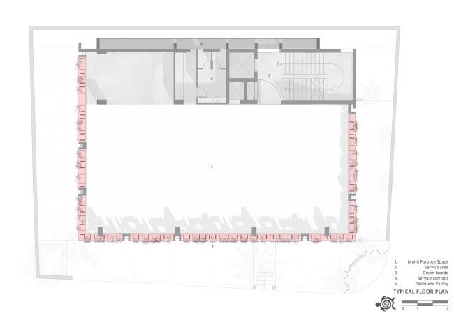
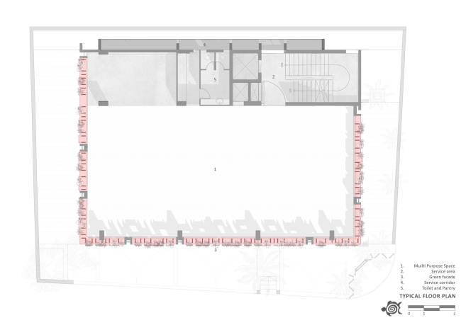
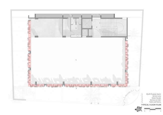
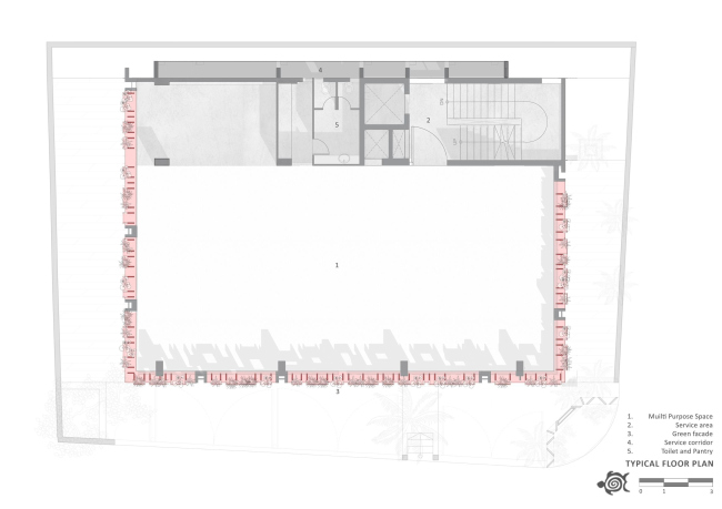
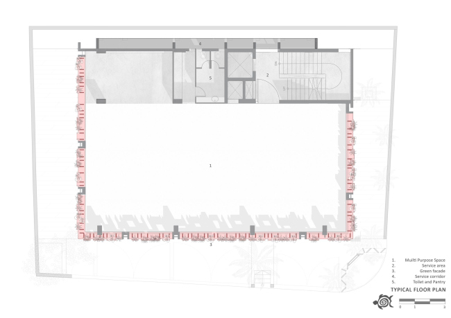
При желании озеленительную систему можно легко демонтировать и полностью изменить облик постройки. На возможные перемены рассчитан и план с несущими опорами по периметру. Сервисные блок и коридор примыкают к заднему фасаду.
Коворкинг S9
Коворкинг S9
Фото © Hemant Patil
Коворкинг S9 Фото © Hemant Patil
Коворкинг S9
Фото © Hemant Patil
Коворкинг S9 Фото © Hemant Patil
Коворкинг S9
Фото © Hemant Patil
Коворкинг S9
Коворкинг S9
Фото © Hemant Patil
Коворкинг S9 Фото © Hemant Patil
Коворкинг S9
Фото © Hemant Patil
Коворкинг S9 Фото © Hemant Patil
Коворкинг S9
Фото © Hemant Patil
Коворкинг S9 Фото © Hemant Patil
Коворкинг S9
Фото © Hemant Patil
Коворкинг S9 Фото © Hemant Patil
Коворкинг S9
Фото © Hemant Patil
Коворкинг S9
Коворкинг S9
Фото © Hemant Patil
Коворкинг S9
Коворкинг S9
© PMA madhushala
Коворкинг S9
Коворкинг S9
© PMA madhushala
Коворкинг S9 © PMA madhushala
Коворкинг S9
© PMA madhushala
Коворкинг S9 © PMA madhushala
Коворкинг S9
© PMA madhushala
Коворкинг S9 © PMA madhushala
Коворкинг S9
© PMA madhushala
Коворкинг S9 © PMA madhushala
Коворкинг S9
© PMA madhushala
Коворкинг S9 © PMA madhushala
Коворкинг S9
© PMA madhushala
Коворкинг S9 © PMA madhushala
Коворкинг S9
© PMA madhushala