Размещено на портале Архи.ру (www.archi.ru)

06.09.2023

Философия чаепития в саду

Нина Фролова
Объект:
Чайная на берегу Голубого озера
Адрес:
Китай, None, Пекин.
Мастерская:
YI+MU

Чайный павильон в пекинском парке по проекту студии YI+MU.

Сад Лиду в пекинском округе Чаоян появился как часть делового района в 1990-е годы. В этом небольшом парке в европейском стиле в 2013 построили мебельный шоу-рум по проекту итальянского дизайнера Луки Никетто, но это компактное здание с фасадом из латунного «тростника» довольно быстро потеряло свою функцию и к концу 2010-х пришло в запустении.
 

Чайная на берегу Голубого озера
Чайная на берегу Голубого озера
Фото © YI+MU Design Office

Студии YI+MU было поручено вернуть его к жизни уже с новой функцией: модной чайной. Архитекторы продумали ведущий к ней по парку извилистый маршрут и специально поменяли местами служебный и главный входы, чтобы еще удлинить путь посетителя в павильон: по пути человек настраивается на спокойный отдых, особенно если он планирует поучаствовать в чайной церемонии.
 
Чайная на берегу Голубого озера
Чайная на берегу Голубого озера
Фото © YI+MU Design Office
Чайная на берегу Голубого озера
Чайная на берегу Голубого озера
Фото © YI+MU Design Office
Чайная на берегу Голубого озера Фото © YI+MU Design Office
Чайная на берегу Голубого озера
Фото © YI+MU Design Office
Чайная на берегу Голубого озера Фото © YI+MU Design Office
Чайная на берегу Голубого озера
Фото © YI+MU Design Office
Чайная на берегу Голубого озера Фото © YI+MU Design Office
Чайная на берегу Голубого озера
Фото © YI+MU Design Office
Чайная на берегу Голубого озера Фото © YI+MU Design Office
Чайная на берегу Голубого озера
Фото © YI+MU Design Office

Отдельной темой стала дистанция между павильоном и окружающей природой: она теперь увеличена с учетом низкого расположения постройки. Деревья и кустарник не затеняют ее, между ними создана «буферная зона» из террасы и подобия японского сада камней.
 
Чайная на берегу Голубого озера Фото © YI+MU Design Office
Чайная на берегу Голубого озера
Фото © YI+MU Design Office
Чайная на берегу Голубого озера Фото © YI+MU Design Office
Чайная на берегу Голубого озера
Фото © YI+MU Design Office
Чайная на берегу Голубого озера Фото © YI+MU Design Office
Чайная на берегу Голубого озера
Фото © YI+MU Design Office

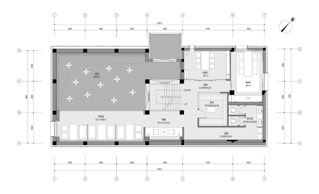
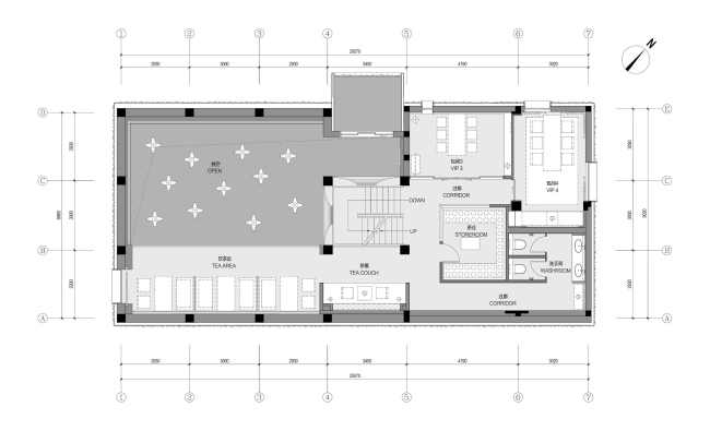
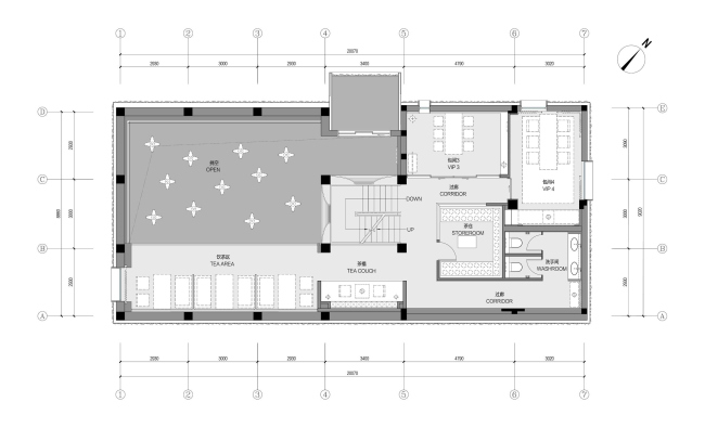
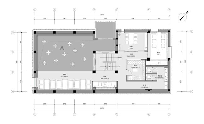
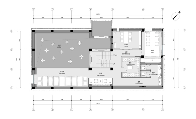
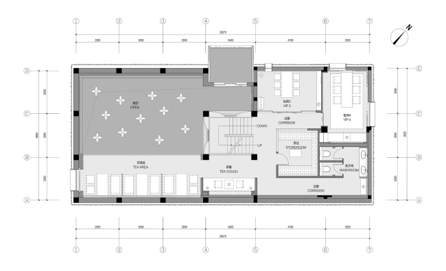
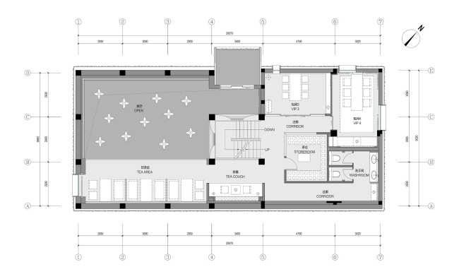
В прежнем павильоне было не так много света, а теперь здесь добавлены новые узкие окна и остекленные перекрытия (верхнее освещение частично смягчено с помощью бамбуковых циновок). Вместо прежней, «капитальной» лестницы устроены две группы кабинетов, а новая лестница – это проницаемая конструкция из дерева и стали.
 
Чайная на берегу Голубого озера
Чайная на берегу Голубого озера
Фото © YI+MU Design Office

На кровле сохранен изначальный фонарь, но теперь он служит еще одним кабинетом для уединенного чаепития – полностью прозрачным.
Чайная на берегу Голубого озера Фото © YI+MU Design Office
Чайная на берегу Голубого озера
Фото © YI+MU Design Office
Чайная на берегу Голубого озера Фото © YI+MU Design Office
Чайная на берегу Голубого озера
Фото © YI+MU Design Office
Чайная на берегу Голубого озера Фото © YI+MU Design Office
Чайная на берегу Голубого озера
Фото © YI+MU Design Office
Чайная на берегу Голубого озера Фото © YI+MU Design Office
Чайная на берегу Голубого озера
Фото © YI+MU Design Office
Чайная на берегу Голубого озера
Чайная на берегу Голубого озера
Фото © YI+MU Design Office
Чайная на берегу Голубого озера Фото © YI+MU Design Office
Чайная на берегу Голубого озера
Фото © YI+MU Design Office
Чайная на берегу Голубого озера Фото © YI+MU Design Office
Чайная на берегу Голубого озера
Фото © YI+MU Design Office
Чайная на берегу Голубого озера
Чайная на берегу Голубого озера
Фото © YI+MU Design Office
Чайная на берегу Голубого озера Фото © YI+MU Design Office
Чайная на берегу Голубого озера
Фото © YI+MU Design Office
Чайная на берегу Голубого озера Фото © YI+MU Design Office
Чайная на берегу Голубого озера
Фото © YI+MU Design Office
Чайная на берегу Голубого озера
Чайная на берегу Голубого озера
Фото © YI+MU Design Office
Чайная на берегу Голубого озера
Чайная на берегу Голубого озера
Фото © YI+MU Design Office
Чайная на берегу Голубого озера
Чайная на берегу Голубого озера
Фото © YI+MU Design Office