Размещено на портале Архи.ру (www.archi.ru)

23.08.2023

Мостики между башнями

Нина Фролова
Объект:
Shenzhen Qianhai Towers
Адрес:
Китай, None, Шэньчжэнь.
Мастерская:
gmp

Офисный комплекс Shenzhen Qianhai Towers в Шэньчжэне по проекту бюро gmp.

Комплекс расположен в «современной зоне сервисно-промышленного сотрудничества Цяньхай Шэньчжэнь – Гонконг». В значительной степени созданная на намывных территориях у залива Цяньхай, она была основана в 2010 и должна была быть завершена в 2020, однако по решению ЦК КПК и Госсовета КНР в 2021 ее площадь увеличили в 7 раз и продолжили ее застройку.
 

Shenzhen Qianhai Towers
Shenzhen Qianhai Towers
© CreatAR Images

Она расположена между Шэньчжэнем и Гонконгом, в дельте Жемчужной реки, в самом центре этой важнейшей для КНР и всей Азии экономической территории.
 
Shenzhen Qianhai Towers
Shenzhen Qianhai Towers
© CreatAR Images

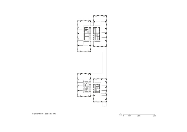
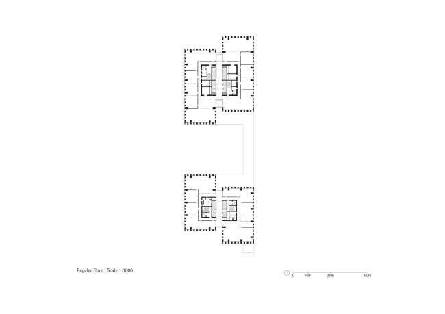
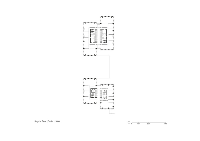
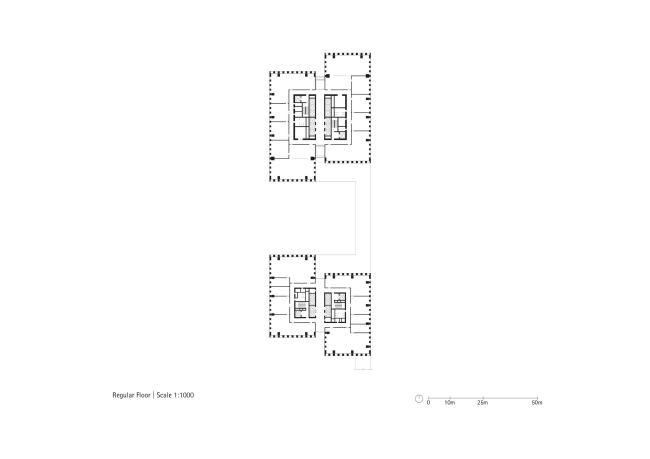
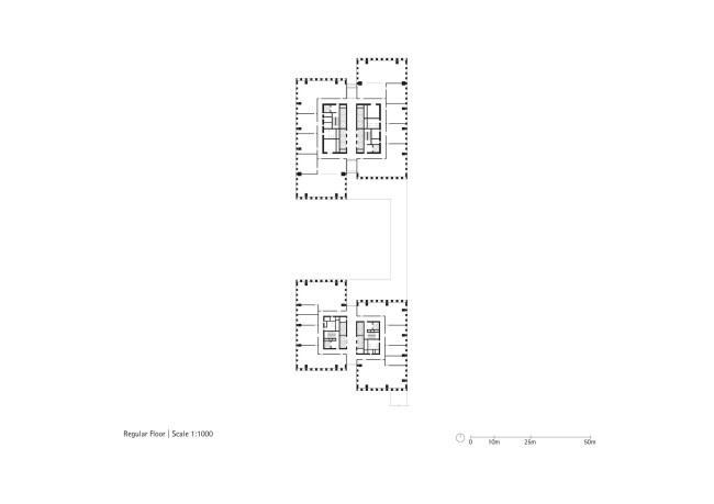
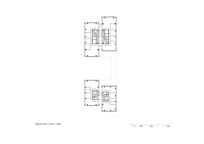
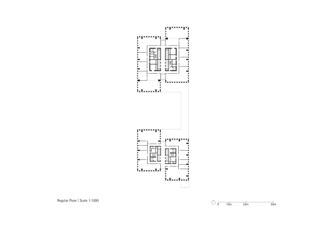
Планировка «зоны сотрудничества» организована вокруг идущей параллельно берегу залива парковой оси. Вдоль нее и вытянулся комплекс Shenzhen Qianhai Towers, обращенный также к впадающей в залив реке, перпендикулярной этой зеленой оси. Три здания бюро gmp постепенно понижаются с севера на юг, по мере приближения к речному берегу.
 
Shenzhen Qianhai Towers
Shenzhen Qianhai Towers
© CreatAR Images

Каждый из трех объемов поделен надвое по оси север-юг, и эти половинки чуть сдвинуты друг относительно друга. Это создает динамику и обеспечивает интерьеры солнечным светом и видами на город, залив и парки.
 
Shenzhen Qianhai Towers
Shenzhen Qianhai Towers
© CreatAR Images

На уровне третьего этажа все корпуса соединены пешеходными мостиками, которые также связывают офисный комплекс с зелеными зонами, соседними зданиями и автовокзалом, на кровле которого разбит публичный сад по проекту тех же gmp.
 
Shenzhen Qianhai Towers
Shenzhen Qianhai Towers
© CreatAR Images

Между корпусами созданы общественные пространства без машин, куда обращены расположенные в их цоколях магазины и кафе. Еще один ярус ритейла помещен на уровне мостиков.
Shenzhen Qianhai Towers
Shenzhen Qianhai Towers
© CreatAR Images
Shenzhen Qianhai Towers
Shenzhen Qianhai Towers
© gmp Architekten
Shenzhen Qianhai Towers
Shenzhen Qianhai Towers
© gmp Architekten
Shenzhen Qianhai Towers
Shenzhen Qianhai Towers
© gmp Architekten