Ðàçìåùåíî íà ïîðòàëå Àðõè.ðó (www.archi.ru)

20.07.2023

Àðõèòåêòóðà äëÿ ñîöñåòåé

Íèíà Ôðîëîâà
Îáúåêò:
«Êóá» â èííîïîëèñå Ñÿîøàíü
Àäðåñ:
Êèòàé, None, Õàí÷æîó.
Ìàñòåðñêàÿ:
Àðõèòåêòóðíûé ïðîåêòíî-èññëåäîâàòåëüñêèé èíñòèòóò ׿ýöçÿíñêîãî óíèâåðñèòåòà (UAD)

Îôèñíîå çäàíèå «Êóá» â Õàí÷æîó ñâîèì àæóðíûì ôàñàäîì ïðèçâàíî ïðèâëåêàòü âíèìàíèå ê èííîïîëèñó Ñÿîøàíü – â òîì ÷èñëå ñ ïîìîùüþ ëþáèòåëåé ñåëôè è ýôôåêòíûõ âèäåî.

«Êóá», ñïðîåêòèðîâàííûé UAD, Àðõèòåêòóðíûì èíñòèòóòîì ׿ýöçÿíñêîãî óíèâåðñèòåòà, äîëæåí áûë ñòàòü ïåðâûì çàâåðøåííûì çäàíèåì èííîïîëèñà, ïîýòîìó âàæíûì áûëî ñäåëàòü åãî îáëèê çàìåòíûì è çàïîìèíàþùèìñÿ, ÷òîáû îí ïîñëóæèë «ðåêëàìîé» äëÿ ôîðìèðóþùåãîñÿ êîìïëåêñà. Íî çäåñü äåéñòâóþò îãðàíè÷åíèÿ ïî âûñîòå (ðÿäîì íàõîäèòñÿ àýðîïîðò), ïîýòîìó ñàìîå ïðîñòîå ðåøåíèå – âîçâåñòè íåáîñêðåá – íå ïîäõîäèëî.
 

«Êóá» â èííîïîëèñå Ñÿîøàíü
«Êóá» â èííîïîëèñå Ñÿîøàíü
Ôîòî © Zhao Qiang


Âçàìåí àðõèòåêòîðû ïðåäëîæèëè êóáè÷åñêèé îáúåì íà îáøèðíîì ïîäèóìå. Ïîäèóì íàïîìèíàåò ñâîåé ñëîæíîé ïëàíèðîâêîé îá óëî÷êàõ ñòàðîãî Õàí÷æîó. Òàì óñòðîåíû çåëåíûå òåððàñû è äðóãèå ïðîñòðàíñòâà äëÿ îòäûõà è îáùåíèÿ «èííîâàòîðîâ».
 
«Êóá» â èííîïîëèñå Ñÿîøàíü
«Êóá» â èííîïîëèñå Ñÿîøàíü
Ôîòî © Zhao Qiang

Íî ãëàâíîå çäåñü âñå æå ñàì «Êóá»: îí ïîëó÷èë àæóðíûé ôàñàä, íàïîìèíàþùèé îá èçäåëèÿõ ìåñòíûõ êðóæåâíèö. Ïðè÷åì òàêàÿ îáîëî÷êà îõâàòûâàåò è êðîâëþ, ïîýòîìó çäàíèå âûãëÿäèò îòëè÷íî òàêæå è ñâåðõó: ïðè ñúåìêå ñ êîïòåðà è äëÿ ïàññàæèðîâ âçëåòàþùèõ è ñàäÿùèõñÿ ñàìîëåòîâ.  òåìíîå âðåìÿ ñóòîê âêëþ÷àåòñÿ ìíîãîöâåòíàÿ ïîäñâåòêà.
 
«Êóá» â èííîïîëèñå Ñÿîøàíü
«Êóá» â èííîïîëèñå Ñÿîøàíü
Ôîòî © Zhao Qiang

×òîáû â èíòåðüåðå õâàòàëî ñîëíå÷íîãî ñâåòà, â öåíòðå «Êóáà» óñòðîåí àòðèóì âî âñþ âûñîòó ýòîãî 80-ìåòðîâîãî çäàíèÿ.
«Êóá» â èííîïîëèñå Ñÿîøàíü
«Êóá» â èííîïîëèñå Ñÿîøàíü
Ôîòî © Zhao Qiang
«Êóá» â èííîïîëèñå Ñÿîøàíü
«Êóá» â èííîïîëèñå Ñÿîøàíü
Ôîòî © Zhao Qiang
«Êóá» â èííîïîëèñå Ñÿîøàíü Ôîòî © Zhao Qiang
«Êóá» â èííîïîëèñå Ñÿîøàíü
Ôîòî © Zhao Qiang
«Êóá» â èííîïîëèñå Ñÿîøàíü Ôîòî © Zhao Qiang
«Êóá» â èííîïîëèñå Ñÿîøàíü
Ôîòî © Zhao Qiang
«Êóá» â èííîïîëèñå Ñÿîøàíü Ôîòî © Zhao Qiang
«Êóá» â èííîïîëèñå Ñÿîøàíü
Ôîòî © Zhao Qiang
«Êóá» â èííîïîëèñå Ñÿîøàíü Ôîòî © Zhao Qiang
«Êóá» â èííîïîëèñå Ñÿîøàíü
Ôîòî © Zhao Qiang
«Êóá» â èííîïîëèñå Ñÿîøàíü
«Êóá» â èííîïîëèñå Ñÿîøàíü
Ôîòî © Zhao Qiang
«Êóá» â èííîïîëèñå Ñÿîøàíü Ôîòî © Zhao Qiang
«Êóá» â èííîïîëèñå Ñÿîøàíü
Ôîòî © Zhao Qiang
«Êóá» â èííîïîëèñå Ñÿîøàíü Ôîòî © Zhao Qiang
«Êóá» â èííîïîëèñå Ñÿîøàíü
Ôîòî © Zhao Qiang
«Êóá» â èííîïîëèñå Ñÿîøàíü Ôîòî © Zhao Qiang
«Êóá» â èííîïîëèñå Ñÿîøàíü
Ôîòî © Zhao Qiang
«Êóá» â èííîïîëèñå Ñÿîøàíü Ôîòî © Zhao Qiang
«Êóá» â èííîïîëèñå Ñÿîøàíü
Ôîòî © Zhao Qiang
«Êóá» â èííîïîëèñå Ñÿîøàíü Ôîòî © Zhao Qiang
«Êóá» â èííîïîëèñå Ñÿîøàíü
Ôîòî © Zhao Qiang
«Êóá» â èííîïîëèñå Ñÿîøàíü
«Êóá» â èííîïîëèñå Ñÿîøàíü
Ôîòî © Zhao Qiang
«Êóá» â èííîïîëèñå Ñÿîøàíü
«Êóá» â èííîïîëèñå Ñÿîøàíü
Ôîòî © Zhao Qiang
«Êóá» â èííîïîëèñå Ñÿîøàíü
«Êóá» â èííîïîëèñå Ñÿîøàíü
Ôîòî © Zhao Qiang
«Êóá» â èííîïîëèñå Ñÿîøàíü
«Êóá» â èííîïîëèñå Ñÿîøàíü
Ôîòî © Zhao Qiang
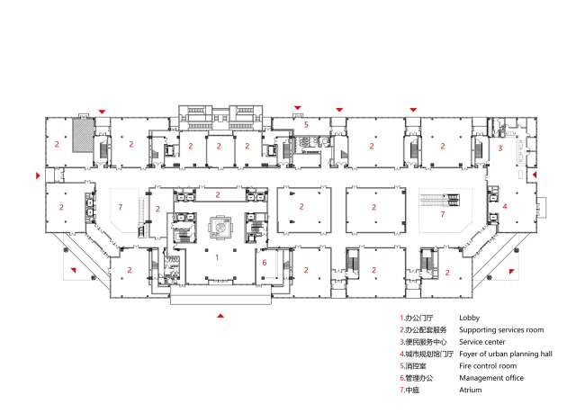
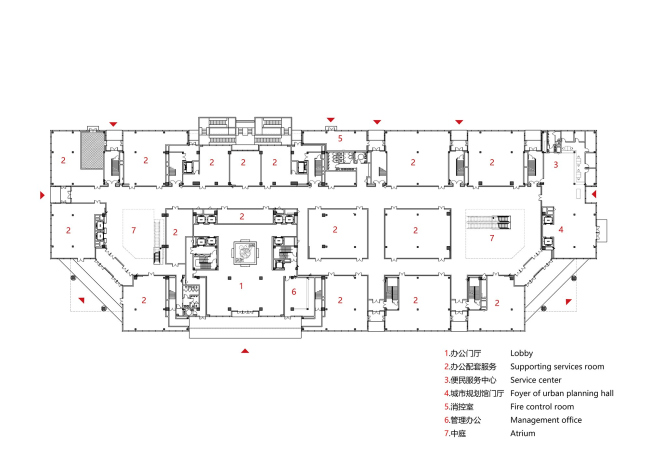
«Êóá» â èííîïîëèñå Ñÿîøàíü
«Êóá» â èííîïîëèñå Ñÿîøàíü
© The Architectural Design & Research Institute of Zhejiang University Co., Ltd. (UAD)
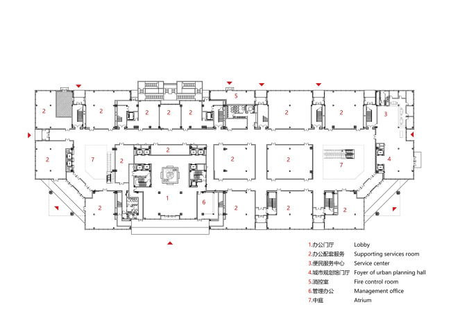
«Êóá» â èííîïîëèñå Ñÿîøàíü
«Êóá» â èííîïîëèñå Ñÿîøàíü
© The Architectural Design & Research Institute of Zhejiang University Co., Ltd. (UAD)
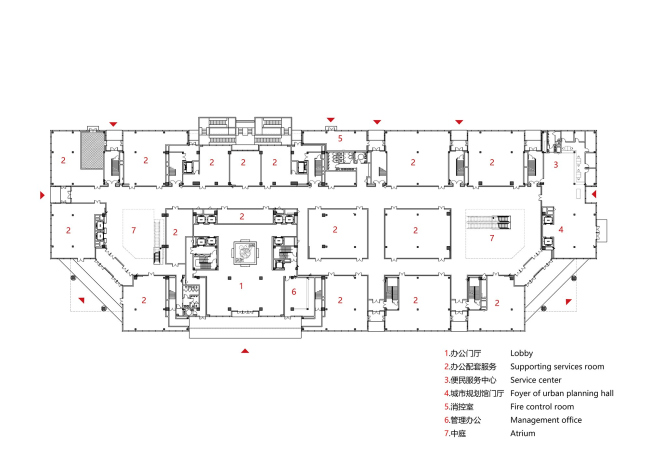
«Êóá» â èííîïîëèñå Ñÿîøàíü
«Êóá» â èííîïîëèñå Ñÿîøàíü
© The Architectural Design & Research Institute of Zhejiang University Co., Ltd. (UAD)
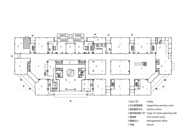
«Êóá» â èííîïîëèñå Ñÿîøàíü
«Êóá» â èííîïîëèñå Ñÿîøàíü
© The Architectural Design & Research Institute of Zhejiang University Co., Ltd. (UAD)