Размещено на портале Архи.ру (www.archi.ru)

14.07.2023

Сокрытые сокровища

Анна Старостина
Объект:
Музей деревянных статуй Будды в монастыре Цзисинь
Адрес:
Китай, None, Циньхуандао.
Мастерская:
Archstudio

Китайское бюро Archstudio «спрятало» коллекцию деревянных статуй Будды в новых постройках на территории исторического монастыря Цзисинь. Архитекторы создали сложное, наполненное символикой пространство и для молитвы, и для наслаждения искусством.

Строительство монастыря Цзисинь относят к периоду Сун (960–1279). Расположен он в зеленой гористой местности Цзушань к северу от крупного портового города Циньхуандао. В 2002 монастырь был полностью перестроен, но сохранил свое значение важного туристического центра региона.

Музей деревянных статуй Будды в монастыре Цзисинь в местности Цзушань
Музей деревянных статуй Будды в монастыре Цзисинь в местности Цзушань
Фотография © Jin Weiqi / предоставлена Archstudio
Музей деревянных статуй Будды в монастыре Цзисинь в местности Цзушань
Музей деревянных статуй Будды в монастыре Цзисинь в местности Цзушань
Фотография © Jin Weiqi / предоставлена Archstudio
Музей деревянных статуй Будды в монастыре Цзисинь в местности Цзушань
Музей деревянных статуй Будды в монастыре Цзисинь в местности Цзушань
Фотография © Jin Weiqi / предоставлена Archstudio
Музей деревянных статуй Будды в монастыре Цзисинь в местности Цзушань
Музей деревянных статуй Будды в монастыре Цзисинь в местности Цзушань
Фотография © Wang Tonghui / предоставлена Archstudio

У коллекции статуй Будды, выполненных из камфорного дерева, своя история. Они были заказаны в китайском городе Дунъян коллекционером из Японии и в течении нескольких десятилетий переходили от одного владельца к другому, пока не были выкуплены и возвращены обратно в Китай. В конечном итоге местом их пребывания и стал монастырь Цзисинь, комплекс с традиционной жестко симметричной осевой планировкой.
Музей деревянных статуй Будды в монастыре Цзисинь в местности Цзушань
Музей деревянных статуй Будды в монастыре Цзисинь в местности Цзушань
Фотография © Jin Weiqi / предоставлена Archstudio
Музей деревянных статуй Будды в монастыре Цзисинь в местности Цзушань
Музей деревянных статуй Будды в монастыре Цзисинь в местности Цзушань
Фотография © Jin Weiqi / предоставлена Archstudio
Музей деревянных статуй Будды в монастыре Цзисинь в местности Цзушань Фотография © Jin Weiqi / предоставлена Archstudio
Музей деревянных статуй Будды в монастыре Цзисинь в местности Цзушань
Фотография © Jin Weiqi / предоставлена Archstudio
Музей деревянных статуй Будды в монастыре Цзисинь в местности Цзушань Фотография © Wang Ning / предоставлена Archstudio
Музей деревянных статуй Будды в монастыре Цзисинь в местности Цзушань
Фотография © Wang Ning / предоставлена Archstudio
Музей деревянных статуй Будды в монастыре Цзисинь в местности Цзушань Фотография © Wang Ning / предоставлена Archstudio
Музей деревянных статуй Будды в монастыре Цзисинь в местности Цзушань
Фотография © Wang Ning / предоставлена Archstudio
Музей деревянных статуй Будды в монастыре Цзисинь в местности Цзушань Фотография © Wang Ning / предоставлена Archstudio
Музей деревянных статуй Будды в монастыре Цзисинь в местности Цзушань
Фотография © Wang Ning / предоставлена Archstudio
Музей деревянных статуй Будды в монастыре Цзисинь в местности Цзушань Фотография © Wang Ning / предоставлена Archstudio
Музей деревянных статуй Будды в монастыре Цзисинь в местности Цзушань
Фотография © Wang Ning / предоставлена Archstudio
Музей деревянных статуй Будды в монастыре Цзисинь в местности Цзушань Фотография © Wang Ning / предоставлена Archstudio
Музей деревянных статуй Будды в монастыре Цзисинь в местности Цзушань
Фотография © Wang Ning / предоставлена Archstudio
Музей деревянных статуй Будды в монастыре Цзисинь в местности Цзушань Фотография © Wang Ning / предоставлена Archstudio
Музей деревянных статуй Будды в монастыре Цзисинь в местности Цзушань
Фотография © Wang Ning / предоставлена Archstudio
Музей деревянных статуй Будды в монастыре Цзисинь в местности Цзушань Фотография © Wang Ning / предоставлена Archstudio
Музей деревянных статуй Будды в монастыре Цзисинь в местности Цзушань
Фотография © Wang Ning / предоставлена Archstudio
Музей деревянных статуй Будды в монастыре Цзисинь в местности Цзушань Фотография © Jin Weiqi / предоставлена Archstudio
Музей деревянных статуй Будды в монастыре Цзисинь в местности Цзушань
Фотография © Jin Weiqi / предоставлена Archstudio
Музей деревянных статуй Будды в монастыре Цзисинь в местности Цзушань Фотография © Wang Ning / предоставлена Archstudio
Музей деревянных статуй Будды в монастыре Цзисинь в местности Цзушань
Фотография © Wang Ning / предоставлена Archstudio

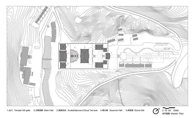
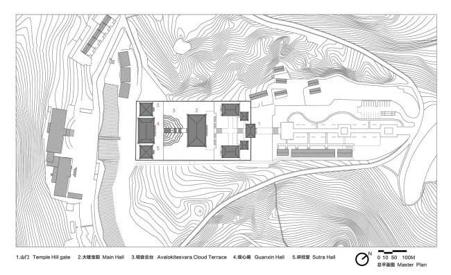
Новые «музейные» залы архитекторы пекинского бюро Archstudio расположили в самой дальней части монастырского ансамбля, но уже из главного зала открывается вид на три новых объема, расположенных на заметном возвышении.
Музей деревянных статуй Будды в монастыре Цзисинь в местности Цзушань
Музей деревянных статуй Будды в монастыре Цзисинь в местности Цзушань
Фотография © Jin Weiqi / предоставлена Archstudio
Музей деревянных статуй Будды в монастыре Цзисинь в местности Цзушань
Музей деревянных статуй Будды в монастыре Цзисинь в местности Цзушань
Фотография © Jin Weiqi / предоставлена Archstudio
Музей деревянных статуй Будды в монастыре Цзисинь в местности Цзушань
Музей деревянных статуй Будды в монастыре Цзисинь в местности Цзушань
Фотография © Wang Ning / предоставлена Archstudio

Перепад высот в целых 10 метров позволил создать эффектную террасную лестницу, посередине которой расположена статуя милосердной бодхисаттвы Гуаньинь. Семиуровневая конструкция полностью симметрична относительно центральной оси, но все ее ярусы имеют разную высоту. При этом скругленные формы придают ей сходство с облаками. Особенно эффектно «облачная терраса» смотрится во время сильных туманов, характерных для этой гористой местности. Возникает особая переходная зона, помогающая посетителю подготовится к дальнейшим переживаниям. В качестве визуального прототипа архитекторы использовали в том числе храмовый комплекс Боробудур на острове Ява.
Музей деревянных статуй Будды в монастыре Цзисинь в местности Цзушань Фотография © Jin Weiqi / предоставлена Archstudio
Музей деревянных статуй Будды в монастыре Цзисинь в местности Цзушань
Фотография © Jin Weiqi / предоставлена Archstudio
Музей деревянных статуй Будды в монастыре Цзисинь в местности Цзушань Фотография © Jin Weiqi / предоставлена Archstudio
Музей деревянных статуй Будды в монастыре Цзисинь в местности Цзушань
Фотография © Jin Weiqi / предоставлена Archstudio
Музей деревянных статуй Будды в монастыре Цзисинь в местности Цзушань Фотография © Jin Weiqi / предоставлена Archstudio
Музей деревянных статуй Будды в монастыре Цзисинь в местности Цзушань
Фотография © Jin Weiqi / предоставлена Archstudio
Музей деревянных статуй Будды в монастыре Цзисинь в местности Цзушань
Музей деревянных статуй Будды в монастыре Цзисинь в местности Цзушань
Фотография © Wang Ning / предоставлена Archstudio
Музей деревянных статуй Будды в монастыре Цзисинь в местности Цзушань
Музей деревянных статуй Будды в монастыре Цзисинь в местности Цзушань
Фотография © Jin Weiqi / предоставлена Archstudio

Расположенный также на центральной оси главный объем представляет собой современную вариацию традиционной для периода Сун прямоугольной постройки. Его ширина составляет 30 м, глубина – 16,8 м, а высота достигает 20 м. Внутри создана семиярусная, постепенно сужающаяся овальная конструкция с арочными проемами, напоминающая полую пагоду, которая и стала вертикальным экспозиционным пространством. Для ее осмотра спроектированы два круговых коридора и верхняя платформа, соединенные лестницами. Сложные формы напоминают о мандале, а внизу, в центре всей композиции, расположена статуя тысячерукой Гуаньинь.
Музей деревянных статуй Будды в монастыре Цзисинь в местности Цзушань
Музей деревянных статуй Будды в монастыре Цзисинь в местности Цзушань
Фотография © Jin Weiqi / предоставлена Archstudio
Музей деревянных статуй Будды в монастыре Цзисинь в местности Цзушань
Музей деревянных статуй Будды в монастыре Цзисинь в местности Цзушань
Фотография © Jin Weiqi / предоставлена Archstudio
Музей деревянных статуй Будды в монастыре Цзисинь в местности Цзушань Фотография © Jin Weiqi / предоставлена Archstudio
Музей деревянных статуй Будды в монастыре Цзисинь в местности Цзушань
Фотография © Jin Weiqi / предоставлена Archstudio
Музей деревянных статуй Будды в монастыре Цзисинь в местности Цзушань Фотография © Jin Weiqi / предоставлена Archstudio
Музей деревянных статуй Будды в монастыре Цзисинь в местности Цзушань
Фотография © Jin Weiqi / предоставлена Archstudio
Музей деревянных статуй Будды в монастыре Цзисинь в местности Цзушань Фотография © Jin Weiqi / предоставлена Archstudio
Музей деревянных статуй Будды в монастыре Цзисинь в местности Цзушань
Фотография © Jin Weiqi / предоставлена Archstudio
Музей деревянных статуй Будды в монастыре Цзисинь в местности Цзушань Фотография © Wang Ning / предоставлена Archstudio
Музей деревянных статуй Будды в монастыре Цзисинь в местности Цзушань
Фотография © Wang Ning / предоставлена Archstudio
Музей деревянных статуй Будды в монастыре Цзисинь в местности Цзушань Фотография © Wang Ning / предоставлена Archstudio
Музей деревянных статуй Будды в монастыре Цзисинь в местности Цзушань
Фотография © Wang Ning / предоставлена Archstudio
Музей деревянных статуй Будды в монастыре Цзисинь в местности Цзушань Фотография © Wang Ning / предоставлена Archstudio
Музей деревянных статуй Будды в монастыре Цзисинь в местности Цзушань
Фотография © Wang Ning / предоставлена Archstudio
Музей деревянных статуй Будды в монастыре Цзисинь в местности Цзушань Фотография © Jin Weiqi / предоставлена Archstudio
Музей деревянных статуй Будды в монастыре Цзисинь в местности Цзушань
Фотография © Jin Weiqi / предоставлена Archstudio

Но тщательно спланированный архитекторами путь предназначен не только для любования скульптурами: на стены нанесен текст «Алмазной сутры», предусмотрены специальные места для поклонения, а на поверхности проецируется мультимедийный рисунок, демонстрирующий особый жест и важные памятные места, связанные с культом Гуаньинь. Наконец, особое внимание уделили освещению. Солнечный свет сконцентрирован в самой верхней точке пагоды, более того, все остекленные поверхности покрыты специальной пленкой, пропускающей всего 9% солнечного излучения. Искусственное же освещение тщательно продумано так, чтобы подчеркнуть структуру и символический смысл пространства, выделить каждый из экспонатов.
Музей деревянных статуй Будды в монастыре Цзисинь в местности Цзушань
Музей деревянных статуй Будды в монастыре Цзисинь в местности Цзушань
Фотография © Wang Ning / предоставлена Archstudio
Музей деревянных статуй Будды в монастыре Цзисинь в местности Цзушань
Музей деревянных статуй Будды в монастыре Цзисинь в местности Цзушань
Фотография © Wang Ning / предоставлена Archstudio
Музей деревянных статуй Будды в монастыре Цзисинь в местности Цзушань Фотография © Jin Weiqi / предоставлена Archstudio
Музей деревянных статуй Будды в монастыре Цзисинь в местности Цзушань
Фотография © Jin Weiqi / предоставлена Archstudio
Музей деревянных статуй Будды в монастыре Цзисинь в местности Цзушань Фотография © Jin Weiqi / предоставлена Archstudio
Музей деревянных статуй Будды в монастыре Цзисинь в местности Цзушань
Фотография © Jin Weiqi / предоставлена Archstudio
Музей деревянных статуй Будды в монастыре Цзисинь в местности Цзушань Фотография © Wang Ning / предоставлена Archstudio
Музей деревянных статуй Будды в монастыре Цзисинь в местности Цзушань
Фотография © Wang Ning / предоставлена Archstudio
Музей деревянных статуй Будды в монастыре Цзисинь в местности Цзушань
Музей деревянных статуй Будды в монастыре Цзисинь в местности Цзушань
Фотография © Jin Weiqi / предоставлена Archstudio

С двух сторон от главного зала расположены одинаковые Павильоны сутр. Помещения высотой 11 м каждое предназначены в основном для образовательной и общественной деятельности монастыря. До самого верха они завешаны подсвеченными панелями с нанесенными на них текстами сутр. Кроме того, в оформлении использованы зеркальные поверхности и звукопоглащающие материалы, которые помогают создать в залах особую, футуристично-мистическую атмосферу.
Музей деревянных статуй Будды в монастыре Цзисинь в местности Цзушань
Музей деревянных статуй Будды в монастыре Цзисинь в местности Цзушань
© Archstudio
Музей деревянных статуй Будды в монастыре Цзисинь в местности Цзушань
Музей деревянных статуй Будды в монастыре Цзисинь в местности Цзушань
© Archstudio
Музей деревянных статуй Будды в монастыре Цзисинь в местности Цзушань © Archstudio
Музей деревянных статуй Будды в монастыре Цзисинь в местности Цзушань
© Archstudio
Музей деревянных статуй Будды в монастыре Цзисинь в местности Цзушань © Archstudio
Музей деревянных статуй Будды в монастыре Цзисинь в местности Цзушань
© Archstudio
Музей деревянных статуй Будды в монастыре Цзисинь в местности Цзушань © Archstudio
Музей деревянных статуй Будды в монастыре Цзисинь в местности Цзушань
© Archstudio
Музей деревянных статуй Будды в монастыре Цзисинь в местности Цзушань © Archstudio
Музей деревянных статуй Будды в монастыре Цзисинь в местности Цзушань
© Archstudio
Музей деревянных статуй Будды в монастыре Цзисинь в местности Цзушань
Музей деревянных статуй Будды в монастыре Цзисинь в местности Цзушань
© Archstudio
Музей деревянных статуй Будды в монастыре Цзисинь в местности Цзушань
Музей деревянных статуй Будды в монастыре Цзисинь в местности Цзушань
© Archstudio
Музей деревянных статуй Будды в монастыре Цзисинь в местности Цзушань
Музей деревянных статуй Будды в монастыре Цзисинь в местности Цзушань
© Archstudio
Музей деревянных статуй Будды в монастыре Цзисинь в местности Цзушань
Музей деревянных статуй Будды в монастыре Цзисинь в местности Цзушань
© Archstudio
Музей деревянных статуй Будды в монастыре Цзисинь в местности Цзушань © Archstudio
Музей деревянных статуй Будды в монастыре Цзисинь в местности Цзушань
© Archstudio
Музей деревянных статуй Будды в монастыре Цзисинь в местности Цзушань © Archstudio
Музей деревянных статуй Будды в монастыре Цзисинь в местности Цзушань
© Archstudio
Музей деревянных статуй Будды в монастыре Цзисинь в местности Цзушань © Archstudio
Музей деревянных статуй Будды в монастыре Цзисинь в местности Цзушань
© Archstudio
Музей деревянных статуй Будды в монастыре Цзисинь в местности Цзушань
Музей деревянных статуй Будды в монастыре Цзисинь в местности Цзушань
© Archstudio
Музей деревянных статуй Будды в монастыре Цзисинь в местности Цзушань
Музей деревянных статуй Будды в монастыре Цзисинь в местности Цзушань
© Archstudio
Музей деревянных статуй Будды в монастыре Цзисинь в местности Цзушань
Музей деревянных статуй Будды в монастыре Цзисинь в местности Цзушань
© Archstudio