Размещено на портале Архи.ру (www.archi.ru)

22.06.2023

В цветах птичьего оперения

Нина Фролова
Объект:
Центр пристройства домашних животных в Блектауне – BARC
Адрес:
Австралия, None, Сидней. 20 Owen St, Glendenning NSW 2761
Мастерская:
Sam Crawford Architects – SCA

Центр, где котам и псам находят новых хозяев, построен в пригороде Сиднея по проекту Sam Crawford Architects. Его фасады окрашены в яркие цвета, типичные для местных птиц.

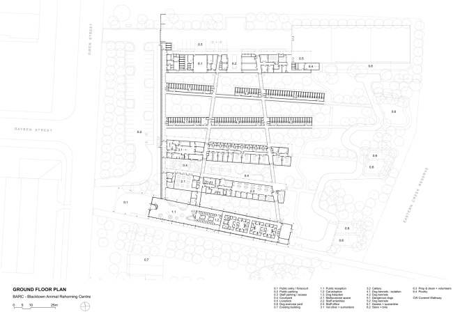
Центр BARC, где пристраивают бездомных собаки и кошек, расположен в Блектауне к западу от центра Сиднея. Это самое крупное подобное заведение в Южном полушарии: оно рассчитано на 380 животных.
 

Центр пристройства домашних животных в Блектауне – BARC
Центр пристройства домашних животных в Блектауне – BARC
Фото © Brett Boardman

Учитывая большое количество четвероногих, оказавшихся на улице после пандемии Covid-19, когда их массово заводили для борьбы с одиночеством и ради права на регулярные прогулки, а после отмены карантина начали от них избавляться, центр BARC (омофон к английскому «лай», «лаять») не приют в обычном смысле слова. Он рассчитан на привлечение новых хозяев для своих обитателей, поэтому трактован привлекательно и открыто.
 
Центр пристройства домашних животных в Блектауне – BARC
Центр пристройства домашних животных в Блектауне – BARC
Фото © Brett Boardman

Это шесть корпусов-«пальцев», соединенных крытыми переходам. Каждое здание имеет свою функцию: такая схема помогает настроить оптимальные маршруты для перемещения людей и четвероногих, отдельные для собак и кошек. Кроме того, каждый из корпусов освещен солнцем, там обеспечена естественная вентиляция (которая дополнена системой кондиционирования с рекуперацией тепла), но главное – сквозь остекленные поверхности постоянно видна окружающая природа. Это поддерживает хорошее настроение у собак, сотрудникам помогает не «выгореть» и в целом снижает холодную атмосферу «учреждения».
 
Центр пристройства домашних животных в Блектауне – BARC
Центр пристройства домашних животных в Блектауне – BARC
Фото © Brett Boardman

Масштаб интерьеров в «псарнях» (они занимают два корпуса) соответствует типичному сельскому дому, что дает четвероногим обитателям эмоциональный комфорт; обеспечена защита от шума и нервных перегрузок. Если собаке хочется полного покоя, она утомилась от наблюдения за окружением, она всегда может уйти за специальный экран. Снаружи устроены площадки для физической активности.
 
Центр пристройства домашних животных в Блектауне – BARC Фото © Brett Boardman
Центр пристройства домашних животных в Блектауне – BARC
Фото © Brett Boardman
Центр пристройства домашних животных в Блектауне – BARC © Lymesmith
Центр пристройства домашних животных в Блектауне – BARC
© Lymesmith
Центр пристройства домашних животных в Блектауне – BARC Фото © Brett Boardman
Центр пристройства домашних животных в Блектауне – BARC
Фото © Brett Boardman
Центр пристройства домашних животных в Блектауне – BARC Фото © Brett Boardman
Центр пристройства домашних животных в Блектауне – BARC
Фото © Brett Boardman
Центр пристройства домашних животных в Блектауне – BARC Фото © Brett Boardman
Центр пристройства домашних животных в Блектауне – BARC
Фото © Brett Boardman

Для кошек предусмотрены забавные жилища, где можно полазать. В том же корпусе расположена ветеринарная лечебница с новейшим оборудованием. Еще одно здание занято помещениями для персонала, другое – кухней, складом, прачечной, зоной груминга и помещением для осмотра новоприбывших животных.
 
Центр пристройства домашних животных в Блектауне – BARC
Центр пристройства домашних животных в Блектауне – BARC
Фото © Brett Boardman

Особое внимание уделено первому корпусу – для посетителей, как хозяев животных, для которых организованы курсы по их обучению, так и желающих стать таковыми: им адресованы специальные занятия для будущих собако- и кошковладельцев. Здесь же можно посмотреть на обитателей центра, которые отдыхают или играют в больших остекленных помещениях, и найти себе нового друга. Вход оформлен большим, хорошо заметным издали козырьком, символизирующим открытость.
 
Центр пристройства домашних животных в Блектауне – BARC
Центр пристройства домашних животных в Блектауне – BARC
Фото © Brett Boardman

Везде использованы очень прочные и долговечные материалы, которые легко очищать от бактерий и любого загрязнения. Чтобы смягчить впечатление от этих твердых поверхностей, архитекторы пригласили к сотрудничеству дизайн-студию Lymesmith, которая занимается созданием колористических решений и произведений искусства для зданий.
 
Центр пристройства домашних животных в Блектауне – BARC Фото © Brett Boardman
Центр пристройства домашних животных в Блектауне – BARC
Фото © Brett Boardman
Центр пристройства домашних животных в Блектауне – BARC Фото © Brett Boardman
Центр пристройства домашних животных в Блектауне – BARC
Фото © Brett Boardman
Центр пристройства домашних животных в Блектауне – BARC Фото © Brett Boardman
Центр пристройства домашних животных в Блектауне – BARC
Фото © Brett Boardman
Центр пристройства домашних животных в Блектауне – BARC Фото © Brett Boardman
Центр пристройства домашних животных в Блектауне – BARC
Фото © Brett Boardman
Центр пристройства домашних животных в Блектауне – BARC Фото © Brett Boardman
Центр пристройства домашних животных в Блектауне – BARC
Фото © Brett Boardman
Центр пристройства домашних животных в Блектауне – BARC Фото © Brett Boardman
Центр пристройства домашних животных в Блектауне – BARC
Фото © Brett Boardman
Центр пристройства домашних животных в Блектауне – BARC Фото © Brett Boardman
Центр пристройства домашних животных в Блектауне – BARC
Фото © Brett Boardman

В результате для фасадов каждого корпуса была разработана цветовая гамма, основанная на цветах оперения той или иной местной птицы – «пернатого представителя» этой постройки. Кроме того, был сооружен 100-метровый «Птичий экран» из разноцветных вертикальных ламелей, визуально объединяющий все шесть корпусов.
 
Центр пристройства домашних животных в Блектауне – BARC
Центр пристройства домашних животных в Блектауне – BARC
Фото © Brett Boardman
Центр пристройства домашних животных в Блектауне – BARC
Центр пристройства домашних животных в Блектауне – BARC
Фото © Brett Boardman
Центр пристройства домашних животных в Блектауне – BARC Фото © Brett Boardman
Центр пристройства домашних животных в Блектауне – BARC
Фото © Brett Boardman
Центр пристройства домашних животных в Блектауне – BARC Фото © Brett Boardman
Центр пристройства домашних животных в Блектауне – BARC
Фото © Brett Boardman
Центр пристройства домашних животных в Блектауне – BARC
Центр пристройства домашних животных в Блектауне – BARC
Фото © Brett Boardman
Центр пристройства домашних животных в Блектауне – BARC
Центр пристройства домашних животных в Блектауне – BARC
Фото © Brett Boardman
Центр пристройства домашних животных в Блектауне – BARC
Центр пристройства домашних животных в Блектауне – BARC
Фото © Brett Boardman
Центр пристройства домашних животных в Блектауне – BARC
Центр пристройства домашних животных в Блектауне – BARC
Фото © Brett Boardman
Центр пристройства домашних животных в Блектауне – BARC
Центр пристройства домашних животных в Блектауне – BARC
Фото © Brett Boardman
Центр пристройства домашних животных в Блектауне – BARC
Центр пристройства домашних животных в Блектауне – BARC
Фото © Brett Boardman
Центр пристройства домашних животных в Блектауне – BARC
Центр пристройства домашних животных в Блектауне – BARC
Фото © Brett Boardman
Центр пристройства домашних животных в Блектауне – BARC
Центр пристройства домашних животных в Блектауне – BARC
© Sam Crawford Architects
Центр пристройства домашних животных в Блектауне – BARC
Центр пристройства домашних животных в Блектауне – BARC
© Sam Crawford Architects
Центр пристройства домашних животных в Блектауне – BARC
Центр пристройства домашних животных в Блектауне – BARC
© Sam Crawford Architects
Центр пристройства домашних животных в Блектауне – BARC
Центр пристройства домашних животных в Блектауне – BARC
© Sam Crawford Architects
Центр пристройства домашних животных в Блектауне – BARC
Центр пристройства домашних животных в Блектауне – BARC
© Sam Crawford Architects