Размещено на портале Архи.ру (www.archi.ru)

09.06.2023

Под сенью платана и дерева гинкго

Анна Старостина
Объект:
Общественный центр района Корнильяно в Генуе
Адрес:
Италия, None, Генуя.
Мастерская:
Dodi Moss
SAB Architettura Ingegneria Integrata

Архитектурные бюро Dodi Moss и SAB превратили часть корпусов заброшенной конфетной фабрики в бывшем промышленном районе Генуи в комфортный и открытый общественный центр. О прошлом места напоминают лишь изломы кровли.

Район Корнильяно находится примерно в семи километрах от центра Генуи, на ее западной окраине, в холмистой местности на берегу реки Польчевера. Когда-то популярное место отдыха аристократии и строительства частных резиденций, после Первой мировой войны и открытия крупного сталелитейного завода оно превратилось в активную промзону с жильем для рабочих довольно низкого качества.

Общественный центр района Корнильяно в Генуе
Общественный центр района Корнильяно в Генуе
Фотография © Anna Positano, Gaia Cambiaggi (Studio Campo) / предоставлена агентством Cultivar
Общественный центр района Корнильяно в Генуе
Общественный центр района Корнильяно в Генуе
Фотография © Anna Positano, Gaia Cambiaggi (Studio Campo) / предоставлена агентством Cultivar

К концу прошлого века завод перестал отвечать требованиям рынка и постепенно оказался заброшен, сотрудники остались без работы, а район Корнильяно пришел в упадок. С начала 2000-х муниципальные власти предпринимают активные попытки остановить отток населения и вдохнуть сюда новую жизнь; важную роль в этом играют проекты трансформации заброшенных промзон и формирование качественной городской среды.
Общественный центр района Корнильяно в Генуе
Общественный центр района Корнильяно в Генуе
Фотография © Anna Positano, Gaia Cambiaggi (Studio Campo) / предоставлена агентством Cultivar
Общественный центр района Корнильяно в Генуе
Общественный центр района Корнильяно в Генуе
Фотография © Anna Positano, Gaia Cambiaggi (Studio Campo) / предоставлена агентством Cultivar
Общественный центр района Корнильяно в Генуе
Общественный центр района Корнильяно в Генуе
Фотография © Anna Positano, Gaia Cambiaggi (Studio Campo) / предоставлена агентством Cultivar

Одним из таких проектов стала реконструкция бывших производственных корпусов конфетной фабрики Dufour под общественный центр. Именно такого рода инфраструктура была очень нужна району. Архитекторы местного бюро Dodi Moss и их коллеги из бюро SAB в Перудже создали полноценный социальный хаб, настоящий драйвер развития для всей территории с привлекательными открытыми пространствами, универсальными спортивными площадками, залами для танцев и игры на бильярде, разнообразными зонами отдыха и местами для культурных мероприятий самого разного формата.
Общественный центр района Корнильяно в Генуе
Общественный центр района Корнильяно в Генуе
Фотография © Anna Positano, Gaia Cambiaggi (Studio Campo) / предоставлена агентством Cultivar
Общественный центр района Корнильяно в Генуе
Общественный центр района Корнильяно в Генуе
Фотография © Anna Positano, Gaia Cambiaggi (Studio Campo) / предоставлена агентством Cultivar
Общественный центр района Корнильяно в Генуе
Общественный центр района Корнильяно в Генуе
Фотография © Anna Positano, Gaia Cambiaggi (Studio Campo) / предоставлена агентством Cultivar

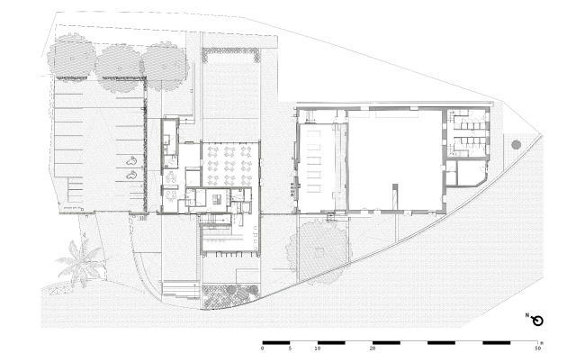
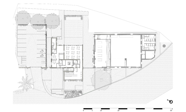
Начали со сноса непригодных для дальнейшего использования ветхих строений, в которых раньше располагались библиотека с читальным залом, бар и другие объекты, что позволило реорганизовать весь участок. Затем реконструировали четыре вытянутых объема на бетонном фундаменте с характерными двускатными кровлями. Чтобы дополнительно подчеркнуть промышленное прошлое района и сохранить его идентичность, к имеющимся объемам добавили еще два, тоже с двускатной кровлей. Одновременно был сформирован проход через территорию, чтобы вытянутый участок не разрезал квартал на две части.
Общественный центр района Корнильяно в Генуе
Общественный центр района Корнильяно в Генуе
Фотография © Anna Positano, Gaia Cambiaggi (Studio Campo) / предоставлена агентством Cultivar
Общественный центр района Корнильяно в Генуе Фотография © Anna Positano, Gaia Cambiaggi (Studio Campo) / предоставлена агентством Cultivar
Общественный центр района Корнильяно в Генуе
Фотография © Anna Positano, Gaia Cambiaggi (Studio Campo) / предоставлена агентством Cultivar
Общественный центр района Корнильяно в Генуе Фотография © Anna Positano, Gaia Cambiaggi (Studio Campo) / предоставлена агентством Cultivar
Общественный центр района Корнильяно в Генуе
Фотография © Anna Positano, Gaia Cambiaggi (Studio Campo) / предоставлена агентством Cultivar
Общественный центр района Корнильяно в Генуе Фотография © Anna Positano, Gaia Cambiaggi (Studio Campo) / предоставлена агентством Cultivar
Общественный центр района Корнильяно в Генуе
Фотография © Anna Positano, Gaia Cambiaggi (Studio Campo) / предоставлена агентством Cultivar

Помещения общественного центра расположены на двух этажах. Первый выполнен из монолитного бетона, а второй сформирован легкой стальной конструкцией, закрытой листами поликарбоната. Матовые панели частично пропускают солнечные лучи, создавая в интерьере второго этажа эффектное рассеянное освещение и необычную атмосферу.
Общественный центр района Корнильяно в Генуе
Общественный центр района Корнильяно в Генуе
Фотография © Anna Positano, Gaia Cambiaggi (Studio Campo) / предоставлена агентством Cultivar
Общественный центр района Корнильяно в Генуе
Общественный центр района Корнильяно в Генуе
Фотография © Anna Positano, Gaia Cambiaggi (Studio Campo) / предоставлена агентством Cultivar

Большое внимание уделили и открытым зонам. Во-первых, на крыше части новой бетонной конструкции устроена летняя терраса, во-вторых, такой же навес из поликарбоната соединяет новую и реконструированную части центра, формируя уютное и защищенное пространство. В-третьих, пешеходная часть территории приподнята и отделена от парковки и проездов кустами и цветочницами. В-четвертых, в задней части участка организована зона, куда помещения центра выходят сплошным остеклением: здесь летом можно устраивать танцы. Наконец, растущие на территории большой платан и дерево гинкго также создают вокруг себя затененные места для отдыха и общения.
Общественный центр района Корнильяно в Генуе
Общественный центр района Корнильяно в Генуе
© Dodi Moss & SAB / предоставлено агентством Cultivar
Общественный центр района Корнильяно в Генуе
Общественный центр района Корнильяно в Генуе
© Dodi Moss & SAB / предоставлено агентством Cultivar
Общественный центр района Корнильяно в Генуе
Общественный центр района Корнильяно в Генуе
© Dodi Moss & SAB / предоставлено агентством Cultivar
Общественный центр района Корнильяно в Генуе
Общественный центр района Корнильяно в Генуе
© Dodi Moss & SAB / предоставлено агентством Cultivar
Общественный центр района Корнильяно в Генуе
Общественный центр района Корнильяно в Генуе
© Dodi Moss & SAB / предоставлено агентством Cultivar
Общественный центр района Корнильяно в Генуе © Dodi Moss & SAB / предоставлено агентством Cultivar
Общественный центр района Корнильяно в Генуе
© Dodi Moss & SAB / предоставлено агентством Cultivar
Общественный центр района Корнильяно в Генуе © Dodi Moss & SAB / предоставлено агентством Cultivar
Общественный центр района Корнильяно в Генуе
© Dodi Moss & SAB / предоставлено агентством Cultivar
Общественный центр района Корнильяно в Генуе © Dodi Moss & SAB / предоставлено агентством Cultivar
Общественный центр района Корнильяно в Генуе
© Dodi Moss & SAB / предоставлено агентством Cultivar
Общественный центр района Корнильяно в Генуе © Dodi Moss & SAB / предоставлено агентством Cultivar
Общественный центр района Корнильяно в Генуе
© Dodi Moss & SAB / предоставлено агентством Cultivar
Общественный центр района Корнильяно в Генуе © Dodi Moss & SAB / предоставлено агентством Cultivar
Общественный центр района Корнильяно в Генуе
© Dodi Moss & SAB / предоставлено агентством Cultivar
Общественный центр района Корнильяно в Генуе © Dodi Moss & SAB / предоставлено агентством Cultivar
Общественный центр района Корнильяно в Генуе
© Dodi Moss & SAB / предоставлено агентством Cultivar