Размещено на портале Архи.ру (www.archi.ru)

19.05.2023

Ковчег культуры

Анна Старостина
Объект:
Культурный центр L’Arche
Адрес:
Франция, None, Вильрю.
Мастерская:
K architectures

В качестве источников вдохновения для проекта культурного центра L’Arche в городке Вильрю парижское бюро K architectures выбрало Колизей и легендарную виллу Малапарте на острове Капри.

Городок Вильрю расположен на северо-востоке Франции, в Лотарингии, на самой границе с Люксембургом. В середине XIX века здесь обнаружили запасы железной руды, что спровоцировало активное промышленное строительство и бурный рост населения – в основном за счет итальянских эмигрантов. Запасы руды довольно быстро истощились, промышленные постройки оказались заброшены, многие были демонтированы. Но память о своих корнях и уважение к итальянской культуре у жителей Вильрю сохраняется до сегодняшнего дня: например, каждый год здесь проводится фестиваль итальянского кино.

Культурный центр L’Arche в Вильрю
Культурный центр L’Arche в Вильрю
Фотография © Guillaume Amat / предоставлена K architectures
Культурный центр L’Arche в Вильрю Фотография © Guillaume Amat / предоставлена K architectures
Культурный центр L’Arche в Вильрю
Фотография © Guillaume Amat / предоставлена K architectures
Культурный центр L’Arche в Вильрю Фотография © Guillaume Amat / предоставлена K architectures
Культурный центр L’Arche в Вильрю
Фотография © Guillaume Amat / предоставлена K architectures
Культурный центр L’Arche в Вильрю Фотография © Guillaume Amat / предоставлена K architectures
Культурный центр L’Arche в Вильрю
Фотография © Guillaume Amat / предоставлена K architectures
Культурный центр L’Arche в Вильрю Фотография © Guillaume Amat / предоставлена K architectures
Культурный центр L’Arche в Вильрю
Фотография © Guillaume Amat / предоставлена K architectures

Непростая история города и продиктовала основателям парижского архитектурного бюро K architectures Карин Эрман и Жерому Сигвальту решение нового культурного центра в бывшей промышленной зоне Мишевилль на окраине Вильрю. Проект получивший библейское название L’Arche, то есть «Ковчег», должен был стать первым шагом в стремлении властей местных городков, прошедших схожий исторический путь, преобразовать изживший себя промышленный ландшафт в нечто живое и устремленное в будущее.
Культурный центр L’Arche в Вильрю
Культурный центр L’Arche в Вильрю
Фотография © Guillaume Amat / предоставлена K architectures
Культурный центр L’Arche в Вильрю Фотография © Guillaume Amat / предоставлена K architectures
Культурный центр L’Arche в Вильрю
Фотография © Guillaume Amat / предоставлена K architectures
Культурный центр L’Arche в Вильрю Фотография © Guillaume Amat / предоставлена K architectures
Культурный центр L’Arche в Вильрю
Фотография © Guillaume Amat / предоставлена K architectures
Культурный центр L’Arche в Вильрю
Культурный центр L’Arche в Вильрю
Фотография © Guillaume Amat / предоставлена K architectures

Прямо за новым культурным центром расположена мощная и высокая подпорная стена из камня, оставшаяся от платформы для погрузки руды. Ей отвечают сплошные бетонные стены и сам массивный объем постройки. Его скошенная кровля копирует знаменитую лестницу виллы Малапарте, построенную на рубеже 1930-х – 1940-х на скалистом утесе острова Капри. Но если у виллы это реальная лестница, ведущая на крышу-террасу, то у центра этот уступчатый склон чисто визуальный: он направляет взгляды в сторону исторической стены и архитектурной инсталляции, которую планируется установить сверху. А рядом находится второй фрагмент старинной стены, тоже промышленного происхождения, но уже прорезанный двухуровневыми ритмичными аркадами, подобно стене Колизея. Отдавая дань мировой истории культуры и местным традициям, эти арки и уплощенные напоминания о них создают бесконечную игру на фасадах «Ковчега».
Культурный центр L’Arche в Вильрю
Культурный центр L’Arche в Вильрю
Фотография © Guillaume Amat / предоставлена K architectures
Культурный центр L’Arche в Вильрю Фотография © Guillaume Amat / предоставлена K architectures
Культурный центр L’Arche в Вильрю
Фотография © Guillaume Amat / предоставлена K architectures
Культурный центр L’Arche в Вильрю Фотография © Guillaume Amat / предоставлена K architectures
Культурный центр L’Arche в Вильрю
Фотография © Guillaume Amat / предоставлена K architectures
Культурный центр L’Arche в Вильрю Фотография © Guillaume Amat / предоставлена K architectures
Культурный центр L’Arche в Вильрю
Фотография © Guillaume Amat / предоставлена K architectures
Культурный центр L’Arche в Вильрю
Культурный центр L’Arche в Вильрю
Фотография © Guillaume Amat / предоставлена K architectures
Культурный центр L’Arche в Вильрю
Культурный центр L’Arche в Вильрю
Фотография © Guillaume Amat / предоставлена K architectures

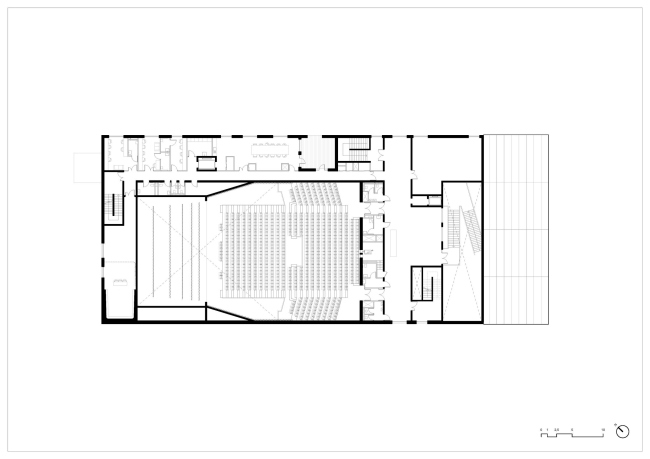
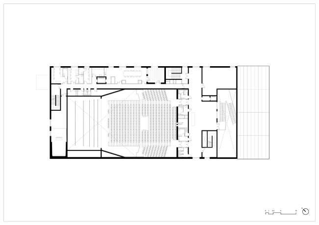
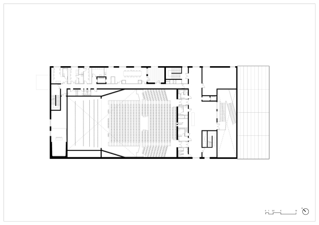
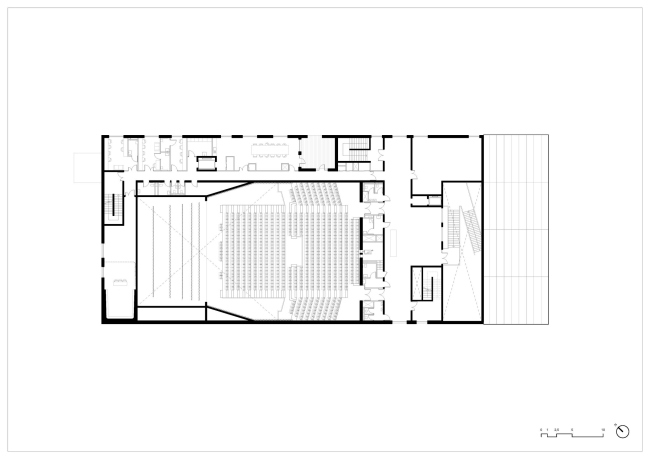
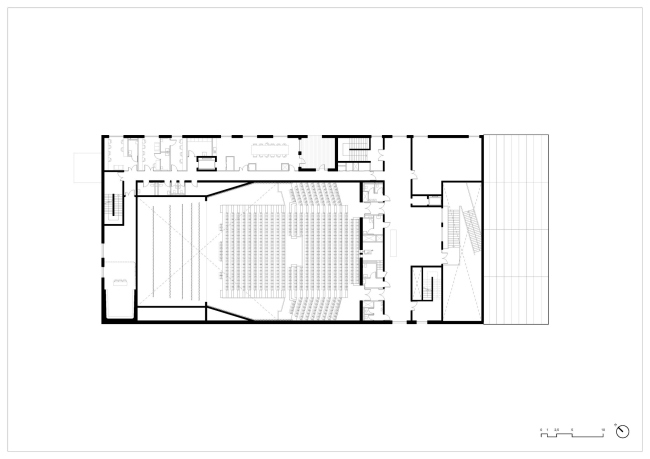
Сам центр работает как «третье место». Внутри расположены галерея иммерсивного цифрового искусства, бар-ресторан, кинозал на 147 мест, большой концертный зал, вмещающий до 1140 человек, и так называемый фаблаб – мастерская в том числе с новейшим цифровым оборудованием, открытая всем желающим. Все зоны имеют максимально гибкую, подстраивающуюся под постоянно меняющиеся условия планировку. Например, универсальный концертный зал оборудован выдвижной телескопической трибуной партера и особыми шторками, позволяющими при необходимости отделить балкон и создать камерную атмосферу. Естественный свет попадает внутрь в основном через остекленный главный фасад, за которым расположен просторный холл. Необычная система освещения для него выполнена на заказ и представляет собой стальные конструкции, на которых закреплены промышленные светильники. Но благодаря специальным гелевым фильтрам они окрашены в цвета лотарингских закатов. Таким образом акцентируется возвышенно-романтическое начало в целом сдержанной и рациональной архитектуры.
Культурный центр L’Arche в Вильрю
Культурный центр L’Arche в Вильрю
Визуализация © RAR rendering / предоставлена K architectures
Культурный центр L’Arche в Вильрю
Культурный центр L’Arche в Вильрю
© K architectures
Культурный центр L’Arche в Вильрю
Культурный центр L’Arche в Вильрю
© K architectures
Культурный центр L’Arche в Вильрю
Культурный центр L’Arche в Вильрю
© K architectures
Культурный центр L’Arche в Вильрю
Культурный центр L’Arche в Вильрю
© K architectures
Культурный центр L’Arche в Вильрю
Культурный центр L’Arche в Вильрю
© K architectures