Размещено на портале Архи.ру (www.archi.ru)

02.05.2023

Библиотека-базилика

Нина Фролова
Объект:
Библиотека Zikawei округа Сюйцзяхуэй
Адрес:
Китай, None, Шанхай.
Мастерская:
Wutopia Lab

Бюро Wutopia Lab превратило недостроенное здание по проекту Дэвида Чипперфильда в самую популярную библиотеку в Шанхае.

Архитекторы гордятся тем, что их библиотека Zikawei без особенной рекламы стала главной точкой притяжения для шанхайцев: первый такой случай для некоммерческого здания, считают они. Она открылась 1 января 2023 и вызвала настоящее паломничество благодаря эффектным интерьерам: сюда пришли даже те, что никогда не был в библиотеке или вообще не читает книг.
 

Библиотека Zikawei округа Сюйцзяхуэй
Библиотека Zikawei округа Сюйцзяхуэй
Фото © CreatAR Images

История библиотеки интересна сама по себе, как и места, где она расположена. Рядом стоит кирпичная неоготическая церковь Святого Игнатия Лойолы, сейчас не действующая. Она была построена иезуитами; этот округ Шанхая, Сюйцзяхуэй, в целом связан с деятельностью этого ордена. Название района переводится как «собственность семьи Сюй у места слияния двух рек». Речь здесь идет о клане, к которому принадлежал Сюй Гуанци, крупный государственный деятель и ученый, обращенный в христианство иезуитами и многое сделавший для распространения католичества в Китае в первой половине XVII века.
 
Библиотека Zikawei округа Сюйцзяхуэй
Библиотека Zikawei округа Сюйцзяхуэй
Фото © CreatAR Images

Эта территория оказалась связана с христианством вплоть до середины XX века: здесь находятся изначальная библиотека Zi-Ka-Wei, основанная французскими иезуитами-миссионерами, упомянутая церковь, а также могила Сюй Гуанци и католический приют для сирот, ныне ставший музеем: они оба повлияли на проект новой библиотеки.
 
Библиотека Zikawei округа Сюйцзяхуэй
Библиотека Zikawei округа Сюйцзяхуэй
Фото © CreatAR Images

Окружной библиотеке требовалось новое здание, однако она его получила неожиданным образом. Бюро Дэвида Чипперфильда заказали проект большого книжного магазина, строительство же шло полным ходом, когда один за другим от участия отказались два инвестора. Незавершенную постройку с готовыми перекрытиями и фасадом местные власти решили превратить в библиотеку. Ее связали с Сюй Гуанци: вывеска выполнена в духе его каллиграфии, а посетители могут ознакомиться с детальными цифровыми копиями составленных им звездных атласов.
 
Библиотека Zikawei округа Сюйцзяхуэй
Библиотека Zikawei округа Сюйцзяхуэй
Фото © CreatAR Images

Заказчик хотел сохранить связь и с более поздним «духом места», отсюда вторая надпись, латиницей – причем не стандартная романизация названия района (Xujiahui), а историческая Zikawei, французская передача шанхайского диалекта. Еще в обширном здании (общая площадь почти 20 тыс. м2) планировали разместить музей упомянутого выше приюта Тушаньвань, или, на французский манер, Tou-Se-We. Этот приют был по сути художественном училищем, где иезуиты преподавали китайские и западные искусства и ремесла. Наряду с католической живописью, скульптурой и церковной утварью, ученики изготовляли редкие по мастерству традиционные объекты, например, деревянные триумфальные ворота (пайлоу), названные в честь приюта «Тушаньвань», показанные на трех Всемирных выставках, от начала XX века до 2010 года в Шанхае, и успевшие за 100 лет попутешествовать по свету и многое пережить. В итоге музей остался в здании приюта, но ворота в проект архитекторы все же включили.
 
Библиотека Zikawei округа Сюйцзяхуэй
Библиотека Zikawei округа Сюйцзяхуэй
Фото © CreatAR Images

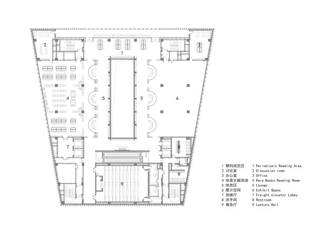
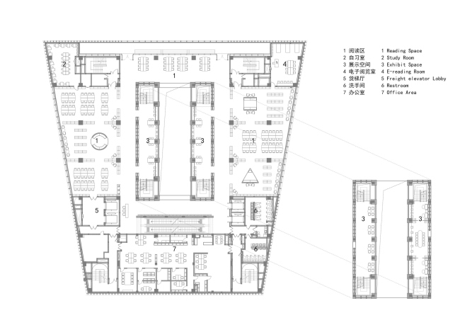
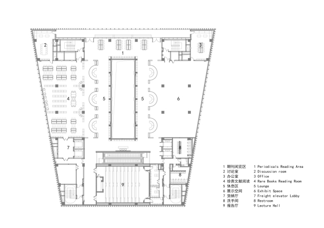
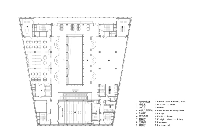
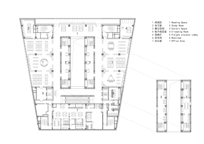
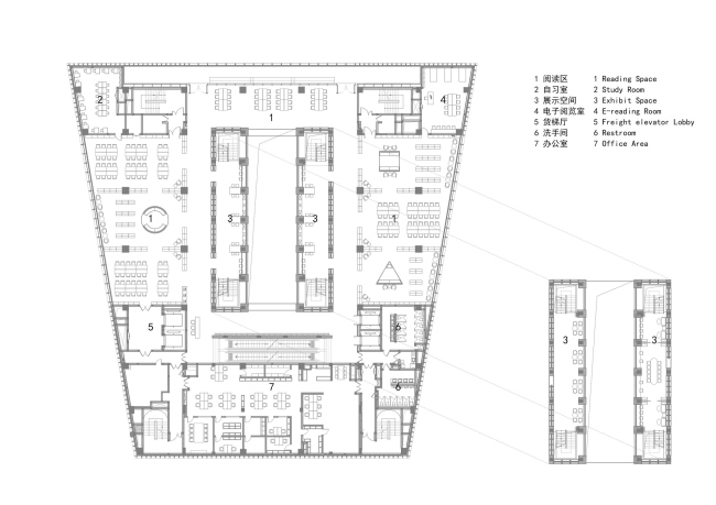
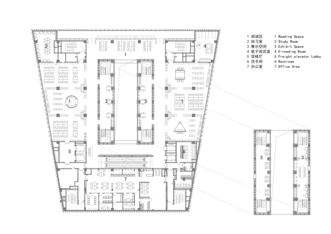
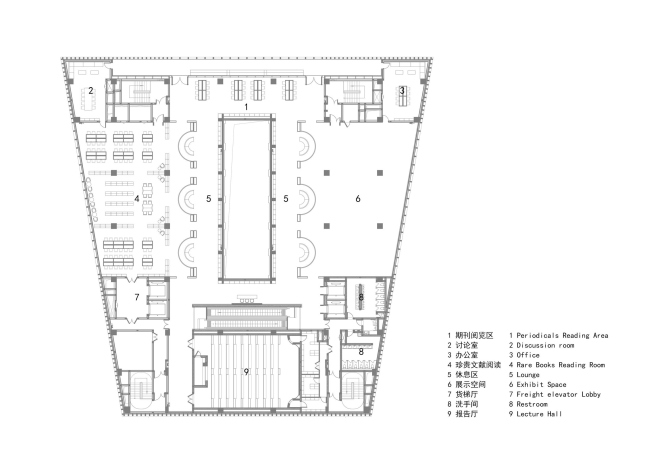
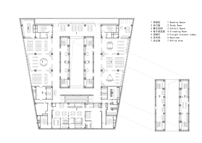
Возвращаясь к библиотеке, Wutopia Lab решили по возможности уйти от жесткой схемы, которую им предлагала симметричная планировка Чипперфильда с тремя этажами, атриумом в центре и антресольными уровнями по бокам. Они решили поделить здание на пять функциональных и формальных слоев, от внешнего до центрального, сравнивая эту схему как с многослойной оболочкой для радиоактивных отходов, так и с сундуками для приданого, которые делали при династии Хань на рубеже эр: ценности хранились во множестве вставленных друг в друга коробов.
 
Библиотека Zikawei округа Сюйцзяхуэй Фото © CreatAR Images
Библиотека Zikawei округа Сюйцзяхуэй
Фото © CreatAR Images
Библиотека Zikawei округа Сюйцзяхуэй Фото © CreatAR Images
Библиотека Zikawei округа Сюйцзяхуэй
Фото © CreatAR Images

Первый слой – фасад, следующий занят кофейней, выставочными и лекционными залами, неформальными зонами для чтения; дальше идет закольцованный обход. Эти три слоя считаются «упаковкой», здесь использованы бетон, терраццо и краска. Два внутренних – сокровищница, поэтому здесь преобладает дерево.
 
Библиотека Zikawei округа Сюйцзяхуэй
Библиотека Zikawei округа Сюйцзяхуэй
Фото © CreatAR Images

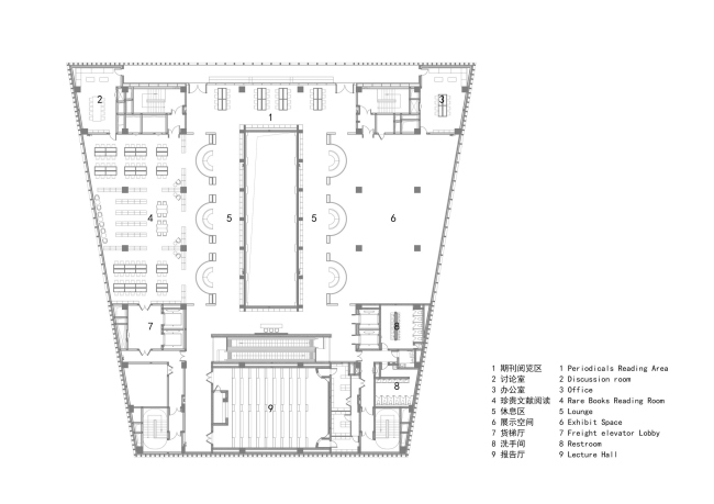
На самом деле ядро едино: в роли сокровища-центра выступает не особое пространство, а размещенная здесь напечатанная на 3D-принтере сетчатая цифровая копия ворот Тушаньвань. Вокруг нее – ларец: базиликальное (напоминающее о католической теме) пространство с 30-метровым столом для чтения, самым длинным в Шанхае. Оно создано в атриуме как символ библиотеки – храма знания. Еще одной исторической отсылкой стало использование для зонирования витражей, которые тоже изготовляли обитатели приюта.
 
Библиотека Zikawei округа Сюйцзяхуэй
Библиотека Zikawei округа Сюйцзяхуэй
Фото © CreatAR Images

Изменения в итоге коснулись и внешнего облика здания. Широкий балкон за бетонными профилями превратили в еще одну зону для чтения, а также добавили по желанию заказчика совсем новую деталь. Это маленький внешний балкончик, который намеренно разбивает четкий ритм фасада: площадь с церковью так хороша, что нельзя было не создать для нее видовую точку.
Библиотека Zikawei округа Сюйцзяхуэй
Библиотека Zikawei округа Сюйцзяхуэй
Фото © CreatAR Images
Библиотека Zikawei округа Сюйцзяхуэй
Библиотека Zikawei округа Сюйцзяхуэй
Фото © CreatAR Images
Библиотека Zikawei округа Сюйцзяхуэй
Библиотека Zikawei округа Сюйцзяхуэй
Фото © CreatAR Images
Библиотека Zikawei округа Сюйцзяхуэй
Библиотека Zikawei округа Сюйцзяхуэй
Фото © CreatAR Images
Библиотека Zikawei округа Сюйцзяхуэй
Библиотека Zikawei округа Сюйцзяхуэй
Фото © CreatAR Images
Библиотека Zikawei округа Сюйцзяхуэй
Библиотека Zikawei округа Сюйцзяхуэй
Фото © CreatAR Images
Библиотека Zikawei округа Сюйцзяхуэй
Библиотека Zikawei округа Сюйцзяхуэй
Фото © CreatAR Images
Библиотека Zikawei округа Сюйцзяхуэй Фото © CreatAR Images
Библиотека Zikawei округа Сюйцзяхуэй
Фото © CreatAR Images
Библиотека Zikawei округа Сюйцзяхуэй Фото © CreatAR Images
Библиотека Zikawei округа Сюйцзяхуэй
Фото © CreatAR Images
Библиотека Zikawei округа Сюйцзяхуэй Фото © CreatAR Images
Библиотека Zikawei округа Сюйцзяхуэй
Фото © CreatAR Images
Библиотека Zikawei округа Сюйцзяхуэй Фото © CreatAR Images
Библиотека Zikawei округа Сюйцзяхуэй
Фото © CreatAR Images
Библиотека Zikawei округа Сюйцзяхуэй
Библиотека Zikawei округа Сюйцзяхуэй
© Wutopia Lab
Библиотека Zikawei округа Сюйцзяхуэй
Библиотека Zikawei округа Сюйцзяхуэй
© Wutopia Lab
Библиотека Zikawei округа Сюйцзяхуэй
Библиотека Zikawei округа Сюйцзяхуэй
© Wutopia Lab