Размещено на портале Архи.ру (www.archi.ru)

10.04.2023

Грузинский дворик

Объект:
Ресторана Ели Сацебели
Адрес:
Россия, Москва. ул. Гжатская, 5 к. 1
Мастерская:
Студия дизайна интерьера SVOBODA
Авторский коллектив:
Дизайнеры проекта: Елена Медведникова, Надежда Шведова
Светодизайнер: Юрий Медведников

В сложном двухуровневом помещении ресторана «Ели сацебели» архитекторы студии SVOBODA создавали Грузию без глиняных кувшинов и меховых шапок. За атмосферу колоритного и гостеприимного дворика отвечают материалы и детали: колотая плитка, декоративные панно, плетеные абажуры, воздушные металлические арки и авторская мебель.

Описание предоставлено архитекторами

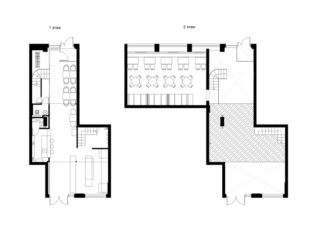
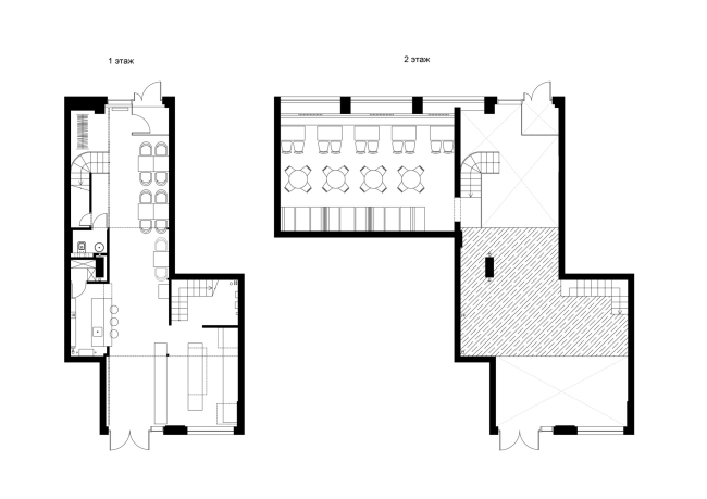
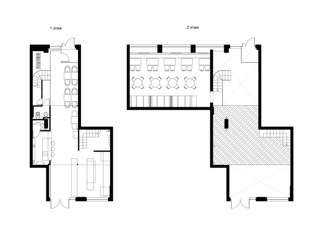
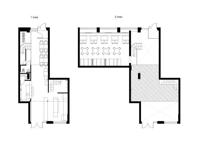
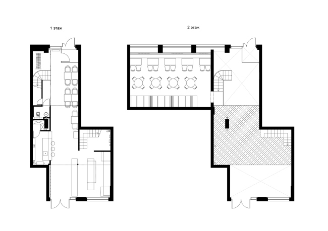
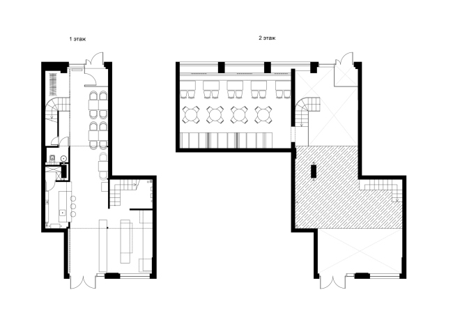
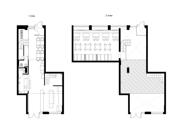
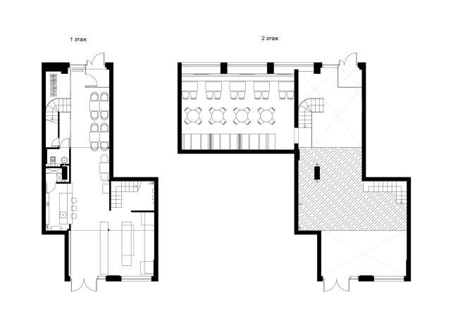
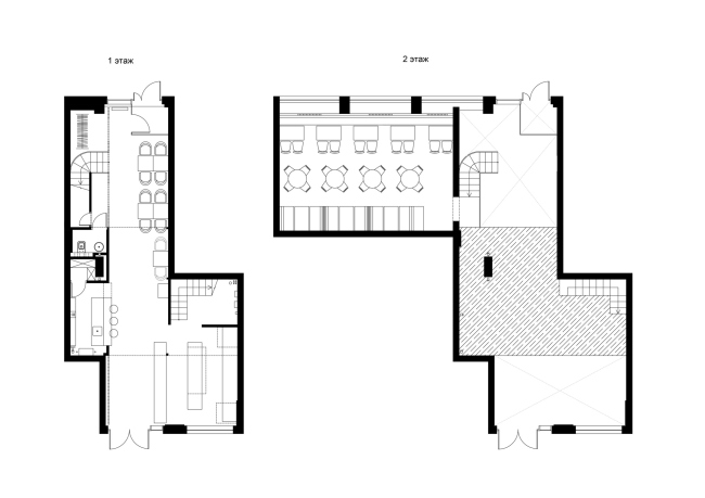
Ресторан открылся в одном из двухэтажных коммерческих помещений ЖК Life Кутузовский на Гжатской улице. На первом уровне с высокими потолками было решено разместить технологию ресторана, открытую кухню, зону бара, на втором – камерный обеденный зал. 
Ресторана Ели Сацебели
Ресторана Ели Сацебели
Фотография © Ольга Мелекесцева / предоставлена Студия дизайна интерьера SVOBODA
Ресторана Ели Сацебели
Ресторана Ели Сацебели
© Студия дизайна интерьера SVOBODA

Зал первого этажа представлял собой вытянутое проходное помещение неправильной формы с двумя входами, большим количеством выступов, углов, колонной, инженерными коммуникациями. Усложняла ситуацию необходимость возвести техническую антресоль, которая снижала потолок в зоне гостевого зала из-за недостаточной высоты помещения. Архитекторам было необходимо не только разместить достаточную посадку, но и гармонизировать помещение с помощью различных дизайн-приемов. Серьезную проблему представляла близость гостевого санузла, перенести который не было возможности, к посадке гостей – необходимо было его скрыть.
Ресторана Ели Сацебели. 1 этаж
Ресторана Ели Сацебели. 1 этаж
Фотография © Ольга Мелекесцева / предоставлена Студия дизайна интерьера SVOBODA

Проблему решили за счет реечной перегородки с арочными проемами, которая выравняла пространство по все длине и обеспечила зонирование посадки, бара, гардероба, санузла и лестницы на второй этаж. Сварная металлическая конструкция длиной в несколько метров смотрится легкой и воздушной за счет покраски в цвет стен. Она придает небольшому помещению первого этажа целостности и одновременно сложности. 
Ресторана Ели Сацебели.1 этаж
Ресторана Ели Сацебели.1 этаж
Фотография © Ольга Мелекесцева / предоставлена Студия дизайна интерьера SVOBODA
Ресторана Ели Сацебели. 1 этаж
Ресторана Ели Сацебели. 1 этаж
Фотография © Ольга Мелекесцева / предоставлена Студия дизайна интерьера SVOBODA

Тему арок продолжает барная стройка. Дугообразная столешница отделана массивом ясеня, а фасад – напиленным на плитки клинкерным кирпичом.
Ресторана Ели Сацебели. 1 этаж
Ресторана Ели Сацебели. 1 этаж
Фотография © Ольга Мелекесцева / предоставлена Студия дизайна интерьера SVOBODA

Основным декоративным решением, призванным облегчить конструкцию технической антресоли, стали объемные декоративные панно по эскизам авторов проекта. Градиентно окрашенные геометрические формы отсылают к потрясающей природе Грузии: снежным вершинам гор, морской глади с чайками на закате. Градиент дробит объем антресоли и помогает растворить ее в пространстве ресторана.
Ресторана Ели Сацебели. 1 этаж
Ресторана Ели Сацебели. 1 этаж
Фотография © Ольга Мелекесцева / предоставлена Студия дизайна интерьера SVOBODA

Малые архитектурные формы, использование экстерьерных материалов в отделке барной стойки, колотая плитка на полу, декоративные панно – все это дает гостю ощущение, что он находится не в помещении одного из современных ЖК Москвы, а в залитом солнцем грузинском дворике. И он может выбрать, разместиться прямо «на улице», или отправиться и в один из гостеприимных грузинских «домов», поднявшись по лестнице на второй этаж.
Ресторана Ели Сацебели. 1 этаж
Ресторана Ели Сацебели. 1 этаж
Фотография © Ольга Мелекесцева / предоставлена Студия дизайна интерьера SVOBODA

При общих с первым этажом интерьерных приемах, цветовой карте и теплой атмосфере, пространство второго этажа выглядит более домашним благодаря светильники в плетеных абажурах, созданных по эскизам дизайнеров, мягкой мебели, стульям в чехлах, зеркалам. Зеркальные панно неровной формы визуально расширяют небольшое пространство и делают его светлее.
Ресторана Ели Сацебели. 2 этаж
Ресторана Ели Сацебели. 2 этаж
Фотография © Ольга Мелекесцева / предоставлена Студия дизайна интерьера SVOBODA
Ресторана Ели Сацебели.2 этаж
Ресторана Ели Сацебели.2 этаж
Фотография © Ольга Мелекесцева / предоставлена Студия дизайна интерьера SVOBODA

Мягкая мебель, созданная для проекта, отделана деревянным шпоном и обита износостойким текстилем с водоотталкивающими свойствами. Столешницы напротив мягкой посадки выполнены из массива ясеня. По центру зала расположены круглые столы со столешницами из мрамора Дайно, визуально похожего на травертин, но тактильно более гладкого. Вокруг круглых столиков стоят стулья из массива дерева, созданные дизайнером Эммануэлем Галлина для фабрики AM.PM. У стульев три ноги, что улучшает эргономику небольшого помещения. 
Ресторана Ели Сацебели. 2 этаж
Ресторана Ели Сацебели. 2 этаж
Фотография © Ольга Мелекесцева / предоставлена Студия дизайна интерьера SVOBODA

За функциональный свет в проекте отвечает фабрика Aledo. Теплый свет встречает посетителя у входа, приглашая пройти вглубь заведения, задержаться у бара или сразу пройти к столикам. Панно равномерно подсвечены светильниками типа wall washer. Поверхность столиков выделяет узкий круглый луч, создавая ощущения камерности.
Ресторана Ели Сацебели
Ресторана Ели Сацебели
Фотография © Ольга Мелекесцева / предоставлена Студия дизайна интерьера SVOBODA
Ресторана Ели Сацебели
Ресторана Ели Сацебели
Фотография © Ольга Мелекесцева / предоставлена Студия дизайна интерьера SVOBODA

Для придания интимности посадке на первом этаже архитекторы разместили на столиках беспроводные светильники Setago, созданные по дизайну испанца Хаймэ Айона для бренда &Tradition. Пространство под технической антресолью освещают задорные Teti, разработанные легендарным Вико Маджистретти для итальянской фабрики Artemide. В санузле общую атмосферу поддерживают антропоморфные зеркало и полки, которые украшает ручная керамика от Ceramum.
Ресторана Ели Сацебели Фотография © Ольга Мелекесцева / предоставлена Студия дизайна интерьера SVOBODA
Ресторана Ели Сацебели
Фотография © Ольга Мелекесцева / предоставлена Студия дизайна интерьера SVOBODA
Ресторана Ели Сацебели Фотография © Ольга Мелекесцева / предоставлена Студия дизайна интерьера SVOBODA
Ресторана Ели Сацебели
Фотография © Ольга Мелекесцева / предоставлена Студия дизайна интерьера SVOBODA