Размещено на портале Архи.ру (www.archi.ru)

30.03.2023

Звездчатый полиэдр

Анна Старостина
Объект:
Факультет медицины Университетской больницы Кремлен-Бисетр
Адрес:
Франция, None, Ле-Кремлен-Бисетр.

В пригороде Парижа открылся новый корпус медицинского факультета Университетского госпиталя Кремлен-Бисетр. Архитектор Жан-Филипп Паргад выбрал для здания необычную многогранную форму и ленточные фасады из белого алюминия.

Коммуна Ле-Кремлен-Бисетр расположена всего в 4,5 км от центра Парижа. Одной из главных достопримечательностей этого пригорода является кампус Университетского госпиталя, включающий в себя также исторические здания – больница здесь существовала уже начиная с XVII века. Угловой, сложной формы участок под новый корпус медицинского факультета выделили у самого въезда на территорию, с противоположной стороны он почти вплотную примыкает к уже имеющемуся учебному корпусу. Заказчиком же проекта выступила администрация крупного, одного из ведущих во Франции, Университета Париж-Сакле, структурной частью которого и является факультет медицины. Общая стоимость строительства составила 20 млн евро.

Факультет медицины Университетской больницы Кремлен-Бисетр
Факультет медицины Университетской больницы Кремлен-Бисетр
Фотография © Charly Broyez / предоставлена Pargade Architectes

Собственно расположение и определило форму самого здания, которую архитектор Жан-Филипп Паргад называет звездчатым многогранником. Все углы при этом скруглены, в результате чего возникает скульптурный объем, ведущий активный диалог с соседними постройками. А благодаря возвышенному, доминантному положению, из внутренних помещений факультетского корпуса открываются впечатляющие панорамные виды как на Париж, так и пригороды. Наконец у главного входа, обращенного внутрь кампуса, создана небольшая площадь, которая задумана как пространство активной коммуникации между студентами, педагогами, исследователями и врачами.
Факультет медицины Университетской больницы Кремлен-Бисетр
Факультет медицины Университетской больницы Кремлен-Бисетр
Фотография © Charly Broyez / предоставлена Pargade Architectes
Факультет медицины Университетской больницы Кремлен-Бисетр
Факультет медицины Университетской больницы Кремлен-Бисетр
Фотография © Charly Broyez / предоставлена Pargade Architectes

Для отделки ленточных фасадов Паргад выбрал стекло и белый полированный алюминий, которые по его мнению, лучше всего отражают назначение здания. В качестве визуального прототипа он называет также скульптуры Константина Бранкузи, с их полированными поверхностями и игрой отражений. При этом в оформлении нижнего этажа и верхней части здания архитектор использовал в основном белые перфорированные панели, форма отверстий которых повторяет необычный полиэдр плана.
Факультет медицины Университетской больницы Кремлен-Бисетр
Факультет медицины Университетской больницы Кремлен-Бисетр
Фотография © Charly Broyez / предоставлена Pargade Architectes

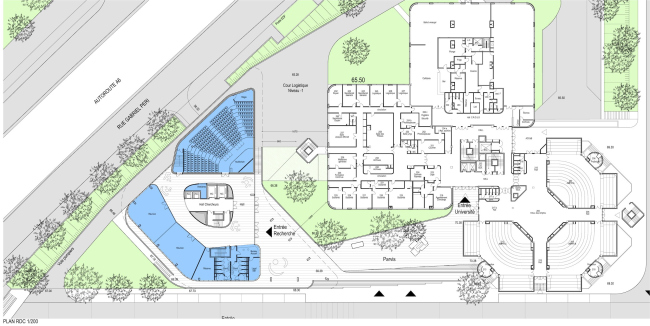
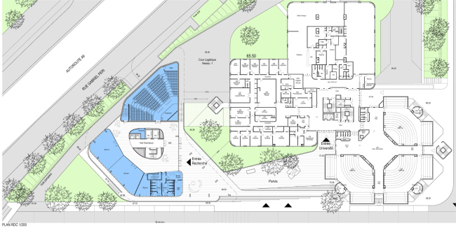
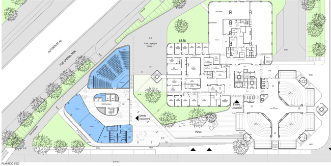
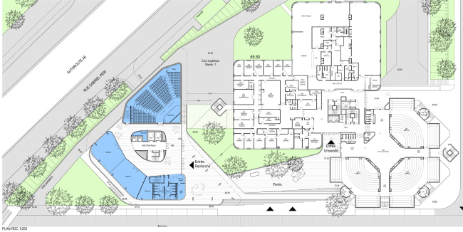
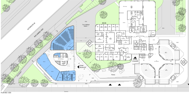
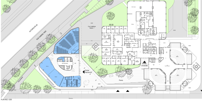
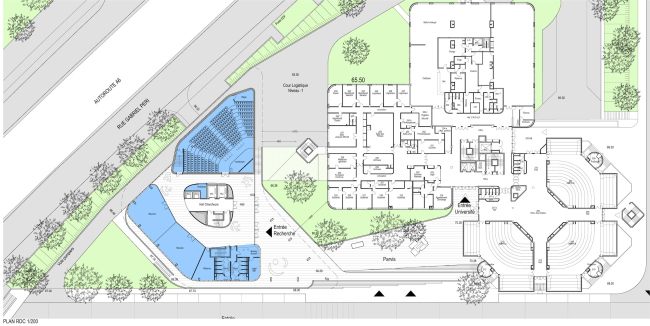
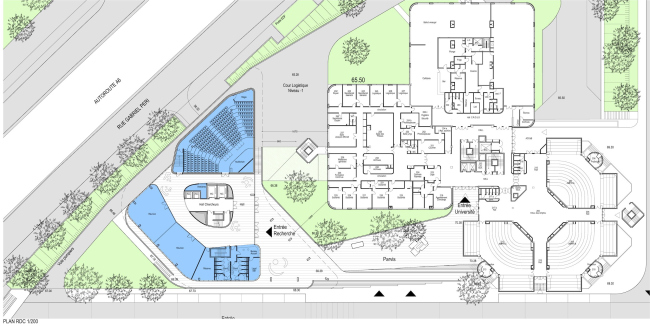
Внутренняя организация корпуса предельно рациональна и довольно компактна. Нижний уровень, частично скрытый под землей, отдан под зоомагазин. Выше расположен холл, пространства для встреч и вместительная аудитория. Три основных этажа занимают шесть исследовательских модулей, в которых все лаборатории и рабочие офисы расположены по периметру, а центральной части собраны различные технические помещения.
Факультет медицины Университетской больницы Кремлен-Бисетр
Факультет медицины Университетской больницы Кремлен-Бисетр
© Pargade Architectes
Факультет медицины Университетской больницы Кремлен-Бисетр
Факультет медицины Университетской больницы Кремлен-Бисетр
© Pargade Architectes
Факультет медицины Университетской больницы Кремлен-Бисетр
Факультет медицины Университетской больницы Кремлен-Бисетр
© Pargade Architectes
Факультет медицины Университетской больницы Кремлен-Бисетр
Факультет медицины Университетской больницы Кремлен-Бисетр
© Pargade Architectes
Факультет медицины Университетской больницы Кремлен-Бисетр
Факультет медицины Университетской больницы Кремлен-Бисетр
© Pargade Architectes
Факультет медицины Университетской больницы Кремлен-Бисетр
Факультет медицины Университетской больницы Кремлен-Бисетр
© Pargade Architectes